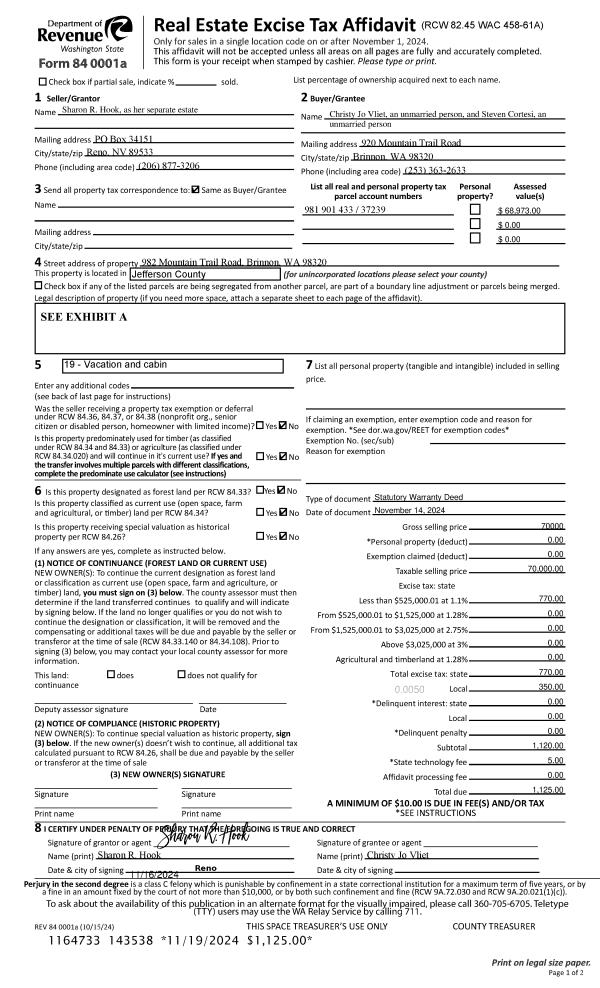
Property
Account |
| Property ID: | 276449 | Abbreviated Legal Description: | KIRCHER SHORT PLAT LOT 3 |
| Parcel # / Geo ID: | 001112013 | Agent Code: | |
| Type: | Real | | |
| Tax Area: | 0110 - C-50F1E1H2 | Land Use Code | 11 |
| Open Space: | N | DFL | N |
| Historic Property: | N | Remodel Property: | N |
| Multi-Family Redevelopment: | N | | |
| Township: | 30N | Section: | 11 |
| Range: | 1W |
Location |
| Address: | 549 SCOTT ST PORT TOWSEND, WA 98368 | Mapsco: | 162/014 |
| Neighborhood: | MABEL | Map ID: | |
| Neighborhood CD: | 6270 |
Owner |
| Name: | DARRELL KIMMERLY | Owner ID: | 19853 |
| Mailing Address: | BRITA KIMMERLY 549 SCOTT ST PORT TOWNSEND, WA 98368 | % Ownership: | 100.0000000000% |
| | | Exemptions: | |
Pay Tax Due
Select the appropriate checkbox next to the year to be paid. Multiple years may be selected.
*Convenience Fee not included
Taxes and Assessment Details
Property Tax Information as of
10/23/2025
Click on "Statement Details" to expand or collapse a tax statement.
* Please enter a valid date ** Please enter a valid date *
Statement Details |
| 2025 | 34113 | STATE - STATE LEVY (SCHOOL) | $1224.66 | $1224.64 | $0.00 | $0.00 | $1224.66 | $1224.64 |
| 2025 | 34113 | COUNTY - COUNTY LEVIES (CE, DD, VET, MH) | $481.60 | $481.57 | $0.00 | $0.00 | $481.60 | $481.57 |
| 2025 | 34113 | CONSERVE - CONSERVATION FUTURES | $14.44 | $14.44 | $0.00 | $0.00 | $14.44 | $14.44 |
| 2025 | 34113 | CITYPT - CITY OF PT | $694.50 | $694.50 | $0.00 | $0.00 | $694.50 | $694.50 |
| 2025 | 34113 | PORTPT - PORT DISTRICT | $196.52 | $196.51 | $0.00 | $0.00 | $196.52 | $196.51 |
| 2025 | 34113 | PUD1 - PUD #1 | $31.51 | $31.51 | $0.00 | $0.00 | $31.51 | $31.51 |
| 2025 | 34113 | HD2 - HOSP DIST #2 | $28.10 | $28.09 | $0.00 | $0.00 | $28.10 | $28.09 |
| 2025 | 34113 | SD50 - SCHOOL DIST #50 | $895.02 | $895.01 | $0.00 | $0.00 | $895.02 | $895.01 |
| 2025 | 34113 | FD1 - FIRE DISTRICT #1 | $635.51 | $635.50 | $0.00 | $0.00 | $635.51 | $635.50 |
| 2025 | 34113 | EMS1 - FIRE DIST #1 EMS | $244.43 | $244.43 | $0.00 | $0.00 | $244.43 | $244.43 |
| 2025 | 34113 | JCCD - JC Conservation District | $2.55 | $2.55 | $0.00 | $0.00 | $2.55 | $2.55 |
| 2025 | 34113 | NWA - Noxious Weed Assessment | $2.15 | $2.15 | $0.00 | $0.00 | $2.15 | $2.15 |
| 2025 | 34113 | WAT - Clean Water District | $13.00 | $13.00 | $0.00 | $0.00 | $13.00 | $13.00 |
| 2025 | 34113 | TOTAL: | $4463.99 | $4463.90 | $0.00 | $0.00 | $4463.99 | $4463.90 |
|
| 2025 | 34113 | $4463.99 | $4463.90 | $0.00 | $0.00 | $4463.99 | $4463.90 |
Statement Details |
| 2024 | 34180 | STATE - STATE LEVY (SCHOOL) | $567.67 | $567.66 | $0.00 | $0.00 | $1135.33 | $0.00 |
| 2024 | 34180 | COUNTY - COUNTY LEVIES (CE, DD, VET, MH) | $242.91 | $242.91 | $0.00 | $0.00 | $485.82 | $0.00 |
| 2024 | 34180 | CONSERVE - CONSERVATION FUTURES | $7.29 | $7.28 | $0.00 | $0.00 | $14.57 | $0.00 |
| 2024 | 34180 | CITYPT - CITY OF PT | $347.09 | $347.08 | $0.00 | $0.00 | $694.17 | $0.00 |
| 2024 | 34180 | PORTPT - PORT DISTRICT | $100.34 | $100.33 | $0.00 | $0.00 | $200.67 | $0.00 |
| 2024 | 34180 | PUD1 - PUD #1 | $15.96 | $15.95 | $0.00 | $0.00 | $31.91 | $0.00 |
| 2024 | 34180 | HD2 - HOSP DIST #2 | $14.18 | $14.17 | $0.00 | $0.00 | $28.35 | $0.00 |
| 2024 | 34180 | SD50 - SCHOOL DIST #50 | $459.28 | $459.25 | $0.00 | $0.00 | $918.53 | $0.00 |
| 2024 | 34180 | FD1 - FIRE DISTRICT #1 | $321.19 | $321.18 | $0.00 | $0.00 | $642.37 | $0.00 |
| 2024 | 34180 | EMS1 - FIRE DIST #1 EMS | $122.68 | $122.68 | $0.00 | $0.00 | $245.36 | $0.00 |
| 2024 | 34180 | JCCD - JC Conservation District | $2.55 | $2.55 | $0.00 | $0.00 | $5.10 | $0.00 |
| 2024 | 34180 | NWA - Noxious Weed Assessment | $2.15 | $2.15 | $0.00 | $0.00 | $4.30 | $0.00 |
| 2024 | 34180 | WAT - Clean Water District | $12.50 | $12.50 | $0.00 | $0.00 | $25.00 | $0.00 |
| 2024 | 34180 | TOTAL: | $2215.79 | $2215.69 | $0.00 | $0.00 | $4431.48 | $0.00 |
|
| 2024 | 34180 | $2215.79 | $2215.69 | $0.00 | $0.00 | $4431.48 | $0.00 |
Statement Details |
| 2023 | 34236 | STATE - STATE LEVY (SCHOOL) | $315.61 | $315.60 | $0.00 | $0.00 | $631.21 | $0.00 |
| 2023 | 34236 | COUNTY - COUNTY LEVIES (CE, DD, VET, MH) | $137.72 | $137.71 | $0.00 | $0.00 | $275.43 | $0.00 |
| 2023 | 34236 | CONSERVE - CONSERVATION FUTURES | $4.13 | $4.13 | $0.00 | $0.00 | $8.26 | $0.00 |
| 2023 | 34236 | CITYPT - CITY OF PT | $194.65 | $194.64 | $0.00 | $0.00 | $389.29 | $0.00 |
| 2023 | 34236 | PORTPT - PORT DISTRICT | $58.02 | $58.01 | $0.00 | $0.00 | $116.03 | $0.00 |
| 2023 | 34236 | PUD1 - PUD #1 | $9.13 | $9.13 | $0.00 | $0.00 | $18.26 | $0.00 |
| 2023 | 34236 | HD2 - HOSP DIST #2 | $8.04 | $8.03 | $0.00 | $0.00 | $16.07 | $0.00 |
| 2023 | 34236 | SD50 - SCHOOL DIST #50 | $250.44 | $250.44 | $0.00 | $0.00 | $500.88 | $0.00 |
| 2023 | 34236 | FD1 - FIRE DISTRICT #1 | $113.46 | $113.45 | $0.00 | $0.00 | $226.91 | $0.00 |
| 2023 | 34236 | EMS1 - FIRE DIST #1 EMS | $48.26 | $48.26 | $0.00 | $0.00 | $96.52 | $0.00 |
| 2023 | 34236 | JCCD - JC Conservation District | $2.53 | $2.53 | $0.00 | $0.00 | $5.06 | $0.00 |
| 2023 | 34236 | NWA - Noxious Weed Assessment | $2.15 | $2.15 | $0.00 | $0.00 | $4.30 | $0.00 |
| 2023 | 34236 | WAT - Clean Water District | $12.00 | $12.00 | $0.00 | $0.00 | $24.00 | $0.00 |
| 2023 | 34236 | TOTAL: | $1156.14 | $1156.08 | $0.00 | $0.00 | $2312.22 | $0.00 |
|
| 2023 | 34236 | $1156.14 | $1156.08 | $0.00 | $0.00 | $2312.22 | $0.00 |
Statement Details |
| 2022 | 34308 | STATE - STATE LEVY (SCHOOL) | $335.91 | $335.90 | $0.00 | $0.00 | $671.81 | $0.00 |
| 2022 | 34308 | COUNTY - COUNTY LEVIES (CE, DD, VET, MH) | $149.67 | $149.66 | $0.00 | $0.00 | $299.33 | $0.00 |
| 2022 | 34308 | CONSERVE - CONSERVATION FUTURES | $4.49 | $4.49 | $0.00 | $0.00 | $8.98 | $0.00 |
| 2022 | 34308 | CITYPT - CITY OF PT | $192.59 | $192.58 | $0.00 | $0.00 | $385.17 | $0.00 |
| 2022 | 34308 | PORTPT - PORT DISTRICT | $64.07 | $64.07 | $0.00 | $0.00 | $128.14 | $0.00 |
| 2022 | 34308 | PUD1 - PUD #1 | $10.01 | $10.01 | $0.00 | $0.00 | $20.02 | $0.00 |
| 2022 | 34308 | HD2 - HOSP DIST #2 | $8.75 | $8.73 | $0.00 | $0.00 | $17.48 | $0.00 |
| 2022 | 34308 | SD50 - SCHOOL DIST #50 | $248.93 | $248.91 | $0.00 | $0.00 | $497.84 | $0.00 |
| 2022 | 34308 | FD1 - FIRE DISTRICT #1 | $122.78 | $122.78 | $0.00 | $0.00 | $245.56 | $0.00 |
| 2022 | 34308 | EMS1 - FIRE DIST #1 EMS | $52.23 | $52.22 | $0.00 | $0.00 | $104.45 | $0.00 |
| 2022 | 34308 | JCCD - JC Conservation District | $2.53 | $2.53 | $0.00 | $0.00 | $5.06 | $0.00 |
| 2022 | 34308 | NWA - Noxious Weed Assessment | $2.15 | $2.15 | $0.00 | $0.00 | $4.30 | $0.00 |
| 2022 | 34308 | WAT - Clean Water District | $11.50 | $11.50 | $0.00 | $0.00 | $23.00 | $0.00 |
| 2022 | 34308 | TOTAL: | $1205.61 | $1205.53 | $0.00 | $0.00 | $2411.14 | $0.00 |
|
| 2022 | 34308 | $1205.61 | $1205.53 | $0.00 | $0.00 | $2411.14 | $0.00 |
Values
| (+) Improvement Homesite Value: | + | $0 | |
| (+) Improvement Non-Homesite Value: | + | $817,770 | |
| (+) Land Homesite Value: | + | $0 | |
| (+) Land Non-Homesite Value: | + | $312,750 | |
| (+) Curr Use (HS): | + | $0 | $0 |
| (+) Curr Use (NHS): | + | $0 | $0 |
| | | -------------------------- | |
| (=) Market Value: | = | $1,130,520 | |
| (–) Productivity Loss: | – | $0 | |
| | | -------------------------- | |
| (=) Subtotal: | = | $1,130,520 | |
| (+) Senior Appraised Value: | + | $0 | |
| (+) Non-Senior Appraised Value: | + | $1,130,520 | |
| | | -------------------------- | |
| (=) Total Appraised Value: | = | $1,130,520 | |
| (–) Senior Exemption Loss: | – | $0 | |
| (–) Exemption Loss: | – | $0 | |
| | | -------------------------- | |
| (=) Taxable Value: | = | $1,130,520 | |
Taxing Jurisdiction
| Owner: | DARRELL KIMMERLY | | |
| % Ownership: | 100.0000000000% | | |
| Total Value: | N/A | | |
| Tax Area: | 0110 - C-50F1E1H2 |
| CE | COUNTY CURRENT EXPENSE | N/A | N/A | N/A | N/A | | |
| CNTYDD | DEVELOPMENTAL DISABILITIES | N/A | N/A | N/A | N/A | | |
| CNTYVET | VETERANS RELIEF | N/A | N/A | N/A | N/A | | |
| MENTAL | MENTAL HEALTH | N/A | N/A | N/A | N/A | | |
| PTGEN | CITY OF PT GENERAL | N/A | N/A | N/A | N/A | | |
| PTLLL | CITY OF PT - LIBRARY LID LIFT | N/A | N/A | N/A | N/A | | |
| PTMVBOND | CITY OF PT MV BOND | N/A | N/A | N/A | N/A | | |
| HOSP2CASH | HOSP DIST #2 GENERAL | N/A | N/A | N/A | N/A | | |
| SCH50BOND | SCHOOL DIST #50 BOND 2016 | N/A | N/A | N/A | N/A | | |
| SCH50CP | SCHOOL DIST #50 CAP PROJ | N/A | N/A | N/A | N/A | | |
| SCH50MO | SCHOOL DIST #50 EP & O | N/A | N/A | N/A | N/A | | |
| CONSERVE | CONSERVATION FUTURES | N/A | N/A | N/A | N/A | | |
| EMS1 | FIRE DIST #1 EMS | N/A | N/A | N/A | N/A | | |
| FD1 | FIRE DIST #1 GENERAL | N/A | N/A | N/A | N/A | | |
| PORTPT | PORT OF PT GENERAL | N/A | N/A | N/A | N/A | | |
| PORTPTIDD | PORT OF PT IDD 2019 | N/A | N/A | N/A | N/A | | |
| PUD1 | PUD #1 GENERAL | N/A | N/A | N/A | N/A | | |
| STATE | STATE SCHOOL PART 1 | N/A | N/A | N/A | N/A | | |
| STATE2 | STATE SCHOOL PART 2 | N/A | N/A | N/A | N/A | | |
| | Total Tax Rate: | N/A | | | | | |
| | | | | Taxes w/Current Exemptions: | N/A | | |
| | | | | Taxes w/o Exemptions: | N/A | | |
Improvement / Building
| Improvement #1: | Residential Bldg | State Code: | 11 | 2634.4 sqft | Value: | $817,770 |
| Bathrooms (#): | 3 (FULL) | Bedrooms (#): | 3 | | Exterior Wall: | SI/ST | Foundation: | CONPR | | Heating/Cooling: | HPUMP | Roof Cover: | METAL |
|
| | Type | Description | Class CD | Sub Class CD | Year Built | Area |
| | MA | Main Area | 5 | 2S | 2023 | 1417.2 |
| | MA2 | Second Floor Main Area | 5 | 2S | 2023 | 1217.2 |
| | BSMTF | House basement finished | 5 | 2S | 2023 | 1417.2 |
| | GDET | Detached Garage | 5 | 2S | 2023 | 667.0 |
Sketch
Property Image
Land
| 1 | 6270-1255S | | 0.0000 | 0.00 | 0.00 | 0.00 | 1.00 | $312,750 | $0 |
Roll Value History
| 2025 | N/A | N/A | N/A | N/A | N/A |
| 2024 | $708,349 | $313,031 | $0 | $1,021,380 | $1,021,380 |
| 2023 | $197,597 | $293,125 | $0 | $490,722 | $490,722 |
| 2022 | $0 | $268,125 | $0 | $268,125 | $268,125 |
| 2021 | $0 | $245,700 | $0 | $245,700 | $245,700 |
Deed and Sales History
| 1 | 01/24/2020 | SWD | Statutory Warranty Deed | TECHINVEST LLC | DARRELL KIMMERLY | | | $240,000.00 | 133886 | |
| 2 | 05/04/2017 | BSD | Bargain and Sale Deed | | | | | | 0 | |
| 3 | 09/21/2007 | WD | Warranty Deed | KIRCHER CREDIT TRUST, JOH | KIRCHER, JENNIFER JO | 0 | 0 | | 0 | 0 |
| 4 | 09/15/2006 | QCD | Quit Claim Deed | KIRCHER, EMMA LOUISE | KIRCHER, EMMA LOUISE, PERSONAL | 0 | 0 | | 0 | 0 |
| 5 | 09/15/2006 | WD | Warranty Deed | KIRCHER, JOHN JOSEPH ESTA | KIRCHER, EMMA LOUISE TRUSTEE O | 0 | 0 | | 0 | 0 |
Payout Agreement
| No payout information available.. |