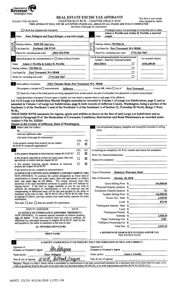
Property
Account |
| Property ID: | 276478 | Abbreviated Legal Description: | JUNE SHORT PLAT LOT 2 SUBJ/EASEMENTS OF RECORD |
| Parcel # / Geo ID: | 821083012 | Agent Code: | |
| Type: | Real | | |
| Tax Area: | 0213 - 1-49F1E1H2L1 | Land Use Code | 11 |
| Open Space: | N | DFL | N |
| Historic Property: | N | Remodel Property: | N |
| Multi-Family Redevelopment: | N | | |
| Township: | 28N | Section: | 8 |
| Range: | 1E |
Location |
| Address: | 110 WALDEN LN PORT LUDLOW, WA 98365 | Mapsco: | 234/078 |
| Neighborhood: | PORT LUDLOW #6 / S8 T28N R1E | Map ID: | |
| Neighborhood CD: | 3336 |
Owner |
| Name: | KELSON & CHRISTIANA NEWSOME | Owner ID: | 109665 |
| Mailing Address: | 110 WALDEN LN PORT LUDLOW, WA 98365-8007 | % Ownership: | 100.0000000000% |
| | | Exemptions: | |
Pay Tax Due
There is currently No Amount Due on this property.
Taxes and Assessment Details
Property Tax Information as of
10/24/2025
Click on "Statement Details" to expand or collapse a tax statement.
* Please enter a valid date ** Please enter a valid date *
Statement Details |
| | TOTAL: | $0.00 | $0.00 | $0.00 | $0.00 | $0.00 | $0.00 |
|
| | $0.00 | $0.00 | $0.00 | $0.00 | $0.00 | $0.00 |
Values
| (+) Improvement Homesite Value: | + | $0 | |
| (+) Improvement Non-Homesite Value: | + | $289,456 | |
| (+) Land Homesite Value: | + | $0 | |
| (+) Land Non-Homesite Value: | + | $194,534 | |
| (+) Curr Use (HS): | + | $0 | $0 |
| (+) Curr Use (NHS): | + | $0 | $0 |
| | | -------------------------- | |
| (=) Market Value: | = | $483,990 | |
| (–) Productivity Loss: | – | $0 | |
| | | -------------------------- | |
| (=) Subtotal: | = | $483,990 | |
| (+) Senior Appraised Value: | + | $0 | |
| (+) Non-Senior Appraised Value: | + | $483,990 | |
| | | -------------------------- | |
| (=) Total Appraised Value: | = | $483,990 | |
| (–) Senior Exemption Loss: | – | $0 | |
| (–) Exemption Loss: | – | $0 | |
| | | -------------------------- | |
| (=) Taxable Value: | = | $483,990 | |
Taxing Jurisdiction
| Owner: | KELSON & CHRISTIANA NEWSOME | | |
| % Ownership: | 100.0000000000% | | |
| Total Value: | N/A | | |
| Tax Area: | 0213 - 1-49F1E1H2L1 |
| CE | COUNTY CURRENT EXPENSE | N/A | N/A | N/A | N/A | | |
| CNTYDD | DEVELOPMENTAL DISABILITIES | N/A | N/A | N/A | N/A | | |
| CNTYVET | VETERANS RELIEF | N/A | N/A | N/A | N/A | | |
| MENTAL | MENTAL HEALTH | N/A | N/A | N/A | N/A | | |
| ROADS | COUNTY ROADS | N/A | N/A | N/A | N/A | | |
| ROADSCU | COUNTY ROADS TO CUR EXP | N/A | N/A | N/A | N/A | | |
| HOSP2CASH | HOSP DIST #2 GENERAL | N/A | N/A | N/A | N/A | | |
| SCH49CP | SCHOOL DIST #49 CAP PROJ | N/A | N/A | N/A | N/A | | |
| SCH49MO | SCHOOL DIST #49 EP & O | N/A | N/A | N/A | N/A | | |
| CONSERVE | CONSERVATION FUTURES | N/A | N/A | N/A | N/A | | |
| EMS1 | FIRE DIST #1 EMS | N/A | N/A | N/A | N/A | | |
| FD1 | FIRE DIST #1 GENERAL | N/A | N/A | N/A | N/A | | |
| LIB1 | LIBRARY DIST #1 GENERAL | N/A | N/A | N/A | N/A | | |
| PORTPT | PORT OF PT GENERAL | N/A | N/A | N/A | N/A | | |
| PORTPTIDD | PORT OF PT IDD 2019 | N/A | N/A | N/A | N/A | | |
| PUD1 | PUD #1 GENERAL | N/A | N/A | N/A | N/A | | |
| STATE | STATE SCHOOL PART 1 | N/A | N/A | N/A | N/A | | |
| STATE2 | STATE SCHOOL PART 2 | N/A | N/A | N/A | N/A | | |
| | Total Tax Rate: | N/A | | | | | |
| | | | | Taxes w/Current Exemptions: | N/A | | |
| | | | | Taxes w/o Exemptions: | N/A | | |
Improvement / Building
| Improvement #1: | Manufactured Home | State Code: | 11M | 1620.0 sqft | Value: | $289,456 |
| Bathrooms (#): | 2 (FULL) | Bedrooms (#): | 3 | | Exterior Wall: | PL/T1 | Foundation: | CONBL | | Heating/Cooling: | ELBB | Roof Cover: | COMP |
|
| | Type | Description | Class CD | Sub Class CD | Year Built | Area |
| | GDET | Detached Garage | 3 | * | 2020 | 864.0 |
| | MA | Main Area | 4+ | MDBL | 2022 | 1620.0 |
| | MDECK | MH Deck | 3 | MDBL | 2022 | 192.0 |
| | MCPOR | MH Concrete Porch | 3 | MDBL | 2022 | 64.0 |
| | SHED | Shed (Table Not Dep) | 3 | * | 2022 | 49.0 |
| | GDET | Detached Garage | 3 | * | 2022 | 576.0 |
| | CARPTN | Carport W/O Floor | 3 | * | 2022 | 144.0 |
Sketch
Property Image
Land
| 1 | 3336-1365S | Fair/Filtered Wtr/Terr View Sites 1+/- Acre in MPR | 1.0000 | 43560.00 | 0.00 | 0.00 | 1.00 | $159,500 | $0 |
| 2 | 1571A | Terr/Mtn/No View <6 Acres | 2.9800 | 129808.80 | 0.00 | 0.00 | 1.00 | $35,034 | $0 |
Roll Value History
| 2025 | N/A | N/A | N/A | N/A | N/A |
| 2024 | $289,456 | $185,691 | $0 | $475,147 | $475,147 |
| 2023 | $277,395 | $170,173 | $0 | $447,568 | $447,568 |
| 2022 | $226,264 | $160,982 | $0 | $387,246 | $387,246 |
| 2021 | $29,231 | $143,150 | $0 | $172,381 | $172,381 |
Deed and Sales History
| 1 | 09/13/2023 | SWD | Statutory Warranty Deed | CHARMAINE L & MICHAEL L RYAN | KELSON & CHRISTIANA NEWSOME | | | $580,000.00 | 141562 | |
| 2 | 04/23/2019 | SWD | Statutory Warranty Deed | GREG & SANDI JOHNSON | CHARMAINE L & MICHAEL L RYAN | | | $135,000.00 | 132203 | |
| 3 | 12/30/2015 | QCD | Quit Claim Deed | | | | | | 0 | |
| 4 | 12/30/2015 | SWD | Statutory Warranty Deed | | | | | | 0 | |
| 5 | 06/18/2004 | QCD | Quit Claim Deed | NCF FINANCIAL, INC A WASH | INGRAM, TODD | 0 | 0 | | 0 | 0 |
| 6 | 05/24/2004 | SWD | Statutory Warranty Deed | PORT LUDLOW ASSOCIATES LL | NCF FINANCIAL INC | 0 | 0 | | 0 | 0 |
| 7 | 08/08/2001 | SWD | Statutory Warranty Deed | OLYMPIC WATER AND SEWER, | PORT LUDLOW ASSOCIATES LLC A W | 0 | 0 | | 0 | 0 |
Payout Agreement
| No payout information available.. |