Property
Account |
| Property ID: | 276510 | Abbreviated Legal Description: | PETTYGROVE'S 2ND ADDITION BLK 12 LOT 2 CITY LETTER LUP19-086 |
| Parcel # / Geo ID: | 985201205 | Agent Code: | |
| Type: | Real | | |
| Tax Area: | 0110 - C-50F1E1H2 | Land Use Code | 11 |
| Open Space: | N | DFL | N |
| Historic Property: | N | Remodel Property: | N |
| Multi-Family Redevelopment: | N | | |
| Township: | 31N | Section: | 35 |
| Range: | 1W |
Location |
| Address: | | Mapsco: | 097/025A |
| Neighborhood: | PORTION PETTYGROVES 2ND LYING W OF CHERRY,QED SP | Map ID: | |
| Neighborhood CD: | 6410 |
Owner |
| Name: | JULIE M OVERBAUGH & JULIE TRIPP | Owner ID: | 102917 |
| Mailing Address: | 1522 GRAND AVE SEATTLE, WA 98122-3524 | % Ownership: | 100.0000000000% |
| | | Exemptions: | |
Pay Tax Due
There is currently No Amount Due on this property.
Taxes and Assessment Details
Property Tax Information as of
10/24/2025
Click on "Statement Details" to expand or collapse a tax statement.
* Please enter a valid date ** Please enter a valid date *
Statement Details |
| | TOTAL: | $0.00 | $0.00 | $0.00 | $0.00 | $0.00 | $0.00 |
|
| | $0.00 | $0.00 | $0.00 | $0.00 | $0.00 | $0.00 |
Values
| (+) Improvement Homesite Value: | + | $0 | |
| (+) Improvement Non-Homesite Value: | + | $0 | |
| (+) Land Homesite Value: | + | $0 | |
| (+) Land Non-Homesite Value: | + | $195,000 | |
| (+) Curr Use (HS): | + | $0 | $0 |
| (+) Curr Use (NHS): | + | $0 | $0 |
| | | -------------------------- | |
| (=) Market Value: | = | $195,000 | |
| (–) Productivity Loss: | – | $0 | |
| | | -------------------------- | |
| (=) Subtotal: | = | $195,000 | |
| (+) Senior Appraised Value: | + | $0 | |
| (+) Non-Senior Appraised Value: | + | $195,000 | |
| | | -------------------------- | |
| (=) Total Appraised Value: | = | $195,000 | |
| (–) Senior Exemption Loss: | – | $0 | |
| (–) Exemption Loss: | – | $0 | |
| | | -------------------------- | |
| (=) Taxable Value: | = | $195,000 | |
Taxing Jurisdiction
| Owner: | JULIE M OVERBAUGH & JULIE TRIPP | | |
| % Ownership: | 100.0000000000% | | |
| Total Value: | N/A | | |
| Tax Area: | 0110 - C-50F1E1H2 |
| CE | COUNTY CURRENT EXPENSE | N/A | N/A | N/A | N/A | | |
| CNTYDD | DEVELOPMENTAL DISABILITIES | N/A | N/A | N/A | N/A | | |
| CNTYVET | VETERANS RELIEF | N/A | N/A | N/A | N/A | | |
| MENTAL | MENTAL HEALTH | N/A | N/A | N/A | N/A | | |
| PTGEN | CITY OF PT GENERAL | N/A | N/A | N/A | N/A | | |
| PTLLL | CITY OF PT - LIBRARY LID LIFT | N/A | N/A | N/A | N/A | | |
| PTMVBOND | CITY OF PT MV BOND | N/A | N/A | N/A | N/A | | |
| HOSP2CASH | HOSP DIST #2 GENERAL | N/A | N/A | N/A | N/A | | |
| SCH50BOND | SCHOOL DIST #50 BOND 2016 | N/A | N/A | N/A | N/A | | |
| SCH50CP | SCHOOL DIST #50 CAP PROJ | N/A | N/A | N/A | N/A | | |
| SCH50MO | SCHOOL DIST #50 EP & O | N/A | N/A | N/A | N/A | | |
| CONSERVE | CONSERVATION FUTURES | N/A | N/A | N/A | N/A | | |
| EMS1 | FIRE DIST #1 EMS | N/A | N/A | N/A | N/A | | |
| FD1 | FIRE DIST #1 GENERAL | N/A | N/A | N/A | N/A | | |
| PORTPT | PORT OF PT GENERAL | N/A | N/A | N/A | N/A | | |
| PORTPTIDD | PORT OF PT IDD 2019 | N/A | N/A | N/A | N/A | | |
| PUD1 | PUD #1 GENERAL | N/A | N/A | N/A | N/A | | |
| STATE | STATE SCHOOL PART 1 | N/A | N/A | N/A | N/A | | |
| STATE2 | STATE SCHOOL PART 2 | N/A | N/A | N/A | N/A | | |
| | Total Tax Rate: | N/A | | | | | |
| | | | | Taxes w/Current Exemptions: | N/A | | |
| | | | | Taxes w/o Exemptions: | N/A | | |
Improvement / Building
Sketch
| No sketches available for this property. |
Property Image
Land
| 1 | 6410-1173L | Pettygroves 2nd Area Terr(Good) | 0.0000 | 0.00 | 0.00 | 0.00 | 1.00 | $195,000 | $0 |
Roll Value History
| 2025 | N/A | N/A | N/A | N/A | N/A |
| 2024 | $0 | $192,500 | $0 | $192,500 | $192,500 |
| 2023 | $0 | $183,750 | $0 | $183,750 | $183,750 |
| 2022 | $0 | $175,000 | $0 | $175,000 | $175,000 |
| 2021 | $0 | $106,250 | $0 | $106,250 | $106,250 |
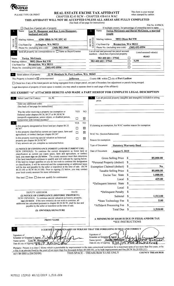
Deed and Sales History
| 1 | 07/02/2020 | SWD | Statutory Warranty Deed | ROBERT A PERRICH | JULIE M OVERBAUGH & JULIE TRIPP | | | $552,700.00 | 134620 | |
|   | |
| 2 | 03/06/2018 | QCD | Quit Claim Deed | | | | | | 0 | |
| 3 | 12/04/2004 | QCD | Quit Claim Deed | PERRICH, ROBERT Q, NIELSE | PERRICH, ROBERT A, NIELSEN, W | 0 | 0 | | 0 | 0 |
| 4 | 08/14/2002 | QCD | Quit Claim Deed | PERRICH, LINDA R | PERRICH, ROBERT A | 0 | 0 | | 0 | 0 |
Payout Agreement
| No payout information available.. |