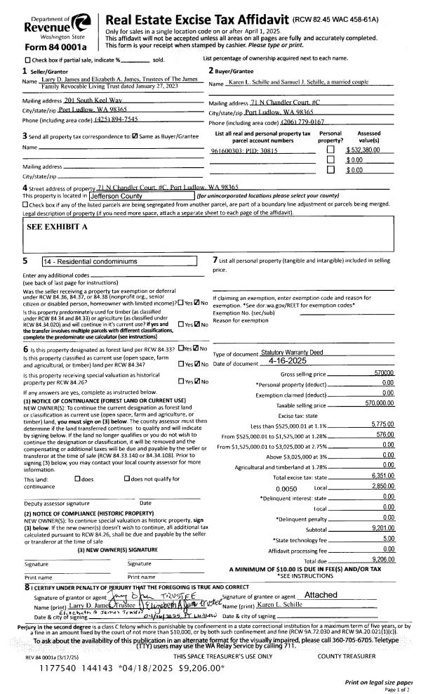
Property
Account |
| Property ID: | 276526 | Abbreviated Legal Description: | PETTYGROVE'S 2ND ADDITION BLK 6 LOTS 3 & 4(S16' OF EACH), 5 & 6(N37' OF EACH) BND BY LLA#132924 |
| Parcel # / Geo ID: | 985200604 | Agent Code: | |
| Type: | Real | | |
| Tax Area: | 0110 - C-50F1E1H2 | Land Use Code | 11 |
| Open Space: | N | DFL | N |
| Historic Property: | N | Remodel Property: | N |
| Multi-Family Redevelopment: | N | | |
| Township: | 30N | Section: | 2 |
| Range: | 1W |
Location |
| Address: | 1615 SPRUCE ST PORT TOWNSEND, WA 98368 | Mapsco: | 097/008 |
| Neighborhood: | PORTION PETTYGROVES 2ND LYING W OF CHERRY,QED SP | Map ID: | |
| Neighborhood CD: | 6410 |
Owner |
| Name: | MORGAN PATTON | Owner ID: | 109095 |
| Mailing Address: | 1615 SPRUCE ST PORT TOWNSEND, WA 98368-3343 | % Ownership: | 100.0000000000% |
| | | Exemptions: | |
Pay Tax Due
There is currently No Amount Due on this property.
Taxes and Assessment Details
Property Tax Information as of
10/24/2025
Click on "Statement Details" to expand or collapse a tax statement.
* Please enter a valid date ** Please enter a valid date *
Statement Details |
| | TOTAL: | $0.00 | $0.00 | $0.00 | $0.00 | $0.00 | $0.00 |
|
| | $0.00 | $0.00 | $0.00 | $0.00 | $0.00 | $0.00 |
Values
| (+) Improvement Homesite Value: | + | $0 | |
| (+) Improvement Non-Homesite Value: | + | $167,321 | |
| (+) Land Homesite Value: | + | $0 | |
| (+) Land Non-Homesite Value: | + | $185,000 | |
| (+) Curr Use (HS): | + | $0 | $0 |
| (+) Curr Use (NHS): | + | $0 | $0 |
| | | -------------------------- | |
| (=) Market Value: | = | $352,321 | |
| (–) Productivity Loss: | – | $0 | |
| | | -------------------------- | |
| (=) Subtotal: | = | $352,321 | |
| (+) Senior Appraised Value: | + | $0 | |
| (+) Non-Senior Appraised Value: | + | $352,321 | |
| | | -------------------------- | |
| (=) Total Appraised Value: | = | $352,321 | |
| (–) Senior Exemption Loss: | – | $0 | |
| (–) Exemption Loss: | – | $0 | |
| | | -------------------------- | |
| (=) Taxable Value: | = | $352,321 | |
Taxing Jurisdiction
| Owner: | MORGAN PATTON | | |
| % Ownership: | 100.0000000000% | | |
| Total Value: | N/A | | |
| Tax Area: | 0110 - C-50F1E1H2 |
| CE | COUNTY CURRENT EXPENSE | N/A | N/A | N/A | N/A | | |
| CNTYDD | DEVELOPMENTAL DISABILITIES | N/A | N/A | N/A | N/A | | |
| CNTYVET | VETERANS RELIEF | N/A | N/A | N/A | N/A | | |
| MENTAL | MENTAL HEALTH | N/A | N/A | N/A | N/A | | |
| PTGEN | CITY OF PT GENERAL | N/A | N/A | N/A | N/A | | |
| PTLLL | CITY OF PT - LIBRARY LID LIFT | N/A | N/A | N/A | N/A | | |
| PTMVBOND | CITY OF PT MV BOND | N/A | N/A | N/A | N/A | | |
| HOSP2CASH | HOSP DIST #2 GENERAL | N/A | N/A | N/A | N/A | | |
| SCH50BOND | SCHOOL DIST #50 BOND 2016 | N/A | N/A | N/A | N/A | | |
| SCH50CP | SCHOOL DIST #50 CAP PROJ | N/A | N/A | N/A | N/A | | |
| SCH50MO | SCHOOL DIST #50 EP & O | N/A | N/A | N/A | N/A | | |
| CONSERVE | CONSERVATION FUTURES | N/A | N/A | N/A | N/A | | |
| EMS1 | FIRE DIST #1 EMS | N/A | N/A | N/A | N/A | | |
| FD1 | FIRE DIST #1 GENERAL | N/A | N/A | N/A | N/A | | |
| PORTPT | PORT OF PT GENERAL | N/A | N/A | N/A | N/A | | |
| PORTPTIDD | PORT OF PT IDD 2019 | N/A | N/A | N/A | N/A | | |
| PUD1 | PUD #1 GENERAL | N/A | N/A | N/A | N/A | | |
| STATE | STATE SCHOOL PART 1 | N/A | N/A | N/A | N/A | | |
| STATE2 | STATE SCHOOL PART 2 | N/A | N/A | N/A | N/A | | |
| | Total Tax Rate: | N/A | | | | | |
| | | | | Taxes w/Current Exemptions: | N/A | | |
| | | | | Taxes w/o Exemptions: | N/A | | |
Improvement / Building
| Improvement #1: | Residential Bldg | State Code: | 11 | 772.0 sqft | Value: | $167,321 |
| Bathrooms (#): | 1 (FULL) | Bedrooms (#): | 2 | | Exterior Wall: | SI/ST | Floor Construction: | FRAME | | Foundation: | PO&BL | Heating/Cooling: | ELBB | | Inside Verify: | YES-FIX | Roof Cover: | COMP |
|
| | Type | Description | Class CD | Sub Class CD | Year Built | Area |
| | MA | Main Area | 4 | 15SF | 1988 | 520.0 |
| | MA2 | Second Floor Main Area | 4 | 15SF | 1988 | 252.0 |
| | HWPOR | House Wood Porch | 4 | * | 1988 | 15.0 |
| | HCPOR | House Concrete Porch | 4 | * | 1988 | 15.0 |
Sketch
Property Image
Land
| 1 | 6410-1175L | Pettygroves 2nd Area Terr(Avg) | 0.0000 | 0.00 | 0.00 | 0.00 | 1.00 | $185,000 | $0 |
Roll Value History
| 2025 | N/A | N/A | N/A | N/A | N/A |
| 2024 | $157,271 | $187,000 | $0 | $344,271 | $344,271 |
| 2023 | $150,980 | $173,250 | $0 | $324,230 | $324,230 |
| 2022 | $119,568 | $130,000 | $0 | $249,568 | $249,568 |
| 2021 | $99,973 | $83,750 | $0 | $183,723 | $183,723 |
Deed and Sales History
| 1 | 06/07/2023 | SWD | Statutory Warranty Deed | RED HOT DIRT HOLDINGS LLC | MORGAN PATTON | | | $415,000.00 | 141051 | |
| 2 | 07/22/2019 | SWD | Statutory Warranty Deed | RICHARD N RIGNEY TRUST | RED HOT DIRT HOLDINGS LLC | | | $268,000.00 | 132940 | |
| 3 | 07/18/2019 | BLA | Boundary Line Adjustment | RICHARD N RIGNEY TRUST | RICHARD N RIGNEY TRUST | | | | 132924 | |
| 4 | 07/22/2019 | QCD | Quit Claim Deed | RICHARD N RIGNEY TRUST | | | | | 132939 | |
| 5 | 02/07/1994 | QCD | Quit Claim Deed | RIGNEY, RICHARD N/JUDITH | RIGNEY, RICHARD & JUDITH/TRUST | 0 | 0 | | 0 | 0 |
Payout Agreement
| No payout information available.. |