Property
Account |
| Property ID: | 276559 | Abbreviated Legal Description: | TRAIL CREST DIV 1 LOT 70 SUBJ/CCR OF RECORD AF#628834 |
| Parcel # / Geo ID: | 996300070 | Agent Code: | |
| Type: | Real | | |
| Tax Area: | 0110 - C-50F1E1H2 | Land Use Code | 91 |
| Open Space: | N | DFL | N |
| Historic Property: | N | Remodel Property: | N |
| Multi-Family Redevelopment: | N | | |
| Township: | 31N | Section: | 33 |
| Range: | 1W |
Location |
| Address: | 4654 TRAIL CREST DR PORT TOWNSEND, WA 98368 | Mapsco: | 142/070 |
| Neighborhood: | FOWLERS PARK, DAVID'S, WILDWOOD AND ACREAGE IN 33-31-1W | Map ID: | |
| Neighborhood CD: | 6010 |
Owner |
| Name: | JONATHAN & KALLADA VANCE | Owner ID: | 111325 |
| Mailing Address: | 2701 HENDRICKS ST PORT TOWNSEND, WA 98368-7007 | % Ownership: | 100.0000000000% |
| | | Exemptions: | |
Pay Tax Due
There is currently No Amount Due on this property.
Taxes and Assessment Details
Property Tax Information as of
10/24/2025
Click on "Statement Details" to expand or collapse a tax statement.
* Please enter a valid date ** Please enter a valid date *
Statement Details |
| | TOTAL: | $0.00 | $0.00 | $0.00 | $0.00 | $0.00 | $0.00 |
|
| | $0.00 | $0.00 | $0.00 | $0.00 | $0.00 | $0.00 |
Values
| (+) Improvement Homesite Value: | + | $0 | |
| (+) Improvement Non-Homesite Value: | + | $0 | |
| (+) Land Homesite Value: | + | $0 | |
| (+) Land Non-Homesite Value: | + | $120,000 | |
| (+) Curr Use (HS): | + | $0 | $0 |
| (+) Curr Use (NHS): | + | $0 | $0 |
| | | -------------------------- | |
| (=) Market Value: | = | $120,000 | |
| (–) Productivity Loss: | – | $0 | |
| | | -------------------------- | |
| (=) Subtotal: | = | $120,000 | |
| (+) Senior Appraised Value: | + | $0 | |
| (+) Non-Senior Appraised Value: | + | $120,000 | |
| | | -------------------------- | |
| (=) Total Appraised Value: | = | $120,000 | |
| (–) Senior Exemption Loss: | – | $0 | |
| (–) Exemption Loss: | – | $0 | |
| | | -------------------------- | |
| (=) Taxable Value: | = | $120,000 | |
Taxing Jurisdiction
| Owner: | JONATHAN & KALLADA VANCE | | |
| % Ownership: | 100.0000000000% | | |
| Total Value: | N/A | | |
| Tax Area: | 0110 - C-50F1E1H2 |
| CE | COUNTY CURRENT EXPENSE | N/A | N/A | N/A | N/A | | |
| CNTYDD | DEVELOPMENTAL DISABILITIES | N/A | N/A | N/A | N/A | | |
| CNTYVET | VETERANS RELIEF | N/A | N/A | N/A | N/A | | |
| MENTAL | MENTAL HEALTH | N/A | N/A | N/A | N/A | | |
| PTGEN | CITY OF PT GENERAL | N/A | N/A | N/A | N/A | | |
| PTLLL | CITY OF PT - LIBRARY LID LIFT | N/A | N/A | N/A | N/A | | |
| PTMVBOND | CITY OF PT MV BOND | N/A | N/A | N/A | N/A | | |
| HOSP2CASH | HOSP DIST #2 GENERAL | N/A | N/A | N/A | N/A | | |
| SCH50BOND | SCHOOL DIST #50 BOND 2016 | N/A | N/A | N/A | N/A | | |
| SCH50CP | SCHOOL DIST #50 CAP PROJ | N/A | N/A | N/A | N/A | | |
| SCH50MO | SCHOOL DIST #50 EP & O | N/A | N/A | N/A | N/A | | |
| CONSERVE | CONSERVATION FUTURES | N/A | N/A | N/A | N/A | | |
| EMS1 | FIRE DIST #1 EMS | N/A | N/A | N/A | N/A | | |
| FD1 | FIRE DIST #1 GENERAL | N/A | N/A | N/A | N/A | | |
| PORTPT | PORT OF PT GENERAL | N/A | N/A | N/A | N/A | | |
| PORTPTIDD | PORT OF PT IDD 2019 | N/A | N/A | N/A | N/A | | |
| PUD1 | PUD #1 GENERAL | N/A | N/A | N/A | N/A | | |
| STATE | STATE SCHOOL PART 1 | N/A | N/A | N/A | N/A | | |
| STATE2 | STATE SCHOOL PART 2 | N/A | N/A | N/A | N/A | | |
| | Total Tax Rate: | N/A | | | | | |
| | | | | Taxes w/Current Exemptions: | N/A | | |
| | | | | Taxes w/o Exemptions: | N/A | | |
Improvement / Building
Sketch
| No sketches available for this property. |
Property Image
Land
| 1 | 6010-1165L | Terr View Trail Crest Lots w/utilities in | 0.0000 | 0.00 | 0.00 | 0.00 | 1.00 | $120,000 | $0 |
Roll Value History
| 2025 | N/A | N/A | N/A | N/A | N/A |
| 2024 | $0 | $120,000 | $0 | $120,000 | $120,000 |
| 2023 | $0 | $115,000 | $0 | $115,000 | $115,000 |
| 2022 | $0 | $110,000 | $0 | $110,000 | $110,000 |
| 2021 | $0 | $97,750 | $0 | $97,750 | $97,750 |
Deed and Sales History
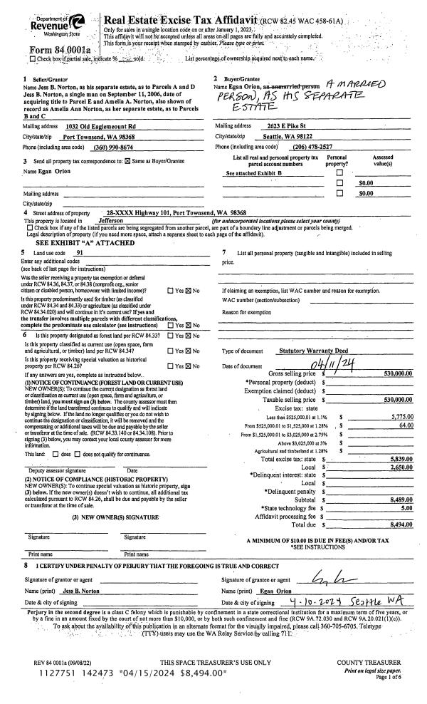
| 1 | 08/23/2024 | QCD | Quit Claim Deed | LOOPERS LLC | JONATHAN & KALLADA VANCE | | | | 143093 | |
| 2 | 06/19/2024 | SWD | Statutory Warranty Deed | ROBERTA J SOMMER | LOOPERS LLC | | | $260,000.00 | 142773 | |
|   | |
| 3 | 12/02/2022 | SWD | Statutory Warranty Deed | JOHN JACKSON | ROBERTA J SOMMER | | | $135,000.00 | 140326 | |
| 4 | 12/02/2022 | SWD | Statutory Warranty Deed | FABRICIA OLIVEIRA JACKSON | JOHN JACKSON | | | | 140325 | |
| 5 | 05/12/2021 | SWD | Statutory Warranty Deed | CANYON CREEK INVESTMENTS LLC | JOHN JACKSON | | | $120,000.00 | 136768 | |
| 6 | 11/22/2016 | SWD | Statutory Warranty Deed | | | | | | 0 | |
| 7 | 07/21/2016 | QCD | Quit Claim Deed | | | | | | 0 | |
| 8 | 01/16/1996 | SWD | Statutory Warranty Deed | DOLL, JOHN HENRY/EST | GLOBAL INVESTMENTS LIMITED | 0 | 0 | | 0 | 0 |
Payout Agreement
| No payout information available.. |