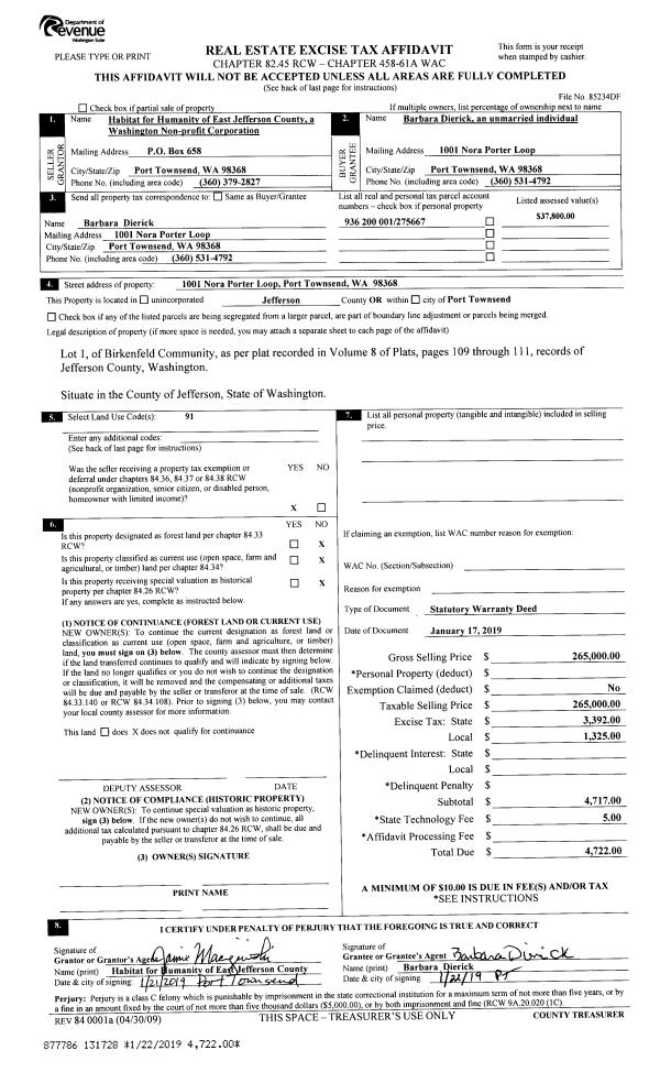
Property
Account |
| Property ID: | 27664 | Abbreviated Legal Description: | EISENBEIS ADDITION BLK 95 LOTS 1 & 2(S1/2 OF EA) |
| Parcel # / Geo ID: | 948309502 | Agent Code: | |
| Type: | Real | | |
| Tax Area: | 0110 - C-50F1E1H2 | Land Use Code | 11 |
| Open Space: | N | DFL | N |
| Historic Property: | N | Remodel Property: | N |
| Multi-Family Redevelopment: | N | | |
| Township: | 30N | Section: | 10 |
| Range: | 1W |
Location |
| Address: | 1425 CLEVELAND ST PORT TOWNSEND, WA 98368 | Mapsco: | 028/063 |
| Neighborhood: | EISENBEIS, OC HASTINGS & SUPP, PINKS LESS VICTORIAN VILLAGE | Map ID: | |
| Neighborhood CD: | 6210 |
Owner |
| Name: | CAROLINE ROBERTSON | Owner ID: | 101309 |
| Mailing Address: | MARIE ROBERTSON 154 WILD PLUM RD CHIMACUM, WA 98325-8728 | % Ownership: | 100.0000000000% |
| | | Exemptions: | |
Pay Tax Due
There is currently No Amount Due on this property.
Taxes and Assessment Details
Property Tax Information as of
10/24/2025
Click on "Statement Details" to expand or collapse a tax statement.
* Please enter a valid date ** Please enter a valid date *
Statement Details |
| | TOTAL: | $0.00 | $0.00 | $0.00 | $0.00 | $0.00 | $0.00 |
|
| | $0.00 | $0.00 | $0.00 | $0.00 | $0.00 | $0.00 |
Values
| (+) Improvement Homesite Value: | + | $0 | |
| (+) Improvement Non-Homesite Value: | + | $260,350 | |
| (+) Land Homesite Value: | + | $0 | |
| (+) Land Non-Homesite Value: | + | $135,000 | |
| (+) Curr Use (HS): | + | $0 | $0 |
| (+) Curr Use (NHS): | + | $0 | $0 |
| | | -------------------------- | |
| (=) Market Value: | = | $395,350 | |
| (–) Productivity Loss: | – | $0 | |
| | | -------------------------- | |
| (=) Subtotal: | = | $395,350 | |
| (+) Senior Appraised Value: | + | $0 | |
| (+) Non-Senior Appraised Value: | + | $395,350 | |
| | | -------------------------- | |
| (=) Total Appraised Value: | = | $395,350 | |
| (–) Senior Exemption Loss: | – | $0 | |
| (–) Exemption Loss: | – | $0 | |
| | | -------------------------- | |
| (=) Taxable Value: | = | $395,350 | |
Taxing Jurisdiction
| Owner: | CAROLINE ROBERTSON | | |
| % Ownership: | 100.0000000000% | | |
| Total Value: | N/A | | |
| Tax Area: | 0110 - C-50F1E1H2 |
| CE | COUNTY CURRENT EXPENSE | N/A | N/A | N/A | N/A | | |
| CNTYDD | DEVELOPMENTAL DISABILITIES | N/A | N/A | N/A | N/A | | |
| CNTYVET | VETERANS RELIEF | N/A | N/A | N/A | N/A | | |
| MENTAL | MENTAL HEALTH | N/A | N/A | N/A | N/A | | |
| PTGEN | CITY OF PT GENERAL | N/A | N/A | N/A | N/A | | |
| PTLLL | CITY OF PT - LIBRARY LID LIFT | N/A | N/A | N/A | N/A | | |
| PTMVBOND | CITY OF PT MV BOND | N/A | N/A | N/A | N/A | | |
| HOSP2CASH | HOSP DIST #2 GENERAL | N/A | N/A | N/A | N/A | | |
| SCH50BOND | SCHOOL DIST #50 BOND 2016 | N/A | N/A | N/A | N/A | | |
| SCH50CP | SCHOOL DIST #50 CAP PROJ | N/A | N/A | N/A | N/A | | |
| SCH50MO | SCHOOL DIST #50 EP & O | N/A | N/A | N/A | N/A | | |
| CONSERVE | CONSERVATION FUTURES | N/A | N/A | N/A | N/A | | |
| EMS1 | FIRE DIST #1 EMS | N/A | N/A | N/A | N/A | | |
| FD1 | FIRE DIST #1 GENERAL | N/A | N/A | N/A | N/A | | |
| PORTPT | PORT OF PT GENERAL | N/A | N/A | N/A | N/A | | |
| PORTPTIDD | PORT OF PT IDD 2019 | N/A | N/A | N/A | N/A | | |
| PUD1 | PUD #1 GENERAL | N/A | N/A | N/A | N/A | | |
| STATE | STATE SCHOOL PART 1 | N/A | N/A | N/A | N/A | | |
| STATE2 | STATE SCHOOL PART 2 | N/A | N/A | N/A | N/A | | |
| | Total Tax Rate: | N/A | | | | | |
| | | | | Taxes w/Current Exemptions: | N/A | | |
| | | | | Taxes w/o Exemptions: | N/A | | |
Improvement / Building
| Improvement #1: | Residential Bldg | State Code: | 11 | 888.0 sqft | Value: | $260,350 |
| Bathrooms (#): | 1 (FULL) | Bedrooms (#): | 2 | | Exterior Wall: | SI/ST | Floor Construction: | FRAME | | Foundation: | CONPR | Heating/Cooling: | ELBB | | Inside Verify: | YES-FIX | Roof Cover: | COMP |
|
| | Type | Description | Class CD | Sub Class CD | Year Built | Area |
| | MA | Main Area | 4+ | 15SF | 1920 | 672.0 |
| | MA2 | Second Floor Main Area | 4+ | 15SF | 1920 | 216.0 |
| | HCPOR | House Concrete Porch | 4 | 15SF | 1920 | 60.0 |
| | HENCL | House Enclosure | 4 | 15SF | 1920 | 35.0 |
| | GDET | Detached Garage | 3 | 15SF | 1920 | 672.0 |
Sketch
Property Image
Land
| 1 | 6210-1185L | Standard Lot (No View) | 0.0000 | 0.00 | 0.00 | 0.00 | 1.00 | $135,000 | $0 |
Roll Value History
| 2025 | N/A | N/A | N/A | N/A | N/A |
| 2024 | $267,700 | $126,000 | $0 | $393,700 | $393,700 |
| 2023 | $256,061 | $115,000 | $0 | $371,061 | $371,061 |
| 2022 | $256,061 | $100,000 | $0 | $356,061 | $356,061 |
| 2021 | $218,856 | $81,250 | $0 | $300,106 | $300,106 |
Deed and Sales History
| 1 | 06/27/2019 | QCD | Quit Claim Deed | | | | | | 132694 | |
| 2 | 06/27/2019 | SWD | Statutory Warranty Deed | LAWRENCE & JEANNE EAGLEMAN | CAROLINE ROBERTSON | | | $266,000.00 | 132693 | |
| 3 | 03/08/2017 | SWD | Statutory Warranty Deed | MICHAEL S KURODA | LAWRENCE & JEANNE EAGLEMAN | | | $201,500.00 | 127276 | |
| 4 | 10/21/2008 | WD | Warranty Deed | WASHINGTON MUTUAL BANK | KURODA, MICHAEL S | 0 | 0 | $170,000.00 | 112190 | 0 |
| 5 | 09/04/2008 | WD | Warranty Deed | NORTHWEST TRUSTEE SERVICE | WASHINGTON MUTUAL BANK | 0 | 0 | $207,825.00 | 111887 | 0 |
| 6 | 07/07/2004 | QCD | Quit Claim Deed | QUALLS, JOHN J | QUALLS, JOHN J/RICHARD J | 0 | 0 | $35,000.00 | 100735 | 0 |
Payout Agreement
| No payout information available.. |