Property
Account |
| Property ID: | 27691 | Abbreviated Legal Description: | EISENBEIS ADDITION BLK 100 LOTS 5 & 6(N1/2) |
| Parcel # / Geo ID: | 948310004 | Agent Code: | |
| Type: | Real | | |
| Tax Area: | 0110 - C-50F1E1H2 | Land Use Code | 11 |
| Open Space: | N | DFL | N |
| Historic Property: | N | Remodel Property: | N |
| Multi-Family Redevelopment: | N | | |
| Township: | 30N | Section: | 10 |
| Range: | 1W |
Location |
| Address: | 1016 GRANT ST PORT TOWNSEND, WA 98368 | Mapsco: | 029/029 |
| Neighborhood: | VICTORIAN VILLAGE MH/EISENBEIS BLKS 100, 101, 124 & 125 | Map ID: | |
| Neighborhood CD: | 6205 |
Owner |
| Name: | GINA G GOLDEN | Owner ID: | 97246 |
| Mailing Address: | 431 CEDAR AVE PORT HADLOCK, WA 98339-9586 | % Ownership: | 100.0000000000% |
| | | Exemptions: | |
Pay Tax Due
There is currently No Amount Due on this property.
Taxes and Assessment Details
Property Tax Information as of
10/24/2025
Click on "Statement Details" to expand or collapse a tax statement.
* Please enter a valid date ** Please enter a valid date *
Statement Details |
| | TOTAL: | $0.00 | $0.00 | $0.00 | $0.00 | $0.00 | $0.00 |
|
| | $0.00 | $0.00 | $0.00 | $0.00 | $0.00 | $0.00 |
Values
| (+) Improvement Homesite Value: | + | $0 | |
| (+) Improvement Non-Homesite Value: | + | $44,788 | |
| (+) Land Homesite Value: | + | $0 | |
| (+) Land Non-Homesite Value: | + | $110,000 | |
| (+) Curr Use (HS): | + | $0 | $0 |
| (+) Curr Use (NHS): | + | $0 | $0 |
| | | -------------------------- | |
| (=) Market Value: | = | $154,788 | |
| (–) Productivity Loss: | – | $0 | |
| | | -------------------------- | |
| (=) Subtotal: | = | $154,788 | |
| (+) Senior Appraised Value: | + | $0 | |
| (+) Non-Senior Appraised Value: | + | $154,788 | |
| | | -------------------------- | |
| (=) Total Appraised Value: | = | $154,788 | |
| (–) Senior Exemption Loss: | – | $0 | |
| (–) Exemption Loss: | – | $0 | |
| | | -------------------------- | |
| (=) Taxable Value: | = | $154,788 | |
Taxing Jurisdiction
| Owner: | GINA G GOLDEN | | |
| % Ownership: | 100.0000000000% | | |
| Total Value: | N/A | | |
| Tax Area: | 0110 - C-50F1E1H2 |
| CE | COUNTY CURRENT EXPENSE | N/A | N/A | N/A | N/A | | |
| CNTYDD | DEVELOPMENTAL DISABILITIES | N/A | N/A | N/A | N/A | | |
| CNTYVET | VETERANS RELIEF | N/A | N/A | N/A | N/A | | |
| MENTAL | MENTAL HEALTH | N/A | N/A | N/A | N/A | | |
| PTGEN | CITY OF PT GENERAL | N/A | N/A | N/A | N/A | | |
| PTLLL | CITY OF PT - LIBRARY LID LIFT | N/A | N/A | N/A | N/A | | |
| PTMVBOND | CITY OF PT MV BOND | N/A | N/A | N/A | N/A | | |
| HOSP2CASH | HOSP DIST #2 GENERAL | N/A | N/A | N/A | N/A | | |
| SCH50BOND | SCHOOL DIST #50 BOND 2016 | N/A | N/A | N/A | N/A | | |
| SCH50CP | SCHOOL DIST #50 CAP PROJ | N/A | N/A | N/A | N/A | | |
| SCH50MO | SCHOOL DIST #50 EP & O | N/A | N/A | N/A | N/A | | |
| CONSERVE | CONSERVATION FUTURES | N/A | N/A | N/A | N/A | | |
| EMS1 | FIRE DIST #1 EMS | N/A | N/A | N/A | N/A | | |
| FD1 | FIRE DIST #1 GENERAL | N/A | N/A | N/A | N/A | | |
| PORTPT | PORT OF PT GENERAL | N/A | N/A | N/A | N/A | | |
| PORTPTIDD | PORT OF PT IDD 2019 | N/A | N/A | N/A | N/A | | |
| PUD1 | PUD #1 GENERAL | N/A | N/A | N/A | N/A | | |
| STATE | STATE SCHOOL PART 1 | N/A | N/A | N/A | N/A | | |
| STATE2 | STATE SCHOOL PART 2 | N/A | N/A | N/A | N/A | | |
| | Total Tax Rate: | N/A | | | | | |
| | | | | Taxes w/Current Exemptions: | N/A | | |
| | | | | Taxes w/o Exemptions: | N/A | | |
Improvement / Building
| Improvement #1: | Manufactured Home | State Code: | 11 | 784.0 sqft | Value: | $44,788 |
| Bathrooms (#): | 1 (FULL) | Bedrooms (#): | 2 | | Exterior Wall: | METAL | Foundation: | PO&BL | | Heating/Cooling: | F/A | Roof Cover: | METAL |
|
| | Type | Description | Class CD | Sub Class CD | Year Built | Area |
| | MA | Main Area | 3+ | MSG | 1981 | 784.0 |
| | MWPOR | MH Wood Porch | 3 | MSG | 1981 | 160.0 |
| | MDECK | MH Deck | 3 | MSG | 1981 | 32.0 |
| | MENCL | MH Enclosure | 3 | MSG | 1981 | 104.0 |
| | MSKIRT_MTL | MH Skirting - Metal/Vinyl | 3 | MSG | 1981 | 140.0 |
Sketch
Property Image
Land
| 1 | 6205-1285S | Victorian Village Site No View | 0.0000 | 0.00 | 0.00 | 0.00 | 1.00 | $110,000 | $0 |
Roll Value History
| 2025 | N/A | N/A | N/A | N/A | N/A |
| 2024 | $44,906 | $110,000 | $0 | $154,906 | $154,906 |
| 2023 | $44,906 | $105,000 | $0 | $149,906 | $149,906 |
| 2022 | $44,906 | $80,000 | $0 | $124,906 | $124,906 |
| 2021 | $37,547 | $44,220 | $0 | $81,767 | $81,767 |
Deed and Sales History
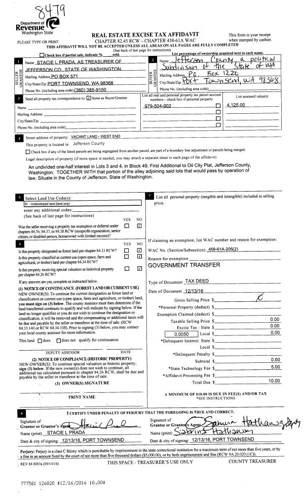
| 1 | 12/27/2016 | LOP | Lack of Probate | KENNETH T GOLDEN | GINA G GOLDEN | | | | 128234 | |
| 2 | 09/20/2000 | SWD | Statutory Warranty Deed | TIFFANY FAMILY TRUST | GOLDEN, KENNETH T/GINA G | 0 | 0 | $40,000.00 | 90639 | 0 |
Payout Agreement
| No payout information available.. |