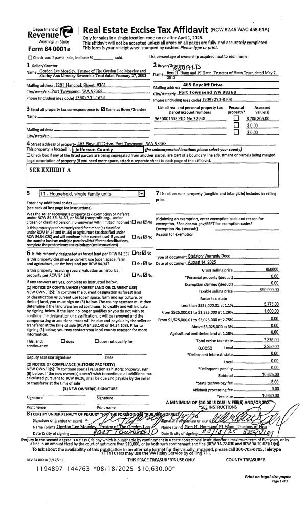
Property
Account |
| Property ID: | 27704 | Abbreviated Legal Description: | EISENBEIS ADDITION BLK 102 LOT 1 |
| Parcel # / Geo ID: | 948310201 | Agent Code: | |
| Type: | Real | | |
| Tax Area: | 0110 - C-50F1E1H2 | Land Use Code | 11 |
| Open Space: | N | DFL | N |
| Historic Property: | N | Remodel Property: | N |
| Multi-Family Redevelopment: | N | | |
| Township: | 30N | Section: | 10 |
| Range: | 1W |
Location |
| Address: | 1203 13TH ST PORT TOWNSEND, WA 98368 | Mapsco: | 029/040 |
| Neighborhood: | EISENBEIS, OC HASTINGS & SUPP, PINKS LESS VICTORIAN VILLAGE | Map ID: | |
| Neighborhood CD: | 6210 |
Owner |
| Name: | SHELLEY A FYE | Owner ID: | 110682 |
| Mailing Address: | 225 SAN JUAN DR PORT TOWNSEND, WA 98368-9461 | % Ownership: | 100.0000000000% |
| | | Exemptions: | |
Pay Tax Due
There is currently No Amount Due on this property.
Taxes and Assessment Details
Property Tax Information as of
10/24/2025
Click on "Statement Details" to expand or collapse a tax statement.
* Please enter a valid date ** Please enter a valid date *
Statement Details |
| | TOTAL: | $0.00 | $0.00 | $0.00 | $0.00 | $0.00 | $0.00 |
|
| | $0.00 | $0.00 | $0.00 | $0.00 | $0.00 | $0.00 |
Values
| (+) Improvement Homesite Value: | + | $0 | |
| (+) Improvement Non-Homesite Value: | + | $445,890 | |
| (+) Land Homesite Value: | + | $0 | |
| (+) Land Non-Homesite Value: | + | $135,000 | |
| (+) Curr Use (HS): | + | $0 | $0 |
| (+) Curr Use (NHS): | + | $0 | $0 |
| | | -------------------------- | |
| (=) Market Value: | = | $580,890 | |
| (–) Productivity Loss: | – | $0 | |
| | | -------------------------- | |
| (=) Subtotal: | = | $580,890 | |
| (+) Senior Appraised Value: | + | $0 | |
| (+) Non-Senior Appraised Value: | + | $580,890 | |
| | | -------------------------- | |
| (=) Total Appraised Value: | = | $580,890 | |
| (–) Senior Exemption Loss: | – | $0 | |
| (–) Exemption Loss: | – | $0 | |
| | | -------------------------- | |
| (=) Taxable Value: | = | $580,890 | |
Taxing Jurisdiction
| Owner: | SHELLEY A FYE | | |
| % Ownership: | 100.0000000000% | | |
| Total Value: | N/A | | |
| Tax Area: | 0110 - C-50F1E1H2 |
| CE | COUNTY CURRENT EXPENSE | N/A | N/A | N/A | N/A | | |
| CNTYDD | DEVELOPMENTAL DISABILITIES | N/A | N/A | N/A | N/A | | |
| CNTYVET | VETERANS RELIEF | N/A | N/A | N/A | N/A | | |
| MENTAL | MENTAL HEALTH | N/A | N/A | N/A | N/A | | |
| PTGEN | CITY OF PT GENERAL | N/A | N/A | N/A | N/A | | |
| PTLLL | CITY OF PT - LIBRARY LID LIFT | N/A | N/A | N/A | N/A | | |
| PTMVBOND | CITY OF PT MV BOND | N/A | N/A | N/A | N/A | | |
| HOSP2CASH | HOSP DIST #2 GENERAL | N/A | N/A | N/A | N/A | | |
| SCH50BOND | SCHOOL DIST #50 BOND 2016 | N/A | N/A | N/A | N/A | | |
| SCH50CP | SCHOOL DIST #50 CAP PROJ | N/A | N/A | N/A | N/A | | |
| SCH50MO | SCHOOL DIST #50 EP & O | N/A | N/A | N/A | N/A | | |
| CONSERVE | CONSERVATION FUTURES | N/A | N/A | N/A | N/A | | |
| EMS1 | FIRE DIST #1 EMS | N/A | N/A | N/A | N/A | | |
| FD1 | FIRE DIST #1 GENERAL | N/A | N/A | N/A | N/A | | |
| PORTPT | PORT OF PT GENERAL | N/A | N/A | N/A | N/A | | |
| PORTPTIDD | PORT OF PT IDD 2019 | N/A | N/A | N/A | N/A | | |
| PUD1 | PUD #1 GENERAL | N/A | N/A | N/A | N/A | | |
| STATE | STATE SCHOOL PART 1 | N/A | N/A | N/A | N/A | | |
| STATE2 | STATE SCHOOL PART 2 | N/A | N/A | N/A | N/A | | |
| | Total Tax Rate: | N/A | | | | | |
| | | | | Taxes w/Current Exemptions: | N/A | | |
| | | | | Taxes w/o Exemptions: | N/A | | |
Improvement / Building
| Improvement #1: | Residential Bldg | State Code: | 11 | 1802.0 sqft | Value: | $445,890 |
| Bathrooms (#): | 2 (FULL) | Bedrooms (#): | 3 | | Exterior Wall: | SI/ST | Fireplace: | SIN 1-AVG | | Floor Construction: | FRAME | Foundation: | CONPR | | Heating/Cooling: | HPUMP | Inside Verify: | YES-FIX | | Roof Cover: | COMP |   |   |
|
| | Type | Description | Class CD | Sub Class CD | Year Built | Area |
| | MA | Main Area | 4+ | 2S | 1992 | 797.0 |
| | MA2 | Second Floor Main Area | 4+ | 2S | 1992 | 1005.0 |
| | HBAL | House Balcony | 4 | 2S | 1992 | 64.0 |
| | HCPOR | House Concrete Porch | 4 | 2S | 1992 | 31.0 |
| | GBLTIN | Builtin Garage | 4 | 2S | 1992 | 254.0 |
Sketch
Property Image
Land
| 1 | 6210-1185L | Standard Lot (No View) | 0.0000 | 0.00 | 0.00 | 0.00 | 1.00 | $135,000 | $0 |
Roll Value History
| 2025 | N/A | N/A | N/A | N/A | N/A |
| 2024 | $365,241 | $126,000 | $0 | $491,241 | $491,241 |
| 2023 | $249,330 | $115,000 | $0 | $364,330 | $364,330 |
| 2022 | $249,330 | $100,000 | $0 | $349,330 | $349,330 |
| 2021 | $213,102 | $81,250 | $0 | $294,352 | $294,352 |
Deed and Sales History
| 1 | 11/22/2024 | SWD | Statutory Warranty Deed | A LYNNE DUNHAM TRUSTEE | SHELLEY A FYE | | | $608,000.00 | 143574 | |
| 2 | 08/28/1996 | SWD | Statutory Warranty Deed | HUESTON, SAMUEL W | DUNHAM, A LYNNE/TRUSTEE | 0 | 0 | $92,500.00 | 80324 | 0 |
| 3 | 04/22/1996 | QCD | Quit Claim Deed | HUESTON, NANCY J | HUESTON, SAMUEL | 0 | 0 | $0.00 | 79395 | 0 |
| 4 | 12/16/1994 | SWD | Statutory Warranty Deed | LEE, DUSE D/MCKECHNIE, LA | HUESTON, SAMUEL W/NANCY J | 0 | 0 | $95,000.00 | 75842 | 0 |
| 5 | 01/29/1993 | QCD | Quit Claim Deed | MCKECHNIE, DUSE E | MCKECHNIE, DUSE E/LAURIE | 0 | 0 | $0.00 | 70300 | 0 |
Payout Agreement
| No payout information available.. |