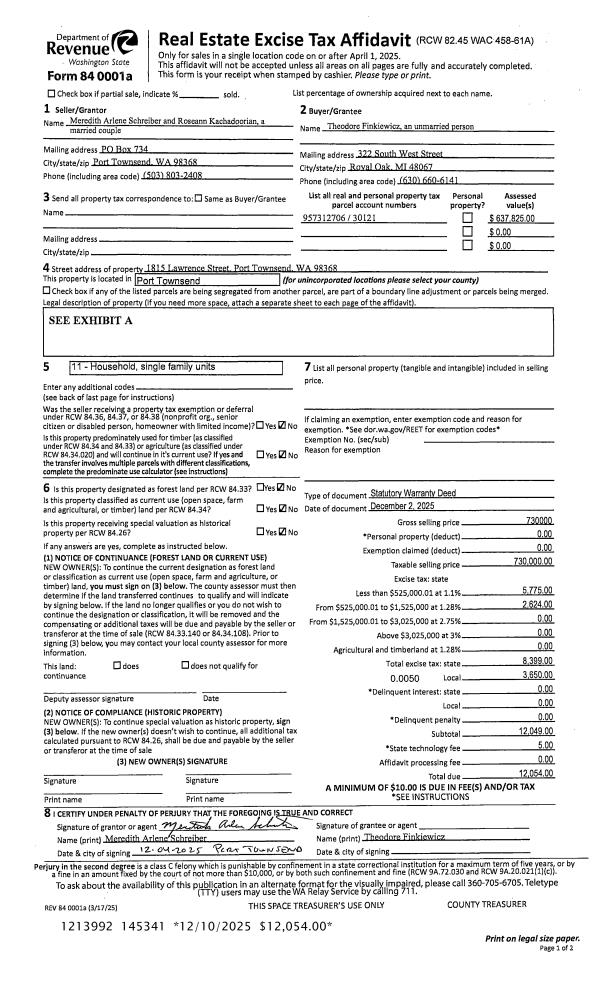
| 1 | 09/03/2025 | SWD | Statutory Warranty Deed | HOWARD J TEAS III REVOCABLE TRUST | KEY CITY REALTY LLC | | | $320,000.00 | 144900 | |
| 2 | 12/12/2023 | QCD | Quit Claim Deed | HOWARD & THERESA TEAS REVOCABLE TRUST | HOWARD J TEAS III REVOCABLE TRUST | | | | 142040 | |
| 3 | 02/20/2015 | QCD | Quit Claim Deed | HOWARD & THERESA TEAS III | HOWARD & THERESA TEAS REVOCABLE TRUST | | | | 122722 | |
| 4 | 02/02/2015 | SWD | Statutory Warranty Deed | PETER R EDWARDS | HOWARD & THERESA TEAS III | | | $242,000.00 | 122642 | |
| 5 | 12/19/2007 | QCD | Quit Claim Deed | EDWARDS, PETER R | EDWARDS, PETER R/KATHLEEN | 0 | 0 | $0.00 | 110634 | 0 |
| 6 | 02/10/2004 | QCD | Quit Claim Deed | THOM-EDWARDS, KARO A | EDWARDS, PETER R | 0 | 0 | $0.00 | 99521 | 0 |
| 7 | 09/25/1996 | SWD | Statutory Warranty Deed | MOSS, HOMER D/EST | EDWARDS, PETER R/KARO THOM | 0 | 0 | $92,000.00 | 80478 | 0 |