Property
Account |
| Property ID: | 27809 | Abbreviated Legal Description: | EISENBEIS ADDITION BLK 125 LOTS 3 & 4(N1/2 EA) |
| Parcel # / Geo ID: | 948312503 | Agent Code: | |
| Type: | Real | | |
| Tax Area: | 0110 - C-50F1E1H2 | Land Use Code | 11 |
| Open Space: | N | DFL | N |
| Historic Property: | N | Remodel Property: | N |
| Multi-Family Redevelopment: | N | | |
| Township: | 30N | Section: | 10 |
| Range: | 1W |
Location |
| Address: | 1034 HENDRICKS ST PORT TOWNSEND, WA 98368 | Mapsco: | 031/032 |
| Neighborhood: | VICTORIAN VILLAGE MH/EISENBEIS BLKS 100, 101, 124 & 125 | Map ID: | |
| Neighborhood CD: | 6205 |
Owner |
| Name: | ROBIN GARDNER & STEPHEN SCHWIND | Owner ID: | 102188 |
| Mailing Address: | 1034 HENDRICKS ST PORT TOWNSEND, WA 98368 | % Ownership: | 100.0000000000% |
| | | Exemptions: | |
Pay Tax Due
There is currently No Amount Due on this property.
Taxes and Assessment Details
Property Tax Information as of
10/24/2025
Click on "Statement Details" to expand or collapse a tax statement.
* Please enter a valid date ** Please enter a valid date *
Statement Details |
| | TOTAL: | $0.00 | $0.00 | $0.00 | $0.00 | $0.00 | $0.00 |
|
| | $0.00 | $0.00 | $0.00 | $0.00 | $0.00 | $0.00 |
Values
| (+) Improvement Homesite Value: | + | $0 | |
| (+) Improvement Non-Homesite Value: | + | $103,085 | |
| (+) Land Homesite Value: | + | $0 | |
| (+) Land Non-Homesite Value: | + | $110,000 | |
| (+) Curr Use (HS): | + | $0 | $0 |
| (+) Curr Use (NHS): | + | $0 | $0 |
| | | -------------------------- | |
| (=) Market Value: | = | $213,085 | |
| (–) Productivity Loss: | – | $0 | |
| | | -------------------------- | |
| (=) Subtotal: | = | $213,085 | |
| (+) Senior Appraised Value: | + | $0 | |
| (+) Non-Senior Appraised Value: | + | $213,085 | |
| | | -------------------------- | |
| (=) Total Appraised Value: | = | $213,085 | |
| (–) Senior Exemption Loss: | – | $0 | |
| (–) Exemption Loss: | – | $0 | |
| | | -------------------------- | |
| (=) Taxable Value: | = | $213,085 | |
Taxing Jurisdiction
| Owner: | ROBIN GARDNER & STEPHEN SCHWIND | | |
| % Ownership: | 100.0000000000% | | |
| Total Value: | N/A | | |
| Tax Area: | 0110 - C-50F1E1H2 |
| CE | COUNTY CURRENT EXPENSE | N/A | N/A | N/A | N/A | | |
| CNTYDD | DEVELOPMENTAL DISABILITIES | N/A | N/A | N/A | N/A | | |
| CNTYVET | VETERANS RELIEF | N/A | N/A | N/A | N/A | | |
| MENTAL | MENTAL HEALTH | N/A | N/A | N/A | N/A | | |
| PTGEN | CITY OF PT GENERAL | N/A | N/A | N/A | N/A | | |
| PTLLL | CITY OF PT - LIBRARY LID LIFT | N/A | N/A | N/A | N/A | | |
| PTMVBOND | CITY OF PT MV BOND | N/A | N/A | N/A | N/A | | |
| HOSP2CASH | HOSP DIST #2 GENERAL | N/A | N/A | N/A | N/A | | |
| SCH50BOND | SCHOOL DIST #50 BOND 2016 | N/A | N/A | N/A | N/A | | |
| SCH50CP | SCHOOL DIST #50 CAP PROJ | N/A | N/A | N/A | N/A | | |
| SCH50MO | SCHOOL DIST #50 EP & O | N/A | N/A | N/A | N/A | | |
| CONSERVE | CONSERVATION FUTURES | N/A | N/A | N/A | N/A | | |
| EMS1 | FIRE DIST #1 EMS | N/A | N/A | N/A | N/A | | |
| FD1 | FIRE DIST #1 GENERAL | N/A | N/A | N/A | N/A | | |
| PORTPT | PORT OF PT GENERAL | N/A | N/A | N/A | N/A | | |
| PORTPTIDD | PORT OF PT IDD 2019 | N/A | N/A | N/A | N/A | | |
| PUD1 | PUD #1 GENERAL | N/A | N/A | N/A | N/A | | |
| STATE | STATE SCHOOL PART 1 | N/A | N/A | N/A | N/A | | |
| STATE2 | STATE SCHOOL PART 2 | N/A | N/A | N/A | N/A | | |
| | Total Tax Rate: | N/A | | | | | |
| | | | | Taxes w/Current Exemptions: | N/A | | |
| | | | | Taxes w/o Exemptions: | N/A | | |
Improvement / Building
| Improvement #1: | Manufactured Home | State Code: | 11 | 1248.0 sqft | Value: | $103,085 |
| Bathrooms (#): | 2 (FULL) | Bedrooms (#): | 3 | | Exterior Wall: | SI/ST | Foundation: | PO&BL | | Heating/Cooling: | F/A | Inside Verify: | YES-FIX | | Roof Cover: | METAL |   |   |
|
| | Type | Description | Class CD | Sub Class CD | Year Built | Area |
| | MA | Main Area | 3+ | MDBL | 1971 | 1248.0 |
| | MWPOR | MH Wood Porch | 3 | MDBL | 1971 | 172.0 |
| | SHED | Shed (Table Not Dep) | 3 | MDBL | 1971 | 200.0 |
| | MSKIRT_WD | MH Skirting - Wood | 3 | MDBL | 1971 | 152.0 |
Sketch
Property Image
Land
| 1 | 6205-1285S | Victorian Village Site No View | 0.0000 | 0.00 | 0.00 | 0.00 | 1.00 | $110,000 | $0 |
Roll Value History
| 2025 | N/A | N/A | N/A | N/A | N/A |
| 2024 | $99,952 | $110,000 | $0 | $209,952 | $209,952 |
| 2023 | $99,952 | $105,000 | $0 | $204,952 | $204,952 |
| 2022 | $99,952 | $80,000 | $0 | $179,952 | $179,952 |
| 2021 | $83,572 | $44,220 | $0 | $127,792 | $127,792 |
Deed and Sales History
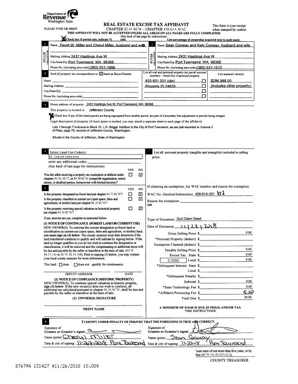
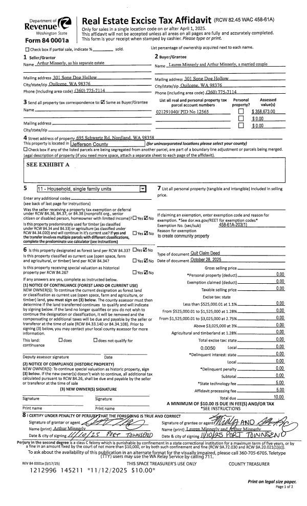
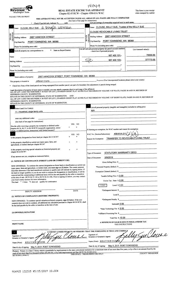
| 1 | 01/13/2020 | SWD | Statutory Warranty Deed | DOUGLAS L JOYCE | ROBIN GARDNER & STEPHEN SCHWIND | | | $125,000.00 | 133805 | |
| 2 | 05/30/2012 | SWD | Statutory Warranty Deed | JACKSON, FORD M ESTATE OF | JOYCE, DOUGLAS | 0 | 0 | $35,000.00 | 117631 | 0 |
Payout Agreement
| No payout information available.. |