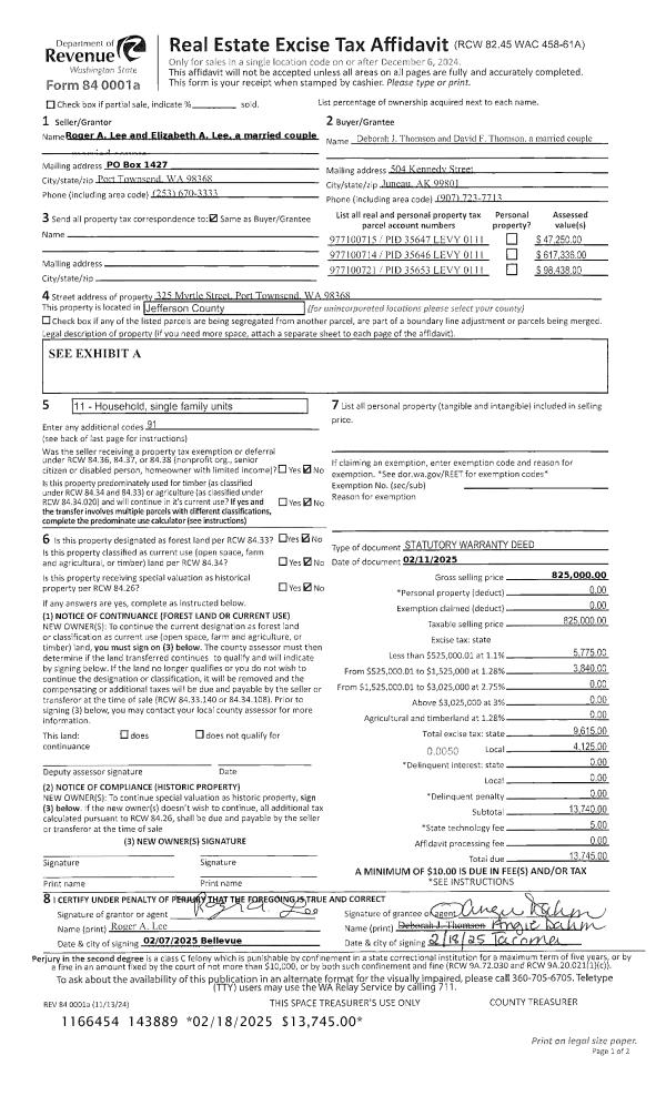
Property
Account |
| Property ID: | 27813 | Abbreviated Legal Description: | EISENBEIS ADDITION BLK 125 LOTS 7 & 8(S1/2) |
| Parcel # / Geo ID: | 948312507 | Agent Code: | |
| Type: | Real | | |
| Tax Area: | 0110 - C-50F1E1H2 | Land Use Code | 11 |
| Open Space: | N | DFL | N |
| Historic Property: | N | Remodel Property: | N |
| Multi-Family Redevelopment: | N | | |
| Township: | 30N | Section: | 10 |
| Range: | 1W |
Location |
| Address: | 1003 GRANT ST PORT TOWNSEND, WA 98368 | Mapsco: | 031/036 |
| Neighborhood: | VICTORIAN VILLAGE MH/EISENBEIS BLKS 100, 101, 124 & 125 | Map ID: | |
| Neighborhood CD: | 6205 |
Owner |
| Name: | DONNY L ELLIOTT | Owner ID: | 102922 |
| Mailing Address: | 1003 GRANT ST PORT TOWNSEND, WA 98368-2918 | % Ownership: | 100.0000000000% |
| | | Exemptions: | SNR/DSBL |
Pay Tax Due
There is currently No Amount Due on this property.
Taxes and Assessment Details
Property Tax Information as of
10/24/2025
Click on "Statement Details" to expand or collapse a tax statement.
* Please enter a valid date ** Please enter a valid date *
Statement Details |
| | TOTAL: | $0.00 | $0.00 | $0.00 | $0.00 | $0.00 | $0.00 |
|
| | $0.00 | $0.00 | $0.00 | $0.00 | $0.00 | $0.00 |
Values
| (+) Improvement Homesite Value: | + | $44,914 | |
| (+) Improvement Non-Homesite Value: | + | $0 | |
| (+) Land Homesite Value: | + | $110,000 | |
| (+) Land Non-Homesite Value: | + | $0 | |
| (+) Curr Use (HS): | + | $0 | $0 |
| (+) Curr Use (NHS): | + | $0 | $0 |
| | | -------------------------- | |
| (=) Market Value: | = | $154,914 | |
| (–) Productivity Loss: | – | $0 | |
| | | -------------------------- | |
| (=) Subtotal: | = | $154,914 | |
| (+) Senior Appraised Value: | + | $122,978 | |
| (+) Non-Senior Appraised Value: | + | $0 | |
| | | -------------------------- | |
| (=) Total Appraised Value: | = | $122,978 | |
| (–) Senior Exemption Loss: | – | $0 | |
| (–) Exemption Loss: | – | $0 | |
| | | -------------------------- | |
| (=) Taxable Value: | = | $122,978 | |
Taxing Jurisdiction
| Owner: | DONNY L ELLIOTT | | |
| % Ownership: | 100.0000000000% | | |
| Total Value: | N/A | | |
| Tax Area: | 0110 - C-50F1E1H2 |
| CE | COUNTY CURRENT EXPENSE | N/A | N/A | N/A | N/A | | |
| CNTYDD | DEVELOPMENTAL DISABILITIES | N/A | N/A | N/A | N/A | | |
| CNTYVET | VETERANS RELIEF | N/A | N/A | N/A | N/A | | |
| MENTAL | MENTAL HEALTH | N/A | N/A | N/A | N/A | | |
| PTGEN | CITY OF PT GENERAL | N/A | N/A | N/A | N/A | | |
| PTLLL | CITY OF PT - LIBRARY LID LIFT | N/A | N/A | N/A | N/A | | |
| PTMVBOND | CITY OF PT MV BOND | N/A | N/A | N/A | N/A | | |
| HOSP2CASH | HOSP DIST #2 GENERAL | N/A | N/A | N/A | N/A | | |
| SCH50BOND | SCHOOL DIST #50 BOND 2016 | N/A | N/A | N/A | N/A | | |
| SCH50CP | SCHOOL DIST #50 CAP PROJ | N/A | N/A | N/A | N/A | | |
| SCH50MO | SCHOOL DIST #50 EP & O | N/A | N/A | N/A | N/A | | |
| CONSERVE | CONSERVATION FUTURES | N/A | N/A | N/A | N/A | | |
| EMS1 | FIRE DIST #1 EMS | N/A | N/A | N/A | N/A | | |
| FD1 | FIRE DIST #1 GENERAL | N/A | N/A | N/A | N/A | | |
| PORTPT | PORT OF PT GENERAL | N/A | N/A | N/A | N/A | | |
| PORTPTIDD | PORT OF PT IDD 2019 | N/A | N/A | N/A | N/A | | |
| PUD1 | PUD #1 GENERAL | N/A | N/A | N/A | N/A | | |
| STATE | STATE SCHOOL PART 1 | N/A | N/A | N/A | N/A | | |
| STATE2 | STATE SCHOOL PART 2 | N/A | N/A | N/A | N/A | | |
| | Total Tax Rate: | N/A | | | | | |
| | | | | Taxes w/Current Exemptions: | N/A | | |
| | | | | Taxes w/o Exemptions: | N/A | | |
Improvement / Building
| Improvement #1: | Manufactured Home | State Code: | 11 | 684.0 sqft | Value: | $44,914 |
| Bathrooms (#): | 1 (FULL) | Bedrooms (#): | 2 | | Exterior Wall: | METAL | Foundation: | PO&BL | | Heating/Cooling: | F/A | Inside Verify: | YES-FIX | | Roof Cover: | METAL |   |   |
|
| | Type | Description | Class CD | Sub Class CD | Year Built | Area |
| | MA | Main Area | 3 | MSG | 1967 | 684.0 |
| | MDECK | MH Deck | 3 | MSG | 1967 | 344.0 |
| | CARPTN | Carport W/O Floor | 1 | MSG | 1967 | 494.0 |
| | ADDN-D | Addition (Table Depreciated) | 2 | MSG | 1967 | 152.0 |
| | MRPO | MH Roof Porch | 3 | MSG | 1967 | 36.0 |
| | MSKIRT_MTL | MH Skirting - Metal/Vinyl | 3 | MSG | 1967 | 138.0 |
Sketch
Property Image
Land
| 1 | 6205-1285S | Victorian Village Site No View | 0.0000 | 0.00 | 0.00 | 0.00 | 1.00 | $110,000 | $0 |
Roll Value History
| 2025 | N/A | N/A | N/A | N/A | N/A |
| 2024 | $42,978 | $110,000 | $0 | $152,978 | $122,978 |
| 2023 | $42,978 | $105,000 | $0 | $147,978 | $122,978 |
| 2022 | $42,978 | $80,000 | $0 | $122,978 | $122,978 |
| 2021 | $35,935 | $44,220 | $0 | $80,155 | $80,155 |
Deed and Sales History
| 1 | 10/25/2015 | QCD | Quit Claim Deed | EDWARD L ELLIOTT | DONNY L ELLIOTT | | | | 134657 | |
| 2 | 09/18/2017 | PRD | Personal Representatives Deed | EVELYN I ELLIOTT | EDWARD L ELLIOTT | | | | 128582 | |
| 3 | 09/19/2017 | PRD | Personal Representatives Deed | | | | | | 128704 | |
Payout Agreement
| No payout information available.. |