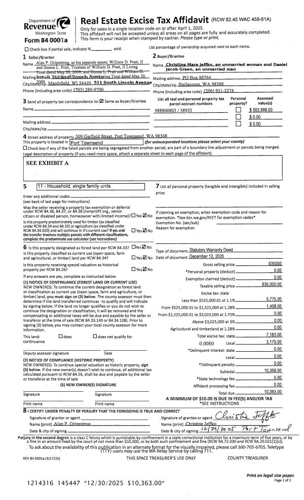
Property
Account |
| Property ID: | 27989 | Abbreviated Legal Description: | EISENBEIS ADDITION BLK 187 LOTS 6(LS S29.61'), 7(ALL), 8(S6.21') W/S EASE |
| Parcel # / Geo ID: | 948318705 | Agent Code: | |
| Type: | Real | | |
| Tax Area: | 0110 - C-50F1E1H2 | Land Use Code | 11 |
| Open Space: | N | DFL | N |
| Historic Property: | N | Remodel Property: | N |
| Multi-Family Redevelopment: | N | | |
| Township: | 30N | Section: | 10 |
| Range: | 1W |
Location |
| Address: | 1022 LOGAN ST PORT TOWNSEND, WA 98368 | Mapsco: | 035/013 |
| Neighborhood: | EISENBEIS, OC HASTINGS & SUPP, PINKS LESS VICTORIAN VILLAGE | Map ID: | |
| Neighborhood CD: | 6210 |
Owner |
| Name: | DOOLIN LIVING TRUST | Owner ID: | 99547 |
| Mailing Address: | PATRICK H DOOLIN TRUSTEE 6806 CATHEDRAL PL NW BREMERTON, WA 98312-1196 | % Ownership: | 100.0000000000% |
| | | Exemptions: | |
Pay Tax Due
There is currently No Amount Due on this property.
Taxes and Assessment Details
Property Tax Information as of
10/24/2025
Click on "Statement Details" to expand or collapse a tax statement.
* Please enter a valid date ** Please enter a valid date *
Statement Details |
| | TOTAL: | $0.00 | $0.00 | $0.00 | $0.00 | $0.00 | $0.00 |
|
| | $0.00 | $0.00 | $0.00 | $0.00 | $0.00 | $0.00 |
Values
| (+) Improvement Homesite Value: | + | $0 | |
| (+) Improvement Non-Homesite Value: | + | $368,741 | |
| (+) Land Homesite Value: | + | $0 | |
| (+) Land Non-Homesite Value: | + | $161,250 | |
| (+) Curr Use (HS): | + | $0 | $0 |
| (+) Curr Use (NHS): | + | $0 | $0 |
| | | -------------------------- | |
| (=) Market Value: | = | $529,991 | |
| (–) Productivity Loss: | – | $0 | |
| | | -------------------------- | |
| (=) Subtotal: | = | $529,991 | |
| (+) Senior Appraised Value: | + | $0 | |
| (+) Non-Senior Appraised Value: | + | $529,991 | |
| | | -------------------------- | |
| (=) Total Appraised Value: | = | $529,991 | |
| (–) Senior Exemption Loss: | – | $0 | |
| (–) Exemption Loss: | – | $0 | |
| | | -------------------------- | |
| (=) Taxable Value: | = | $529,991 | |
Taxing Jurisdiction
| Owner: | DOOLIN LIVING TRUST | | |
| % Ownership: | 100.0000000000% | | |
| Total Value: | N/A | | |
| Tax Area: | 0110 - C-50F1E1H2 |
| CE | COUNTY CURRENT EXPENSE | N/A | N/A | N/A | N/A | | |
| CNTYDD | DEVELOPMENTAL DISABILITIES | N/A | N/A | N/A | N/A | | |
| CNTYVET | VETERANS RELIEF | N/A | N/A | N/A | N/A | | |
| MENTAL | MENTAL HEALTH | N/A | N/A | N/A | N/A | | |
| PTGEN | CITY OF PT GENERAL | N/A | N/A | N/A | N/A | | |
| PTLLL | CITY OF PT - LIBRARY LID LIFT | N/A | N/A | N/A | N/A | | |
| PTMVBOND | CITY OF PT MV BOND | N/A | N/A | N/A | N/A | | |
| HOSP2CASH | HOSP DIST #2 GENERAL | N/A | N/A | N/A | N/A | | |
| SCH50BOND | SCHOOL DIST #50 BOND 2016 | N/A | N/A | N/A | N/A | | |
| SCH50CP | SCHOOL DIST #50 CAP PROJ | N/A | N/A | N/A | N/A | | |
| SCH50MO | SCHOOL DIST #50 EP & O | N/A | N/A | N/A | N/A | | |
| CONSERVE | CONSERVATION FUTURES | N/A | N/A | N/A | N/A | | |
| EMS1 | FIRE DIST #1 EMS | N/A | N/A | N/A | N/A | | |
| FD1 | FIRE DIST #1 GENERAL | N/A | N/A | N/A | N/A | | |
| PORTPT | PORT OF PT GENERAL | N/A | N/A | N/A | N/A | | |
| PORTPTIDD | PORT OF PT IDD 2019 | N/A | N/A | N/A | N/A | | |
| PUD1 | PUD #1 GENERAL | N/A | N/A | N/A | N/A | | |
| STATE | STATE SCHOOL PART 1 | N/A | N/A | N/A | N/A | | |
| STATE2 | STATE SCHOOL PART 2 | N/A | N/A | N/A | N/A | | |
| | Total Tax Rate: | N/A | | | | | |
| | | | | Taxes w/Current Exemptions: | N/A | | |
| | | | | Taxes w/o Exemptions: | N/A | | |
Improvement / Building
| Improvement #1: | Residential Bldg | State Code: | 11 | 1394.0 sqft | Value: | $368,741 |
| Bathrooms (#): | 1 (FULL) | Bathrooms (#): | 1 (HALF) | | Bedrooms (#): | 3 | Exterior Wall: | SI/ST | | Fireplace: | SIN 1-AVG | Floor Construction: | FRAME | | Foundation: | CONPR | Heating/Cooling: | HPUMP | | Inside Verify: | YES-FIX | Roof Cover: | COMP |
|
| | Type | Description | Class CD | Sub Class CD | Year Built | Area |
| | MA | Main Area | 4 | 1S | 1974 | 1394.0 |
| | GATT | House Attached Garage | 4 | 1S | 1974 | 483.0 |
| | HWPOR | House Wood Porch | 4 | 1S | 1974 | 200.0 |
| | HDECK | House Deck | 4 | 1S | 1974 | 144.0 |
| | SHED | Shed (Table Not Dep) | 3 | 1S | 1974 | 168.0 |
| | SHED | Shed (Table Not Dep) | 3 | 1S | 1974 | 48.0 |
Sketch
Property Image
Land
| 1 | 6210-1185L | Standard Lot (No View) | 0.0000 | 0.00 | 0.00 | 0.00 | 1.00 | $135,000 | $0 |
| 2 | 6210-1185L | Standard Lot (No View) | 0.0000 | 0.00 | 0.00 | 0.00 | 1.00 | $26,250 | $0 |
Roll Value History
| 2025 | N/A | N/A | N/A | N/A | N/A |
| 2024 | $369,318 | $149,625 | $0 | $518,943 | $518,943 |
| 2023 | $353,261 | $137,500 | $0 | $490,761 | $490,761 |
| 2022 | $353,261 | $120,000 | $0 | $473,261 | $473,261 |
| 2021 | $301,932 | $89,598 | $0 | $391,530 | $391,530 |
Deed and Sales History
| 1 | 07/05/2018 | SWD | Statutory Warranty Deed | PAMELA M GILBERT | DOOLIN LIVING TRUST | | | $332,000.00 | 130554 | |
| 2 | 10/08/2015 | QCD | Quit Claim Deed | | | | | | 124168 | |
| 3 | 10/08/2015 | SWD | Statutory Warranty Deed | JAN M KITTLESON | PAMELA M JAMISON | | | $257,000.00 | 124166 | |
| 4 | 03/24/2015 | BSD | Bargain and Sale Deed | WELLS FARGO BANK | JAN M KITTLESON | | | $97,000.00 | 122919 | |
| 5 | 12/09/2013 | TRED | Trustee Deed | QUALITY LOAN SERVICE COPR OF WA | WELLS FARGO BANK | | | | 120439 | |
| 6 | 06/01/2005 | QCD | Quit Claim Deed | WHITNEY, RONELDA L | WHITNEY, DAVID S | | | $0.00 | 103696 | 0 |
| 7 | 07/10/2000 | SWD | Statutory Warranty Deed | KWIATKOWSKI, ROBERT | WHITNEY, DAVID SCOTT/RONELDA L | 0 | 0 | $115,000.00 | 90062 | 0 |
| 8 | 07/03/1998 | QCD | Quit Claim Deed | STANAWAY, LAWRENCE S/EST | KWIATKOSKI, ROBERT | 0 | 0 | $0.00 | 84854 | 0 |
Payout Agreement
| No payout information available.. |