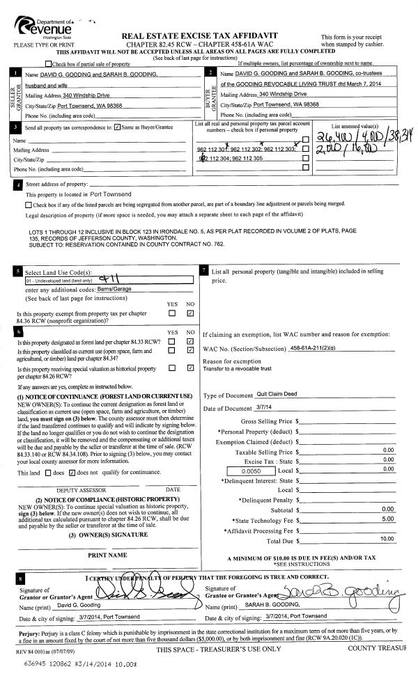
Property
Account |
| Property ID: | 28098 | Abbreviated Legal Description: | EISENBEIS ADDITION BLK 224 LOT 2-REVISED V12/P205 |
| Parcel # / Geo ID: | 948322402 | Agent Code: | |
| Type: | Real | | |
| Tax Area: | 0110 - C-50F1E1H2 | Land Use Code | 11 |
| Open Space: | N | DFL | N |
| Historic Property: | N | Remodel Property: | N |
| Multi-Family Redevelopment: | N | | |
| Township: | 30N | Section: | 10 |
| Range: | 1W |
Location |
| Address: | 1553 8TH ST PORT TOWNSEND, WA 98368 | Mapsco: | 038/021 |
| Neighborhood: | EISENBEIS, OC HASTINGS & SUPP, PINKS LESS VICTORIAN VILLAGE | Map ID: | |
| Neighborhood CD: | 6210 |
Owner |
| Name: | MAYADELLE CRAIG REV TRUST | Owner ID: | 95904 |
| Mailing Address: | MAYADELLE J CRAIG TRUSTEE 1553 8TH ST PORT TOWNSEND, WA 98368-2469 | % Ownership: | 100.0000000000% |
| | | Exemptions: | |
Pay Tax Due
There is currently No Amount Due on this property.
Taxes and Assessment Details
Property Tax Information as of
10/24/2025
Click on "Statement Details" to expand or collapse a tax statement.
* Please enter a valid date ** Please enter a valid date *
Statement Details |
| | TOTAL: | $0.00 | $0.00 | $0.00 | $0.00 | $0.00 | $0.00 |
|
| | $0.00 | $0.00 | $0.00 | $0.00 | $0.00 | $0.00 |
Values
| (+) Improvement Homesite Value: | + | $0 | |
| (+) Improvement Non-Homesite Value: | + | $252,041 | |
| (+) Land Homesite Value: | + | $0 | |
| (+) Land Non-Homesite Value: | + | $135,000 | |
| (+) Curr Use (HS): | + | $0 | $0 |
| (+) Curr Use (NHS): | + | $0 | $0 |
| | | -------------------------- | |
| (=) Market Value: | = | $387,041 | |
| (–) Productivity Loss: | – | $0 | |
| | | -------------------------- | |
| (=) Subtotal: | = | $387,041 | |
| (+) Senior Appraised Value: | + | $0 | |
| (+) Non-Senior Appraised Value: | + | $387,041 | |
| | | -------------------------- | |
| (=) Total Appraised Value: | = | $387,041 | |
| (–) Senior Exemption Loss: | – | $0 | |
| (–) Exemption Loss: | – | $0 | |
| | | -------------------------- | |
| (=) Taxable Value: | = | $387,041 | |
Taxing Jurisdiction
| Owner: | MAYADELLE CRAIG REV TRUST | | |
| % Ownership: | 100.0000000000% | | |
| Total Value: | N/A | | |
| Tax Area: | 0110 - C-50F1E1H2 |
| CE | COUNTY CURRENT EXPENSE | N/A | N/A | N/A | N/A | | |
| CNTYDD | DEVELOPMENTAL DISABILITIES | N/A | N/A | N/A | N/A | | |
| CNTYVET | VETERANS RELIEF | N/A | N/A | N/A | N/A | | |
| MENTAL | MENTAL HEALTH | N/A | N/A | N/A | N/A | | |
| PTGEN | CITY OF PT GENERAL | N/A | N/A | N/A | N/A | | |
| PTLLL | CITY OF PT - LIBRARY LID LIFT | N/A | N/A | N/A | N/A | | |
| PTMVBOND | CITY OF PT MV BOND | N/A | N/A | N/A | N/A | | |
| HOSP2CASH | HOSP DIST #2 GENERAL | N/A | N/A | N/A | N/A | | |
| SCH50BOND | SCHOOL DIST #50 BOND 2016 | N/A | N/A | N/A | N/A | | |
| SCH50CP | SCHOOL DIST #50 CAP PROJ | N/A | N/A | N/A | N/A | | |
| SCH50MO | SCHOOL DIST #50 EP & O | N/A | N/A | N/A | N/A | | |
| CONSERVE | CONSERVATION FUTURES | N/A | N/A | N/A | N/A | | |
| EMS1 | FIRE DIST #1 EMS | N/A | N/A | N/A | N/A | | |
| FD1 | FIRE DIST #1 GENERAL | N/A | N/A | N/A | N/A | | |
| PORTPT | PORT OF PT GENERAL | N/A | N/A | N/A | N/A | | |
| PORTPTIDD | PORT OF PT IDD 2019 | N/A | N/A | N/A | N/A | | |
| PUD1 | PUD #1 GENERAL | N/A | N/A | N/A | N/A | | |
| STATE | STATE SCHOOL PART 1 | N/A | N/A | N/A | N/A | | |
| STATE2 | STATE SCHOOL PART 2 | N/A | N/A | N/A | N/A | | |
| | Total Tax Rate: | N/A | | | | | |
| | | | | Taxes w/Current Exemptions: | N/A | | |
| | | | | Taxes w/o Exemptions: | N/A | | |
Improvement / Building
| Improvement #1: | Residential Bldg | State Code: | 11 | 1012.0 sqft | Value: | $252,041 |
| Bathrooms (#): | 1 (FULL) | Bedrooms (#): | 3 | | Exterior Wall: | SI/ST | Floor Construction: | FRAME | | Foundation: | CONPR | Heating/Cooling: | ELBB | | Inside Verify: | YES-FIX | Roof Cover: | COMP |
|
| | Type | Description | Class CD | Sub Class CD | Year Built | Area |
| | MA | Main Area | 4- | 1S | 1992 | 1012.0 |
| | PATIO | House Patio | 4 | 1S | 1992 | 143.8 |
| | HCPOR | House Concrete Porch | 4 | 1S | 1992 | 92.0 |
| | GATT | House Attached Garage | 4 | 1S | 1992 | 300.0 |
Sketch
Property Image
Land
| 1 | 6210-1185L | Standard Lot (No View) | 0.0000 | 0.00 | 0.00 | 0.00 | 1.00 | $135,000 | $0 |
Roll Value History
| 2025 | N/A | N/A | N/A | N/A | N/A |
| 2024 | $200,726 | $126,000 | $0 | $326,726 | $326,726 |
| 2023 | $191,998 | $115,000 | $0 | $306,998 | $306,998 |
| 2022 | $191,998 | $100,000 | $0 | $291,998 | $291,998 |
| 2021 | $164,101 | $81,250 | $0 | $245,351 | $245,351 |
Deed and Sales History
| 1 | 08/06/2016 | QCD | Quit Claim Deed | MAYADELLE J CRAIG | MAYADELLE CRAIG REV TRUST | | | | 126021 | |
| 2 | 06/25/2015 | SWD | Statutory Warranty Deed | KELLY R BARLOW | MAYADELLE J CRAIG | | | $195,000.00 | 123510 | |
| 3 | 03/07/2005 | SWD | Statutory Warranty Deed | SOLVIK, DIANE T | BARLOW, KELLY R | 0 | 0 | $141,500.00 | 102900 | 0 |
| 4 | 12/19/2001 | SWD | Statutory Warranty Deed | WILLIAMSON, MELISSA | SOLVIK, DIANE T | 0 | 0 | $97,500.00 | 93753 | 0 |
| 5 | 08/06/1993 | QCD | Quit Claim Deed | BALDWIN, MARK | BALDWIN, DONNA | 0 | 0 | $0.00 | 71832 | 0 |
Payout Agreement
| No payout information available.. |