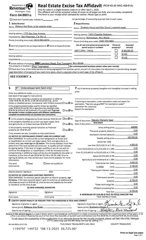
Property
Account |
| Property ID: | 28123 | Abbreviated Legal Description: | EISENBEIS ADDITION BLK 240 LOTS 1 & 2 W/PTN VAC WILSON ST ADJ |
| Parcel # / Geo ID: | 948324001 | Agent Code: | |
| Type: | Real | | |
| Tax Area: | 0110 - C-50F1E1H2 | Land Use Code | 11 |
| Open Space: | N | DFL | N |
| Historic Property: | N | Remodel Property: | N |
| Multi-Family Redevelopment: | N | | |
| Township: | 30N | Section: | 10 |
| Range: | 1W |
Location |
| Address: | 627 WILSON ST PORT TOWNSEND, WA 98368 | Mapsco: | 038/061 |
| Neighborhood: | EISENBEIS, OC HASTINGS & SUPP, PINKS LESS VICTORIAN VILLAGE | Map ID: | |
| Neighborhood CD: | 6210 |
Owner |
| Name: | LEAH N DILLON | Owner ID: | 105480 |
| Mailing Address: | 576 BLYN SPRINGS RD SEQUIM, WA 98382-7073 | % Ownership: | 100.0000000000% |
| | | Exemptions: | |
Pay Tax Due
There is currently No Amount Due on this property.
Taxes and Assessment Details
Property Tax Information as of
10/24/2025
Click on "Statement Details" to expand or collapse a tax statement.
* Please enter a valid date ** Please enter a valid date *
Statement Details |
| | TOTAL: | $0.00 | $0.00 | $0.00 | $0.00 | $0.00 | $0.00 |
|
| | $0.00 | $0.00 | $0.00 | $0.00 | $0.00 | $0.00 |
Values
| (+) Improvement Homesite Value: | + | $468,576 | |
| (+) Improvement Non-Homesite Value: | + | $0 | |
| (+) Land Homesite Value: | + | $287,500 | |
| (+) Land Non-Homesite Value: | + | $0 | |
| (+) Curr Use (HS): | + | $0 | $0 |
| (+) Curr Use (NHS): | + | $0 | $0 |
| | | -------------------------- | |
| (=) Market Value: | = | $756,076 | |
| (–) Productivity Loss: | – | $0 | |
| | | -------------------------- | |
| (=) Subtotal: | = | $756,076 | |
| (+) Senior Appraised Value: | + | $0 | |
| (+) Non-Senior Appraised Value: | + | $756,076 | |
| | | -------------------------- | |
| (=) Total Appraised Value: | = | $756,076 | |
| (–) Senior Exemption Loss: | – | $0 | |
| (–) Exemption Loss: | – | $0 | |
| | | -------------------------- | |
| (=) Taxable Value: | = | $756,076 | |
Taxing Jurisdiction
| Owner: | LEAH N DILLON | | |
| % Ownership: | 100.0000000000% | | |
| Total Value: | N/A | | |
| Tax Area: | 0110 - C-50F1E1H2 |
| CE | COUNTY CURRENT EXPENSE | N/A | N/A | N/A | N/A | | |
| CNTYDD | DEVELOPMENTAL DISABILITIES | N/A | N/A | N/A | N/A | | |
| CNTYVET | VETERANS RELIEF | N/A | N/A | N/A | N/A | | |
| MENTAL | MENTAL HEALTH | N/A | N/A | N/A | N/A | | |
| PTGEN | CITY OF PT GENERAL | N/A | N/A | N/A | N/A | | |
| PTLLL | CITY OF PT - LIBRARY LID LIFT | N/A | N/A | N/A | N/A | | |
| PTMVBOND | CITY OF PT MV BOND | N/A | N/A | N/A | N/A | | |
| HOSP2CASH | HOSP DIST #2 GENERAL | N/A | N/A | N/A | N/A | | |
| SCH50BOND | SCHOOL DIST #50 BOND 2016 | N/A | N/A | N/A | N/A | | |
| SCH50CP | SCHOOL DIST #50 CAP PROJ | N/A | N/A | N/A | N/A | | |
| SCH50MO | SCHOOL DIST #50 EP & O | N/A | N/A | N/A | N/A | | |
| CONSERVE | CONSERVATION FUTURES | N/A | N/A | N/A | N/A | | |
| EMS1 | FIRE DIST #1 EMS | N/A | N/A | N/A | N/A | | |
| FD1 | FIRE DIST #1 GENERAL | N/A | N/A | N/A | N/A | | |
| PORTPT | PORT OF PT GENERAL | N/A | N/A | N/A | N/A | | |
| PORTPTIDD | PORT OF PT IDD 2019 | N/A | N/A | N/A | N/A | | |
| PUD1 | PUD #1 GENERAL | N/A | N/A | N/A | N/A | | |
| STATE | STATE SCHOOL PART 1 | N/A | N/A | N/A | N/A | | |
| STATE2 | STATE SCHOOL PART 2 | N/A | N/A | N/A | N/A | | |
| | Total Tax Rate: | N/A | | | | | |
| | | | | Taxes w/Current Exemptions: | N/A | | |
| | | | | Taxes w/o Exemptions: | N/A | | |
Improvement / Building
| Improvement #1: | Residential Bldg | State Code: | 11 | 1770.0 sqft | Value: | $468,576 |
| Bathrooms (#): | 2 (FULL) | Bedrooms (#): | 2 | | Exterior Wall: | SI/ST | Fireplace: | WD ST-GOOD | | Floor Construction: | FRAME | Foundation: | CONPR | | Heating/Cooling: | F/A | Inside Verify: | NO | | Roof Cover: | TILE |   |   |
|
| | Type | Description | Class CD | Sub Class CD | Year Built | Area |
| | MA | Main Area | 5- | 15SF | 1985 | 1232.0 |
| | MA2 | Second Floor Main Area | 5- | 15SF | 1985 | 538.0 |
| | HWPOR | House Wood Porch | 4 | 15SF | 1985 | 48.0 |
| | HDECK | House Deck | 4 | 15SF | 1985 | 760.0 |
| | GBSMT | Basement Garage | 4 | 15SF | 1985 | 756.0 |
Sketch
Property Image
Land
| 1 | 6210-1175L | Standard Lot (Fair) | 0.0000 | 0.00 | 0.00 | 0.00 | 1.00 | $97,500 | $0 |
| 2 | 6210-1165L | Standard Lot (Avg) | 0.0000 | 0.00 | 0.00 | 0.00 | 1.00 | $190,000 | $0 |
Roll Value History
| 2025 | N/A | N/A | N/A | N/A | N/A |
| 2024 | $465,091 | $265,125 | $0 | $730,216 | $730,216 |
| 2023 | $444,870 | $247,500 | $0 | $692,370 | $692,370 |
| 2022 | $444,870 | $242,500 | $0 | $687,370 | $687,370 |
| 2021 | $380,231 | $166,275 | $0 | $546,506 | $546,506 |
Deed and Sales History
| 1 | 11/25/2024 | PRD | Personal Representatives Deed | JOAN F DILLON | LEAH N DILLON | | | | 143556 | |
| 2 | 03/17/2014 | SWD | Statutory Warranty Deed | CORA LYNN MC COY | JOAN F DILLON | | | $345,000.00 | 120915 | |
| 3 | 03/01/2000 | SWD | Statutory Warranty Deed | THOMPSON, RICHARD D/MADEL | MCCOY, CORA-LYNN/HENKE, JOHN | 0 | 0 | $253,000.00 | 89109 | 0 |
Payout Agreement
| No payout information available.. |