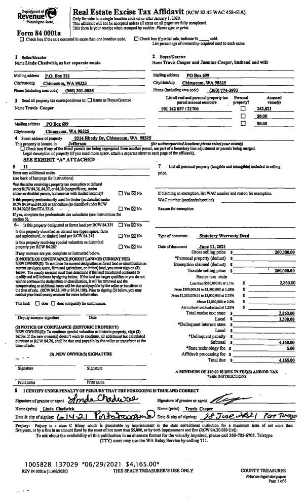
Property
Account |
| Property ID: | 28144 | Abbreviated Legal Description: | EISENBEIS ADDITION BLK 251 LOTS 1 & 2 PTN VAC 6TH ST ADJ LOT 1 |
| Parcel # / Geo ID: | 948325103 | Agent Code: | |
| Type: | Real | | |
| Tax Area: | 0110 - C-50F1E1H2 | Land Use Code | 91 |
| Open Space: | N | DFL | N |
| Historic Property: | N | Remodel Property: | N |
| Multi-Family Redevelopment: | N | | |
| Township: | 30N | Section: | 10 |
| Range: | 1W |
Location |
| Address: | | Mapsco: | 039/004 |
| Neighborhood: | SIMS WAY / SHERIDAN ST COMMERCIAL AREA TOP OF S CURVES | Map ID: | |
| Neighborhood CD: | 6210C |
Owner |
| Name: | JATINDER S NAGRA | Owner ID: | 23261 |
| Mailing Address: | 657 MCPHERSON ST PORT TOWNSEND, WA 98368-2211 | % Ownership: | 100.0000000000% |
| | | Exemptions: | |
Pay Tax Due
There is currently No Amount Due on this property.
Taxes and Assessment Details
Property Tax Information as of
10/24/2025
Click on "Statement Details" to expand or collapse a tax statement.
* Please enter a valid date ** Please enter a valid date *
Statement Details |
| | TOTAL: | $0.00 | $0.00 | $0.00 | $0.00 | $0.00 | $0.00 |
|
| | $0.00 | $0.00 | $0.00 | $0.00 | $0.00 | $0.00 |
Values
| (+) Improvement Homesite Value: | + | $0 | |
| (+) Improvement Non-Homesite Value: | + | $0 | |
| (+) Land Homesite Value: | + | $0 | |
| (+) Land Non-Homesite Value: | + | $195,863 | |
| (+) Curr Use (HS): | + | $0 | $0 |
| (+) Curr Use (NHS): | + | $0 | $0 |
| | | -------------------------- | |
| (=) Market Value: | = | $195,863 | |
| (–) Productivity Loss: | – | $0 | |
| | | -------------------------- | |
| (=) Subtotal: | = | $195,863 | |
| (+) Senior Appraised Value: | + | $0 | |
| (+) Non-Senior Appraised Value: | + | $195,863 | |
| | | -------------------------- | |
| (=) Total Appraised Value: | = | $195,863 | |
| (–) Senior Exemption Loss: | – | $0 | |
| (–) Exemption Loss: | – | $0 | |
| | | -------------------------- | |
| (=) Taxable Value: | = | $195,863 | |
Taxing Jurisdiction
| Owner: | JATINDER S NAGRA | | |
| % Ownership: | 100.0000000000% | | |
| Total Value: | N/A | | |
| Tax Area: | 0110 - C-50F1E1H2 |
| CE | COUNTY CURRENT EXPENSE | N/A | N/A | N/A | N/A | | |
| CNTYDD | DEVELOPMENTAL DISABILITIES | N/A | N/A | N/A | N/A | | |
| CNTYVET | VETERANS RELIEF | N/A | N/A | N/A | N/A | | |
| MENTAL | MENTAL HEALTH | N/A | N/A | N/A | N/A | | |
| PTGEN | CITY OF PT GENERAL | N/A | N/A | N/A | N/A | | |
| PTLLL | CITY OF PT - LIBRARY LID LIFT | N/A | N/A | N/A | N/A | | |
| PTMVBOND | CITY OF PT MV BOND | N/A | N/A | N/A | N/A | | |
| HOSP2CASH | HOSP DIST #2 GENERAL | N/A | N/A | N/A | N/A | | |
| SCH50BOND | SCHOOL DIST #50 BOND 2016 | N/A | N/A | N/A | N/A | | |
| SCH50CP | SCHOOL DIST #50 CAP PROJ | N/A | N/A | N/A | N/A | | |
| SCH50MO | SCHOOL DIST #50 EP & O | N/A | N/A | N/A | N/A | | |
| CONSERVE | CONSERVATION FUTURES | N/A | N/A | N/A | N/A | | |
| EMS1 | FIRE DIST #1 EMS | N/A | N/A | N/A | N/A | | |
| FD1 | FIRE DIST #1 GENERAL | N/A | N/A | N/A | N/A | | |
| PORTPT | PORT OF PT GENERAL | N/A | N/A | N/A | N/A | | |
| PORTPTIDD | PORT OF PT IDD 2019 | N/A | N/A | N/A | N/A | | |
| PUD1 | PUD #1 GENERAL | N/A | N/A | N/A | N/A | | |
| STATE | STATE SCHOOL PART 1 | N/A | N/A | N/A | N/A | | |
| STATE2 | STATE SCHOOL PART 2 | N/A | N/A | N/A | N/A | | |
| | Total Tax Rate: | N/A | | | | | |
| | | | | Taxes w/Current Exemptions: | N/A | | |
| | | | | Taxes w/o Exemptions: | N/A | | |
Improvement / Building
Sketch
| No sketches available for this property. |
Property Image
Land
| 1 | 6210-6275Q | Commercial Retail Bldgs/Parking On Site | 0.3059 | 13324.00 | 0.00 | 0.00 | 0.00 | $195,863 | $0 |
Roll Value History
| 2025 | N/A | N/A | N/A | N/A | N/A |
| 2024 | $0 | $186,536 | $0 | $186,536 | $186,536 |
| 2023 | $0 | $186,536 | $0 | $186,536 | $186,536 |
| 2022 | $0 | $186,536 | $0 | $186,536 | $186,536 |
| 2021 | $0 | $159,888 | $0 | $159,888 | $159,888 |
Deed and Sales History
| 1 | 04/14/2022 | QCD | Quit Claim Deed | A & J NAGRA LLC | JATINDER S NAGRA | | | | 138888 | |
| 2 | 08/22/2019 | SWD | Statutory Warranty Deed | BIG BITE ENTERPRISES LLC | A & J NAGRA LLC | | | $550,000.00 | 133027 | |
|   | |
| 3 | 04/27/2006 | SWD | Statutory Warranty Deed | THE POINTE CORP | BIG BITE ENTERPRISES, LLC | | | $1,400,000.00 | 106521 | 0 |
| 4 | 03/01/1999 | SHRD | Sheriff Deed | JEFFERSON COUNTY SHERIFF | THE POINTE CORPORATION | 0 | 0 | $0.00 | 91425 | 0 |
| 5 | 11/07/1997 | SWD | Statutory Warranty Deed | POINTE CORP | FLANDERS, MARK A/MARIE L | 0 | 0 | $600,000.00 | 83403 | 0 |
|   | |
Payout Agreement
| No payout information available.. |