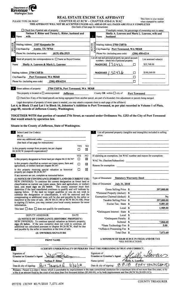
Property
Account |
| Property ID: | 28179 | Abbreviated Legal Description: | EISENBEIS ADDITION BLK 266 LOTS 2 & 3(E50'S OF R/W), 4(E50') |
| Parcel # / Geo ID: | 948326602 | Agent Code: | |
| Type: | Real | | |
| Tax Area: | 0110 - C-50F1E1H2 | Land Use Code | 11 |
| Open Space: | N | DFL | N |
| Historic Property: | N | Remodel Property: | N |
| Multi-Family Redevelopment: | N | | |
| Township: | 30N | Section: | 10 |
| Range: | 1W |
Location |
| Address: | 827 SIMS WAY PORT TOWNSEND, WA 98368 | Mapsco: | 040/013 |
| Neighborhood: | EISENBEIS, OC HASTINGS & SUPP, PINKS LESS VICTORIAN VILLAGE | Map ID: | |
| Neighborhood CD: | 6210 |
Owner |
| Name: | MARY E STRETCH & CYNTHIA K PHILLIPS | Owner ID: | 105747 |
| Mailing Address: | 6609 N SHADOW RUN DR TUCSON, AZ 85704-6933 | % Ownership: | 100.0000000000% |
| | | Exemptions: | |
Pay Tax Due
There is currently No Amount Due on this property.
Taxes and Assessment Details
Property Tax Information as of
10/24/2025
Click on "Statement Details" to expand or collapse a tax statement.
* Please enter a valid date ** Please enter a valid date *
Statement Details |
| | TOTAL: | $0.00 | $0.00 | $0.00 | $0.00 | $0.00 | $0.00 |
|
| | $0.00 | $0.00 | $0.00 | $0.00 | $0.00 | $0.00 |
Values
| (+) Improvement Homesite Value: | + | $0 | |
| (+) Improvement Non-Homesite Value: | + | $762,521 | |
| (+) Land Homesite Value: | + | $0 | |
| (+) Land Non-Homesite Value: | + | $245,000 | |
| (+) Curr Use (HS): | + | $0 | $0 |
| (+) Curr Use (NHS): | + | $0 | $0 |
| | | -------------------------- | |
| (=) Market Value: | = | $1,007,521 | |
| (–) Productivity Loss: | – | $0 | |
| | | -------------------------- | |
| (=) Subtotal: | = | $1,007,521 | |
| (+) Senior Appraised Value: | + | $0 | |
| (+) Non-Senior Appraised Value: | + | $1,007,521 | |
| | | -------------------------- | |
| (=) Total Appraised Value: | = | $1,007,521 | |
| (–) Senior Exemption Loss: | – | $0 | |
| (–) Exemption Loss: | – | $0 | |
| | | -------------------------- | |
| (=) Taxable Value: | = | $1,007,521 | |
Taxing Jurisdiction
| Owner: | MARY E STRETCH & CYNTHIA K PHILLIPS | | |
| % Ownership: | 100.0000000000% | | |
| Total Value: | N/A | | |
| Tax Area: | 0110 - C-50F1E1H2 |
| CE | COUNTY CURRENT EXPENSE | N/A | N/A | N/A | N/A | | |
| CNTYDD | DEVELOPMENTAL DISABILITIES | N/A | N/A | N/A | N/A | | |
| CNTYVET | VETERANS RELIEF | N/A | N/A | N/A | N/A | | |
| MENTAL | MENTAL HEALTH | N/A | N/A | N/A | N/A | | |
| PTGEN | CITY OF PT GENERAL | N/A | N/A | N/A | N/A | | |
| PTLLL | CITY OF PT - LIBRARY LID LIFT | N/A | N/A | N/A | N/A | | |
| PTMVBOND | CITY OF PT MV BOND | N/A | N/A | N/A | N/A | | |
| HOSP2CASH | HOSP DIST #2 GENERAL | N/A | N/A | N/A | N/A | | |
| SCH50BOND | SCHOOL DIST #50 BOND 2016 | N/A | N/A | N/A | N/A | | |
| SCH50CP | SCHOOL DIST #50 CAP PROJ | N/A | N/A | N/A | N/A | | |
| SCH50MO | SCHOOL DIST #50 EP & O | N/A | N/A | N/A | N/A | | |
| CONSERVE | CONSERVATION FUTURES | N/A | N/A | N/A | N/A | | |
| EMS1 | FIRE DIST #1 EMS | N/A | N/A | N/A | N/A | | |
| FD1 | FIRE DIST #1 GENERAL | N/A | N/A | N/A | N/A | | |
| PORTPT | PORT OF PT GENERAL | N/A | N/A | N/A | N/A | | |
| PORTPTIDD | PORT OF PT IDD 2019 | N/A | N/A | N/A | N/A | | |
| PUD1 | PUD #1 GENERAL | N/A | N/A | N/A | N/A | | |
| STATE | STATE SCHOOL PART 1 | N/A | N/A | N/A | N/A | | |
| STATE2 | STATE SCHOOL PART 2 | N/A | N/A | N/A | N/A | | |
| | Total Tax Rate: | N/A | | | | | |
| | | | | Taxes w/Current Exemptions: | N/A | | |
| | | | | Taxes w/o Exemptions: | N/A | | |
Improvement / Building
| Improvement #1: | Residential Bldg | State Code: | 11 | 1120.0 sqft | Value: | $762,521 |
| Bathrooms (#): | 2 (FULL) | Bedrooms (#): | 2 | | Exterior Wall: | MASON | Floor Construction: | FRAME | | Foundation: | CONPR | Heating/Cooling: | OTHER | | Roof Cover: | METAL |   |   |
|
| | Type | Description | Class CD | Sub Class CD | Year Built | Area |
| | MA | Main Area | 6 | 1S | 2010 | 1120.0 |
| | HWPOR | House Wood Porch | 5 | 1S | 2010 | 100.6 |
| | HDECK | House Deck | 5 | 1S | 2010 | 392.0 |
| | GATT | House Attached Garage | 5 | 1S | 2010 | 631.1 |
| | BSMTF | House basement finished | 5 | 1S | 2010 | 520.0 |
| | SOLAR | Solar Panel | 5 | 1S | 2010 | 0.0 |
Sketch
Property Image
Land
| 1 | 6210-1145L | Standard Lot (Good) | 0.0000 | 0.00 | 0.00 | 0.00 | 1.00 | $245,000 | $0 |
Roll Value History
| 2025 | N/A | N/A | N/A | N/A | N/A |
| 2024 | $735,785 | $241,500 | $0 | $977,285 | $977,285 |
| 2023 | $703,794 | $225,000 | $0 | $928,794 | $928,794 |
| 2022 | $703,794 | $220,000 | $0 | $923,794 | $923,794 |
| 2021 | $567,975 | $81,750 | $0 | $649,725 | $649,725 |
Deed and Sales History
| 1 | 10/04/2021 | SWD | Statutory Warranty Deed | DONALD E SMITH | MARY E STRETCH & CYNTHIA K PHILLIPS | | | $1,084,550.00 | 137804 | |
| 2 | 05/19/2009 | SWD | Statutory Warranty Deed | HENTHORN, MARK/BARBARA | SMITH, DONLAD/BARBARA | | | $65,000.00 | 112900 | 0 |
| 3 | 05/15/2007 | SWD | Statutory Warranty Deed | LASHER, BARBARA/DARLENE | HENTHORN, MARK/BARBARA | | | $395,000.00 | 109207 | 0 |
| 4 | 03/07/1995 | SWD | Statutory Warranty Deed | SMITH, RONALD THOMAS/TRUS | LASHER, VIVIAN E/TRUST | 0 | 0 | $182,000.00 | 76449 | 0 |
|   | |
Payout Agreement
| No payout information available.. |