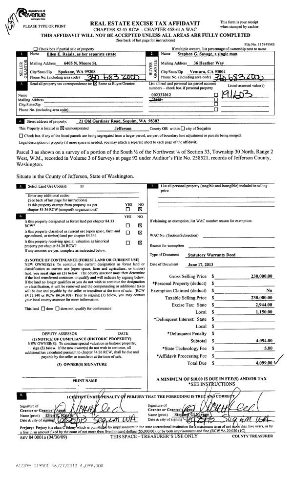
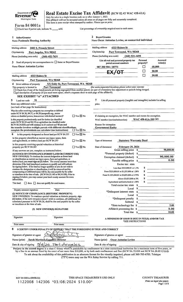
Property
Account |
| Property ID: | 28202 | Abbreviated Legal Description: | EISENBEIS ADDITION BLK 278 LOTS 5 & 6(ALL) |
| Parcel # / Geo ID: | 948327803 | Agent Code: | |
| Type: | Real | | |
| Tax Area: | 0110 - C-50F1E1H2 | Land Use Code | 11 |
| Open Space: | N | DFL | N |
| Historic Property: | N | Remodel Property: | N |
| Multi-Family Redevelopment: | N | | |
| Township: | 30N | Section: | 10 |
| Range: | 1W |
Location |
| Address: | 308 SHERMAN ST PORT TOWNSEND, WA 98368 | Mapsco: | 040/041 |
| Neighborhood: | EISENBEIS, OC HASTINGS & SUPP, PINKS LESS VICTORIAN VILLAGE | Map ID: | |
| Neighborhood CD: | 6210 |
Owner |
| Name: | NANCY J & JEFFREY C THOMPSON | Owner ID: | 93038 |
| Mailing Address: | 308 SHERMAN ST PORT TOWNSEND, WA 98368-3048 | % Ownership: | 100.0000000000% |
| | | Exemptions: | SNR/DSBL |
Pay Tax Due
There is currently No Amount Due on this property.
Taxes and Assessment Details
Property Tax Information as of
10/24/2025
Click on "Statement Details" to expand or collapse a tax statement.
* Please enter a valid date ** Please enter a valid date *
Statement Details |
| | TOTAL: | $0.00 | $0.00 | $0.00 | $0.00 | $0.00 | $0.00 |
|
| | $0.00 | $0.00 | $0.00 | $0.00 | $0.00 | $0.00 |
Values
| (+) Improvement Homesite Value: | + | $254,349 | |
| (+) Improvement Non-Homesite Value: | + | $0 | |
| (+) Land Homesite Value: | + | $187,500 | |
| (+) Land Non-Homesite Value: | + | $0 | |
| (+) Curr Use (HS): | + | $0 | $0 |
| (+) Curr Use (NHS): | + | $0 | $0 |
| | | -------------------------- | |
| (=) Market Value: | = | $441,849 | |
| (–) Productivity Loss: | – | $0 | |
| | | -------------------------- | |
| (=) Subtotal: | = | $441,849 | |
| (+) Senior Appraised Value: | + | $174,426 | |
| (+) Non-Senior Appraised Value: | + | $0 | |
| | | -------------------------- | |
| (=) Total Appraised Value: | = | $174,426 | |
| (–) Senior Exemption Loss: | – | $104,656 | |
| (–) Exemption Loss: | – | $0 | |
| | | -------------------------- | |
| (=) Taxable Value: | = | $69,770 | |
Taxing Jurisdiction
| Owner: | NANCY J & JEFFREY C THOMPSON | | |
| % Ownership: | 100.0000000000% | | |
| Total Value: | N/A | | |
| Tax Area: | 0110 - C-50F1E1H2 |
| CE | COUNTY CURRENT EXPENSE | N/A | N/A | N/A | N/A | | |
| CNTYDD | DEVELOPMENTAL DISABILITIES | N/A | N/A | N/A | N/A | | |
| CNTYVET | VETERANS RELIEF | N/A | N/A | N/A | N/A | | |
| MENTAL | MENTAL HEALTH | N/A | N/A | N/A | N/A | | |
| PTGEN | CITY OF PT GENERAL | N/A | N/A | N/A | N/A | | |
| PTLLL | CITY OF PT - LIBRARY LID LIFT | N/A | N/A | N/A | N/A | | |
| PTMVBOND | CITY OF PT MV BOND | N/A | N/A | N/A | N/A | | |
| HOSP2CASH | HOSP DIST #2 GENERAL | N/A | N/A | N/A | N/A | | |
| SCH50BOND | SCHOOL DIST #50 BOND 2016 | N/A | N/A | N/A | N/A | | |
| SCH50CP | SCHOOL DIST #50 CAP PROJ | N/A | N/A | N/A | N/A | | |
| SCH50MO | SCHOOL DIST #50 EP & O | N/A | N/A | N/A | N/A | | |
| CONSERVE | CONSERVATION FUTURES | N/A | N/A | N/A | N/A | | |
| EMS1 | FIRE DIST #1 EMS | N/A | N/A | N/A | N/A | | |
| FD1 | FIRE DIST #1 GENERAL | N/A | N/A | N/A | N/A | | |
| PORTPT | PORT OF PT GENERAL | N/A | N/A | N/A | N/A | | |
| PORTPTIDD | PORT OF PT IDD 2019 | N/A | N/A | N/A | N/A | | |
| PUD1 | PUD #1 GENERAL | N/A | N/A | N/A | N/A | | |
| STATE | STATE SCHOOL PART 1 | N/A | N/A | N/A | N/A | | |
| STATE2 | STATE SCHOOL PART 2 | N/A | N/A | N/A | N/A | | |
| | Total Tax Rate: | N/A | | | | | |
| | | | | Taxes w/Current Exemptions: | N/A | | |
| | | | | Taxes w/o Exemptions: | N/A | | |
Improvement / Building
| Improvement #1: | Residential Bldg | State Code: | 11 | 1744.0 sqft | Value: | $254,349 |
| Bathrooms (#): | 2 (FULL) | Bedrooms (#): | 3 | | Exterior Wall: | SI/ST | Floor Construction: | FRAME | | Foundation: | PO&BL | Heating/Cooling: | F/A | | Inside Verify: | YES-FIX | Roof Cover: | COMP |
|
| | Type | Description | Class CD | Sub Class CD | Year Built | Area |
| | MA | Main Area | 3+ | 15SF | 1935 | 1168.0 |
| | MA2 | Second Floor Main Area | 3+ | 15SF | 1935 | 576.0 |
| | HDECK | House Deck | 3 | 15SF | 1935 | 224.0 |
| | GDET | Detached Garage | 2 | 15SF | 1935 | 480.0 |
| | SHED | Shed (Table Not Dep) | 3 | 15SF | 1935 | 180.0 |
Sketch
Property Image
Land
| 1 | 6210-1185L | Standard Lot (No View) | 0.0000 | 0.00 | 0.00 | 0.00 | 1.00 | $135,000 | $0 |
| 2 | 6210-1185L | Standard Lot (No View) | 0.0000 | 0.00 | 0.00 | 0.00 | 1.00 | $52,500 | $0 |
Roll Value History
| 2025 | N/A | N/A | N/A | N/A | N/A |
| 2024 | $241,823 | $173,250 | $0 | $415,073 | $69,770 |
| 2023 | $231,309 | $160,000 | $0 | $391,309 | $69,770 |
| 2022 | $231,309 | $140,000 | $0 | $371,309 | $69,770 |
| 2021 | $197,700 | $87,000 | $0 | $284,700 | $69,770 |
Deed and Sales History
| 1 | 01/15/2015 | QCD | Quit Claim Deed | | | | | | 122560 | |
| 2 | 09/14/1998 | SWD | Statutory Warranty Deed | TRACY, RICHARD JOHN/GENIE | THOMPSON, NANCY J | 0 | 0 | $100,000.00 | 85282 | 0 |
| 3 | 08/25/1998 | QCD | Quit Claim Deed | THOMPSON, JEFFREY C | THOMPSON, NANCY J | 0 | 0 | $0.00 | 85283 | 0 |
Payout Agreement
| No payout information available.. |