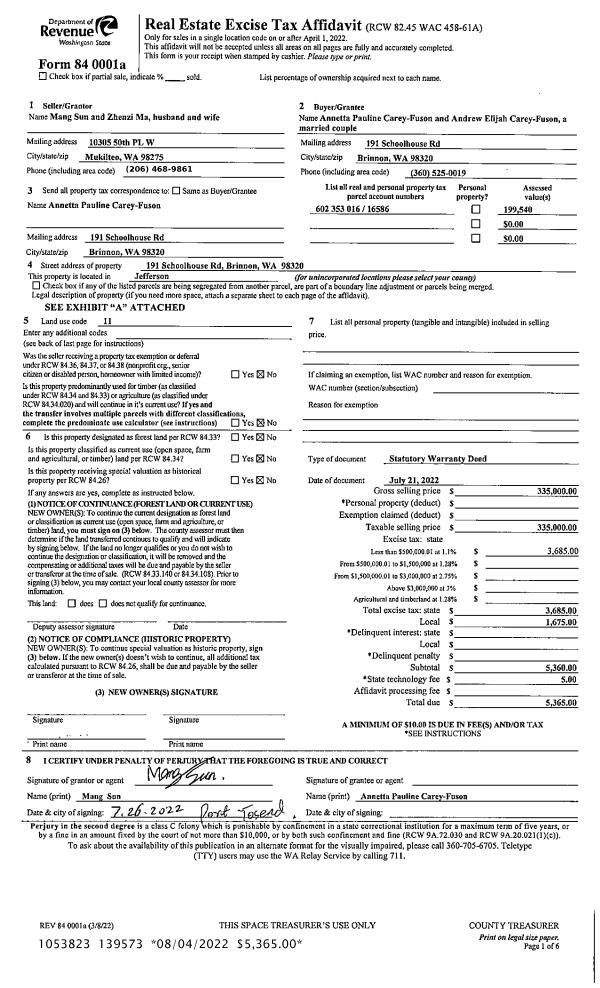
Property
Account |
| Property ID: | 28233 | Abbreviated Legal Description: | EISENBEIS ADDITION BLK 284 LOT 3 |
| Parcel # / Geo ID: | 948328408 | Agent Code: | |
| Type: | Real | | |
| Tax Area: | 0110 - C-50F1E1H2 | Land Use Code | 11 |
| Open Space: | N | DFL | N |
| Historic Property: | N | Remodel Property: | N |
| Multi-Family Redevelopment: | N | | |
| Township: | 30N | Section: | 10 |
| Range: | 1W |
Location |
| Address: | 317 THOMAS ST PORT TOWNSEND, WA 98368 | Mapsco: | 041/007 |
| Neighborhood: | SIMS WAY / SHERIDAN ST COMMERCIAL AREA TOP OF S CURVES | Map ID: | |
| Neighborhood CD: | 6210C |
Owner |
| Name: | SERGIO CAMAGONG | Owner ID: | 108211 |
| Mailing Address: | 7134 BEACON AVE SOUTH B SEATTLE, WA 98108 | % Ownership: | 100.0000000000% |
| | | Exemptions: | |
Pay Tax Due
There is currently No Amount Due on this property.
Taxes and Assessment Details
Property Tax Information as of
10/24/2025
Click on "Statement Details" to expand or collapse a tax statement.
* Please enter a valid date ** Please enter a valid date *
Statement Details |
| | TOTAL: | $0.00 | $0.00 | $0.00 | $0.00 | $0.00 | $0.00 |
|
| | $0.00 | $0.00 | $0.00 | $0.00 | $0.00 | $0.00 |
Values
| (+) Improvement Homesite Value: | + | $0 | |
| (+) Improvement Non-Homesite Value: | + | $193,745 | |
| (+) Land Homesite Value: | + | $0 | |
| (+) Land Non-Homesite Value: | + | $160,000 | |
| (+) Curr Use (HS): | + | $0 | $0 |
| (+) Curr Use (NHS): | + | $0 | $0 |
| | | -------------------------- | |
| (=) Market Value: | = | $353,745 | |
| (–) Productivity Loss: | – | $0 | |
| | | -------------------------- | |
| (=) Subtotal: | = | $353,745 | |
| (+) Senior Appraised Value: | + | $0 | |
| (+) Non-Senior Appraised Value: | + | $353,745 | |
| | | -------------------------- | |
| (=) Total Appraised Value: | = | $353,745 | |
| (–) Senior Exemption Loss: | – | $0 | |
| (–) Exemption Loss: | – | $0 | |
| | | -------------------------- | |
| (=) Taxable Value: | = | $353,745 | |
Taxing Jurisdiction
| Owner: | SERGIO CAMAGONG | | |
| % Ownership: | 100.0000000000% | | |
| Total Value: | N/A | | |
| Tax Area: | 0110 - C-50F1E1H2 |
| CE | COUNTY CURRENT EXPENSE | N/A | N/A | N/A | N/A | | |
| CNTYDD | DEVELOPMENTAL DISABILITIES | N/A | N/A | N/A | N/A | | |
| CNTYVET | VETERANS RELIEF | N/A | N/A | N/A | N/A | | |
| MENTAL | MENTAL HEALTH | N/A | N/A | N/A | N/A | | |
| PTGEN | CITY OF PT GENERAL | N/A | N/A | N/A | N/A | | |
| PTLLL | CITY OF PT - LIBRARY LID LIFT | N/A | N/A | N/A | N/A | | |
| PTMVBOND | CITY OF PT MV BOND | N/A | N/A | N/A | N/A | | |
| HOSP2CASH | HOSP DIST #2 GENERAL | N/A | N/A | N/A | N/A | | |
| SCH50BOND | SCHOOL DIST #50 BOND 2016 | N/A | N/A | N/A | N/A | | |
| SCH50CP | SCHOOL DIST #50 CAP PROJ | N/A | N/A | N/A | N/A | | |
| SCH50MO | SCHOOL DIST #50 EP & O | N/A | N/A | N/A | N/A | | |
| CONSERVE | CONSERVATION FUTURES | N/A | N/A | N/A | N/A | | |
| EMS1 | FIRE DIST #1 EMS | N/A | N/A | N/A | N/A | | |
| FD1 | FIRE DIST #1 GENERAL | N/A | N/A | N/A | N/A | | |
| PORTPT | PORT OF PT GENERAL | N/A | N/A | N/A | N/A | | |
| PORTPTIDD | PORT OF PT IDD 2019 | N/A | N/A | N/A | N/A | | |
| PUD1 | PUD #1 GENERAL | N/A | N/A | N/A | N/A | | |
| STATE | STATE SCHOOL PART 1 | N/A | N/A | N/A | N/A | | |
| STATE2 | STATE SCHOOL PART 2 | N/A | N/A | N/A | N/A | | |
| | Total Tax Rate: | N/A | | | | | |
| | | | | Taxes w/Current Exemptions: | N/A | | |
| | | | | Taxes w/o Exemptions: | N/A | | |
Improvement / Building
| Improvement #1: | Residential Bldg | State Code: | 11 | 1056.0 sqft | Value: | $193,745 |
| Bathrooms (#): | 1 (FULL) | Bathrooms (#): | 1 (HALF) | | Bedrooms (#): | 3 | Exterior Wall: | SI/ST | | Fireplace: | WD ST-GOOD | Floor Construction: | FRAME | | Foundation: | CONPR | Heating/Cooling: | ELBB | | Inside Verify: | NO | Roof Cover: | COMP |
|
| | Type | Description | Class CD | Sub Class CD | Year Built | Area |
| | MA | Main Area | 3+ | 1S | 1985 | 1056.0 |
| | HCPOR | House Concrete Porch | 3 | * | 1985 | 140.0 |
| | GATT | House Attached Garage | 3 | 1S | 1985 | 264.0 |
Sketch
Property Image
Land
| 1 | 6210-1175L | Standard Lot (Fair) | 0.1148 | 5000.00 | 0.00 | 0.00 | 1.00 | $160,000 | $0 |
Roll Value History
| 2025 | N/A | N/A | N/A | N/A | N/A |
| 2024 | $219,461 | $147,000 | $0 | $366,461 | $366,461 |
| 2023 | $209,920 | $135,000 | $0 | $344,920 | $344,920 |
| 2022 | $174,010 | $100,000 | $0 | $274,010 | $274,010 |
| 2021 | $160,625 | $78,480 | $0 | $239,105 | $239,105 |
Deed and Sales History
| 1 | 01/17/2023 | QCD | Quit Claim Deed | SUSAN CAMAGONG | SERGIO CAMAGONG | | | | 140387 | |
| 2 | 01/11/2023 | SWD | Statutory Warranty Deed | SUSAN MATTHEWS REVOC TRUST | SERGIO CAMAGONG | | | $350,000.00 | 140386 | |
| 3 | 06/27/2014 | QCD | Quit Claim Deed | SUSAN MATTHEWS | SUSAN MATTHEWS REVOC TRUST | | | | 121484 | |
| 4 | 10/11/2012 | SWD | Statutory Warranty Deed | PETREQUIN, BONNIE | MATTHEWS, SUSAN | | | $125,000.00 | 118311 | 0 |
| 5 | 10/11/2012 | QCD | Quit Claim Deed | KOMAROFF, CHARLES DAVID | MATTHEWS, SUSAN | | | $0.00 | 118312 | 0 |
| 6 | 04/05/2001 | SWD | Statutory Warranty Deed | AUSTIN, H GARY | PETREQUIN, BONNIE, SCHONEMAN, | 0 | 0 | $100,000.00 | 92029 | 0 |
| 7 | 07/27/1998 | QCD | Quit Claim Deed | AUSTIN, KATHY J | AUSTIN, H GARY | 0 | 0 | $0.00 | 85063 | 0 |
| 8 | 02/06/1992 | SWD | Statutory Warranty Deed | VOGELSANG, PETER WERNER/E | AUSTIN, H. GARY/KATHY J | 0 | 0 | $69,500.00 | 67719 | 0 |
Payout Agreement
| No payout information available.. |