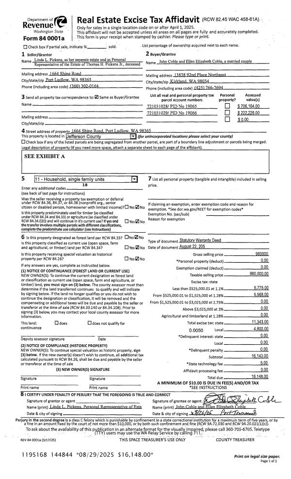
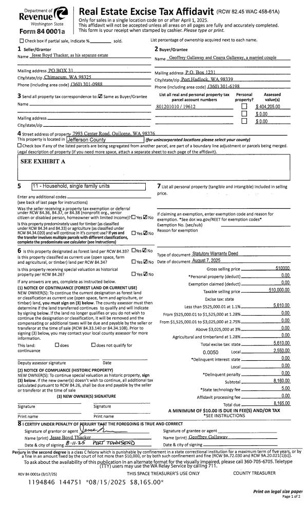
Property
Account |
| Property ID: | 28264 | Abbreviated Legal Description: | EISENBEIS ADDITION BLK 293 LOT 6 |
| Parcel # / Geo ID: | 948329303 | Agent Code: | |
| Type: | Real | | |
| Tax Area: | 0110 - C-50F1E1H2 | Land Use Code | 11 |
| Open Space: | N | DFL | N |
| Historic Property: | N | Remodel Property: | N |
| Multi-Family Redevelopment: | N | | |
| Township: | 30N | Section: | 10 |
| Range: | 1W |
Location |
| Address: | 210 GRANT ST PORT TOWNSEND, WA 98368 | Mapsco: | 042/010 |
| Neighborhood: | EISENBEIS, OC HASTINGS & SUPP, PINKS LESS VICTORIAN VILLAGE | Map ID: | |
| Neighborhood CD: | 6210 |
Owner |
| Name: | KEVIN T HINES | Owner ID: | 18194 |
| Mailing Address: | SHAWN A HINES 210 GRANT ST PORT TOWNSEND, WA 98368-3011 | % Ownership: | 100.0000000000% |
| | | Exemptions: | |
Pay Tax Due
There is currently No Amount Due on this property.
Taxes and Assessment Details
Property Tax Information as of
10/24/2025
Click on "Statement Details" to expand or collapse a tax statement.
* Please enter a valid date ** Please enter a valid date *
Statement Details |
| | TOTAL: | $0.00 | $0.00 | $0.00 | $0.00 | $0.00 | $0.00 |
|
| | $0.00 | $0.00 | $0.00 | $0.00 | $0.00 | $0.00 |
Values
| (+) Improvement Homesite Value: | + | $0 | |
| (+) Improvement Non-Homesite Value: | + | $363,615 | |
| (+) Land Homesite Value: | + | $0 | |
| (+) Land Non-Homesite Value: | + | $160,000 | |
| (+) Curr Use (HS): | + | $0 | $0 |
| (+) Curr Use (NHS): | + | $0 | $0 |
| | | -------------------------- | |
| (=) Market Value: | = | $523,615 | |
| (–) Productivity Loss: | – | $0 | |
| | | -------------------------- | |
| (=) Subtotal: | = | $523,615 | |
| (+) Senior Appraised Value: | + | $0 | |
| (+) Non-Senior Appraised Value: | + | $523,615 | |
| | | -------------------------- | |
| (=) Total Appraised Value: | = | $523,615 | |
| (–) Senior Exemption Loss: | – | $0 | |
| (–) Exemption Loss: | – | $0 | |
| | | -------------------------- | |
| (=) Taxable Value: | = | $523,615 | |
Taxing Jurisdiction
| Owner: | KEVIN T HINES | | |
| % Ownership: | 100.0000000000% | | |
| Total Value: | N/A | | |
| Tax Area: | 0110 - C-50F1E1H2 |
| CE | COUNTY CURRENT EXPENSE | N/A | N/A | N/A | N/A | | |
| CNTYDD | DEVELOPMENTAL DISABILITIES | N/A | N/A | N/A | N/A | | |
| CNTYVET | VETERANS RELIEF | N/A | N/A | N/A | N/A | | |
| MENTAL | MENTAL HEALTH | N/A | N/A | N/A | N/A | | |
| PTGEN | CITY OF PT GENERAL | N/A | N/A | N/A | N/A | | |
| PTLLL | CITY OF PT - LIBRARY LID LIFT | N/A | N/A | N/A | N/A | | |
| PTMVBOND | CITY OF PT MV BOND | N/A | N/A | N/A | N/A | | |
| HOSP2CASH | HOSP DIST #2 GENERAL | N/A | N/A | N/A | N/A | | |
| SCH50BOND | SCHOOL DIST #50 BOND 2016 | N/A | N/A | N/A | N/A | | |
| SCH50CP | SCHOOL DIST #50 CAP PROJ | N/A | N/A | N/A | N/A | | |
| SCH50MO | SCHOOL DIST #50 EP & O | N/A | N/A | N/A | N/A | | |
| CONSERVE | CONSERVATION FUTURES | N/A | N/A | N/A | N/A | | |
| EMS1 | FIRE DIST #1 EMS | N/A | N/A | N/A | N/A | | |
| FD1 | FIRE DIST #1 GENERAL | N/A | N/A | N/A | N/A | | |
| PORTPT | PORT OF PT GENERAL | N/A | N/A | N/A | N/A | | |
| PORTPTIDD | PORT OF PT IDD 2019 | N/A | N/A | N/A | N/A | | |
| PUD1 | PUD #1 GENERAL | N/A | N/A | N/A | N/A | | |
| STATE | STATE SCHOOL PART 1 | N/A | N/A | N/A | N/A | | |
| STATE2 | STATE SCHOOL PART 2 | N/A | N/A | N/A | N/A | | |
| | Total Tax Rate: | N/A | | | | | |
| | | | | Taxes w/Current Exemptions: | N/A | | |
| | | | | Taxes w/o Exemptions: | N/A | | |
Improvement / Building
| Improvement #1: | Residential Bldg | State Code: | 11 | 1844.0 sqft | Value: | $363,615 |
| Bathrooms (#): | 2 (FULL) | Bedrooms (#): | 3 | | Exterior Wall: | SI/ST | Floor Construction: | FRAME | | Foundation: | CONBL | Heating/Cooling: | ELBB | | Roof Cover: | COMP |   |   |
|
| | Type | Description | Class CD | Sub Class CD | Year Built | Area |
| | MA | Main Area | 4- | 15SF | 1935 | 1180.0 |
| | MA2 | Second Floor Main Area | 4- | 15SF | 1935 | 664.0 |
| | HWPOR | House Wood Porch | 4 | 15SF | 1935 | 16.0 |
| | HBAL | House Balcony | 4 | 15SF | 1935 | 32.0 |
| | HDECK | House Deck | 4 | 15SF | 1935 | 112.0 |
| | GDET | Detached Garage | 4 | 15SF | 1935 | 400.0 |
Sketch
Property Image
Land
| 1 | 6210-1175L | Standard Lot (Fair) | 0.0000 | 0.00 | 0.00 | 0.00 | 1.00 | $160,000 | $0 |
Roll Value History
| 2025 | N/A | N/A | N/A | N/A | N/A |
| 2024 | $348,226 | $147,000 | $0 | $495,226 | $495,226 |
| 2023 | $333,086 | $135,000 | $0 | $468,086 | $468,086 |
| 2022 | $333,086 | $130,000 | $0 | $463,086 | $463,086 |
| 2021 | $284,689 | $81,750 | $0 | $366,439 | $366,439 |
Deed and Sales History
| 1 | 08/25/2003 | SWD | Statutory Warranty Deed | GARVIN, MARK W/MARY ANNE | HINES, KEVIN/SHAWN | 0 | 0 | $260,000.00 | 98147 | 0 |
|   | |
| 2 | 11/05/2001 | SWD | Statutory Warranty Deed | O'CONNOR, FRAN L | GARVIN, MARK W/MARYANNE | 0 | 0 | $144,000.00 | 93456 | 0 |
|   | |
| 3 | 02/24/1997 | SWD | Statutory Warranty Deed | OTT, RICHARD D/GLORIA M | O'CONNOR, FRAN L | 0 | 0 | $94,500.00 | 81505 | 0 |
|   | |
Payout Agreement
| No payout information available.. |