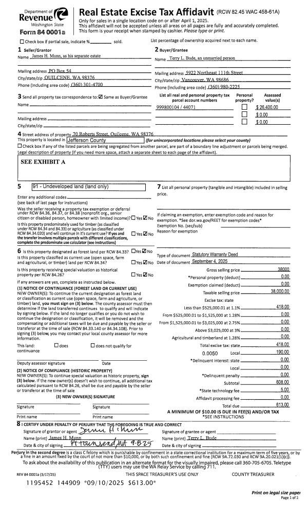
Property
Account |
| Property ID: | 28267 | Abbreviated Legal Description: | EISENBEIS ADDITION BLK 293 LOT 3 |
| Parcel # / Geo ID: | 948329306 | Agent Code: | |
| Type: | Real | | |
| Tax Area: | 0110 - C-50F1E1H2 | Land Use Code | 11 |
| Open Space: | N | DFL | N |
| Historic Property: | N | Remodel Property: | N |
| Multi-Family Redevelopment: | N | | |
| Township: | 30N | Section: | 10 |
| Range: | 1W |
Location |
| Address: | 209 SHERIDAN ST PORT TOWNSEND, WA 98368 | Mapsco: | 042/007 |
| Neighborhood: | EISENBEIS, OC HASTINGS & SUPP, PINKS LESS VICTORIAN VILLAGE | Map ID: | |
| Neighborhood CD: | 6210 |
Owner |
| Name: | ELIZABETH G PETERSON REV TRUST | Owner ID: | 112977 |
| Mailing Address: | ELIZABETH G PETERSON TRUSTEE 600 N MAIN AVE APT 202 SIOUX FALLS, SD 57104-5974 | % Ownership: | 100.0000000000% |
| | | Exemptions: | |
Pay Tax Due
There is currently No Amount Due on this property.
Taxes and Assessment Details
Property Tax Information as of
10/24/2025
Click on "Statement Details" to expand or collapse a tax statement.
* Please enter a valid date ** Please enter a valid date *
Statement Details |
| | TOTAL: | $0.00 | $0.00 | $0.00 | $0.00 | $0.00 | $0.00 |
|
| | $0.00 | $0.00 | $0.00 | $0.00 | $0.00 | $0.00 |
Values
| (+) Improvement Homesite Value: | + | $0 | |
| (+) Improvement Non-Homesite Value: | + | $423,031 | |
| (+) Land Homesite Value: | + | $0 | |
| (+) Land Non-Homesite Value: | + | $160,000 | |
| (+) Curr Use (HS): | + | $0 | $0 |
| (+) Curr Use (NHS): | + | $0 | $0 |
| | | -------------------------- | |
| (=) Market Value: | = | $583,031 | |
| (–) Productivity Loss: | – | $0 | |
| | | -------------------------- | |
| (=) Subtotal: | = | $583,031 | |
| (+) Senior Appraised Value: | + | $0 | |
| (+) Non-Senior Appraised Value: | + | $583,031 | |
| | | -------------------------- | |
| (=) Total Appraised Value: | = | $583,031 | |
| (–) Senior Exemption Loss: | – | $0 | |
| (–) Exemption Loss: | – | $0 | |
| | | -------------------------- | |
| (=) Taxable Value: | = | $583,031 | |
Taxing Jurisdiction
| Owner: | ELIZABETH G PETERSON REV TRUST | | |
| % Ownership: | 100.0000000000% | | |
| Total Value: | N/A | | |
| Tax Area: | 0110 - C-50F1E1H2 |
| CE | COUNTY CURRENT EXPENSE | N/A | N/A | N/A | N/A | | |
| CNTYDD | DEVELOPMENTAL DISABILITIES | N/A | N/A | N/A | N/A | | |
| CNTYVET | VETERANS RELIEF | N/A | N/A | N/A | N/A | | |
| MENTAL | MENTAL HEALTH | N/A | N/A | N/A | N/A | | |
| PTGEN | CITY OF PT GENERAL | N/A | N/A | N/A | N/A | | |
| PTLLL | CITY OF PT - LIBRARY LID LIFT | N/A | N/A | N/A | N/A | | |
| PTMVBOND | CITY OF PT MV BOND | N/A | N/A | N/A | N/A | | |
| HOSP2CASH | HOSP DIST #2 GENERAL | N/A | N/A | N/A | N/A | | |
| SCH50BOND | SCHOOL DIST #50 BOND 2016 | N/A | N/A | N/A | N/A | | |
| SCH50CP | SCHOOL DIST #50 CAP PROJ | N/A | N/A | N/A | N/A | | |
| SCH50MO | SCHOOL DIST #50 EP & O | N/A | N/A | N/A | N/A | | |
| CONSERVE | CONSERVATION FUTURES | N/A | N/A | N/A | N/A | | |
| EMS1 | FIRE DIST #1 EMS | N/A | N/A | N/A | N/A | | |
| FD1 | FIRE DIST #1 GENERAL | N/A | N/A | N/A | N/A | | |
| PORTPT | PORT OF PT GENERAL | N/A | N/A | N/A | N/A | | |
| PORTPTIDD | PORT OF PT IDD 2019 | N/A | N/A | N/A | N/A | | |
| PUD1 | PUD #1 GENERAL | N/A | N/A | N/A | N/A | | |
| STATE | STATE SCHOOL PART 1 | N/A | N/A | N/A | N/A | | |
| STATE2 | STATE SCHOOL PART 2 | N/A | N/A | N/A | N/A | | |
| | Total Tax Rate: | N/A | | | | | |
| | | | | Taxes w/Current Exemptions: | N/A | | |
| | | | | Taxes w/o Exemptions: | N/A | | |
Improvement / Building
| Improvement #1: | Residential Bldg | State Code: | 11 | 1524.0 sqft | Value: | $423,031 |
| Bathrooms (#): | 2 (FULL) | Bathrooms (#): | 1 (HALF) | | Bedrooms (#): | 3 | Exterior Wall: | SI/ST | | Fireplace: | PROPS-GOOD | Floor Construction: | FRAME | | Foundation: | CONPR | Heating/Cooling: | ELBB | | Roof Cover: | COMP |   |   |
|
| | Type | Description | Class CD | Sub Class CD | Year Built | Area |
| | MA | Main Area | 5- | 2S | 2017 | 828.0 |
| | MA2 | Second Floor Main Area | 5- | 2S | 2017 | 696.0 |
| | HWPOR | House Wood Porch | 5 | 2S | 2017 | 96.0 |
| | HDECK | House Deck | 5 | 2S | 2017 | 101.0 |
Sketch
Property Image
Land
| 1 | 6210-1175L | Standard Lot (Fair) | 0.0000 | 0.00 | 0.00 | 0.00 | 1.00 | $160,000 | $0 |
Roll Value History
| 2025 | N/A | N/A | N/A | N/A | N/A |
| 2024 | $420,463 | $147,000 | $0 | $567,463 | $567,463 |
| 2023 | $402,182 | $135,000 | $0 | $537,182 | $537,182 |
| 2022 | $402,182 | $130,000 | $0 | $532,182 | $532,182 |
| 2021 | $343,746 | $97,500 | $0 | $441,246 | $441,246 |
Deed and Sales History
| 1 | 06/17/2025 | QCD | Quit Claim Deed | ELIZABETH G PETERSON | ELIZABETH G PETERSON REV TRUST | | | | 144587 | |
| 2 | 08/11/2023 | DTH CERT | Death Certificate | JARED M BROCKWAY | | | | | 0 | 668255 |
| 3 | 02/22/2018 | SWD | Statutory Warranty Deed | SUSAN F PORTO | JARED BROCKWAY & ELIZABETH PETERSON | | | $503,000.00 | 129654 | |
|   | |
| 4 | 06/23/2016 | SWD | Statutory Warranty Deed | FRANCIS J PALUMBO | SUSAN F PORTO | | | $120,000.00 | 125714 | |
|   | |
| 5 | 03/05/1999 | SWD | Statutory Warranty Deed | HODGDON, KATHLEEN J | PALUMBO, FRANCIS J | 0 | 0 | $28,500.00 | 86453 | 0 |
| 6 | 06/29/1995 | QCD | Quit Claim Deed | HODGDON, GREGG A | HODGDON, KATHLEEN J | 0 | 0 | $0.00 | 77271 | 0 |
Payout Agreement
| No payout information available.. |