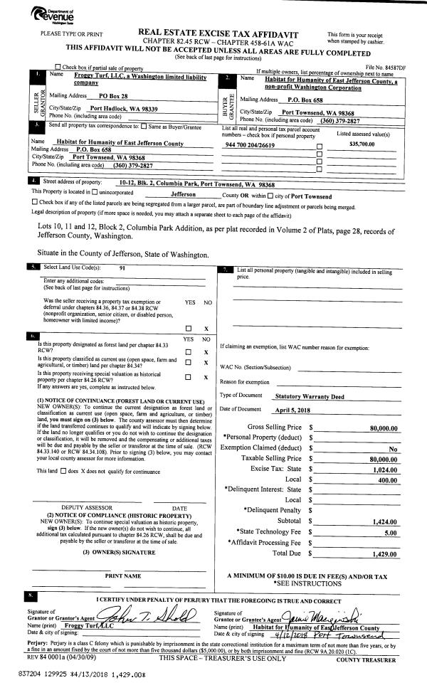
Property
Account |
| Property ID: | 28421 | Abbreviated Legal Description: | EISENBEIS BAY VIEW BLK 8, LOTS 1 THRU 6 & 9 THRU 12 (LS 90' STRIP W OF PIPELINE) W/PTN S/VAC STS & ALLEY ADJ |
| Parcel # / Geo ID: | 948600801 | Agent Code: | |
| Type: | Real | | |
| Tax Area: | 0111 - 1-50F1E1H2L1 | Land Use Code | 66 |
| Open Space: | N | DFL | N |
| Historic Property: | N | Remodel Property: | N |
| Multi-Family Redevelopment: | N | | |
| Township: | 30N | Section: | 16 |
| Range: | 1W |
Location |
| Address: | 203 FREDERICKS ST PORT TOWNSEND, WA 98368 | Mapsco: | 028/045 |
| Neighborhood: | SR20 / OTTO ST / GLEN COVE COMMERCIAL AREA NORTH | Map ID: | |
| Neighborhood CD: | 5350C |
Owner |
| Name: | CHRISTOPHER JOHN SCHNASE TRUST | Owner ID: | 77146 |
| Mailing Address: | CHRISTOPHER J SCHNASE TRUSTEE 203 FREDERICKS ST STE E PORT TOWNSEND, WA 98368-9742 | % Ownership: | 100.0000000000% |
| | | Exemptions: | |
Pay Tax Due
There is currently No Amount Due on this property.
Taxes and Assessment Details
Property Tax Information as of
10/24/2025
Click on "Statement Details" to expand or collapse a tax statement.
* Please enter a valid date ** Please enter a valid date *
Statement Details |
| | TOTAL: | $0.00 | $0.00 | $0.00 | $0.00 | $0.00 | $0.00 |
|
| | $0.00 | $0.00 | $0.00 | $0.00 | $0.00 | $0.00 |
Values
| (+) Improvement Homesite Value: | + | $0 | |
| (+) Improvement Non-Homesite Value: | + | $390,333 | |
| (+) Land Homesite Value: | + | $0 | |
| (+) Land Non-Homesite Value: | + | $180,125 | |
| (+) Curr Use (HS): | + | $0 | $0 |
| (+) Curr Use (NHS): | + | $0 | $0 |
| | | -------------------------- | |
| (=) Market Value: | = | $570,458 | |
| (–) Productivity Loss: | – | $0 | |
| | | -------------------------- | |
| (=) Subtotal: | = | $570,458 | |
| (+) Senior Appraised Value: | + | $0 | |
| (+) Non-Senior Appraised Value: | + | $570,458 | |
| | | -------------------------- | |
| (=) Total Appraised Value: | = | $570,458 | |
| (–) Senior Exemption Loss: | – | $0 | |
| (–) Exemption Loss: | – | $0 | |
| | | -------------------------- | |
| (=) Taxable Value: | = | $570,458 | |
Taxing Jurisdiction
| Owner: | CHRISTOPHER JOHN SCHNASE TRUST | | |
| % Ownership: | 100.0000000000% | | |
| Total Value: | N/A | | |
| Tax Area: | 0111 - 1-50F1E1H2L1 |
| CE | COUNTY CURRENT EXPENSE | N/A | N/A | N/A | N/A | | |
| CNTYDD | DEVELOPMENTAL DISABILITIES | N/A | N/A | N/A | N/A | | |
| CNTYVET | VETERANS RELIEF | N/A | N/A | N/A | N/A | | |
| MENTAL | MENTAL HEALTH | N/A | N/A | N/A | N/A | | |
| ROADS | COUNTY ROADS | N/A | N/A | N/A | N/A | | |
| ROADSCU | COUNTY ROADS TO CUR EXP | N/A | N/A | N/A | N/A | | |
| HOSP2CASH | HOSP DIST #2 GENERAL | N/A | N/A | N/A | N/A | | |
| SCH50BOND | SCHOOL DIST #50 BOND 2016 | N/A | N/A | N/A | N/A | | |
| SCH50CP | SCHOOL DIST #50 CAP PROJ | N/A | N/A | N/A | N/A | | |
| SCH50MO | SCHOOL DIST #50 EP & O | N/A | N/A | N/A | N/A | | |
| CONSERVE | CONSERVATION FUTURES | N/A | N/A | N/A | N/A | | |
| EMS1 | FIRE DIST #1 EMS | N/A | N/A | N/A | N/A | | |
| FD1 | FIRE DIST #1 GENERAL | N/A | N/A | N/A | N/A | | |
| LIB1 | LIBRARY DIST #1 GENERAL | N/A | N/A | N/A | N/A | | |
| PORTPT | PORT OF PT GENERAL | N/A | N/A | N/A | N/A | | |
| PORTPTIDD | PORT OF PT IDD 2019 | N/A | N/A | N/A | N/A | | |
| PUD1 | PUD #1 GENERAL | N/A | N/A | N/A | N/A | | |
| STATE | STATE SCHOOL PART 1 | N/A | N/A | N/A | N/A | | |
| STATE2 | STATE SCHOOL PART 2 | N/A | N/A | N/A | N/A | | |
| | Total Tax Rate: | N/A | | | | | |
| | | | | Taxes w/Current Exemptions: | N/A | | |
| | | | | Taxes w/o Exemptions: | N/A | | |
Improvement / Building
| Improvement #1: | Commercial/Industrial/Government Bldg | State Code: | 66 | 3990.0 sqft | Value: | $124,441 |
| Exterior Wall: | METAL | Floor Construction: | CONCR | | Foundation: | CONPR | Interior Finish: | UNFIN | | Roof Cover: | METAL |   |   |
|
| Improvement #2: | Commercial/Industrial/Government Bldg | State Code: | 66 | 3888.0 sqft | Value: | $155,555 |
| Exterior Wall: | METAL | Floor Construction: | CONCR | | Foundation: | CONPR | Interior Finish: | UNFIN | | Roof Cover: | METAL |   |   |
|
| Improvement #3: | Commercial/Industrial/Government Bldg | State Code: | 66 | 2480.0 sqft | Value: | $110,337 |
| Exterior Wall: | METAL | Floor Construction: | CONCR | | Foundation: | CONPR | Interior Finish: | UNFIN | | Roof Cover: | METAL |   |   |
|
Sketch
Property Image
Land
| 1 | 5350-6175L | Commercial/Light Industrial Lots Access/Pwr/Wtr | 1.1367 | 49515.00 | 0.00 | 0.00 | 1.00 | $169,000 | $0 |
| 2 | 5350-6175L | Commercial/Light Industrial Lots Access/Pwr/Wtr | 0.0000 | 0.00 | 0.00 | 0.00 | 1.00 | $11,125 | $0 |
Roll Value History
| 2025 | N/A | N/A | N/A | N/A | N/A |
| 2024 | $390,333 | $180,125 | $0 | $570,458 | $570,458 |
| 2023 | $386,342 | $175,125 | $0 | $561,467 | $561,467 |
| 2022 | $367,945 | $170,125 | $0 | $538,070 | $538,070 |
| 2021 | $324,117 | $162,900 | $0 | $487,017 | $487,017 |
Deed and Sales History
| 1 | 07/24/2018 | QCD | Quit Claim Deed | | | | | | 130880 | |
| 2 | 07/24/2018 | QCD | Quit Claim Deed | CHRISTOPHER J SCHNASE | CHRISTOPHER JOHN SCHNASE TRUST | | | | 130756 | |
Payout Agreement
| No payout information available.. |