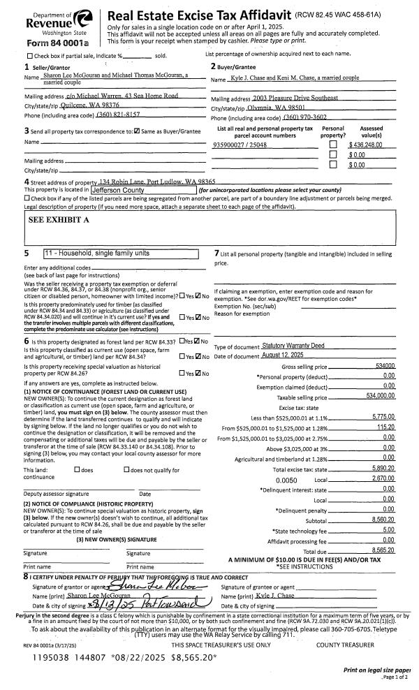
Property
Account |
| Property ID: | 28635 | Abbreviated Legal Description: | TRAILS END HOMESITES BLK 3 LOT 28 SUBJ/RESTRICTIVE COVENANT #481365 |
| Parcel # / Geo ID: | 950100327 | Agent Code: | |
| Type: | Real | | |
| Tax Area: | 0213 - 1-49F1E1H2L1 | Land Use Code | 11 |
| Open Space: | N | DFL | N |
| Historic Property: | N | Remodel Property: | N |
| Multi-Family Redevelopment: | N | | |
| Township: | 27N | Section: | 16 |
| Range: | 1E |
Location |
| Address: | 1431 THORNDYKE RD PORT LUDLOW, WA 98365 | Mapsco: | 139/046 |
| Neighborhood: | TRAILS END HOMESITES (ALL DIVISIONS) | Map ID: | |
| Neighborhood CD: | 3435 |
Owner |
| Name: | KATHLEEN M MCGOUGH | Owner ID: | 101710 |
| Mailing Address: | 1431 THORNDYKE RD PORT LUDLOW, WA 98365-8220 | % Ownership: | 100.0000000000% |
| | | Exemptions: | |
Pay Tax Due
There is currently No Amount Due on this property.
Taxes and Assessment Details
Property Tax Information as of
10/24/2025
Click on "Statement Details" to expand or collapse a tax statement.
* Please enter a valid date ** Please enter a valid date *
Statement Details |
| | TOTAL: | $0.00 | $0.00 | $0.00 | $0.00 | $0.00 | $0.00 |
|
| | $0.00 | $0.00 | $0.00 | $0.00 | $0.00 | $0.00 |
Values
| (+) Improvement Homesite Value: | + | $0 | |
| (+) Improvement Non-Homesite Value: | + | $202,033 | |
| (+) Land Homesite Value: | + | $0 | |
| (+) Land Non-Homesite Value: | + | $106,575 | |
| (+) Curr Use (HS): | + | $0 | $0 |
| (+) Curr Use (NHS): | + | $0 | $0 |
| | | -------------------------- | |
| (=) Market Value: | = | $308,608 | |
| (–) Productivity Loss: | – | $0 | |
| | | -------------------------- | |
| (=) Subtotal: | = | $308,608 | |
| (+) Senior Appraised Value: | + | $0 | |
| (+) Non-Senior Appraised Value: | + | $308,608 | |
| | | -------------------------- | |
| (=) Total Appraised Value: | = | $308,608 | |
| (–) Senior Exemption Loss: | – | $0 | |
| (–) Exemption Loss: | – | $0 | |
| | | -------------------------- | |
| (=) Taxable Value: | = | $308,608 | |
Taxing Jurisdiction
| Owner: | KATHLEEN M MCGOUGH | | |
| % Ownership: | 100.0000000000% | | |
| Total Value: | N/A | | |
| Tax Area: | 0213 - 1-49F1E1H2L1 |
| CE | COUNTY CURRENT EXPENSE | N/A | N/A | N/A | N/A | | |
| CNTYDD | DEVELOPMENTAL DISABILITIES | N/A | N/A | N/A | N/A | | |
| CNTYVET | VETERANS RELIEF | N/A | N/A | N/A | N/A | | |
| MENTAL | MENTAL HEALTH | N/A | N/A | N/A | N/A | | |
| ROADS | COUNTY ROADS | N/A | N/A | N/A | N/A | | |
| ROADSCU | COUNTY ROADS TO CUR EXP | N/A | N/A | N/A | N/A | | |
| HOSP2CASH | HOSP DIST #2 GENERAL | N/A | N/A | N/A | N/A | | |
| SCH49CP | SCHOOL DIST #49 CAP PROJ | N/A | N/A | N/A | N/A | | |
| SCH49MO | SCHOOL DIST #49 EP & O | N/A | N/A | N/A | N/A | | |
| CONSERVE | CONSERVATION FUTURES | N/A | N/A | N/A | N/A | | |
| EMS1 | FIRE DIST #1 EMS | N/A | N/A | N/A | N/A | | |
| FD1 | FIRE DIST #1 GENERAL | N/A | N/A | N/A | N/A | | |
| LIB1 | LIBRARY DIST #1 GENERAL | N/A | N/A | N/A | N/A | | |
| PORTPT | PORT OF PT GENERAL | N/A | N/A | N/A | N/A | | |
| PORTPTIDD | PORT OF PT IDD 2019 | N/A | N/A | N/A | N/A | | |
| PUD1 | PUD #1 GENERAL | N/A | N/A | N/A | N/A | | |
| STATE | STATE SCHOOL PART 1 | N/A | N/A | N/A | N/A | | |
| STATE2 | STATE SCHOOL PART 2 | N/A | N/A | N/A | N/A | | |
| | Total Tax Rate: | N/A | | | | | |
| | | | | Taxes w/Current Exemptions: | N/A | | |
| | | | | Taxes w/o Exemptions: | N/A | | |
Improvement / Building
| Improvement #1: | Manufactured Home | State Code: | 11M | 1505.0 sqft | Value: | $202,033 |
| Bathrooms (#): | 2 (FULL) | Bedrooms (#): | 2 | | Exterior Wall: | SI/ST | Floor Construction: | FRAME | | Foundation: | PO&BL | Heating/Cooling: | ELBB | | Inside Verify: | YES | Roof Cover: | COMP |
|
| | Type | Description | Class CD | Sub Class CD | Year Built | Area |
| | MA | Main Area | 4+ | MDBL | 2007 | 1505.0 |
| | MDECK | MH Deck | 4 | * | 2007 | 512.0 |
| | MDET | MH Detached Garage | 3 | MDBL | 2007 | 528.0 |
| | CARPTN | Carport W/O Floor | 4 | * | 2007 | 648.0 |
| | CONCD | Concrete Drive | 3 | * | 2020 | 1607.0 |
Sketch
Property Image
Land
| 1 | 3435-1145L | Good Wtr View Lots E of Thorndyke Rd | 0.0000 | 0.00 | 0.00 | 0.00 | 1.00 | $106,575 | $0 |
Roll Value History
| 2025 | N/A | N/A | N/A | N/A | N/A |
| 2024 | $192,849 | $101,500 | $0 | $294,349 | $294,349 |
| 2023 | $192,849 | $96,500 | $0 | $289,349 | $289,349 |
| 2022 | $192,849 | $91,500 | $0 | $284,349 | $284,349 |
| 2021 | $191,125 | $78,650 | $0 | $269,775 | $269,775 |
Deed and Sales History
| 1 | 09/25/2019 | SWD | Statutory Warranty Deed | DOUGLAS W MOYER | KATHLEEN M MCGOUGH | | | $345,000.00 | 133194 | |
|   | |
| 2 | 08/21/2003 | SWD | Statutory Warranty Deed | ELLIOTT, WILLIAM L/BETTE | MOYER, DOUGLAS W/MARGO A | 0 | 0 | $0.00 | 98132 | 0 |
Payout Agreement
| No payout information available.. |