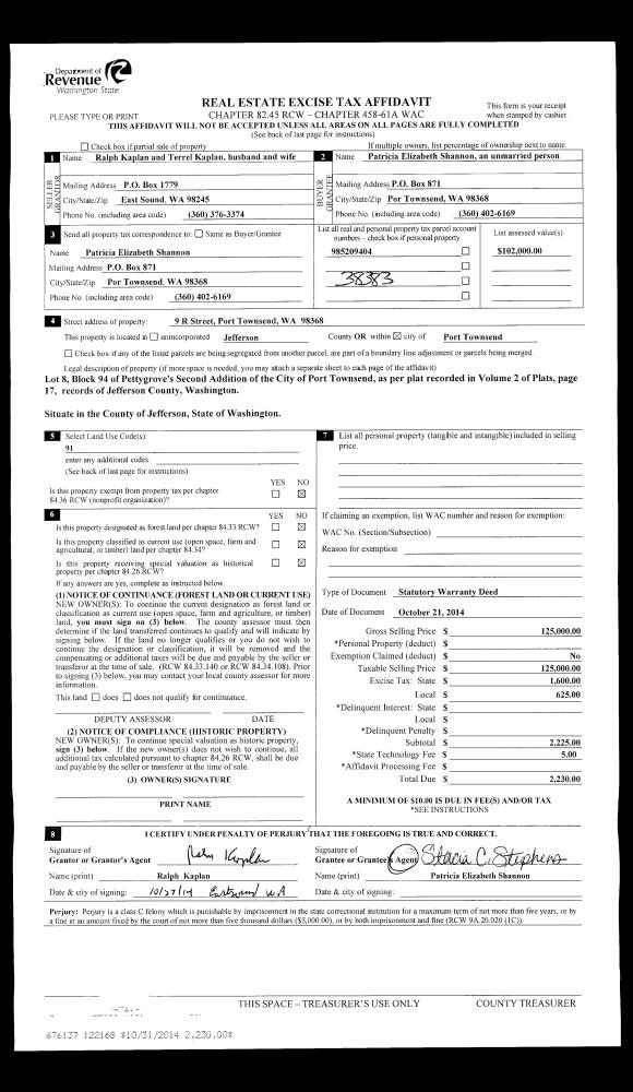
Property
Account |
| Property ID: | 28639 | Abbreviated Legal Description: | TRAILS END HOMESITES BLK 3, LOT 33(ENLG BY N1/2 LOT 32) |
| Parcel # / Geo ID: | 950100332 | Agent Code: | |
| Type: | Real | | |
| Tax Area: | 0213 - 1-49F1E1H2L1 | Land Use Code | 11 |
| Open Space: | N | DFL | N |
| Historic Property: | N | Remodel Property: | N |
| Multi-Family Redevelopment: | N | | |
| Township: | 27N | Section: | 16 |
| Range: | 1E |
Location |
| Address: | 1363 THORNDYKE RD PORT LUDLOW, WA 98365 | Mapsco: | 139/051 |
| Neighborhood: | TRAILS END HOMESITES (ALL DIVISIONS) | Map ID: | |
| Neighborhood CD: | 3435 |
Owner |
| Name: | JOSEPH VERESPEJ & JULIA WHELAN | Owner ID: | 98419 |
| Mailing Address: | 1363 THORNDKE RD PORT LUDLOW, WA 98365 | % Ownership: | 100.0000000000% |
| | | Exemptions: | |
Pay Tax Due
There is currently No Amount Due on this property.
Taxes and Assessment Details
Property Tax Information as of
10/24/2025
Click on "Statement Details" to expand or collapse a tax statement.
* Please enter a valid date ** Please enter a valid date *
Statement Details |
| | TOTAL: | $0.00 | $0.00 | $0.00 | $0.00 | $0.00 | $0.00 |
|
| | $0.00 | $0.00 | $0.00 | $0.00 | $0.00 | $0.00 |
Values
| (+) Improvement Homesite Value: | + | $0 | |
| (+) Improvement Non-Homesite Value: | + | $537,784 | |
| (+) Land Homesite Value: | + | $0 | |
| (+) Land Non-Homesite Value: | + | $118,125 | |
| (+) Curr Use (HS): | + | $0 | $0 |
| (+) Curr Use (NHS): | + | $0 | $0 |
| | | -------------------------- | |
| (=) Market Value: | = | $655,909 | |
| (–) Productivity Loss: | – | $0 | |
| | | -------------------------- | |
| (=) Subtotal: | = | $655,909 | |
| (+) Senior Appraised Value: | + | $0 | |
| (+) Non-Senior Appraised Value: | + | $655,909 | |
| | | -------------------------- | |
| (=) Total Appraised Value: | = | $655,909 | |
| (–) Senior Exemption Loss: | – | $0 | |
| (–) Exemption Loss: | – | $0 | |
| | | -------------------------- | |
| (=) Taxable Value: | = | $655,909 | |
Taxing Jurisdiction
| Owner: | JOSEPH VERESPEJ & JULIA WHELAN | | |
| % Ownership: | 100.0000000000% | | |
| Total Value: | N/A | | |
| Tax Area: | 0213 - 1-49F1E1H2L1 |
| CE | COUNTY CURRENT EXPENSE | N/A | N/A | N/A | N/A | | |
| CNTYDD | DEVELOPMENTAL DISABILITIES | N/A | N/A | N/A | N/A | | |
| CNTYVET | VETERANS RELIEF | N/A | N/A | N/A | N/A | | |
| MENTAL | MENTAL HEALTH | N/A | N/A | N/A | N/A | | |
| ROADS | COUNTY ROADS | N/A | N/A | N/A | N/A | | |
| ROADSCU | COUNTY ROADS TO CUR EXP | N/A | N/A | N/A | N/A | | |
| HOSP2CASH | HOSP DIST #2 GENERAL | N/A | N/A | N/A | N/A | | |
| SCH49CP | SCHOOL DIST #49 CAP PROJ | N/A | N/A | N/A | N/A | | |
| SCH49MO | SCHOOL DIST #49 EP & O | N/A | N/A | N/A | N/A | | |
| CONSERVE | CONSERVATION FUTURES | N/A | N/A | N/A | N/A | | |
| EMS1 | FIRE DIST #1 EMS | N/A | N/A | N/A | N/A | | |
| FD1 | FIRE DIST #1 GENERAL | N/A | N/A | N/A | N/A | | |
| LIB1 | LIBRARY DIST #1 GENERAL | N/A | N/A | N/A | N/A | | |
| PORTPT | PORT OF PT GENERAL | N/A | N/A | N/A | N/A | | |
| PORTPTIDD | PORT OF PT IDD 2019 | N/A | N/A | N/A | N/A | | |
| PUD1 | PUD #1 GENERAL | N/A | N/A | N/A | N/A | | |
| STATE | STATE SCHOOL PART 1 | N/A | N/A | N/A | N/A | | |
| STATE2 | STATE SCHOOL PART 2 | N/A | N/A | N/A | N/A | | |
| | Total Tax Rate: | N/A | | | | | |
| | | | | Taxes w/Current Exemptions: | N/A | | |
| | | | | Taxes w/o Exemptions: | N/A | | |
Improvement / Building
| Improvement #1: | Residential Bldg | State Code: | 11 | 1260.0 sqft | Value: | $480,455 |
| Bathrooms (#): | 2 (FULL) | Bathrooms (#): | 1 (HALF) | | Bedrooms (#): | 2 | Exterior Wall: | LOG | | Fireplace: | SIN 1-GOOD | Floor Construction: | FRAME | | Foundation: | CONPR | Heating/Cooling: | HPUMP | | Inside Verify: | NO | Roof Cover: | COMP |
|
| | Type | Description | Class CD | Sub Class CD | Year Built | Area |
| | MA | Main Area | 5+ | 15SF | 2015 | 1260.0 |
| | HLOFT | House Loft | 5 | 15SF | 2015 | 240.0 |
| | HWPOR | House Wood Porch | 5 | 15SF | 2015 | 40.0 |
| | HWPOR | House Wood Porch | 5 | 15SF | 2015 | 189.0 |
| Improvement #2: | Residential Bldg | State Code: | 11 | 240.0 sqft | Value: | $57,329 |
| Bathrooms (#): | 1 (FULL) | Exterior Wall: | PL/T1 | | Floor Construction: | CONCR | Foundation: | CONPR | | Heating/Cooling: | ELBB | Inside Verify: | NO | | Roof Cover: | COMP |   |   |
|
| | Type | Description | Class CD | Sub Class CD | Year Built | Area |
| | MA | Main Area | 2 | 1S | 1995 | 240.0 |
| | GATT | House Attached Garage | 3 | * | 1995 | 528.0 |
| | DECK | Deck (Table Not Dep) | 3 | * | 1995 | 352.0 |
Sketch
Property Image
Land
| 1 | 3435-1145L | Good Wtr View Lots E of Thorndyke Rd | 0.0000 | 0.00 | 0.00 | 0.00 | 1.00 | $118,125 | $0 |
Roll Value History
| 2025 | N/A | N/A | N/A | N/A | N/A |
| 2024 | $513,339 | $112,500 | $0 | $625,839 | $625,839 |
| 2023 | $513,339 | $107,500 | $0 | $620,839 | $620,839 |
| 2022 | $513,339 | $102,500 | $0 | $615,839 | $615,839 |
| 2021 | $384,382 | $87,750 | $0 | $472,132 | $472,132 |
Deed and Sales History
| 1 | 07/09/2018 | SWD | Statutory Warranty Deed | GERI MAXWELL | JOSEPH VERESPEJ & JULIA WHELAN | | | $485,000.00 | 130570 | |
|   | |
| 2 | 09/26/2016 | SWD | Statutory Warranty Deed | CARLYLE L TURNER TRSTEE | GERI MAXWELL | | | $300,000.00 | 126325 | |
|   | |
| 3 | 05/10/2012 | SWD | Statutory Warranty Deed | NELSON TRUSTEE, ARTHUR R/ | TURNER, CARLYLE & ELSIE/TRTEE | 0 | 0 | $0.00 | 117539 | 0 |
| 4 | 02/24/2012 | QCD | Quit Claim Deed | HILL, GREGORY & DAWN | NELSON, ARTHUR & CAROL TRUSTEE | 0 | 0 | $0.00 | 117259 | 0 |
| 5 | 09/12/2007 | SWD | Statutory Warranty Deed | NELSON, ARTHUR R & CAROL | HILL, GREGORY REID | 0 | 0 | $0.00 | 110053 | 0 |
| 6 | 09/16/1993 | SWD | Statutory Warranty Deed | SHULTZ, DONALD O | NELSON, ARTHUR R/CAROL H | 0 | 0 | $0.00 | 72249 | 0 |
| 7 | 08/26/1993 | BLA | Boundary Line Adjustment | SHULTZ, DONALD O | SHULTZ, DONALD O | 0 | 0 | $0.00 | 72215 | 0 |
Payout Agreement
| No payout information available.. |