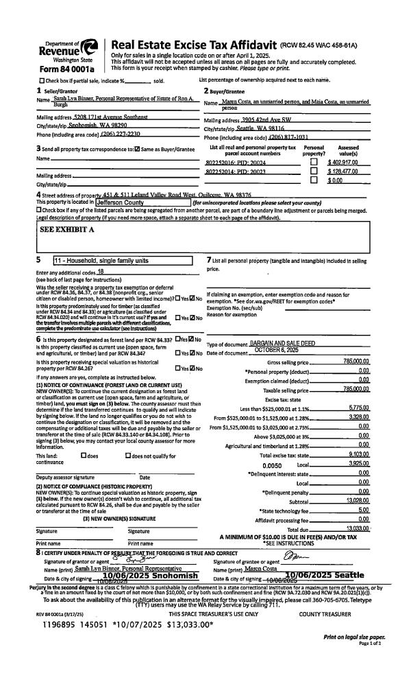
Property
Account |
| Property ID: | 28747 | Abbreviated Legal Description: | TRAILS END 1ST ADDITION BLK 9, LOT 9(REVISED)W/TL TAX A-50 ADJ SURVEY VOL 16/PAGE 109 |
| Parcel # / Geo ID: | 950100916 | Agent Code: | |
| Type: | Real | | |
| Tax Area: | 0213 - 1-49F1E1H2L1 | Land Use Code | 11 |
| Open Space: | N | DFL | N |
| Historic Property: | N | Remodel Property: | N |
| Multi-Family Redevelopment: | N | | |
| Township: | 27N | Section: | 16 |
| Range: | 1E |
Location |
| Address: | 3052 SOUTH POINT RD PORT LUDLOW, WA 98365 | Mapsco: | 141/060 |
| Neighborhood: | TRAILS END HOMESITES (ALL DIVISIONS) | Map ID: | |
| Neighborhood CD: | 3435 |
Owner |
| Name: | SHANNON B QUEK & MARK D LO | Owner ID: | 99198 |
| Mailing Address: | 6048 2ND AVE NW SEATTLE, WA 98107-2019 | % Ownership: | 100.0000000000% |
| | | Exemptions: | |
Pay Tax Due
There is currently No Amount Due on this property.
Taxes and Assessment Details
Property Tax Information as of
10/24/2025
Click on "Statement Details" to expand or collapse a tax statement.
* Please enter a valid date ** Please enter a valid date *
Statement Details |
| | TOTAL: | $0.00 | $0.00 | $0.00 | $0.00 | $0.00 | $0.00 |
|
| | $0.00 | $0.00 | $0.00 | $0.00 | $0.00 | $0.00 |
Values
| (+) Improvement Homesite Value: | + | $0 | |
| (+) Improvement Non-Homesite Value: | + | $833,785 | |
| (+) Land Homesite Value: | + | $0 | |
| (+) Land Non-Homesite Value: | + | $375,218 | |
| (+) Curr Use (HS): | + | $0 | $0 |
| (+) Curr Use (NHS): | + | $0 | $0 |
| | | -------------------------- | |
| (=) Market Value: | = | $1,209,003 | |
| (–) Productivity Loss: | – | $0 | |
| | | -------------------------- | |
| (=) Subtotal: | = | $1,209,003 | |
| (+) Senior Appraised Value: | + | $0 | |
| (+) Non-Senior Appraised Value: | + | $1,209,003 | |
| | | -------------------------- | |
| (=) Total Appraised Value: | = | $1,209,003 | |
| (–) Senior Exemption Loss: | – | $0 | |
| (–) Exemption Loss: | – | $0 | |
| | | -------------------------- | |
| (=) Taxable Value: | = | $1,209,003 | |
Taxing Jurisdiction
| Owner: | SHANNON B QUEK & MARK D LO | | |
| % Ownership: | 100.0000000000% | | |
| Total Value: | N/A | | |
| Tax Area: | 0213 - 1-49F1E1H2L1 |
| CE | COUNTY CURRENT EXPENSE | N/A | N/A | N/A | N/A | | |
| CNTYDD | DEVELOPMENTAL DISABILITIES | N/A | N/A | N/A | N/A | | |
| CNTYVET | VETERANS RELIEF | N/A | N/A | N/A | N/A | | |
| MENTAL | MENTAL HEALTH | N/A | N/A | N/A | N/A | | |
| ROADS | COUNTY ROADS | N/A | N/A | N/A | N/A | | |
| ROADSCU | COUNTY ROADS TO CUR EXP | N/A | N/A | N/A | N/A | | |
| HOSP2CASH | HOSP DIST #2 GENERAL | N/A | N/A | N/A | N/A | | |
| SCH49CP | SCHOOL DIST #49 CAP PROJ | N/A | N/A | N/A | N/A | | |
| SCH49MO | SCHOOL DIST #49 EP & O | N/A | N/A | N/A | N/A | | |
| CONSERVE | CONSERVATION FUTURES | N/A | N/A | N/A | N/A | | |
| EMS1 | FIRE DIST #1 EMS | N/A | N/A | N/A | N/A | | |
| FD1 | FIRE DIST #1 GENERAL | N/A | N/A | N/A | N/A | | |
| LIB1 | LIBRARY DIST #1 GENERAL | N/A | N/A | N/A | N/A | | |
| PORTPT | PORT OF PT GENERAL | N/A | N/A | N/A | N/A | | |
| PORTPTIDD | PORT OF PT IDD 2019 | N/A | N/A | N/A | N/A | | |
| PUD1 | PUD #1 GENERAL | N/A | N/A | N/A | N/A | | |
| STATE | STATE SCHOOL PART 1 | N/A | N/A | N/A | N/A | | |
| STATE2 | STATE SCHOOL PART 2 | N/A | N/A | N/A | N/A | | |
| | Total Tax Rate: | N/A | | | | | |
| | | | | Taxes w/Current Exemptions: | N/A | | |
| | | | | Taxes w/o Exemptions: | N/A | | |
Improvement / Building
| Improvement #1: | Residential Bldg | State Code: | 11 | 2953.0 sqft | Value: | $833,785 |
| Bathrooms (#): | 2 (FULL) | Bathrooms (#): | 1 (HALF) | | Bedrooms (#): | 3 | Exterior Wall: | SI/ST | | Fireplace: | SIN 2-GOOD | Floor Construction: | FRAME | | Foundation: | CONPR | Heating/Cooling: | HPUMP | | Inside Verify: | NO | Roof Cover: | COMP |
|
| | Type | Description | Class CD | Sub Class CD | Year Built | Area |
| | MA | Main Area | 5+ | 2S | 1997 | 1688.0 |
| | MA2 | Second Floor Main Area | 5+ | 2S | 1997 | 1265.0 |
| | HBAL | House Balcony | 5 | * | 1997 | 102.0 |
| | HCPOR | House Concrete Porch | 5 | * | 1997 | 77.0 |
| | HDECK | House Deck | 5 | * | 1997 | 253.0 |
| | GDET | Detached Garage | 5 | 2S | 1997 | 864.0 |
| | CONCD | Concrete Drive | 5 | * | 1997 | 1450.0 |
Sketch
Property Image
Land
| 1 | 3435-1113L | Wtrfrt Res. Lots/Sites in Trails End | 0.0000 | 0.00 | 0.00 | 0.00 | 1.00 | $372,750 | $0 |
| 2 | 9301F | Tidelands | 0.0000 | 0.00 | 0.00 | 0.00 | 0.00 | $2,468 | $0 |
Roll Value History
| 2025 | N/A | N/A | N/A | N/A | N/A |
| 2024 | $795,885 | $357,350 | $0 | $1,153,235 | $1,153,235 |
| 2023 | $795,885 | $352,350 | $0 | $1,148,235 | $1,148,235 |
| 2022 | $795,885 | $347,350 | $0 | $1,143,235 | $1,143,235 |
| 2021 | $641,489 | $322,569 | $0 | $964,058 | $964,058 |
Deed and Sales History
| 1 | 05/09/2018 | SWD | Statutory Warranty Deed | ERIC L COOPER | SHANNON B QUEK & MARK D LO | | | $1,044,000.00 | 130130 | |
| 2 | 01/09/2003 | SWD | Statutory Warranty Deed | ROSEN, ROBERT/PAEWNIRINTH | COOPER, ERIC L/KELLE KITCHEL- | 0 | 0 | $460,000.00 | 96394 | 0 |
| 3 | 04/05/2000 | SWD | Statutory Warranty Deed | PEDERSON, WALTER H/PEGGY | ROSEN, ROBERT L/PAEWNIRINTHARA | 0 | 0 | $425,000.00 | 89346 | 0 |
| 4 | 11/15/1996 | QCD | Quit Claim Deed | BUCHMANN, RAY/HARRIETTE | PEDERSON, WALTER H | 0 | 0 | $0.00 | 80818 | 0 |
| 5 | 10/31/1996 | QCD | Quit Claim Deed | PEDERSON, WALTER H/ET AL | BUCHMANN, RAY/HARRIETTE | 0 | 0 | $0.00 | 80701 | 0 |
Payout Agreement
| No payout information available.. |