Property
Account |
| Property ID: | 28769 | Abbreviated Legal Description: | TRAIL'S END 2ND ADD BLK 12 LOT 16 |
| Parcel # / Geo ID: | 950101217 | Agent Code: | |
| Type: | Real | | |
| Tax Area: | 0213 - 1-49F1E1H2L1 | Land Use Code | 18 |
| Open Space: | N | DFL | N |
| Historic Property: | N | Remodel Property: | N |
| Multi-Family Redevelopment: | N | | |
| Township: | 27N | Section: | 16 |
| Range: | 1E |
Location |
| Address: | 126 DICKEY ST PORT LUDLOW, WA 98365 | Mapsco: | 142/014 |
| Neighborhood: | TRAILS END HOMESITES (ALL DIVISIONS) | Map ID: | |
| Neighborhood CD: | 3435 |
Owner |
| Name: | STEPHEN R BONNELL & MELISSA C YADEN | Owner ID: | 99754 |
| Mailing Address: | PO BOX 693 CHIMACUM, WA 98325-0693 | % Ownership: | 100.0000000000% |
| | | Exemptions: | |
Pay Tax Due
There is currently No Amount Due on this property.
Taxes and Assessment Details
Property Tax Information as of
10/24/2025
Click on "Statement Details" to expand or collapse a tax statement.
* Please enter a valid date ** Please enter a valid date *
Statement Details |
| | TOTAL: | $0.00 | $0.00 | $0.00 | $0.00 | $0.00 | $0.00 |
|
| | $0.00 | $0.00 | $0.00 | $0.00 | $0.00 | $0.00 |
Values
| (+) Improvement Homesite Value: | + | $0 | |
| (+) Improvement Non-Homesite Value: | + | $39,844 | |
| (+) Land Homesite Value: | + | $0 | |
| (+) Land Non-Homesite Value: | + | $89,775 | |
| (+) Curr Use (HS): | + | $0 | $0 |
| (+) Curr Use (NHS): | + | $0 | $0 |
| | | -------------------------- | |
| (=) Market Value: | = | $129,619 | |
| (–) Productivity Loss: | – | $0 | |
| | | -------------------------- | |
| (=) Subtotal: | = | $129,619 | |
| (+) Senior Appraised Value: | + | $0 | |
| (+) Non-Senior Appraised Value: | + | $129,619 | |
| | | -------------------------- | |
| (=) Total Appraised Value: | = | $129,619 | |
| (–) Senior Exemption Loss: | – | $0 | |
| (–) Exemption Loss: | – | $0 | |
| | | -------------------------- | |
| (=) Taxable Value: | = | $129,619 | |
Taxing Jurisdiction
| Owner: | STEPHEN R BONNELL & MELISSA C YADEN | | |
| % Ownership: | 100.0000000000% | | |
| Total Value: | N/A | | |
| Tax Area: | 0213 - 1-49F1E1H2L1 |
| CE | COUNTY CURRENT EXPENSE | N/A | N/A | N/A | N/A | | |
| CNTYDD | DEVELOPMENTAL DISABILITIES | N/A | N/A | N/A | N/A | | |
| CNTYVET | VETERANS RELIEF | N/A | N/A | N/A | N/A | | |
| MENTAL | MENTAL HEALTH | N/A | N/A | N/A | N/A | | |
| ROADS | COUNTY ROADS | N/A | N/A | N/A | N/A | | |
| ROADSCU | COUNTY ROADS TO CUR EXP | N/A | N/A | N/A | N/A | | |
| HOSP2CASH | HOSP DIST #2 GENERAL | N/A | N/A | N/A | N/A | | |
| SCH49CP | SCHOOL DIST #49 CAP PROJ | N/A | N/A | N/A | N/A | | |
| SCH49MO | SCHOOL DIST #49 EP & O | N/A | N/A | N/A | N/A | | |
| CONSERVE | CONSERVATION FUTURES | N/A | N/A | N/A | N/A | | |
| EMS1 | FIRE DIST #1 EMS | N/A | N/A | N/A | N/A | | |
| FD1 | FIRE DIST #1 GENERAL | N/A | N/A | N/A | N/A | | |
| LIB1 | LIBRARY DIST #1 GENERAL | N/A | N/A | N/A | N/A | | |
| PORTPT | PORT OF PT GENERAL | N/A | N/A | N/A | N/A | | |
| PORTPTIDD | PORT OF PT IDD 2019 | N/A | N/A | N/A | N/A | | |
| PUD1 | PUD #1 GENERAL | N/A | N/A | N/A | N/A | | |
| STATE | STATE SCHOOL PART 1 | N/A | N/A | N/A | N/A | | |
| STATE2 | STATE SCHOOL PART 2 | N/A | N/A | N/A | N/A | | |
| | Total Tax Rate: | N/A | | | | | |
| | | | | Taxes w/Current Exemptions: | N/A | | |
| | | | | Taxes w/o Exemptions: | N/A | | |
Improvement / Building
| Improvement #1: | Residential Bldg | State Code: | 11M | 224.0 sqft | Value: | $39,844 |
| Bathrooms (#): | 1 (FULL) | Bedrooms (#): | 1 | | Exterior Wall: | SI/ST | Floor Construction: | FRAME | | Foundation: | 01BASE | Heating/Cooling: | ELBB | | Roof Cover: | COMP |   |   |
|
| | Type | Description | Class CD | Sub Class CD | Year Built | Area |
| | MA | Main Area | 3 | MFH | 2019 | 224.0 |
| | SHED | Shed (Table Not Dep) | 3 | * | 2019 | 209.0 |
Sketch
Property Image
Land
| 1 | 3435-1145L | Good Wtr View Lots E of Thorndyke Rd | 0.0000 | 0.00 | 0.00 | 0.00 | 1.00 | $89,775 | $0 |
Roll Value History
| 2025 | N/A | N/A | N/A | N/A | N/A |
| 2024 | $38,033 | $85,500 | $0 | $123,533 | $123,533 |
| 2023 | $38,033 | $80,500 | $0 | $118,533 | $118,533 |
| 2022 | $38,033 | $75,500 | $0 | $113,533 | $113,533 |
| 2021 | $0 | $53,300 | $0 | $53,300 | $53,300 |
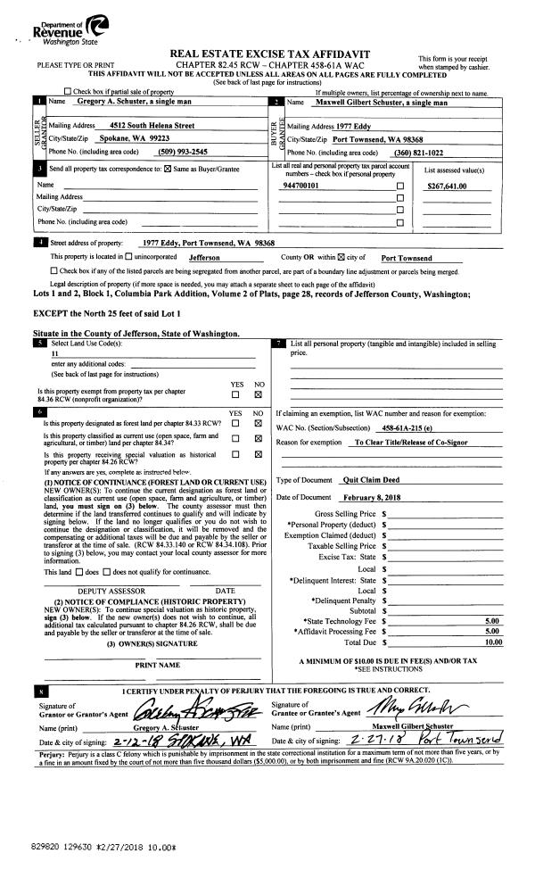
Deed and Sales History
| 1 | 08/09/2018 | SWD | Statutory Warranty Deed | TYLER FUNK | STEPHEN R BONNELL & MELISSA C YADEN | | | $60,000.00 | 130807 | |
| 2 | 03/23/2018 | SWD | Statutory Warranty Deed | RAMONA J CLARK TRUSTEE | TYLER FUNK | | | $50,000.00 | 129816 | |
| 3 | 10/07/2003 | QCD | Quit Claim Deed | CLARK, RAMONA J | CLARK, RAMONA J/TRUSTEE | 0 | 0 | $0.00 | 98473 | 0 |
Payout Agreement
| No payout information available.. |