Property
Account |
| Property ID: | 28842 | Abbreviated Legal Description: | TRAIL'S END 3RD ADD BLK 6 LOT 16 (S 1/2) |
| Parcel # / Geo ID: | 950200620 | Agent Code: | |
| Type: | Real | | |
| Tax Area: | 0213 - 1-49F1E1H2L1 | Land Use Code | 18 |
| Open Space: | N | DFL | N |
| Historic Property: | N | Remodel Property: | N |
| Multi-Family Redevelopment: | N | | |
| Township: | 27N | Section: | 16 |
| Range: | 1E |
Location |
| Address: | 421 S BEACH DR PORT LUDLOW, WA 98365 | Mapsco: | 143/020 |
| Neighborhood: | TRAILS END HOMESITES (ALL DIVISIONS) | Map ID: | |
| Neighborhood CD: | 3435 |
Owner |
| Name: | JAMES R DETHERAGE | Owner ID: | 110820 |
| Mailing Address: | SUSAN J DARBY TERESA E GOODE 421 S BEACH DR PORT LUDLOW, WA 98365-8296 | % Ownership: | 100.0000000000% |
| | | Exemptions: | |
Pay Tax Due
There is currently No Amount Due on this property.
Taxes and Assessment Details
Property Tax Information as of
10/24/2025
Click on "Statement Details" to expand or collapse a tax statement.
* Please enter a valid date ** Please enter a valid date *
Statement Details |
| | TOTAL: | $0.00 | $0.00 | $0.00 | $0.00 | $0.00 | $0.00 |
|
| | $0.00 | $0.00 | $0.00 | $0.00 | $0.00 | $0.00 |
Values
| (+) Improvement Homesite Value: | + | $0 | |
| (+) Improvement Non-Homesite Value: | + | $46,518 | |
| (+) Land Homesite Value: | + | $0 | |
| (+) Land Non-Homesite Value: | + | $43,313 | |
| (+) Curr Use (HS): | + | $0 | $0 |
| (+) Curr Use (NHS): | + | $0 | $0 |
| | | -------------------------- | |
| (=) Market Value: | = | $89,831 | |
| (–) Productivity Loss: | – | $0 | |
| | | -------------------------- | |
| (=) Subtotal: | = | $89,831 | |
| (+) Senior Appraised Value: | + | $0 | |
| (+) Non-Senior Appraised Value: | + | $89,831 | |
| | | -------------------------- | |
| (=) Total Appraised Value: | = | $89,831 | |
| (–) Senior Exemption Loss: | – | $0 | |
| (–) Exemption Loss: | – | $0 | |
| | | -------------------------- | |
| (=) Taxable Value: | = | $89,831 | |
Taxing Jurisdiction
| Owner: | JAMES R DETHERAGE | | |
| % Ownership: | 100.0000000000% | | |
| Total Value: | N/A | | |
| Tax Area: | 0213 - 1-49F1E1H2L1 |
| CE | COUNTY CURRENT EXPENSE | N/A | N/A | N/A | N/A | | |
| CNTYDD | DEVELOPMENTAL DISABILITIES | N/A | N/A | N/A | N/A | | |
| CNTYVET | VETERANS RELIEF | N/A | N/A | N/A | N/A | | |
| MENTAL | MENTAL HEALTH | N/A | N/A | N/A | N/A | | |
| ROADS | COUNTY ROADS | N/A | N/A | N/A | N/A | | |
| ROADSCU | COUNTY ROADS TO CUR EXP | N/A | N/A | N/A | N/A | | |
| HOSP2CASH | HOSP DIST #2 GENERAL | N/A | N/A | N/A | N/A | | |
| SCH49CP | SCHOOL DIST #49 CAP PROJ | N/A | N/A | N/A | N/A | | |
| SCH49MO | SCHOOL DIST #49 EP & O | N/A | N/A | N/A | N/A | | |
| CONSERVE | CONSERVATION FUTURES | N/A | N/A | N/A | N/A | | |
| EMS1 | FIRE DIST #1 EMS | N/A | N/A | N/A | N/A | | |
| FD1 | FIRE DIST #1 GENERAL | N/A | N/A | N/A | N/A | | |
| LIB1 | LIBRARY DIST #1 GENERAL | N/A | N/A | N/A | N/A | | |
| PORTPT | PORT OF PT GENERAL | N/A | N/A | N/A | N/A | | |
| PORTPTIDD | PORT OF PT IDD 2019 | N/A | N/A | N/A | N/A | | |
| PUD1 | PUD #1 GENERAL | N/A | N/A | N/A | N/A | | |
| STATE | STATE SCHOOL PART 1 | N/A | N/A | N/A | N/A | | |
| STATE2 | STATE SCHOOL PART 2 | N/A | N/A | N/A | N/A | | |
| | Total Tax Rate: | N/A | | | | | |
| | | | | Taxes w/Current Exemptions: | N/A | | |
| | | | | Taxes w/o Exemptions: | N/A | | |
Improvement / Building
| Improvement #1: | Residential Bldg | State Code: | 18 | 0.0 sqft | Value: | $46,518 |
| | Type | Description | Class CD | Sub Class CD | Year Built | Area |
| | GDET | Detached Garage | 5 | * | 2020 | 480.0 |
| | SHED | Shed (Table Not Dep) | 5 | * | 2022 | 330.0 |
Sketch
Property Image
Land
| 1 | 3435-1145L | Good Wtr View Lots E of Thorndyke Rd | 0.0000 | 0.00 | 0.00 | 0.00 | 1.00 | $43,313 | $0 |
Roll Value History
| 2025 | N/A | N/A | N/A | N/A | N/A |
| 2024 | $44,403 | $41,250 | $0 | $85,653 | $85,653 |
| 2023 | $44,403 | $27,500 | $0 | $71,903 | $71,903 |
| 2022 | $44,403 | $27,500 | $0 | $71,903 | $71,903 |
| 2021 | $31,113 | $22,750 | $0 | $53,863 | $53,863 |
Deed and Sales History
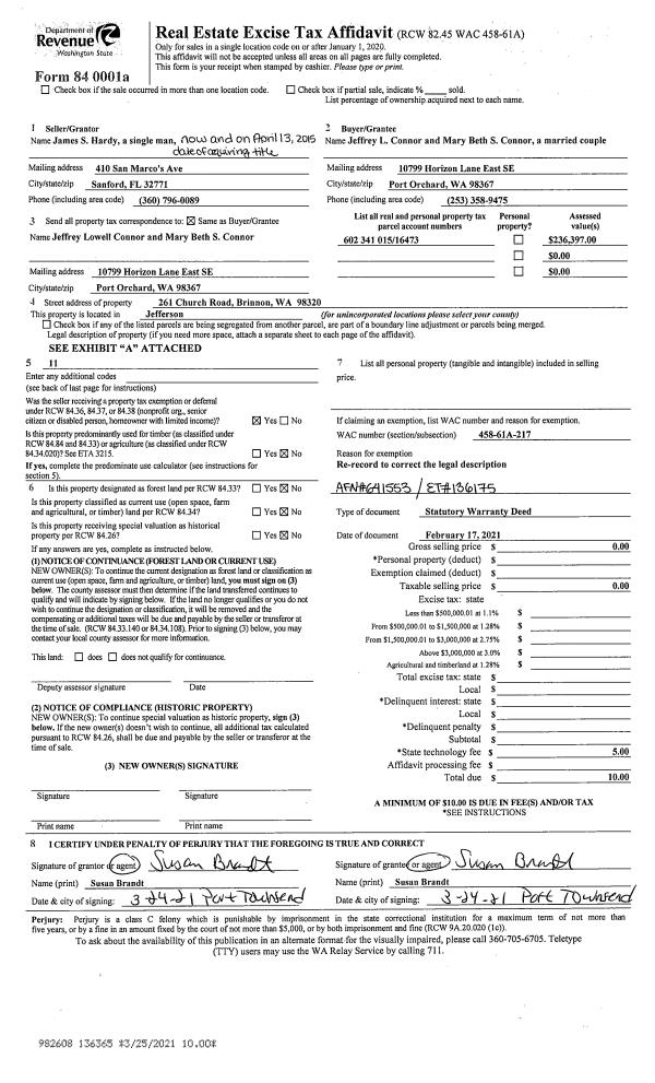
| 1 | 05/10/2024 | SWD | Statutory Warranty Deed | JASON A & KRISTINE R BALSTAD | JAMES R DETHERAGE | | | $765,000.00 | 142586 | |
|   | |
| 2 | 08/14/2019 | SWD | Statutory Warranty Deed | MATT & LYLA BYERS | JASON A & KRISTINE R BALSTAD | | | $65,000.00 | 133001 | |
|   | |
| 3 | 06/21/2007 | SWD | Statutory Warranty Deed | PEDERSON, WALTER H | BYERS, MATT/LYLA | | | $53,000.00 | 109536 | 0 |
| 4 | 07/31/1997 | SWD | Statutory Warranty Deed | MYKLEBUST, HARRIET M | PEDERSON, WALTER H | 0 | 0 | $0.00 | 82467 | 0 |
Payout Agreement
| No payout information available.. |