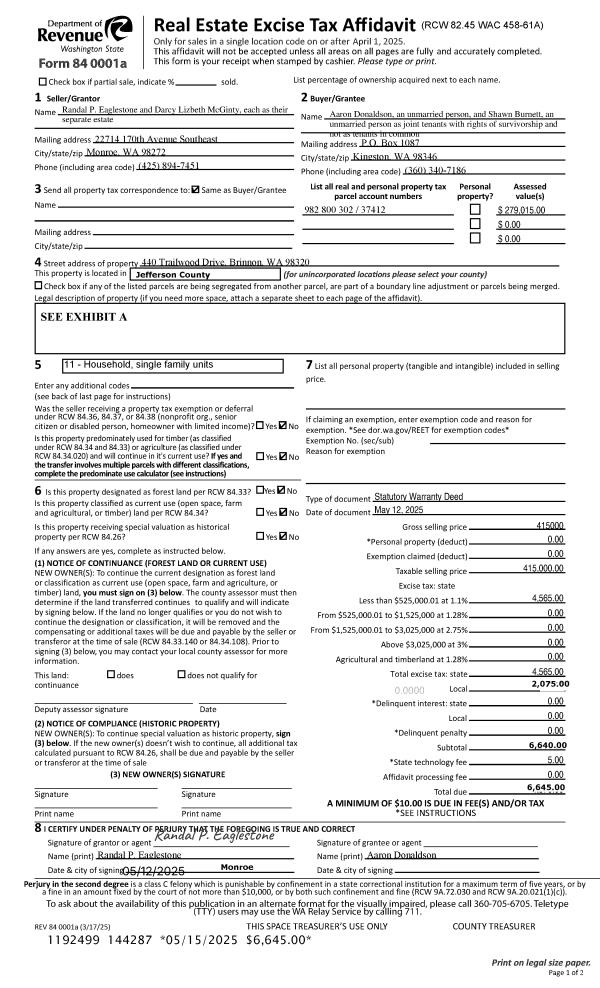
Property
Account |
| Property ID: | 28870 | Abbreviated Legal Description: | EVERGREEN ADDITION BLK 1 LOT 16 |
| Parcel # / Geo ID: | 950700103 | Agent Code: | |
| Type: | Real | | |
| Tax Area: | 0110 - C-50F1E1H2 | Land Use Code | 91 |
| Open Space: | N | DFL | N |
| Historic Property: | N | Remodel Property: | N |
| Multi-Family Redevelopment: | N | | |
| Township: | 30N | Section: | 9 |
| Range: | 1W |
Location |
| Address: | | Mapsco: | 046/023 |
| Neighborhood: | HWY 20 & DISCOVERY RD WEST OF NATIONAL CITY INC EVERGREEN AD | Map ID: | |
| Neighborhood CD: | 6180 |
Owner |
| Name: | PHILIP COOPER | Owner ID: | 112774 |
| Mailing Address: | 2955 NE 28TH AVE PORTLAND, OR 97212-3554 | % Ownership: | 100.0000000000% |
| | | Exemptions: | |
Pay Tax Due
There is currently No Amount Due on this property.
Taxes and Assessment Details
Property Tax Information as of
10/24/2025
Click on "Statement Details" to expand or collapse a tax statement.
* Please enter a valid date ** Please enter a valid date *
Statement Details |
| | TOTAL: | $0.00 | $0.00 | $0.00 | $0.00 | $0.00 | $0.00 |
|
| | $0.00 | $0.00 | $0.00 | $0.00 | $0.00 | $0.00 |
Values
| (+) Improvement Homesite Value: | + | $0 | |
| (+) Improvement Non-Homesite Value: | + | $0 | |
| (+) Land Homesite Value: | + | $0 | |
| (+) Land Non-Homesite Value: | + | $7,000 | |
| (+) Curr Use (HS): | + | $0 | $0 |
| (+) Curr Use (NHS): | + | $0 | $0 |
| | | -------------------------- | |
| (=) Market Value: | = | $7,000 | |
| (–) Productivity Loss: | – | $0 | |
| | | -------------------------- | |
| (=) Subtotal: | = | $7,000 | |
| (+) Senior Appraised Value: | + | $0 | |
| (+) Non-Senior Appraised Value: | + | $7,000 | |
| | | -------------------------- | |
| (=) Total Appraised Value: | = | $7,000 | |
| (–) Senior Exemption Loss: | – | $0 | |
| (–) Exemption Loss: | – | $0 | |
| | | -------------------------- | |
| (=) Taxable Value: | = | $7,000 | |
Taxing Jurisdiction
| Owner: | PHILIP COOPER | | |
| % Ownership: | 100.0000000000% | | |
| Total Value: | N/A | | |
| Tax Area: | 0110 - C-50F1E1H2 |
| CE | COUNTY CURRENT EXPENSE | N/A | N/A | N/A | N/A | | |
| CNTYDD | DEVELOPMENTAL DISABILITIES | N/A | N/A | N/A | N/A | | |
| CNTYVET | VETERANS RELIEF | N/A | N/A | N/A | N/A | | |
| MENTAL | MENTAL HEALTH | N/A | N/A | N/A | N/A | | |
| PTGEN | CITY OF PT GENERAL | N/A | N/A | N/A | N/A | | |
| PTLLL | CITY OF PT - LIBRARY LID LIFT | N/A | N/A | N/A | N/A | | |
| PTMVBOND | CITY OF PT MV BOND | N/A | N/A | N/A | N/A | | |
| HOSP2CASH | HOSP DIST #2 GENERAL | N/A | N/A | N/A | N/A | | |
| SCH50BOND | SCHOOL DIST #50 BOND 2016 | N/A | N/A | N/A | N/A | | |
| SCH50CP | SCHOOL DIST #50 CAP PROJ | N/A | N/A | N/A | N/A | | |
| SCH50MO | SCHOOL DIST #50 EP & O | N/A | N/A | N/A | N/A | | |
| CONSERVE | CONSERVATION FUTURES | N/A | N/A | N/A | N/A | | |
| EMS1 | FIRE DIST #1 EMS | N/A | N/A | N/A | N/A | | |
| FD1 | FIRE DIST #1 GENERAL | N/A | N/A | N/A | N/A | | |
| PORTPT | PORT OF PT GENERAL | N/A | N/A | N/A | N/A | | |
| PORTPTIDD | PORT OF PT IDD 2019 | N/A | N/A | N/A | N/A | | |
| PUD1 | PUD #1 GENERAL | N/A | N/A | N/A | N/A | | |
| STATE | STATE SCHOOL PART 1 | N/A | N/A | N/A | N/A | | |
| STATE2 | STATE SCHOOL PART 2 | N/A | N/A | N/A | N/A | | |
| | Total Tax Rate: | N/A | | | | | |
| | | | | Taxes w/Current Exemptions: | N/A | | |
| | | | | Taxes w/o Exemptions: | N/A | | |
Improvement / Building
Sketch
| No sketches available for this property. |
Property Image
Land
| 1 | 6180-1186L | Evergreen Lots Wooded, Sloping No View | 0.0000 | 0.00 | 0.00 | 0.00 | 1.00 | $7,000 | $0 |
Roll Value History
| 2025 | N/A | N/A | N/A | N/A | N/A |
| 2024 | $0 | $4,200 | $0 | $4,200 | $4,200 |
| 2023 | $0 | $4,000 | $0 | $4,000 | $4,000 |
| 2022 | $0 | $4,000 | $0 | $4,000 | $4,000 |
| 2021 | $0 | $3,381 | $0 | $3,381 | $3,381 |
Deed and Sales History
| 1 | 06/02/2025 | SWD | Statutory Warranty Deed | JONATHAN GARRISON | PHILIP COOPER | | | $80,000.00 | 144424 | |
|   | |
| 2 | 02/04/2015 | SWD | Statutory Warranty Deed | EDGAR R CHESLEY | JONATHAN GARRISON | | | $9,000.00 | 122647 | |
|   | |
| 3 | 01/15/1996 | SWD | Statutory Warranty Deed | FISCHBACK, JOHN E/ANITA | CHESLEY, EDGAR R/DOROTHY | 0 | 0 | $100.00 | 78751 | 0 |
|   | |
Payout Agreement
| No payout information available.. |