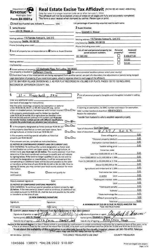
Property
Account |
| Property ID: | 28881 | Abbreviated Legal Description: | EVERGREEN ADDITION BLK 3 LOTS 1 THRU 5, 26 THRU 30 |
| Parcel # / Geo ID: | 950700301 | Agent Code: | |
| Type: | Real | | |
| Tax Area: | 0111 - 1-50F1E1H2L1 | Land Use Code | 11 |
| Open Space: | N | DFL | N |
| Historic Property: | N | Remodel Property: | N |
| Multi-Family Redevelopment: | N | | |
| Township: | 30N | Section: | 9 |
| Range: | 1W |
Location |
| Address: | 144 LUPINE ST PORT TOWNSEND, WA 98368 | Mapsco: | 031/010 |
| Neighborhood: | S8 & 9 T30 R1W, BRIGGS, SYNDICATE, HOMESTEAD, KOZELISKY | Map ID: | |
| Neighborhood CD: | 5330 |
Owner |
| Name: | JOHN E & JEANNA M MCMAHON | Owner ID: | 102237 |
| Mailing Address: | 144 LUPINE ST PORT TOWNSEND, WA 98368-9233 | % Ownership: | 100.0000000000% |
| | | Exemptions: | |
Pay Tax Due
There is currently No Amount Due on this property.
Taxes and Assessment Details
Property Tax Information as of
10/24/2025
Click on "Statement Details" to expand or collapse a tax statement.
* Please enter a valid date ** Please enter a valid date *
Statement Details |
| | TOTAL: | $0.00 | $0.00 | $0.00 | $0.00 | $0.00 | $0.00 |
|
| | $0.00 | $0.00 | $0.00 | $0.00 | $0.00 | $0.00 |
Values
| (+) Improvement Homesite Value: | + | $0 | |
| (+) Improvement Non-Homesite Value: | + | $380,814 | |
| (+) Land Homesite Value: | + | $0 | |
| (+) Land Non-Homesite Value: | + | $84,150 | |
| (+) Curr Use (HS): | + | $0 | $0 |
| (+) Curr Use (NHS): | + | $0 | $0 |
| | | -------------------------- | |
| (=) Market Value: | = | $464,964 | |
| (–) Productivity Loss: | – | $0 | |
| | | -------------------------- | |
| (=) Subtotal: | = | $464,964 | |
| (+) Senior Appraised Value: | + | $0 | |
| (+) Non-Senior Appraised Value: | + | $464,964 | |
| | | -------------------------- | |
| (=) Total Appraised Value: | = | $464,964 | |
| (–) Senior Exemption Loss: | – | $0 | |
| (–) Exemption Loss: | – | $0 | |
| | | -------------------------- | |
| (=) Taxable Value: | = | $464,964 | |
Taxing Jurisdiction
| Owner: | JOHN E & JEANNA M MCMAHON | | |
| % Ownership: | 100.0000000000% | | |
| Total Value: | N/A | | |
| Tax Area: | 0111 - 1-50F1E1H2L1 |
| CE | COUNTY CURRENT EXPENSE | N/A | N/A | N/A | N/A | | |
| CNTYDD | DEVELOPMENTAL DISABILITIES | N/A | N/A | N/A | N/A | | |
| CNTYVET | VETERANS RELIEF | N/A | N/A | N/A | N/A | | |
| MENTAL | MENTAL HEALTH | N/A | N/A | N/A | N/A | | |
| ROADS | COUNTY ROADS | N/A | N/A | N/A | N/A | | |
| ROADSCU | COUNTY ROADS TO CUR EXP | N/A | N/A | N/A | N/A | | |
| HOSP2CASH | HOSP DIST #2 GENERAL | N/A | N/A | N/A | N/A | | |
| SCH50BOND | SCHOOL DIST #50 BOND 2016 | N/A | N/A | N/A | N/A | | |
| SCH50CP | SCHOOL DIST #50 CAP PROJ | N/A | N/A | N/A | N/A | | |
| SCH50MO | SCHOOL DIST #50 EP & O | N/A | N/A | N/A | N/A | | |
| CONSERVE | CONSERVATION FUTURES | N/A | N/A | N/A | N/A | | |
| EMS1 | FIRE DIST #1 EMS | N/A | N/A | N/A | N/A | | |
| FD1 | FIRE DIST #1 GENERAL | N/A | N/A | N/A | N/A | | |
| LIB1 | LIBRARY DIST #1 GENERAL | N/A | N/A | N/A | N/A | | |
| PORTPT | PORT OF PT GENERAL | N/A | N/A | N/A | N/A | | |
| PORTPTIDD | PORT OF PT IDD 2019 | N/A | N/A | N/A | N/A | | |
| PUD1 | PUD #1 GENERAL | N/A | N/A | N/A | N/A | | |
| STATE | STATE SCHOOL PART 1 | N/A | N/A | N/A | N/A | | |
| STATE2 | STATE SCHOOL PART 2 | N/A | N/A | N/A | N/A | | |
| | Total Tax Rate: | N/A | | | | | |
| | | | | Taxes w/Current Exemptions: | N/A | | |
| | | | | Taxes w/o Exemptions: | N/A | | |
Improvement / Building
| Improvement #1: | Manufactured Home | State Code: | 11M | 1791.0 sqft | Value: | $380,814 |
| Bathrooms (#): | 2 (FULL) | Bedrooms (#): | 3 | | Exterior Wall: | SI/ST | Floor Construction: | FRAME | | Foundation: | PO&BL | Heating/Cooling: | HPUMP | | Roof Cover: | COMP |   |   |
|
| | Type | Description | Class CD | Sub Class CD | Year Built | Area |
| | MA | Main Area | 4 | MFH | 2022 | 1791.0 |
| | MDECK | MH Deck | 4 | MFH | 2022 | 511.3 |
| | MRPO | MH Roof Porch | 4 | MFH | 2022 | 238.5 |
| | MATT | MH Attached Garage | 4 | * | 2022 | 200.0 |
| | CARPTF | Carport W/Floor | 4 | MFH | 2022 | 200.0 |
Sketch
Property Image
Land
| 1 | 5330-1183L | 3rd/4th Platted Lots Evergreen/Sunnyside/Homestead | 0.0000 | 0.00 | 0.00 | 0.00 | 2.00 | $8,250 | $0 |
| 2 | 5330-1187L | 6th+ Platted Lots Evergreen/Sunnyside/Homestead | 0.0000 | 0.00 | 0.00 | 0.00 | 5.00 | $11,000 | $0 |
| 3 | 5330-1185L | 5th Platted Lot Evergreen/Sunnyside/Homestead | 0.0000 | 0.00 | 0.00 | 0.00 | 1.00 | $3,300 | $0 |
| 4 | 5330-1285S | 1st 2 Platted Lots Evergreen/Sunnyside/Homestead | 0.0000 | 0.00 | 0.00 | 0.00 | 1.00 | $61,600 | $0 |
Roll Value History
| 2025 | N/A | N/A | N/A | N/A | N/A |
| 2024 | $380,814 | $84,150 | $0 | $464,964 | $464,964 |
| 2023 | $337,665 | $75,075 | $0 | $412,740 | $412,740 |
| 2022 | $306,968 | $66,500 | $0 | $373,468 | $373,468 |
| 2021 | $0 | $26,428 | $0 | $26,428 | $26,428 |
Deed and Sales History
| 1 | 01/27/2020 | SWD | Statutory Warranty Deed | JOHN P ROBERTS | JOHN E & JEANNA M MCMAHON | | | $25,000.00 | 133875 | |
Payout Agreement
| No payout information available.. |