Property
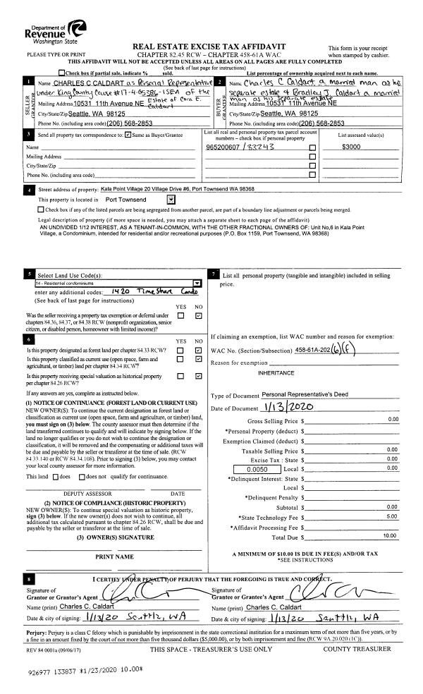
Account |
| Property ID: | 28930 | Abbreviated Legal Description: | EVERGREEN POINT BLK 2 LOT 1 (N50' OF S100') |
| Parcel # / Geo ID: | 951000202 | Agent Code: | |
| Type: | Real | | |
| Tax Area: | 0502 - 1-20H1L1 | Land Use Code | 11 |
| Open Space: | N | DFL | N |
| Historic Property: | N | Remodel Property: | N |
| Multi-Family Redevelopment: | N | | |
| Township: | 24N | Section: | 27 |
| Range: | 13W |
Location |
| Address: | 153655 HIGHWAY 101 FORKS, WA 98331 | Mapsco: | 900/009 |
| Neighborhood: | ALL SECTIONS T24N R13W (QUEETS TO KALALOCH): EVERGREEN POINT | Map ID: | |
| Neighborhood CD: | 1760 |
Owner |
| Name: | WILLIAM M WOODS JR | Owner ID: | 30802 |
| Mailing Address: | 3903 S FERDINAND ST #B SEATTLE, WA 98118-1771 | % Ownership: | 100.0000000000% |
| | | Exemptions: | |
Pay Tax Due
There is currently No Amount Due on this property.
Taxes and Assessment Details
Property Tax Information as of
10/24/2025
Click on "Statement Details" to expand or collapse a tax statement.
* Please enter a valid date ** Please enter a valid date *
Statement Details |
| | TOTAL: | $0.00 | $0.00 | $0.00 | $0.00 | $0.00 | $0.00 |
|
| | $0.00 | $0.00 | $0.00 | $0.00 | $0.00 | $0.00 |
Values
| (+) Improvement Homesite Value: | + | $0 | |
| (+) Improvement Non-Homesite Value: | + | $63,292 | |
| (+) Land Homesite Value: | + | $0 | |
| (+) Land Non-Homesite Value: | + | $83,500 | |
| (+) Curr Use (HS): | + | $0 | $0 |
| (+) Curr Use (NHS): | + | $0 | $0 |
| | | -------------------------- | |
| (=) Market Value: | = | $146,792 | |
| (–) Productivity Loss: | – | $0 | |
| | | -------------------------- | |
| (=) Subtotal: | = | $146,792 | |
| (+) Senior Appraised Value: | + | $0 | |
| (+) Non-Senior Appraised Value: | + | $146,792 | |
| | | -------------------------- | |
| (=) Total Appraised Value: | = | $146,792 | |
| (–) Senior Exemption Loss: | – | $0 | |
| (–) Exemption Loss: | – | $0 | |
| | | -------------------------- | |
| (=) Taxable Value: | = | $146,792 | |
Taxing Jurisdiction
| Owner: | WILLIAM M WOODS JR | | |
| % Ownership: | 100.0000000000% | | |
| Total Value: | N/A | | |
| Tax Area: | 0502 - 1-20H1L1 |
| CE | COUNTY CURRENT EXPENSE | N/A | N/A | N/A | N/A | | |
| CNTYDD | DEVELOPMENTAL DISABILITIES | N/A | N/A | N/A | N/A | | |
| CNTYVET | VETERANS RELIEF | N/A | N/A | N/A | N/A | | |
| MENTAL | MENTAL HEALTH | N/A | N/A | N/A | N/A | | |
| ROADS | COUNTY ROADS | N/A | N/A | N/A | N/A | | |
| ROADSCU | COUNTY ROADS TO CUR EXP | N/A | N/A | N/A | N/A | | |
| HOS1GEN | HOSP DIST #1 GENERAL | N/A | N/A | N/A | N/A | | |
| SCH20MO | SCHOOL DIST #20 EP & O | N/A | N/A | N/A | N/A | | |
| CONSERVE | CONSERVATION FUTURES | N/A | N/A | N/A | N/A | | |
| LIB1 | LIBRARY DIST #1 GENERAL | N/A | N/A | N/A | N/A | | |
| PORTPT | PORT OF PT GENERAL | N/A | N/A | N/A | N/A | | |
| PORTPTIDD | PORT OF PT IDD 2019 | N/A | N/A | N/A | N/A | | |
| PUD1 | PUD #1 GENERAL | N/A | N/A | N/A | N/A | | |
| STATE | STATE SCHOOL PART 1 | N/A | N/A | N/A | N/A | | |
| STATE2 | STATE SCHOOL PART 2 | N/A | N/A | N/A | N/A | | |
| | Total Tax Rate: | N/A | | | | | |
| | | | | Taxes w/Current Exemptions: | N/A | | |
| | | | | Taxes w/o Exemptions: | N/A | | |
Improvement / Building
| Improvement #1: | Residential Bldg | State Code: | 11 | 908.0 sqft | Value: | $63,292 |
| Bathrooms (#): | 1 (FULL) | Bedrooms (#): | 2 | | Exterior Wall: | PL/T1 | Fireplace: | WD ST-GOOD | | Floor Construction: | FRAME | Foundation: | PO&BL | | Heating/Cooling: | WD/NO | Inside Verify: | NO | | Roof Cover: | METAL |   |   |
|
| | Type | Description | Class CD | Sub Class CD | Year Built | Area |
| | MA | Main Area | 2- | 15SF | 1969 | 908.0 |
| | HWPOR | House Wood Porch | 2 | * | 1969 | 60.0 |
| | HDECK | House Deck | 2 | * | 1969 | 296.0 |
| | CARPTN | Carport W/O Floor | 1 | * | 1969 | 286.0 |
| | HLOFT | House Loft | 2 | 15SF | 1969 | 264.0 |
Sketch
Property Image
Land
| 1 | WEST-1135F | High Bank Ocean Frontage South of Kalalaoch | 0.0000 | 0.00 | 0.00 | 0.00 | 0.00 | $83,500 | $0 |
Roll Value History
| 2025 | N/A | N/A | N/A | N/A | N/A |
| 2024 | $63,292 | $83,500 | $0 | $146,792 | $146,792 |
| 2023 | $63,292 | $76,500 | $0 | $139,792 | $139,792 |
| 2022 | $63,292 | $76,500 | $0 | $139,792 | $139,792 |
| 2021 | $57,538 | $69,750 | $0 | $127,288 | $127,288 |
Deed and Sales History
| 1 | 02/01/2012 | QCD | Quit Claim Deed | WOODS TRTEE, WILLIAM M | WOODS JR, WILLIAM M/LISA ANNE | 0 | 0 | $0.00 | 117252 | 0 |
| 2 | 02/01/2012 | QCD | Quit Claim Deed | WOODS, LISA ANNE | WOODS JR, WILLIAM M | 0 | 0 | $0.00 | 117253 | 0 |
Payout Agreement
| No payout information available.. |