Property
Account |
| Property ID: | 29220 | Abbreviated Legal Description: | FOWLER'S PARK ADDITION BLK 31 LOTS 22 & 23 W/PTN VAC ALLEY ADJ |
| Parcel # / Geo ID: | 951903122 | Agent Code: | |
| Type: | Real | | |
| Tax Area: | 0110 - C-50F1E1H2 | Land Use Code | 11 |
| Open Space: | N | DFL | N |
| Historic Property: | N | Remodel Property: | N |
| Multi-Family Redevelopment: | N | | |
| Township: | 31N | Section: | 33 |
| Range: | 1W |
Location |
| Address: | 4997 BELL ST PORT TOWNSEND, WA 98368 | Mapsco: | 050/016 |
| Neighborhood: | FOWLERS PARK, DAVID'S, WILDWOOD AND ACREAGE IN 33-31-1W | Map ID: | |
| Neighborhood CD: | 6010 |
Owner |
| Name: | YORK 2015 LIVING TRUST | Owner ID: | 93943 |
| Mailing Address: | RICHARD P YORK TRUSTEE LINDA S YORK TRUSTEE 4997 BELL ST PORT TOWNSEND, WA 98368-1902 | % Ownership: | 100.0000000000% |
| | | Exemptions: | |
Pay Tax Due
There is currently No Amount Due on this property.
Taxes and Assessment Details
Property Tax Information as of
10/24/2025
Click on "Statement Details" to expand or collapse a tax statement.
* Please enter a valid date ** Please enter a valid date *
Statement Details |
| | TOTAL: | $0.00 | $0.00 | $0.00 | $0.00 | $0.00 | $0.00 |
|
| | $0.00 | $0.00 | $0.00 | $0.00 | $0.00 | $0.00 |
Values
| (+) Improvement Homesite Value: | + | $0 | |
| (+) Improvement Non-Homesite Value: | + | $532,444 | |
| (+) Land Homesite Value: | + | $0 | |
| (+) Land Non-Homesite Value: | + | $150,000 | |
| (+) Curr Use (HS): | + | $0 | $0 |
| (+) Curr Use (NHS): | + | $0 | $0 |
| | | -------------------------- | |
| (=) Market Value: | = | $682,444 | |
| (–) Productivity Loss: | – | $0 | |
| | | -------------------------- | |
| (=) Subtotal: | = | $682,444 | |
| (+) Senior Appraised Value: | + | $0 | |
| (+) Non-Senior Appraised Value: | + | $682,444 | |
| | | -------------------------- | |
| (=) Total Appraised Value: | = | $682,444 | |
| (–) Senior Exemption Loss: | – | $0 | |
| (–) Exemption Loss: | – | $0 | |
| | | -------------------------- | |
| (=) Taxable Value: | = | $682,444 | |
Taxing Jurisdiction
| Owner: | YORK 2015 LIVING TRUST | | |
| % Ownership: | 100.0000000000% | | |
| Total Value: | N/A | | |
| Tax Area: | 0110 - C-50F1E1H2 |
| CE | COUNTY CURRENT EXPENSE | N/A | N/A | N/A | N/A | | |
| CNTYDD | DEVELOPMENTAL DISABILITIES | N/A | N/A | N/A | N/A | | |
| CNTYVET | VETERANS RELIEF | N/A | N/A | N/A | N/A | | |
| MENTAL | MENTAL HEALTH | N/A | N/A | N/A | N/A | | |
| PTGEN | CITY OF PT GENERAL | N/A | N/A | N/A | N/A | | |
| PTLLL | CITY OF PT - LIBRARY LID LIFT | N/A | N/A | N/A | N/A | | |
| PTMVBOND | CITY OF PT MV BOND | N/A | N/A | N/A | N/A | | |
| HOSP2CASH | HOSP DIST #2 GENERAL | N/A | N/A | N/A | N/A | | |
| SCH50BOND | SCHOOL DIST #50 BOND 2016 | N/A | N/A | N/A | N/A | | |
| SCH50CP | SCHOOL DIST #50 CAP PROJ | N/A | N/A | N/A | N/A | | |
| SCH50MO | SCHOOL DIST #50 EP & O | N/A | N/A | N/A | N/A | | |
| CONSERVE | CONSERVATION FUTURES | N/A | N/A | N/A | N/A | | |
| EMS1 | FIRE DIST #1 EMS | N/A | N/A | N/A | N/A | | |
| FD1 | FIRE DIST #1 GENERAL | N/A | N/A | N/A | N/A | | |
| PORTPT | PORT OF PT GENERAL | N/A | N/A | N/A | N/A | | |
| PORTPTIDD | PORT OF PT IDD 2019 | N/A | N/A | N/A | N/A | | |
| PUD1 | PUD #1 GENERAL | N/A | N/A | N/A | N/A | | |
| STATE | STATE SCHOOL PART 1 | N/A | N/A | N/A | N/A | | |
| STATE2 | STATE SCHOOL PART 2 | N/A | N/A | N/A | N/A | | |
| | Total Tax Rate: | N/A | | | | | |
| | | | | Taxes w/Current Exemptions: | N/A | | |
| | | | | Taxes w/o Exemptions: | N/A | | |
Improvement / Building
| Improvement #1: | Residential Bldg | State Code: | 11 | 1500.0 sqft | Value: | $532,444 |
| Bathrooms (#): | 2 (FULL) | Bedrooms (#): | 3 | | Exterior Wall: | SI/ST | Fireplace: | WD ST-GOOD | | Floor Construction: | FRAME | Foundation: | CONPR | | Heating/Cooling: | F/A | Roof Cover: | COMP |
|
| | Type | Description | Class CD | Sub Class CD | Year Built | Area |
| | MA | Main Area | 5 | 2S | 1992 | 844.0 |
| | MA2 | Second Floor Main Area | 5 | 2S | 1992 | 656.0 |
| | HWPOR | House Wood Porch | 5 | * | 1992 | 275.0 |
| | HDECK | House Deck | 5 | * | 1992 | 270.0 |
| | GDET | Detached Garage | 4 | 2S | 1992 | 598.0 |
| | SHED | Shed (Table Not Dep) | 4 | * | 1992 | 224.0 |
| | CONCD | Concrete Drive | 5 | * | 1992 | 400.0 |
| | ADDN | Addition (Table Not Dep) | 4 | * | 2016 | 300.0 |
| | SHED | Shed (Table Not Dep) | 2 | * | 1992 | 144.0 |
| | SHED | Shed (Table Not Dep) | 3 | * | 1992 | 100.0 |
| | SHED | Shed (Table Not Dep) | 3 | * | 1992 | 64.0 |
Sketch
Property Image
Land
| 1 | 6010-1175L | Area of Terr/Wtr Views W/Utilities 1st Lot | 0.0000 | 0.00 | 0.00 | 0.00 | 1.00 | $110,000 | $0 |
| 2 | 6010-1177L | 2nd Lot of 2 Lot Site in Fowlers Park | 0.0000 | 0.00 | 0.00 | 0.00 | 1.00 | $40,000 | $0 |
Roll Value History
| 2025 | N/A | N/A | N/A | N/A | N/A |
| 2024 | $485,802 | $150,000 | $0 | $635,802 | $635,802 |
| 2023 | $485,802 | $145,000 | $0 | $630,802 | $630,802 |
| 2022 | $485,802 | $140,000 | $0 | $625,802 | $625,802 |
| 2021 | $415,216 | $112,125 | $0 | $527,341 | $527,341 |
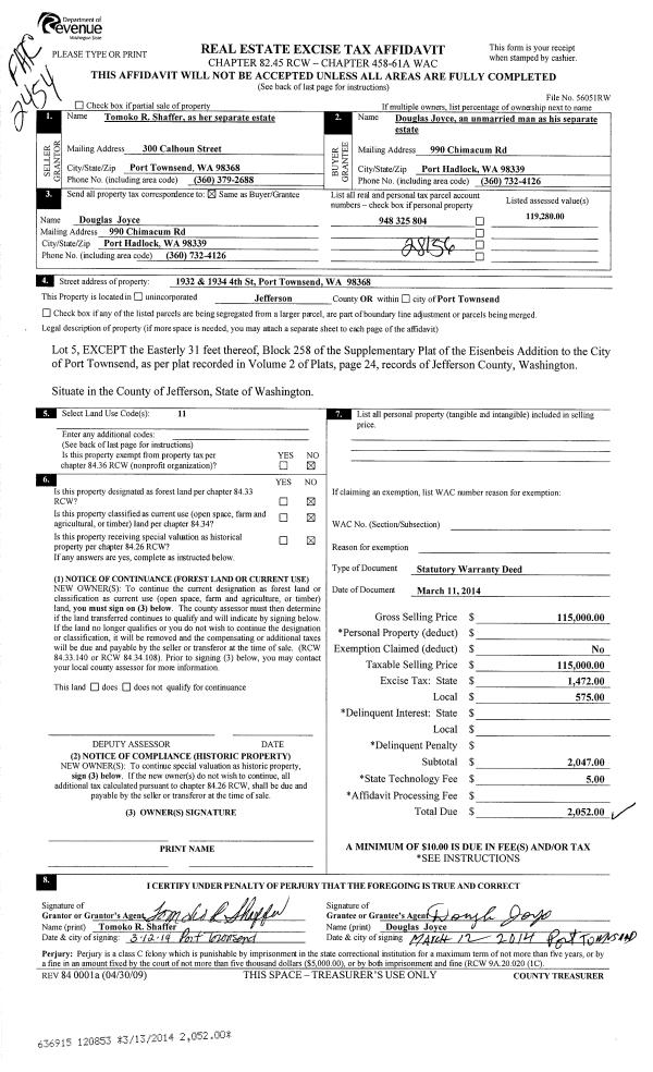
Deed and Sales History
| 1 | 07/01/2015 | SWD | Statutory Warranty Deed | LLOYD L & MARIA D HORTON | YORK 2015 LIVING TRUST | | | $354,900.00 | 123501 | |
|   | |
| 2 | 06/07/2005 | SWD | Statutory Warranty Deed | CASEY, KATHLEEN F & GLENN | HORTON, LLOYD L & MARIA D | | | $379,000.00 | 103775 | 0 |
Payout Agreement
| No payout information available.. |