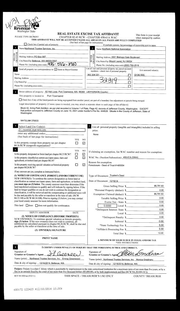
Property
Account |
| Property ID: | 29340 | Abbreviated Legal Description: | FOWLER'S PARK ADDITION BLK 47 LOTS 7,8,13 & 14 & VAC ALLEY ADJ |
| Parcel # / Geo ID: | 951904710 | Agent Code: | |
| Type: | Real | | |
| Tax Area: | 0110 - C-50F1E1H2 | Land Use Code | 11 |
| Open Space: | N | DFL | N |
| Historic Property: | N | Remodel Property: | N |
| Multi-Family Redevelopment: | N | | |
| Township: | 31N | Section: | 33 |
| Range: | 1W |
Location |
| Address: | 4766 MASON ST PORT TOWNSEND, WA 98368 | Mapsco: | 052/056 |
| Neighborhood: | FOWLERS PARK, DAVID'S, WILDWOOD AND ACREAGE IN 33-31-1W | Map ID: | |
| Neighborhood CD: | 6010 |
Owner |
| Name: | 1ST AVENUE BUILDING LLC | Owner ID: | 113414 |
| Mailing Address: | 1477 S UTE DR SALT LAKE CITY, UT 84108-2433 | % Ownership: | 100.0000000000% |
| | | Exemptions: | |
Pay Tax Due
There is currently No Amount Due on this property.
Taxes and Assessment Details
Property Tax Information as of
10/24/2025
Click on "Statement Details" to expand or collapse a tax statement.
* Please enter a valid date ** Please enter a valid date *
Statement Details |
| | TOTAL: | $0.00 | $0.00 | $0.00 | $0.00 | $0.00 | $0.00 |
|
| | $0.00 | $0.00 | $0.00 | $0.00 | $0.00 | $0.00 |
Values
| (+) Improvement Homesite Value: | + | $478,066 | |
| (+) Improvement Non-Homesite Value: | + | $0 | |
| (+) Land Homesite Value: | + | $200,000 | |
| (+) Land Non-Homesite Value: | + | $0 | |
| (+) Curr Use (HS): | + | $0 | $0 |
| (+) Curr Use (NHS): | + | $0 | $0 |
| | | -------------------------- | |
| (=) Market Value: | = | $678,066 | |
| (–) Productivity Loss: | – | $0 | |
| | | -------------------------- | |
| (=) Subtotal: | = | $678,066 | |
| (+) Senior Appraised Value: | + | $0 | |
| (+) Non-Senior Appraised Value: | + | $678,066 | |
| | | -------------------------- | |
| (=) Total Appraised Value: | = | $678,066 | |
| (–) Senior Exemption Loss: | – | $0 | |
| (–) Exemption Loss: | – | $0 | |
| | | -------------------------- | |
| (=) Taxable Value: | = | $678,066 | |
Taxing Jurisdiction
| Owner: | 1ST AVENUE BUILDING LLC | | |
| % Ownership: | 100.0000000000% | | |
| Total Value: | N/A | | |
| Tax Area: | 0110 - C-50F1E1H2 |
| CE | COUNTY CURRENT EXPENSE | N/A | N/A | N/A | N/A | | |
| CNTYDD | DEVELOPMENTAL DISABILITIES | N/A | N/A | N/A | N/A | | |
| CNTYVET | VETERANS RELIEF | N/A | N/A | N/A | N/A | | |
| MENTAL | MENTAL HEALTH | N/A | N/A | N/A | N/A | | |
| PTGEN | CITY OF PT GENERAL | N/A | N/A | N/A | N/A | | |
| PTLLL | CITY OF PT - LIBRARY LID LIFT | N/A | N/A | N/A | N/A | | |
| PTMVBOND | CITY OF PT MV BOND | N/A | N/A | N/A | N/A | | |
| HOSP2CASH | HOSP DIST #2 GENERAL | N/A | N/A | N/A | N/A | | |
| SCH50BOND | SCHOOL DIST #50 BOND 2016 | N/A | N/A | N/A | N/A | | |
| SCH50CP | SCHOOL DIST #50 CAP PROJ | N/A | N/A | N/A | N/A | | |
| SCH50MO | SCHOOL DIST #50 EP & O | N/A | N/A | N/A | N/A | | |
| CONSERVE | CONSERVATION FUTURES | N/A | N/A | N/A | N/A | | |
| EMS1 | FIRE DIST #1 EMS | N/A | N/A | N/A | N/A | | |
| FD1 | FIRE DIST #1 GENERAL | N/A | N/A | N/A | N/A | | |
| PORTPT | PORT OF PT GENERAL | N/A | N/A | N/A | N/A | | |
| PORTPTIDD | PORT OF PT IDD 2019 | N/A | N/A | N/A | N/A | | |
| PUD1 | PUD #1 GENERAL | N/A | N/A | N/A | N/A | | |
| STATE | STATE SCHOOL PART 1 | N/A | N/A | N/A | N/A | | |
| STATE2 | STATE SCHOOL PART 2 | N/A | N/A | N/A | N/A | | |
| | Total Tax Rate: | N/A | | | | | |
| | | | | Taxes w/Current Exemptions: | N/A | | |
| | | | | Taxes w/o Exemptions: | N/A | | |
Improvement / Building
| Improvement #1: | Residential Bldg | State Code: | 11 | 1814.0 sqft | Value: | $478,066 |
| Bathrooms (#): | 2 (FULL) | Bedrooms (#): | 3 | | Exterior Wall: | SI/ST | Fireplace: | SIN 1-GOOD | | Floor Construction: | FRAME | Foundation: | CONPR | | Heating/Cooling: | ELBB | Roof Cover: | COMP |
|
| | Type | Description | Class CD | Sub Class CD | Year Built | Area |
| | MA | Main Area | 4+ | 1S | 1999 | 1814.0 |
| | HWPOR | House Wood Porch | 4 | * | 1999 | 48.0 |
| | HDECK | House Deck | 4 | * | 1999 | 326.0 |
| | GATT | House Attached Garage | 4 | 1S | 1999 | 484.0 |
| | CONCD | Concrete Drive | 5 | * | 1999 | 1251.3 |
Sketch
Property Image
Land
| 1 | 6010-1179L | XS Lots for 2 Lot Site in Fowlers Park | 0.0000 | 0.00 | 0.00 | 0.00 | 2.00 | $50,000 | $0 |
| 2 | 6010-1175L | Area of Terr/Wtr Views W/Utilities 1st Lot | 0.0000 | 0.00 | 0.00 | 0.00 | 1.00 | $110,000 | $0 |
| 3 | 6010-1177L | 2nd Lot of 2 Lot Site in Fowlers Park | 0.0000 | 0.00 | 0.00 | 0.00 | 1.00 | $40,000 | $0 |
Roll Value History
| 2025 | N/A | N/A | N/A | N/A | N/A |
| 2024 | $444,205 | $200,000 | $0 | $644,205 | $644,205 |
| 2023 | $444,205 | $195,000 | $0 | $639,205 | $639,205 |
| 2022 | $444,205 | $190,000 | $0 | $634,205 | $634,205 |
| 2021 | $379,662 | $146,625 | $0 | $526,287 | $526,287 |
Deed and Sales History
| 1 | 09/19/2025 | SWD | Statutory Warranty Deed | MICHAEL E & WENDY DUFOUR | 1ST AVENUE BUILDING LLC | | | $800,000.00 | 145008 | |
| 2 | 08/04/2015 | SWD | Statutory Warranty Deed | REGINA CLARK | MICHAEL E & WENDY DUFOUR | | | $375,000.00 | 123739 | |
| 3 | 01/26/2004 | SWD | Statutory Warranty Deed | JUNT, SYLVIA P | CLARK, KEVIN C/REGINA M | 0 | 0 | $270,000.00 | 99483 | 0 |
| 4 | 06/17/2002 | SWD | Statutory Warranty Deed | WILLIAM L BIERY | SYLVIA P JUNT | 0 | 0 | $267,500.00 | 94957 | 0 |
| 5 | 08/05/1999 | SWD | Statutory Warranty Deed | WALLIN, CRAIG/JEAN G | BIERY, WILLIAM L/NANCY R | 0 | 0 | $206,000.00 | 87632 | 0 |
| 6 | 11/27/1995 | SWD | Statutory Warranty Deed | MCBRIDE PROPERTIES INC | WALLIN, CRAIG/JEAN G | 0 | 0 | $43,900.00 | 78309 | 0 |
Payout Agreement
| No payout information available.. |