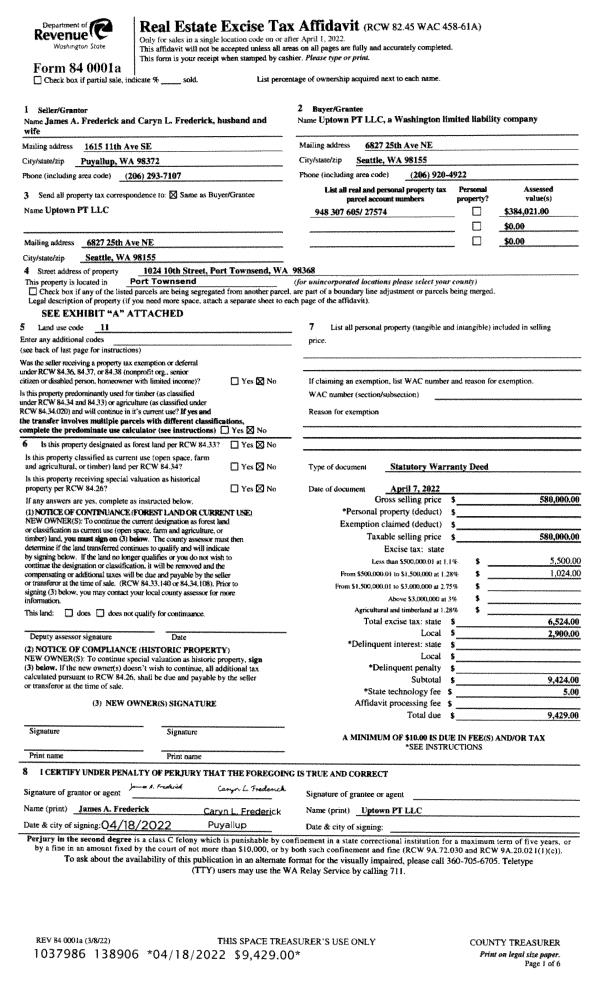
Property
Account |
| Property ID: | 29374 | Abbreviated Legal Description: | TRAIL CREST DIVISION 2 LOT 1 SUBJ/CCR OF RECORD AF#652973 |
| Parcel # / Geo ID: | 996300001 | Agent Code: | |
| Type: | Real | | |
| Tax Area: | 0110 - C-50F1E1H2 | Land Use Code | 11 |
| Open Space: | N | DFL | N |
| Historic Property: | N | Remodel Property: | N |
| Multi-Family Redevelopment: | N | | |
| Township: | 31N | Section: | 33 |
| Range: | 1W |
Location |
| Address: | 4221 ALBATROSS ST PORT TOWNSEND, WA 98368 | Mapsco: | 142/001 |
| Neighborhood: | FOWLERS PARK, DAVID'S, WILDWOOD AND ACREAGE IN 33-31-1W | Map ID: | |
| Neighborhood CD: | 6010 |
Owner |
| Name: | MALLORY D FOLAND | Owner ID: | 110904 |
| Mailing Address: | VANYA K AVRAMOVA 4221 ALBATROSS ST PORT TOWNSEND, WA 98368-0100 | % Ownership: | 100.0000000000% |
| | | Exemptions: | |
Pay Tax Due
There is currently No Amount Due on this property.
Taxes and Assessment Details
Property Tax Information as of
10/24/2025
Click on "Statement Details" to expand or collapse a tax statement.
* Please enter a valid date ** Please enter a valid date *
Statement Details |
| | TOTAL: | $0.00 | $0.00 | $0.00 | $0.00 | $0.00 | $0.00 |
|
| | $0.00 | $0.00 | $0.00 | $0.00 | $0.00 | $0.00 |
Values
| (+) Improvement Homesite Value: | + | $0 | |
| (+) Improvement Non-Homesite Value: | + | $621,794 | |
| (+) Land Homesite Value: | + | $0 | |
| (+) Land Non-Homesite Value: | + | $120,000 | |
| (+) Curr Use (HS): | + | $0 | $0 |
| (+) Curr Use (NHS): | + | $0 | $0 |
| | | -------------------------- | |
| (=) Market Value: | = | $741,794 | |
| (–) Productivity Loss: | – | $0 | |
| | | -------------------------- | |
| (=) Subtotal: | = | $741,794 | |
| (+) Senior Appraised Value: | + | $0 | |
| (+) Non-Senior Appraised Value: | + | $741,794 | |
| | | -------------------------- | |
| (=) Total Appraised Value: | = | $741,794 | |
| (–) Senior Exemption Loss: | – | $0 | |
| (–) Exemption Loss: | – | $0 | |
| | | -------------------------- | |
| (=) Taxable Value: | = | $741,794 | |
Taxing Jurisdiction
| Owner: | MALLORY D FOLAND | | |
| % Ownership: | 100.0000000000% | | |
| Total Value: | N/A | | |
| Tax Area: | 0110 - C-50F1E1H2 |
| CE | COUNTY CURRENT EXPENSE | N/A | N/A | N/A | N/A | | |
| CNTYDD | DEVELOPMENTAL DISABILITIES | N/A | N/A | N/A | N/A | | |
| CNTYVET | VETERANS RELIEF | N/A | N/A | N/A | N/A | | |
| MENTAL | MENTAL HEALTH | N/A | N/A | N/A | N/A | | |
| PTGEN | CITY OF PT GENERAL | N/A | N/A | N/A | N/A | | |
| PTLLL | CITY OF PT - LIBRARY LID LIFT | N/A | N/A | N/A | N/A | | |
| PTMVBOND | CITY OF PT MV BOND | N/A | N/A | N/A | N/A | | |
| HOSP2CASH | HOSP DIST #2 GENERAL | N/A | N/A | N/A | N/A | | |
| SCH50BOND | SCHOOL DIST #50 BOND 2016 | N/A | N/A | N/A | N/A | | |
| SCH50CP | SCHOOL DIST #50 CAP PROJ | N/A | N/A | N/A | N/A | | |
| SCH50MO | SCHOOL DIST #50 EP & O | N/A | N/A | N/A | N/A | | |
| CONSERVE | CONSERVATION FUTURES | N/A | N/A | N/A | N/A | | |
| EMS1 | FIRE DIST #1 EMS | N/A | N/A | N/A | N/A | | |
| FD1 | FIRE DIST #1 GENERAL | N/A | N/A | N/A | N/A | | |
| PORTPT | PORT OF PT GENERAL | N/A | N/A | N/A | N/A | | |
| PORTPTIDD | PORT OF PT IDD 2019 | N/A | N/A | N/A | N/A | | |
| PUD1 | PUD #1 GENERAL | N/A | N/A | N/A | N/A | | |
| STATE | STATE SCHOOL PART 1 | N/A | N/A | N/A | N/A | | |
| STATE2 | STATE SCHOOL PART 2 | N/A | N/A | N/A | N/A | | |
| | Total Tax Rate: | N/A | | | | | |
| | | | | Taxes w/Current Exemptions: | N/A | | |
| | | | | Taxes w/o Exemptions: | N/A | | |
Improvement / Building
| Improvement #1: | Residential Bldg | State Code: | 11 | 2408.8 sqft | Value: | $621,794 |
| Bathrooms (#): | 3 (FULL) | Bedrooms (#): | 3 | | Exterior Wall: | SI/ST | Fireplace: | DBL 1-GOOD | | Floor Construction: | FRAME | Foundation: | CONPR | | Heating/Cooling: | HPUMP | Interior Finish: | FIN | | Roof Cover: | COMP |   |   |
|
| | Type | Description | Class CD | Sub Class CD | Year Built | Area |
| | MA | Main Area | 4+ | 1S | 2023 | 2408.8 |
| | GATT | House Attached Garage | 5 | 1S | 2023 | 440.0 |
| | HCPOR | House Concrete Porch | 5 | 1S | 2023 | 267.0 |
Sketch
Property Image
Land
| 1 | 6010-1165L | Terr View Trail Crest Lots w/utilities in | 0.0000 | 0.00 | 0.00 | 0.00 | 1.00 | $120,000 | $0 |
Roll Value History
| 2025 | N/A | N/A | N/A | N/A | N/A |
| 2024 | $616,559 | $120,000 | $0 | $736,559 | $736,559 |
| 2023 | $0 | $90,000 | $0 | $90,000 | $90,000 |
| 2022 | $0 | $90,000 | $0 | $90,000 | $90,000 |
| 2021 | $0 | $39,531 | $0 | $39,531 | $39,531 |
Deed and Sales History
| 1 | 05/30/2024 | SWD | Statutory Warranty Deed | RICHMOND AMERICAN HOMES OF WA INC | MALLORY D FOLAND | | | $760,511.00 | 142671 | |
| 2 | 09/22/2021 | BSD | Bargain and Sale Deed | CANYON CREEK INVESTMENTS LLC | RICHMOND AMERICAN HOMES OF WA INC | | | $5,000,000.00 | 137726 | |
| 3 | 11/22/2016 | SWD | Statutory Warranty Deed | KITSAP CREDIT UNION | CANYON CREEK INVESTMENTS LLC | | | $975,000.00 | 126710 | |
| 4 | 07/21/2016 | QCD | Quit Claim Deed | BAPCO LLC | KITSAP CREDIT UNION | | | | 125927 | |
| 5 | 01/03/2008 | QCD | Quit Claim Deed | O'NEILL, BRIAN A | BAPCO, LLC | 0 | 0 | $0.00 | 110690 | 0 |
| 6 | 01/25/1999 | SWD | Statutory Warranty Deed | ARVEY, DIANE G/TRUSTEE | O'NEILL, BRIAN A/NOMINEE | 0 | 0 | $13,700.00 | 86277 | 0 |
Payout Agreement
| No payout information available.. |