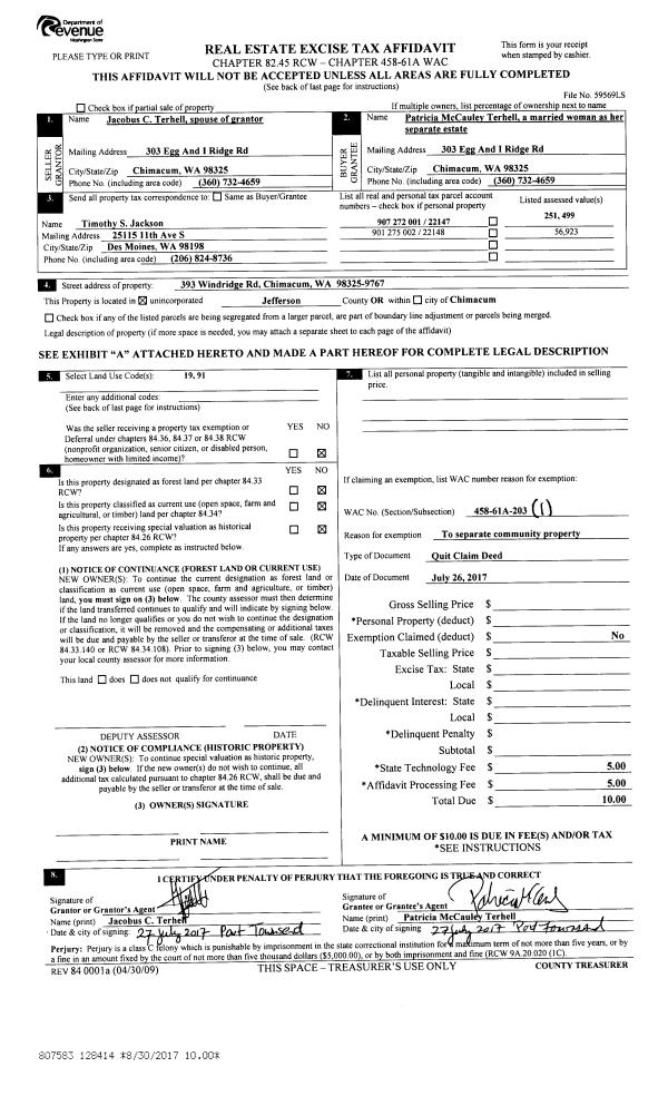
Property
Account |
| Property ID: | 29406 | Abbreviated Legal Description: | FULLER'S ACRES 1ST ADD LOT 1 |
| Parcel # / Geo ID: | 952500001 | Agent Code: | |
| Type: | Real | | |
| Tax Area: | 0211 - 1-49F1E1H2L1 | Land Use Code | 11 |
| Open Space: | N | DFL | N |
| Historic Property: | N | Remodel Property: | N |
| Multi-Family Redevelopment: | N | | |
| Township: | 29N | Section: | 8 |
| Range: | 1E |
Location |
| Address: | 51 BEACH DR NORDLAND, WA 98358 | Mapsco: | 022/039 |
| Neighborhood: | FULLERS ACRES AND FULLERS 1ST ADDITION | Map ID: | |
| Neighborhood CD: | 4635 |
Owner |
| Name: | CHELSIE R PAPIEZ | Owner ID: | 112581 |
| Mailing Address: | 51 BEACH DR NORDLAND, WA 98358-9601 | % Ownership: | 100.0000000000% |
| | | Exemptions: | |
Pay Tax Due
There is currently No Amount Due on this property.
Taxes and Assessment Details
Property Tax Information as of
10/24/2025
Click on "Statement Details" to expand or collapse a tax statement.
* Please enter a valid date ** Please enter a valid date *
Statement Details |
| | TOTAL: | $0.00 | $0.00 | $0.00 | $0.00 | $0.00 | $0.00 |
|
| | $0.00 | $0.00 | $0.00 | $0.00 | $0.00 | $0.00 |
Values
| (+) Improvement Homesite Value: | + | $263,379 | |
| (+) Improvement Non-Homesite Value: | + | $0 | |
| (+) Land Homesite Value: | + | $181,125 | |
| (+) Land Non-Homesite Value: | + | $0 | |
| (+) Curr Use (HS): | + | $0 | $0 |
| (+) Curr Use (NHS): | + | $0 | $0 |
| | | -------------------------- | |
| (=) Market Value: | = | $444,504 | |
| (–) Productivity Loss: | – | $0 | |
| | | -------------------------- | |
| (=) Subtotal: | = | $444,504 | |
| (+) Senior Appraised Value: | + | $0 | |
| (+) Non-Senior Appraised Value: | + | $444,504 | |
| | | -------------------------- | |
| (=) Total Appraised Value: | = | $444,504 | |
| (–) Senior Exemption Loss: | – | $0 | |
| (–) Exemption Loss: | – | $0 | |
| | | -------------------------- | |
| (=) Taxable Value: | = | $444,504 | |
Taxing Jurisdiction
| Owner: | CHELSIE R PAPIEZ | | |
| % Ownership: | 100.0000000000% | | |
| Total Value: | N/A | | |
| Tax Area: | 0211 - 1-49F1E1H2L1 |
| CE | COUNTY CURRENT EXPENSE | N/A | N/A | N/A | N/A | | |
| CNTYDD | DEVELOPMENTAL DISABILITIES | N/A | N/A | N/A | N/A | | |
| CNTYVET | VETERANS RELIEF | N/A | N/A | N/A | N/A | | |
| MENTAL | MENTAL HEALTH | N/A | N/A | N/A | N/A | | |
| ROADS | COUNTY ROADS | N/A | N/A | N/A | N/A | | |
| ROADSCU | COUNTY ROADS TO CUR EXP | N/A | N/A | N/A | N/A | | |
| HOSP2CASH | HOSP DIST #2 GENERAL | N/A | N/A | N/A | N/A | | |
| SCH49CP | SCHOOL DIST #49 CAP PROJ | N/A | N/A | N/A | N/A | | |
| SCH49MO | SCHOOL DIST #49 EP & O | N/A | N/A | N/A | N/A | | |
| CONSERVE | CONSERVATION FUTURES | N/A | N/A | N/A | N/A | | |
| EMS1 | FIRE DIST #1 EMS | N/A | N/A | N/A | N/A | | |
| FD1 | FIRE DIST #1 GENERAL | N/A | N/A | N/A | N/A | | |
| LIB1 | LIBRARY DIST #1 GENERAL | N/A | N/A | N/A | N/A | | |
| PORTPT | PORT OF PT GENERAL | N/A | N/A | N/A | N/A | | |
| PORTPTIDD | PORT OF PT IDD 2019 | N/A | N/A | N/A | N/A | | |
| PUD1 | PUD #1 GENERAL | N/A | N/A | N/A | N/A | | |
| STATE | STATE SCHOOL PART 1 | N/A | N/A | N/A | N/A | | |
| STATE2 | STATE SCHOOL PART 2 | N/A | N/A | N/A | N/A | | |
| | Total Tax Rate: | N/A | | | | | |
| | | | | Taxes w/Current Exemptions: | N/A | | |
| | | | | Taxes w/o Exemptions: | N/A | | |
Improvement / Building
| Improvement #1: | Residential Bldg | State Code: | 11 | 1109.0 sqft | Value: | $263,379 |
| Bathrooms (#): | 1 (FULL) | Bedrooms (#): | 2 | | Exterior Wall: | SI/ST | Floor Construction: | FRAME | | Foundation: | CONBL | Heating/Cooling: | ELBB | | Roof Cover: | COMP |   |   |
|
| | Type | Description | Class CD | Sub Class CD | Year Built | Area |
| | MA | Main Area | 4- | 1S | 1966 | 1109.0 |
| | HDECK | House Deck | 4 | 1S | 1966 | 480.0 |
| | ADDN-D | Addition (Table Depreciated) | 4 | 1S | 1966 | 240.0 |
| | HWPOR | House Wood Porch | 4 | 1S | 1966 | 11.0 |
Sketch
Property Image
Land
| 1 | 4635-1355S | Residential Sites 1+/- Ac Water Views | 0.0000 | 0.00 | 0.00 | 0.00 | 1.00 | $181,125 | $0 |
Roll Value History
| 2025 | N/A | N/A | N/A | N/A | N/A |
| 2024 | $263,379 | $181,125 | $0 | $444,504 | $444,504 |
| 2023 | $251,407 | $167,500 | $0 | $418,907 | $418,907 |
| 2022 | $122,512 | $132,500 | $0 | $255,012 | $255,012 |
| 2021 | $102,093 | $120,750 | $0 | $222,843 | $173,648 |
Deed and Sales History
| 1 | 05/16/2025 | QCD | Quit Claim Deed | JACOB PERRITT CRAVEY & CHELSIE PAPIEZ | CHELSIE R PAPIEZ | | | | 144294 | |
| 2 | 11/15/2022 | SWD | Statutory Warranty Deed | LAURA L NASTRI & VON | JACOB PERRITT CRAVEY & CHELSIE PAPIEZ | | | $425,000.00 | 140179 | |
| 3 | 01/18/2018 | QCD | Quit Claim Deed | LAURA LEE NASTRI | LAURA L NASTRI & VON | | | | 129456 | |
| 4 | 11/30/2012 | SWD | Statutory Warranty Deed | KATHLEEN H WALDRON | LAURA LEE NASTRI | | | $173,000.00 | 118411 | |
| 5 | 06/22/2000 | SWD | Statutory Warranty Deed | DICKINSON, RICHARD F/ROSA | WALDRON, KATHLEEN H | 0 | 0 | $130,000.00 | 89918 | 0 |
Payout Agreement
| No payout information available.. |