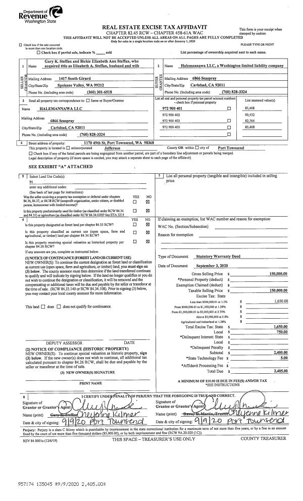
Property
Account |
| Property ID: | 29483 | Abbreviated Legal Description: | GARTEN ESTATES LOT 7 SUBJ TO EASE/REST OF RECORD |
| Parcel # / Geo ID: | 952900007 | Agent Code: | |
| Type: | Real | | |
| Tax Area: | 0213 - 1-49F1E1H2L1 | Land Use Code | 11 |
| Open Space: | N | DFL | N |
| Historic Property: | N | Remodel Property: | N |
| Multi-Family Redevelopment: | N | | |
| Township: | 28N | Section: | 34 |
| Range: | 1E |
Location |
| Address: | 21 GEORGE LESLIE DR PORT LUDLOW, WA 98365 | Mapsco: | 026/026 |
| Neighborhood: | S34 T28N R1E/SHORT PLATS/MADRONA VISTA | Map ID: | |
| Neighborhood CD: | 3380 |
Owner |
| Name: | CALEB & CHRISTINA HALL | Owner ID: | 103389 |
| Mailing Address: | 21 GEORGE LESLIE DR PORT LUDLOW, WA 98365-8261 | % Ownership: | 100.0000000000% |
| | | Exemptions: | |
Pay Tax Due
There is currently No Amount Due on this property.
Taxes and Assessment Details
Property Tax Information as of
10/24/2025
Click on "Statement Details" to expand or collapse a tax statement.
* Please enter a valid date ** Please enter a valid date *
Statement Details |
| | TOTAL: | $0.00 | $0.00 | $0.00 | $0.00 | $0.00 | $0.00 |
|
| | $0.00 | $0.00 | $0.00 | $0.00 | $0.00 | $0.00 |
Values
| (+) Improvement Homesite Value: | + | $0 | |
| (+) Improvement Non-Homesite Value: | + | $317,455 | |
| (+) Land Homesite Value: | + | $0 | |
| (+) Land Non-Homesite Value: | + | $103,500 | |
| (+) Curr Use (HS): | + | $0 | $0 |
| (+) Curr Use (NHS): | + | $0 | $0 |
| | | -------------------------- | |
| (=) Market Value: | = | $420,955 | |
| (–) Productivity Loss: | – | $0 | |
| | | -------------------------- | |
| (=) Subtotal: | = | $420,955 | |
| (+) Senior Appraised Value: | + | $0 | |
| (+) Non-Senior Appraised Value: | + | $420,955 | |
| | | -------------------------- | |
| (=) Total Appraised Value: | = | $420,955 | |
| (–) Senior Exemption Loss: | – | $0 | |
| (–) Exemption Loss: | – | $0 | |
| | | -------------------------- | |
| (=) Taxable Value: | = | $420,955 | |
Taxing Jurisdiction
| Owner: | CALEB & CHRISTINA HALL | | |
| % Ownership: | 100.0000000000% | | |
| Total Value: | N/A | | |
| Tax Area: | 0213 - 1-49F1E1H2L1 |
| CE | COUNTY CURRENT EXPENSE | N/A | N/A | N/A | N/A | | |
| CNTYDD | DEVELOPMENTAL DISABILITIES | N/A | N/A | N/A | N/A | | |
| CNTYVET | VETERANS RELIEF | N/A | N/A | N/A | N/A | | |
| MENTAL | MENTAL HEALTH | N/A | N/A | N/A | N/A | | |
| ROADS | COUNTY ROADS | N/A | N/A | N/A | N/A | | |
| ROADSCU | COUNTY ROADS TO CUR EXP | N/A | N/A | N/A | N/A | | |
| HOSP2CASH | HOSP DIST #2 GENERAL | N/A | N/A | N/A | N/A | | |
| SCH49CP | SCHOOL DIST #49 CAP PROJ | N/A | N/A | N/A | N/A | | |
| SCH49MO | SCHOOL DIST #49 EP & O | N/A | N/A | N/A | N/A | | |
| CONSERVE | CONSERVATION FUTURES | N/A | N/A | N/A | N/A | | |
| EMS1 | FIRE DIST #1 EMS | N/A | N/A | N/A | N/A | | |
| FD1 | FIRE DIST #1 GENERAL | N/A | N/A | N/A | N/A | | |
| LIB1 | LIBRARY DIST #1 GENERAL | N/A | N/A | N/A | N/A | | |
| PORTPT | PORT OF PT GENERAL | N/A | N/A | N/A | N/A | | |
| PORTPTIDD | PORT OF PT IDD 2019 | N/A | N/A | N/A | N/A | | |
| PUD1 | PUD #1 GENERAL | N/A | N/A | N/A | N/A | | |
| STATE | STATE SCHOOL PART 1 | N/A | N/A | N/A | N/A | | |
| STATE2 | STATE SCHOOL PART 2 | N/A | N/A | N/A | N/A | | |
| | Total Tax Rate: | N/A | | | | | |
| | | | | Taxes w/Current Exemptions: | N/A | | |
| | | | | Taxes w/o Exemptions: | N/A | | |
Improvement / Building
| Improvement #1: | Residential Bldg | State Code: | 11 | 1463.0 sqft | Value: | $317,455 |
| Bathrooms (#): | 2 (FULL) | Bedrooms (#): | 3 | | Exterior Wall: | SI/ST | Floor Construction: | FRAME | | Foundation: | CONPR | Heating/Cooling: | F/A | | Inside Verify: | NO | Roof Cover: | COMP |
|
| | Type | Description | Class CD | Sub Class CD | Year Built | Area |
| | MA | Main Area | 3+ | 1S | 2004 | 1463.0 |
| | HCPOR | House Concrete Porch | 3 | * | 2004 | 39.0 |
| | HDECK | House Deck | 3 | * | 2004 | 450.0 |
| | GATT | House Attached Garage | 3 | * | 2004 | 400.0 |
| | CONCD | Concrete Drive | 3 | | 2004 | 1000.0 |
Sketch
Property Image
Land
| 1 | 3380-1275L | Lots in Garten Estates No/Some View | 0.0000 | 0.00 | 0.00 | 0.00 | 1.00 | $103,500 | $0 |
Roll Value History
| 2025 | N/A | N/A | N/A | N/A | N/A |
| 2024 | $304,228 | $99,000 | $0 | $403,228 | $403,228 |
| 2023 | $304,228 | $85,000 | $0 | $389,228 | $389,228 |
| 2022 | $291,001 | $80,000 | $0 | $371,001 | $371,001 |
| 2021 | $285,991 | $60,750 | $0 | $346,741 | $346,741 |
Deed and Sales History
| 1 | 09/23/2020 | SWD | Statutory Warranty Deed | HOLDEM HOLDINGS LLC | CALEB & CHRISTINA HALL | | | $379,000.00 | 135235 | |
| 2 | 05/23/2018 | TRED | Trustee Deed | ANDREW D HENDRICKS | HOLDEM HOLDINGS LLC | | | $212,521.00 | 130236 | |
| 3 | 01/11/2017 | SPWD | Special Warranty Deed | MTGLQ INVESTORS LP | ANDREW D HENDRICKS | | | $214,900.00 | 127068 | |
| 4 | 12/22/2016 | WD | Warranty Deed | DITECH FINANCIAL LLC | MTGLQ INVESTORS LP | | | | 126932 | |
| 5 | 10/25/2016 | QCD | Quit Claim Deed | FEDERAL NATIONAL MORTGAGE ASC | DITECH FINANCIAL LLC | | | $149,916.00 | 126931 | |
| 6 | 07/19/2016 | TRED | Trustee Deed | NORMAN BERMOY | FEDERAL NATIONAL MORTGAGE ASC | | | | 125883 | |
| 7 | 03/23/2010 | QCD | Quit Claim Deed | BERMOY, NORMAN | BERMOY, NORMAN/KRISTINA | | | $0.00 | 114230 | 0 |
| 8 | 06/04/2004 | SWD | Statutory Warranty Deed | GE LAND LLC | BERMOY, NORMAN | 0 | 0 | $147,359.00 | 100472 | 0 |
| 9 | 12/11/2003 | SWD | Statutory Warranty Deed | GARTEN, ROBERT L | NEW HOMES LLC | 0 | 0 | $28,000.00 | 99082 | 0 |
Payout Agreement
| No payout information available.. |