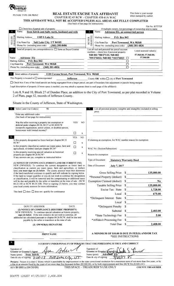
Property
Account |
| Property ID: | 29490 | Abbreviated Legal Description: | GARTEN ESTATES LOT 14 SUBJ TO EASE/REST OF RECORD |
| Parcel # / Geo ID: | 952900014 | Agent Code: | |
| Type: | Real | | |
| Tax Area: | 0213 - 1-49F1E1H2L1 | Land Use Code | 11 |
| Open Space: | N | DFL | N |
| Historic Property: | N | Remodel Property: | N |
| Multi-Family Redevelopment: | N | | |
| Township: | 28N | Section: | 34 |
| Range: | 1E |
Location |
| Address: | 111 GEORGE LESLIE DR PORT LUDLOW, WA 98365 | Mapsco: | 026/033 |
| Neighborhood: | S34 T28N R1E/SHORT PLATS/MADRONA VISTA | Map ID: | |
| Neighborhood CD: | 3380 |
Owner |
| Name: | RACHEL SCHAFFER | Owner ID: | 99099 |
| Mailing Address: | 111 GEORGE LESLIE DR PORT LUDLOW, WA 98365-8262 | % Ownership: | 100.0000000000% |
| | | Exemptions: | |
Pay Tax Due
There is currently No Amount Due on this property.
Taxes and Assessment Details
Property Tax Information as of
10/24/2025
Click on "Statement Details" to expand or collapse a tax statement.
* Please enter a valid date ** Please enter a valid date *
Statement Details |
| | TOTAL: | $0.00 | $0.00 | $0.00 | $0.00 | $0.00 | $0.00 |
|
| | $0.00 | $0.00 | $0.00 | $0.00 | $0.00 | $0.00 |
Values
| (+) Improvement Homesite Value: | + | $0 | |
| (+) Improvement Non-Homesite Value: | + | $414,930 | |
| (+) Land Homesite Value: | + | $0 | |
| (+) Land Non-Homesite Value: | + | $103,500 | |
| (+) Curr Use (HS): | + | $0 | $0 |
| (+) Curr Use (NHS): | + | $0 | $0 |
| | | -------------------------- | |
| (=) Market Value: | = | $518,430 | |
| (–) Productivity Loss: | – | $0 | |
| | | -------------------------- | |
| (=) Subtotal: | = | $518,430 | |
| (+) Senior Appraised Value: | + | $0 | |
| (+) Non-Senior Appraised Value: | + | $518,430 | |
| | | -------------------------- | |
| (=) Total Appraised Value: | = | $518,430 | |
| (–) Senior Exemption Loss: | – | $0 | |
| (–) Exemption Loss: | – | $0 | |
| | | -------------------------- | |
| (=) Taxable Value: | = | $518,430 | |
Taxing Jurisdiction
| Owner: | RACHEL SCHAFFER | | |
| % Ownership: | 100.0000000000% | | |
| Total Value: | N/A | | |
| Tax Area: | 0213 - 1-49F1E1H2L1 |
| CE | COUNTY CURRENT EXPENSE | N/A | N/A | N/A | N/A | | |
| CNTYDD | DEVELOPMENTAL DISABILITIES | N/A | N/A | N/A | N/A | | |
| CNTYVET | VETERANS RELIEF | N/A | N/A | N/A | N/A | | |
| MENTAL | MENTAL HEALTH | N/A | N/A | N/A | N/A | | |
| ROADS | COUNTY ROADS | N/A | N/A | N/A | N/A | | |
| ROADSCU | COUNTY ROADS TO CUR EXP | N/A | N/A | N/A | N/A | | |
| HOSP2CASH | HOSP DIST #2 GENERAL | N/A | N/A | N/A | N/A | | |
| SCH49CP | SCHOOL DIST #49 CAP PROJ | N/A | N/A | N/A | N/A | | |
| SCH49MO | SCHOOL DIST #49 EP & O | N/A | N/A | N/A | N/A | | |
| CONSERVE | CONSERVATION FUTURES | N/A | N/A | N/A | N/A | | |
| EMS1 | FIRE DIST #1 EMS | N/A | N/A | N/A | N/A | | |
| FD1 | FIRE DIST #1 GENERAL | N/A | N/A | N/A | N/A | | |
| LIB1 | LIBRARY DIST #1 GENERAL | N/A | N/A | N/A | N/A | | |
| PORTPT | PORT OF PT GENERAL | N/A | N/A | N/A | N/A | | |
| PORTPTIDD | PORT OF PT IDD 2019 | N/A | N/A | N/A | N/A | | |
| PUD1 | PUD #1 GENERAL | N/A | N/A | N/A | N/A | | |
| STATE | STATE SCHOOL PART 1 | N/A | N/A | N/A | N/A | | |
| STATE2 | STATE SCHOOL PART 2 | N/A | N/A | N/A | N/A | | |
| | Total Tax Rate: | N/A | | | | | |
| | | | | Taxes w/Current Exemptions: | N/A | | |
| | | | | Taxes w/o Exemptions: | N/A | | |
Improvement / Building
| Improvement #1: | Residential Bldg | State Code: | 11 | 2770.0 sqft | Value: | $414,930 |
| Bathrooms (#): | 2 (FULL) | Bathrooms (#): | 1 (HALF) | | Bedrooms (#): | 4 | Exterior Wall: | SI/ST | | Floor Construction: | FRAME | Foundation: | CONPR | | Heating/Cooling: | F/A | Inside Verify: | NO | | Roof Cover: | COMP |   |   |
|
| | Type | Description | Class CD | Sub Class CD | Year Built | Area |
| | MA | Main Area | 3 | 2S | 2004 | 1181.0 |
| | MA2 | Second Floor Main Area | 3 | 2S | 2004 | 1589.0 |
| | HCPOR | House Concrete Porch | 3 | * | 2004 | 111.0 |
| | GBLTIN | Builtin Garage | 3 | * | 2004 | 408.0 |
| | CONCD | Concrete Drive | 3 | * | 2004 | 800.0 |
Sketch
Property Image
Land
| 1 | 3380-1275L | Lots in Garten Estates No/Some View | 0.0000 | 0.00 | 0.00 | 0.00 | 1.00 | $103,500 | $0 |
Roll Value History
| 2025 | N/A | N/A | N/A | N/A | N/A |
| 2024 | $397,641 | $99,000 | $0 | $496,641 | $496,641 |
| 2023 | $397,641 | $85,000 | $0 | $482,641 | $482,641 |
| 2022 | $380,353 | $80,000 | $0 | $460,353 | $460,353 |
| 2021 | $238,575 | $60,750 | $0 | $299,325 | $299,325 |
Deed and Sales History
| 1 | 04/14/2018 | QCD | Quit Claim Deed | PAUL E & LINDA S SCHAFFER | RACHEL SCHAFFER | | | | 130013 | |
| 2 | 03/23/2016 | QCD | Quit Claim Deed | RAYMOND F ANDERSON | PAUL E & LINDA S SCHAFFER | | | $169,000.00 | 125078 | |
| 3 | 08/02/2006 | QCD | Quit Claim Deed | ANDERSON, ELIZABETH | ANDERSON, RAYMOND F | 0 | 0 | $0.00 | 107304 | 0 |
| 4 | 07/28/2004 | SWD | Statutory Warranty Deed | GE LAND, LLC A WASHINGTON | ANDERSON, RAYMOND F | 0 | 0 | $195,094.00 | 101037 | 0 |
| 5 | 02/24/2004 | SWD | Statutory Warranty Deed | GARTEN, ROBERT L | NEW HOMES LLC | 0 | 0 | $28,000.00 | 99611 | 0 |
Payout Agreement
| No payout information available.. |