Property
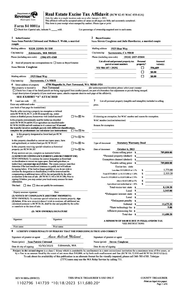
Account |
| Property ID: | 29713 | Abbreviated Legal Description: | GREENVIEW VILLAGE LOT 10 |
| Parcel # / Geo ID: | 955600010 | Agent Code: | |
| Type: | Real | | |
| Tax Area: | 0213 - 1-49F1E1H2L1 | Land Use Code | 11 |
| Open Space: | N | DFL | N |
| Historic Property: | N | Remodel Property: | N |
| Multi-Family Redevelopment: | N | | |
| Township: | 28N | Section: | 21 |
| Range: | 1E |
Location |
| Address: | 257 GREENVIEW LN PORT LUDLOW, WA 98365 | Mapsco: | 029/010 |
| Neighborhood: | SOUTH BAY 1, 2, & 3; EDGEWOOD AND GREENVIEW VILLAGES | Map ID: | |
| Neighborhood CD: | 3355 |
Owner |
| Name: | ERIC B CAREW | Owner ID: | 110871 |
| Mailing Address: | 257 GREENVIEW LN PORT LUDLOW, WA 98365-8750 | % Ownership: | 100.0000000000% |
| | | Exemptions: | |
Pay Tax Due
There is currently No Amount Due on this property.
Taxes and Assessment Details
Property Tax Information as of
10/24/2025
Click on "Statement Details" to expand or collapse a tax statement.
* Please enter a valid date ** Please enter a valid date *
Statement Details |
| | TOTAL: | $0.00 | $0.00 | $0.00 | $0.00 | $0.00 | $0.00 |
|
| | $0.00 | $0.00 | $0.00 | $0.00 | $0.00 | $0.00 |
Values
| (+) Improvement Homesite Value: | + | $505,230 | |
| (+) Improvement Non-Homesite Value: | + | $0 | |
| (+) Land Homesite Value: | + | $110,000 | |
| (+) Land Non-Homesite Value: | + | $0 | |
| (+) Curr Use (HS): | + | $0 | $0 |
| (+) Curr Use (NHS): | + | $0 | $0 |
| | | -------------------------- | |
| (=) Market Value: | = | $615,230 | |
| (–) Productivity Loss: | – | $0 | |
| | | -------------------------- | |
| (=) Subtotal: | = | $615,230 | |
| (+) Senior Appraised Value: | + | $0 | |
| (+) Non-Senior Appraised Value: | + | $615,230 | |
| | | -------------------------- | |
| (=) Total Appraised Value: | = | $615,230 | |
| (–) Senior Exemption Loss: | – | $0 | |
| (–) Exemption Loss: | – | $0 | |
| | | -------------------------- | |
| (=) Taxable Value: | = | $615,230 | |
Taxing Jurisdiction
| Owner: | ERIC B CAREW | | |
| % Ownership: | 100.0000000000% | | |
| Total Value: | N/A | | |
| Tax Area: | 0213 - 1-49F1E1H2L1 |
| CE | COUNTY CURRENT EXPENSE | N/A | N/A | N/A | N/A | | |
| CNTYDD | DEVELOPMENTAL DISABILITIES | N/A | N/A | N/A | N/A | | |
| CNTYVET | VETERANS RELIEF | N/A | N/A | N/A | N/A | | |
| MENTAL | MENTAL HEALTH | N/A | N/A | N/A | N/A | | |
| ROADS | COUNTY ROADS | N/A | N/A | N/A | N/A | | |
| ROADSCU | COUNTY ROADS TO CUR EXP | N/A | N/A | N/A | N/A | | |
| HOSP2CASH | HOSP DIST #2 GENERAL | N/A | N/A | N/A | N/A | | |
| SCH49CP | SCHOOL DIST #49 CAP PROJ | N/A | N/A | N/A | N/A | | |
| SCH49MO | SCHOOL DIST #49 EP & O | N/A | N/A | N/A | N/A | | |
| CONSERVE | CONSERVATION FUTURES | N/A | N/A | N/A | N/A | | |
| EMS1 | FIRE DIST #1 EMS | N/A | N/A | N/A | N/A | | |
| FD1 | FIRE DIST #1 GENERAL | N/A | N/A | N/A | N/A | | |
| LIB1 | LIBRARY DIST #1 GENERAL | N/A | N/A | N/A | N/A | | |
| PORTPT | PORT OF PT GENERAL | N/A | N/A | N/A | N/A | | |
| PORTPTIDD | PORT OF PT IDD 2019 | N/A | N/A | N/A | N/A | | |
| PUD1 | PUD #1 GENERAL | N/A | N/A | N/A | N/A | | |
| STATE | STATE SCHOOL PART 1 | N/A | N/A | N/A | N/A | | |
| STATE2 | STATE SCHOOL PART 2 | N/A | N/A | N/A | N/A | | |
| | Total Tax Rate: | N/A | | | | | |
| | | | | Taxes w/Current Exemptions: | N/A | | |
| | | | | Taxes w/o Exemptions: | N/A | | |
Improvement / Building
| Improvement #1: | Residential Bldg | State Code: | 11 | 2132.0 sqft | Value: | $505,230 |
| Bathrooms (#): | 2 (FULL) | Bedrooms (#): | 2 | | Exterior Wall: | SI/ST | Fireplace: | SIN 1-AVG | | Floor Construction: | FRAME | Foundation: | CONPR | | Heating/Cooling: | HPUMP | Inside Verify: | YES-FIX | | Roof Cover: | TILE |   |   |
|
| | Type | Description | Class CD | Sub Class CD | Year Built | Area |
| | MA | Main Area | 4 | 1S | 1995 | 2132.0 |
| | HCPOR | House Concrete Porch | 4 | 1S | 1995 | 52.0 |
| | HDECK | House Deck | 4 | 1S | 1995 | 396.0 |
| | GATT | House Attached Garage | 4 | 1S | 1995 | 616.0 |
| | BSMTF | House basement finished | 4 | 1S | 1995 | 200.0 |
| | CONCD | Concrete Drive | 4 | 1S | 1995 | 400.0 |
| | BSMTU | House basement unfinished | 4 | 1S | 1995 | 600.0 |
Sketch
Property Image
Land
| 1 | 3355-1173L | Superior Golf Course or Terr View Lots | 0.0000 | 0.00 | 0.00 | 0.00 | 1.00 | $110,000 | $0 |
Roll Value History
| 2025 | N/A | N/A | N/A | N/A | N/A |
| 2024 | $505,230 | $110,000 | $0 | $615,230 | $615,230 |
| 2023 | $505,230 | $105,000 | $0 | $610,230 | $610,230 |
| 2022 | $487,969 | $100,000 | $0 | $587,969 | $587,969 |
| 2021 | $358,204 | $90,000 | $0 | $448,204 | $448,204 |
Deed and Sales History
| 1 | 05/16/2024 | SWD | Statutory Warranty Deed | GLENN T CLEMENS | ERIC B CAREW | | | $625,000.00 | 142640 | |
| 2 | 12/03/2014 | SWD | Statutory Warranty Deed | ROBERT J CHELINI | GLENN T CLEMENS | | | $305,000.00 | 122421 | |
| 3 | 08/04/1994 | SWD | Statutory Warranty Deed | POPE RESOURCES | CHELINI, ROBERT J/CLARA KEAY | 0 | 0 | $60,750.00 | 74813 | 0 |
| 4 | 01/14/1992 | SWD | Statutory Warranty Deed | KAMPA-HILL INC | POPE RESOURCES | 0 | 0 | $0.00 | 67525 | 0 |
Payout Agreement
| No payout information available.. |