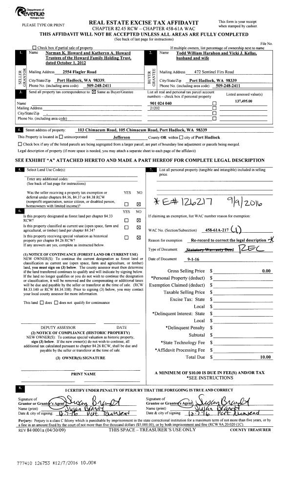
Property
Account |
| Property ID: | 29754 | Abbreviated Legal Description: | HAMILTON HEIGHTS LOT 9 SUBJ/REST COVT#487215 |
| Parcel # / Geo ID: | 955900009 | Agent Code: | |
| Type: | Real | | |
| Tax Area: | 0110 - C-50F1E1H2 | Land Use Code | 11 |
| Open Space: | N | DFL | N |
| Historic Property: | N | Remodel Property: | N |
| Multi-Family Redevelopment: | N | | |
| Township: | | Section: | |
| Range: | |
Location |
| Address: | 2300 RAINIER ST PORT TOWNSEND, WA 98368 | Mapsco: | 055/009 |
| Neighborhood: | S 1/2 S4-30-1W INC HAMILTON HEIGHTS & PHOENIX | Map ID: | |
| Neighborhood CD: | 6100 |
Owner |
| Name: | BONITA TOEPKE | Owner ID: | 91206 |
| Mailing Address: | 2300 RAINIER ST PORT TOWNSEND, WA 98368 | % Ownership: | 100.0000000000% |
| | | Exemptions: | SNR/DSBL |
Pay Tax Due
There is currently No Amount Due on this property.
Taxes and Assessment Details
Property Tax Information as of
10/24/2025
Click on "Statement Details" to expand or collapse a tax statement.
* Please enter a valid date ** Please enter a valid date *
Statement Details |
| | TOTAL: | $0.00 | $0.00 | $0.00 | $0.00 | $0.00 | $0.00 |
|
| | $0.00 | $0.00 | $0.00 | $0.00 | $0.00 | $0.00 |
Values
| (+) Improvement Homesite Value: | + | $238,252 | |
| (+) Improvement Non-Homesite Value: | + | $0 | |
| (+) Land Homesite Value: | + | $95,000 | |
| (+) Land Non-Homesite Value: | + | $0 | |
| (+) Curr Use (HS): | + | $0 | $0 |
| (+) Curr Use (NHS): | + | $0 | $0 |
| | | -------------------------- | |
| (=) Market Value: | = | $333,252 | |
| (–) Productivity Loss: | – | $0 | |
| | | -------------------------- | |
| (=) Subtotal: | = | $333,252 | |
| (+) Senior Appraised Value: | + | $146,410 | |
| (+) Non-Senior Appraised Value: | + | $0 | |
| | | -------------------------- | |
| (=) Total Appraised Value: | = | $146,410 | |
| (–) Senior Exemption Loss: | – | $87,846 | |
| (–) Exemption Loss: | – | $0 | |
| | | -------------------------- | |
| (=) Taxable Value: | = | $58,564 | |
Taxing Jurisdiction
| Owner: | BONITA TOEPKE | | |
| % Ownership: | 100.0000000000% | | |
| Total Value: | N/A | | |
| Tax Area: | 0110 - C-50F1E1H2 |
| CE | COUNTY CURRENT EXPENSE | N/A | N/A | N/A | N/A | | |
| CNTYDD | DEVELOPMENTAL DISABILITIES | N/A | N/A | N/A | N/A | | |
| CNTYVET | VETERANS RELIEF | N/A | N/A | N/A | N/A | | |
| MENTAL | MENTAL HEALTH | N/A | N/A | N/A | N/A | | |
| PTGEN | CITY OF PT GENERAL | N/A | N/A | N/A | N/A | | |
| PTLLL | CITY OF PT - LIBRARY LID LIFT | N/A | N/A | N/A | N/A | | |
| PTMVBOND | CITY OF PT MV BOND | N/A | N/A | N/A | N/A | | |
| HOSP2CASH | HOSP DIST #2 GENERAL | N/A | N/A | N/A | N/A | | |
| SCH50BOND | SCHOOL DIST #50 BOND 2016 | N/A | N/A | N/A | N/A | | |
| SCH50CP | SCHOOL DIST #50 CAP PROJ | N/A | N/A | N/A | N/A | | |
| SCH50MO | SCHOOL DIST #50 EP & O | N/A | N/A | N/A | N/A | | |
| CONSERVE | CONSERVATION FUTURES | N/A | N/A | N/A | N/A | | |
| EMS1 | FIRE DIST #1 EMS | N/A | N/A | N/A | N/A | | |
| FD1 | FIRE DIST #1 GENERAL | N/A | N/A | N/A | N/A | | |
| PORTPT | PORT OF PT GENERAL | N/A | N/A | N/A | N/A | | |
| PORTPTIDD | PORT OF PT IDD 2019 | N/A | N/A | N/A | N/A | | |
| PUD1 | PUD #1 GENERAL | N/A | N/A | N/A | N/A | | |
| STATE | STATE SCHOOL PART 1 | N/A | N/A | N/A | N/A | | |
| STATE2 | STATE SCHOOL PART 2 | N/A | N/A | N/A | N/A | | |
| | Total Tax Rate: | N/A | | | | | |
| | | | | Taxes w/Current Exemptions: | N/A | | |
| | | | | Taxes w/o Exemptions: | N/A | | |
Improvement / Building
| Improvement #1: | Manufactured Home | State Code: | 11 | 1458.0 sqft | Value: | $238,252 |
| Bathrooms (#): | 2 (FULL) | Bedrooms (#): | 2 | | Exterior Wall: | SI/ST | Floor Construction: | FRAME | | Foundation: | CONBL | Heating/Cooling: | F/A | | Roof Cover: | COMP |   |   |
|
| | Type | Description | Class CD | Sub Class CD | Year Built | Area |
| | MA | Main Area | 5 | MDBL | 2006 | 1458.0 |
| | MPATIO | MH Patio | 5 | * | 2006 | 232.0 |
| | MATT | MH Attached Garage | 4 | MDBL | 2006 | 480.0 |
| | CONCD | Concrete Drive | 5 | * | 2006 | 450.0 |
Sketch
Property Image
Land
| 1 | 6100-1175L | Hamilton Heights/Phoenix/Parkview | 0.0000 | 0.00 | 0.00 | 0.00 | 1.00 | $95,000 | $0 |
Roll Value History
| 2025 | N/A | N/A | N/A | N/A | N/A |
| 2024 | $208,540 | $94,500 | $0 | $303,040 | $58,564 |
| 2023 | $199,473 | $85,000 | $0 | $284,473 | $58,564 |
| 2022 | $199,473 | $80,000 | $0 | $279,473 | $95,166 |
| 2021 | $164,990 | $66,000 | $0 | $230,990 | $58,564 |
Deed and Sales History
| 1 | 12/30/2013 | SPWD | Special Warranty Deed | SECRETARY OF VETERANS AFFAIRS | BONITA TOEPKE | | | $124,900.00 | 120558 | |
| 2 | 10/28/2013 | SPWD | Special Warranty Deed | LAKEVIEW LOAN SERVICING LLC | SECRETARY OF VETERANS AFFAIRS | | | | 120249 | |
| 3 | 10/08/2013 | TRED | Trustee Deed | ROBERT F WYSOCKI | LAKEVIEW LOAN SERVICING LLC | | | | 120094 | |
| 4 | 09/23/2004 | SWD | Statutory Warranty Deed | HAMILTON HEIGHTS LLC | WYSOCKI, ROBERT G & GLADYS | 0 | 0 | $28,500.00 | 101589 | 0 |
Payout Agreement
| No payout information available.. |