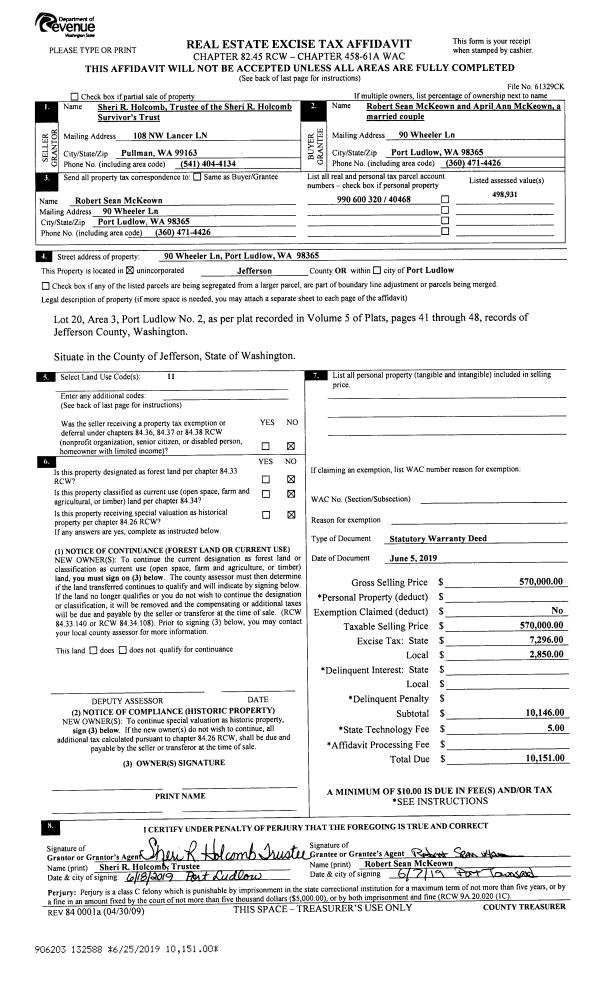
Property
Account |
| Property ID: | 29815 | Abbreviated Legal Description: | HAMILTON HEIGHTS LOT 79 |
| Parcel # / Geo ID: | 955900079 | Agent Code: | |
| Type: | Real | | |
| Tax Area: | 0110 - C-50F1E1H2 | Land Use Code | 11 |
| Open Space: | N | DFL | N |
| Historic Property: | N | Remodel Property: | N |
| Multi-Family Redevelopment: | N | | |
| Township: | 30N | Section: | 4 |
| Range: | 1W |
Location |
| Address: | 2580 CREST AVE PORT TOWNSEND, WA 98368 | Mapsco: | 057/008 |
| Neighborhood: | S 1/2 S4-30-1W INC HAMILTON HEIGHTS & PHOENIX | Map ID: | |
| Neighborhood CD: | 6100 |
Owner |
| Name: | DENNIS L & ALTA L CRAWFORD | Owner ID: | 109654 |
| Mailing Address: | 2580 CREST AVE PORT TOWNSEND, WA 98368-5909 | % Ownership: | 100.0000000000% |
| | | Exemptions: | |
Pay Tax Due
There is currently No Amount Due on this property.
Taxes and Assessment Details
Property Tax Information as of
10/24/2025
Click on "Statement Details" to expand or collapse a tax statement.
* Please enter a valid date ** Please enter a valid date *
Statement Details |
| | TOTAL: | $0.00 | $0.00 | $0.00 | $0.00 | $0.00 | $0.00 |
|
| | $0.00 | $0.00 | $0.00 | $0.00 | $0.00 | $0.00 |
Values
| (+) Improvement Homesite Value: | + | $0 | |
| (+) Improvement Non-Homesite Value: | + | $277,962 | |
| (+) Land Homesite Value: | + | $0 | |
| (+) Land Non-Homesite Value: | + | $95,000 | |
| (+) Curr Use (HS): | + | $0 | $0 |
| (+) Curr Use (NHS): | + | $0 | $0 |
| | | -------------------------- | |
| (=) Market Value: | = | $372,962 | |
| (–) Productivity Loss: | – | $0 | |
| | | -------------------------- | |
| (=) Subtotal: | = | $372,962 | |
| (+) Senior Appraised Value: | + | $0 | |
| (+) Non-Senior Appraised Value: | + | $372,962 | |
| | | -------------------------- | |
| (=) Total Appraised Value: | = | $372,962 | |
| (–) Senior Exemption Loss: | – | $0 | |
| (–) Exemption Loss: | – | $0 | |
| | | -------------------------- | |
| (=) Taxable Value: | = | $372,962 | |
Taxing Jurisdiction
| Owner: | DENNIS L & ALTA L CRAWFORD | | |
| % Ownership: | 100.0000000000% | | |
| Total Value: | N/A | | |
| Tax Area: | 0110 - C-50F1E1H2 |
| CE | COUNTY CURRENT EXPENSE | N/A | N/A | N/A | N/A | | |
| CNTYDD | DEVELOPMENTAL DISABILITIES | N/A | N/A | N/A | N/A | | |
| CNTYVET | VETERANS RELIEF | N/A | N/A | N/A | N/A | | |
| MENTAL | MENTAL HEALTH | N/A | N/A | N/A | N/A | | |
| PTGEN | CITY OF PT GENERAL | N/A | N/A | N/A | N/A | | |
| PTLLL | CITY OF PT - LIBRARY LID LIFT | N/A | N/A | N/A | N/A | | |
| PTMVBOND | CITY OF PT MV BOND | N/A | N/A | N/A | N/A | | |
| HOSP2CASH | HOSP DIST #2 GENERAL | N/A | N/A | N/A | N/A | | |
| SCH50BOND | SCHOOL DIST #50 BOND 2016 | N/A | N/A | N/A | N/A | | |
| SCH50CP | SCHOOL DIST #50 CAP PROJ | N/A | N/A | N/A | N/A | | |
| SCH50MO | SCHOOL DIST #50 EP & O | N/A | N/A | N/A | N/A | | |
| CONSERVE | CONSERVATION FUTURES | N/A | N/A | N/A | N/A | | |
| EMS1 | FIRE DIST #1 EMS | N/A | N/A | N/A | N/A | | |
| FD1 | FIRE DIST #1 GENERAL | N/A | N/A | N/A | N/A | | |
| PORTPT | PORT OF PT GENERAL | N/A | N/A | N/A | N/A | | |
| PORTPTIDD | PORT OF PT IDD 2019 | N/A | N/A | N/A | N/A | | |
| PUD1 | PUD #1 GENERAL | N/A | N/A | N/A | N/A | | |
| STATE | STATE SCHOOL PART 1 | N/A | N/A | N/A | N/A | | |
| STATE2 | STATE SCHOOL PART 2 | N/A | N/A | N/A | N/A | | |
| | Total Tax Rate: | N/A | | | | | |
| | | | | Taxes w/Current Exemptions: | N/A | | |
| | | | | Taxes w/o Exemptions: | N/A | | |
Improvement / Building
| Improvement #1: | Manufactured Home | State Code: | 11 | 1638.0 sqft | Value: | $277,962 |
| Bathrooms (#): | 2 (FULL) | Bedrooms (#): | 3 | | Exterior Wall: | SI/ST | Fireplace: | SIN 1-GOOD | | Floor Construction: | FRAME | Foundation: | CONBL | | Heating/Cooling: | F/A | Roof Cover: | COMP |
|
| | Type | Description | Class CD | Sub Class CD | Year Built | Area |
| | MA | Main Area | 5+ | MDBL | 2000 | 1638.0 |
| | MPATIO | MH Patio | 5 | * | 2000 | 296.0 |
| | MWPOR | MH Wood Porch | 5 | * | 2000 | 78.0 |
| | MATT | MH Attached Garage | 4 | MDBL | 2000 | 484.0 |
| | CONCD | Concrete Drive | 5 | * | 2000 | 550.0 |
Sketch
Property Image
Land
| 1 | 6100-1175L | Hamilton Heights/Phoenix/Parkview | 0.0000 | 0.00 | 0.00 | 0.00 | 1.00 | $95,000 | $0 |
Roll Value History
| 2025 | N/A | N/A | N/A | N/A | N/A |
| 2024 | $261,959 | $94,500 | $0 | $356,459 | $356,459 |
| 2023 | $250,569 | $85,000 | $0 | $335,569 | $335,569 |
| 2022 | $250,569 | $80,000 | $0 | $330,569 | $330,569 |
| 2021 | $207,253 | $66,000 | $0 | $273,253 | $273,253 |
Deed and Sales History
| 1 | 09/12/2023 | QCD | Quit Claim Deed | DENNIS L CRAWFORD TRSTE | DENNIS L & ALTA L CRAWFORD | | | | 141547 | |
| 2 | 09/01/2011 | QCD | Quit Claim Deed | CRAWFORD, DENNIS L/ALTA L | CRAWFORD TRUST AGREEMENT | 0 | 0 | $0.00 | 116491 | 0 |
| 3 | 02/07/2004 | QCD | Quit Claim Deed | CRAWFORD, DENNIS L | CRAWFORD, DENNIS L/ALTA L | 0 | 0 | $0.00 | 99473 | 0 |
| 4 | 03/17/2003 | SWD | Statutory Warranty Deed | STEVENSON, ALBERT/NANCY | CRAWFORD, DENNIS L | 0 | 0 | $147,500.00 | 96910 | 0 |
| 5 | 03/17/2003 | QCD | Quit Claim Deed | CRAWFORD, ALTA L | CRAWFORD DENNIS | 0 | 0 | $0.00 | 96911 | 0 |
| 6 | 03/22/2001 | SWD | Statutory Warranty Deed | HAMILTON HEIGHTS LLC, A W | STEVENSON, ALBERT G/NANCY | 0 | 0 | $149,950.00 | 91849 | 0 |
Payout Agreement
| No payout information available.. |