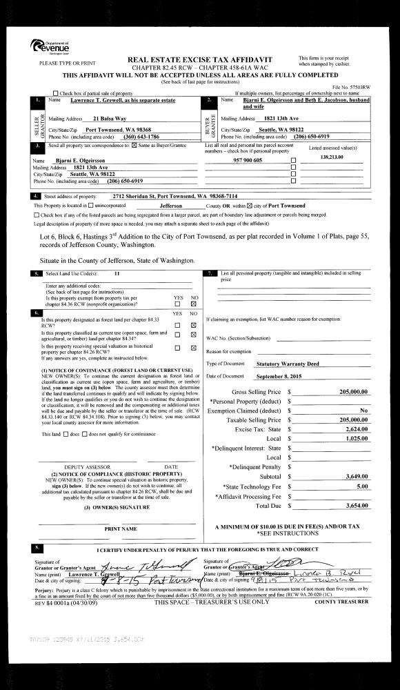
Property
Account |
| Property ID: | 29842 | Abbreviated Legal Description: | HAMILTON'S 5AC TRACTS LOT 5 TAX 43 (LESS W50') |
| Parcel # / Geo ID: | 956100004 | Agent Code: | |
| Type: | Real | | |
| Tax Area: | 0324 - 1-48F2E2H2C2L1Z3 | Land Use Code | 11 |
| Open Space: | N | DFL | N |
| Historic Property: | N | Remodel Property: | N |
| Multi-Family Redevelopment: | N | | |
| Township: | 27N | Section: | 13 |
| Range: | 2W |
Location |
| Address: | 80 E COLUMBIA ST QUILCENE, WA 98376 | Mapsco: | 104/010 |
| Neighborhood: | S13 T27N R2W & HAMILTON 5 ACRE TRACTS & ACKERMAN S.P. | Map ID: | |
| Neighborhood CD: | 2530 |
Owner |
| Name: | MICHAEL J & BRENDA J SPEARS | Owner ID: | 27873 |
| Mailing Address: | 293774 US HIGHWAY 101 QUILCENE, WA 98376-9548 | % Ownership: | 100.0000000000% |
| | | Exemptions: | |
Pay Tax Due
There is currently No Amount Due on this property.
Taxes and Assessment Details
Property Tax Information as of
10/24/2025
Click on "Statement Details" to expand or collapse a tax statement.
* Please enter a valid date ** Please enter a valid date *
Statement Details |
| | TOTAL: | $0.00 | $0.00 | $0.00 | $0.00 | $0.00 | $0.00 |
|
| | $0.00 | $0.00 | $0.00 | $0.00 | $0.00 | $0.00 |
Values
| (+) Improvement Homesite Value: | + | $229,445 | |
| (+) Improvement Non-Homesite Value: | + | $0 | |
| (+) Land Homesite Value: | + | $73,313 | |
| (+) Land Non-Homesite Value: | + | $0 | |
| (+) Curr Use (HS): | + | $0 | $0 |
| (+) Curr Use (NHS): | + | $0 | $0 |
| | | -------------------------- | |
| (=) Market Value: | = | $302,758 | |
| (–) Productivity Loss: | – | $0 | |
| | | -------------------------- | |
| (=) Subtotal: | = | $302,758 | |
| (+) Senior Appraised Value: | + | $0 | |
| (+) Non-Senior Appraised Value: | + | $302,758 | |
| | | -------------------------- | |
| (=) Total Appraised Value: | = | $302,758 | |
| (–) Senior Exemption Loss: | – | $0 | |
| (–) Exemption Loss: | – | $0 | |
| | | -------------------------- | |
| (=) Taxable Value: | = | $302,758 | |
Taxing Jurisdiction
| Owner: | MICHAEL J & BRENDA J SPEARS | | |
| % Ownership: | 100.0000000000% | | |
| Total Value: | N/A | | |
| Tax Area: | 0324 - 1-48F2E2H2C2L1Z3 |
| CE | COUNTY CURRENT EXPENSE | N/A | N/A | N/A | N/A | | |
| CNTYDD | DEVELOPMENTAL DISABILITIES | N/A | N/A | N/A | N/A | | |
| CNTYVET | VETERANS RELIEF | N/A | N/A | N/A | N/A | | |
| MENTAL | MENTAL HEALTH | N/A | N/A | N/A | N/A | | |
| ROADS | COUNTY ROADS | N/A | N/A | N/A | N/A | | |
| ROADSCU | COUNTY ROADS TO CUR EXP | N/A | N/A | N/A | N/A | | |
| HOSP2CASH | HOSP DIST #2 GENERAL | N/A | N/A | N/A | N/A | | |
| SCH48MO | SCHOOL DIST #48 EP & O | N/A | N/A | N/A | N/A | | |
| CEM2 | CEMETERY DIST #2 GENERAL | N/A | N/A | N/A | N/A | | |
| CONSERVE | CONSERVATION FUTURES | N/A | N/A | N/A | N/A | | |
| FD2 | FIRE DIST #2 GENERAL | N/A | N/A | N/A | N/A | | |
| LIB1 | LIBRARY DIST #1 GENERAL | N/A | N/A | N/A | N/A | | |
| PORTPT | PORT OF PT GENERAL | N/A | N/A | N/A | N/A | | |
| PORTPTIDD | PORT OF PT IDD 2019 | N/A | N/A | N/A | N/A | | |
| PUD1 | PUD #1 GENERAL | N/A | N/A | N/A | N/A | | |
| STATE | STATE SCHOOL PART 1 | N/A | N/A | N/A | N/A | | |
| STATE2 | STATE SCHOOL PART 2 | N/A | N/A | N/A | N/A | | |
| EMS2 | FIRE DIST #2 EMS | N/A | N/A | N/A | N/A | | |
| | Total Tax Rate: | N/A | | | | | |
| | | | | Taxes w/Current Exemptions: | N/A | | |
| | | | | Taxes w/o Exemptions: | N/A | | |
Improvement / Building
| Improvement #1: | Residential Bldg | State Code: | 11 | 1057.0 sqft | Value: | $229,445 |
| Bathrooms (#): | 1 (FULL) | Bedrooms (#): | 2 | | Exterior Wall: | SI/ST | Fireplace: | WD ST-GOOD | | Floor Construction: | FRAME | Foundation: | CONPR | | Heating/Cooling: | F/A | Inside Verify: | NO | | Roof Cover: | COMP |   |   |
|
| | Type | Description | Class CD | Sub Class CD | Year Built | Area |
| | MA | Main Area | 4 | 1S | 1920 | 1057.0 |
| | HCPOR | House Concrete Porch | 3 | * | 1920 | 35.0 |
| | SHED | Shed (Table Not Dep) | 4 | * | 1920 | 324.0 |
| | CARPTF | Carport W/Floor | 4 | * | 1920 | 390.0 |
| | HCPOR | House Concrete Porch | 4 | * | 1920 | 48.0 |
| | PATIO | House Patio | 4 | * | 1920 | 384.0 |
Sketch
Property Image
Land
| 1 | 2530-1375S | Wooded/No View Sites Area 1+/- Acre | 0.0000 | 0.00 | 0.00 | 0.00 | 1.00 | $73,313 | $0 |
Roll Value History
| 2025 | N/A | N/A | N/A | N/A | N/A |
| 2024 | $219,885 | $70,125 | $0 | $290,010 | $290,010 |
| 2023 | $210,324 | $61,688 | $0 | $272,012 | $272,012 |
| 2022 | $191,204 | $53,750 | $0 | $244,954 | $244,954 |
| 2021 | $162,446 | $45,000 | $0 | $207,446 | $207,446 |
Deed and Sales History
| 1 | 08/05/2020 | SWD | Statutory Warranty Deed | LURA M SCHAFER LIFE ESTATE | MICHAEL J & BRENDA J SPEARS | | | $221,250.00 | 134837 | |
| 2 | 05/21/2016 | QCD | Quit Claim Deed | | | | | | 125631 | |
Payout Agreement
| No payout information available.. |