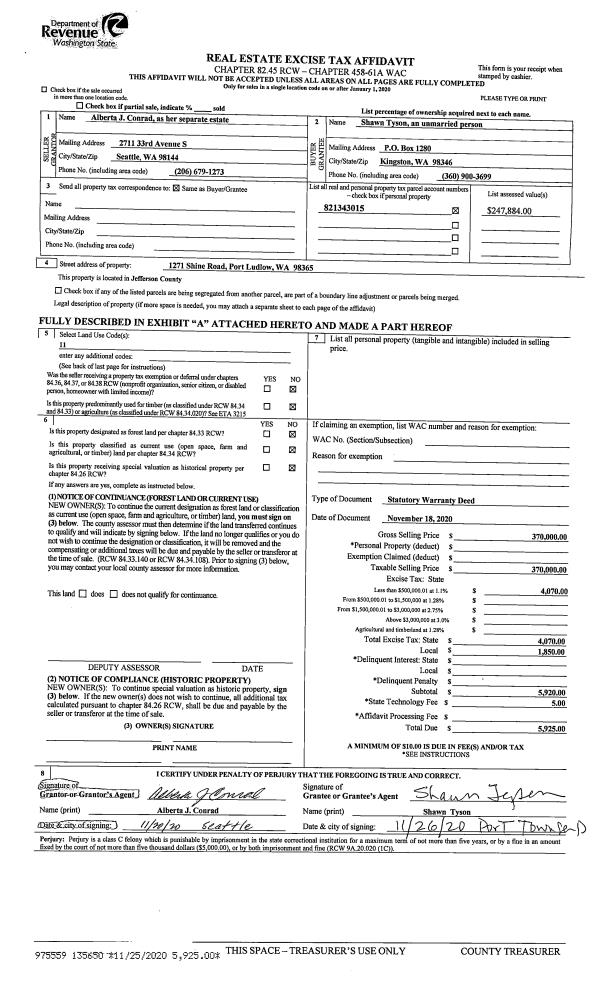
Property
Account |
| Property ID: | 29959 | Abbreviated Legal Description: | HAMMOND'S ADDITION BLK 3 LOTS 1,2,3,7 THRU 12 SUBJ/JLT CONSERV EASE V382/P462 |
| Parcel # / Geo ID: | 956400301 | Agent Code: | |
| Type: | Real | | |
| Tax Area: | 0110 - C-50F1E1H2 | Land Use Code | 83 |
| Open Space: | Y | DFL | N |
| Historic Property: | N | Remodel Property: | N |
| Multi-Family Redevelopment: | N | | |
| Township: | 30N | Section: | 9 |
| Range: | 1W |
Location |
| Address: | | Mapsco: | 054/088 |
| Neighborhood: | GLENWOOD HAMMONDS & PHILLIPS TO PT PLATS | Map ID: | |
| Neighborhood CD: | 6140 |
Owner |
| Name: | TERESA K MORGAN | Owner ID: | 106035 |
| Mailing Address: | ONDA FRANCES RUSSELL TOBIAS KILHAM 1240 W SIMS WAY #77 PORT TOWNSEND, WA 98368-3058 | % Ownership: | 100.0000000000% |
| | | Exemptions: | |
Pay Tax Due
There is currently No Amount Due on this property.
Taxes and Assessment Details
Property Tax Information as of
10/24/2025
Click on "Statement Details" to expand or collapse a tax statement.
* Please enter a valid date ** Please enter a valid date *
Statement Details |
| | TOTAL: | $0.00 | $0.00 | $0.00 | $0.00 | $0.00 | $0.00 |
|
| | $0.00 | $0.00 | $0.00 | $0.00 | $0.00 | $0.00 |
Values
| (+) Improvement Homesite Value: | + | $0 | |
| (+) Improvement Non-Homesite Value: | + | $0 | |
| (+) Land Homesite Value: | + | $0 | |
| (+) Land Non-Homesite Value: | + | $0 | |
| (+) Curr Use (HS): | + | $0 | $0 |
| (+) Curr Use (NHS): | + | $17,000 | $333 |
| | | -------------------------- | |
| (=) Market Value: | = | $17,000 | |
| (–) Productivity Loss: | – | $16,667 | |
| | | -------------------------- | |
| (=) Subtotal: | = | $333 | |
| (+) Senior Appraised Value: | + | $0 | |
| (+) Non-Senior Appraised Value: | + | $333 | |
| | | -------------------------- | |
| (=) Total Appraised Value: | = | $333 | |
| (–) Senior Exemption Loss: | – | $0 | |
| (–) Exemption Loss: | – | $0 | |
| | | -------------------------- | |
| (=) Taxable Value: | = | $333 | |
Taxing Jurisdiction
| Owner: | TERESA K MORGAN | | |
| % Ownership: | 100.0000000000% | | |
| Total Value: | N/A | | |
| Tax Area: | 0110 - C-50F1E1H2 |
| CE | COUNTY CURRENT EXPENSE | N/A | N/A | N/A | N/A | | |
| CNTYDD | DEVELOPMENTAL DISABILITIES | N/A | N/A | N/A | N/A | | |
| CNTYVET | VETERANS RELIEF | N/A | N/A | N/A | N/A | | |
| MENTAL | MENTAL HEALTH | N/A | N/A | N/A | N/A | | |
| PTGEN | CITY OF PT GENERAL | N/A | N/A | N/A | N/A | | |
| PTLLL | CITY OF PT - LIBRARY LID LIFT | N/A | N/A | N/A | N/A | | |
| PTMVBOND | CITY OF PT MV BOND | N/A | N/A | N/A | N/A | | |
| HOSP2CASH | HOSP DIST #2 GENERAL | N/A | N/A | N/A | N/A | | |
| SCH50BOND | SCHOOL DIST #50 BOND 2016 | N/A | N/A | N/A | N/A | | |
| SCH50CP | SCHOOL DIST #50 CAP PROJ | N/A | N/A | N/A | N/A | | |
| SCH50MO | SCHOOL DIST #50 EP & O | N/A | N/A | N/A | N/A | | |
| CONSERVE | CONSERVATION FUTURES | N/A | N/A | N/A | N/A | | |
| EMS1 | FIRE DIST #1 EMS | N/A | N/A | N/A | N/A | | |
| FD1 | FIRE DIST #1 GENERAL | N/A | N/A | N/A | N/A | | |
| PORTPT | PORT OF PT GENERAL | N/A | N/A | N/A | N/A | | |
| PORTPTIDD | PORT OF PT IDD 2019 | N/A | N/A | N/A | N/A | | |
| PUD1 | PUD #1 GENERAL | N/A | N/A | N/A | N/A | | |
| STATE | STATE SCHOOL PART 1 | N/A | N/A | N/A | N/A | | |
| STATE2 | STATE SCHOOL PART 2 | N/A | N/A | N/A | N/A | | |
| | Total Tax Rate: | N/A | | | | | |
| | | | | Taxes w/Current Exemptions: | N/A | | |
| | | | | Taxes w/o Exemptions: | N/A | | |
Improvement / Building
Sketch
| No sketches available for this property. |
Property Image
Land
| 1 | 6140-1175L | Lots S of Disco Rd in Hammonds/Phillips | 1.1100 | 48351.60 | 0.00 | 0.00 | 8.00 | $17,000 | $333 |
Roll Value History
| 2025 | N/A | N/A | N/A | N/A | N/A |
| 2024 | $0 | $17,850 | $333 | $333 | $333 |
| 2023 | $0 | $17,000 | $333 | $333 | $333 |
| 2022 | $0 | $17,000 | $333 | $333 | $333 |
| 2021 | $0 | $19,550 | $333 | $333 | $333 |
Deed and Sales History
| 1 | 11/30/2021 | QCD | Quit Claim Deed | | | | | | 138243 | |
| 2 | 11/30/2021 | QCD | Quit Claim Deed | | TERESA MORGAN | | | | 138126 | |
| 3 | 04/06/2021 | PRD | Personal Representatives Deed | TOBIAS KILHAM PERSONAL REPRESENTATIVE | TOBIAS KILHAM | | | | 136452 | |
Payout Agreement
| No payout information available.. |