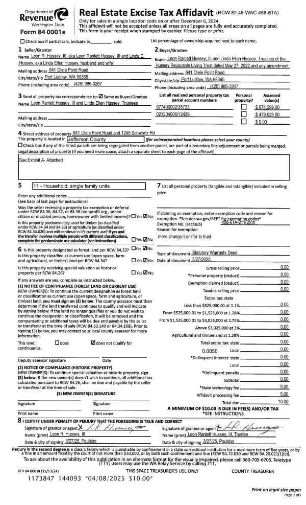
Property
Account |
| Property ID: | 29968 | Abbreviated Legal Description: | HAPPY VALLEY LOT 5 |
| Parcel # / Geo ID: | 956500005 | Agent Code: | |
| Type: | Real | | |
| Tax Area: | 0110 - C-50F1E1H2 | Land Use Code | 11 |
| Open Space: | N | DFL | N |
| Historic Property: | N | Remodel Property: | N |
| Multi-Family Redevelopment: | N | | |
| Township: | 31N | Section: | 34 |
| Range: | 1W |
Location |
| Address: | 311 43RD ST PORT TOWNSEND, WA 98368 | Mapsco: | 054/115 |
| Neighborhood: | BRACKENS ADDITION, HAPPY VALLEY, FAIRGROUNDS | Map ID: | |
| Neighborhood CD: | 6050 |
Owner |
| Name: | CAROLINE L SEIBERT | Owner ID: | 26994 |
| Mailing Address: | PO BOX 618 PORT TOWNSEND, WA 98368 | % Ownership: | 100.0000000000% |
| | | Exemptions: | |
Pay Tax Due
There is currently No Amount Due on this property.
Taxes and Assessment Details
Property Tax Information as of
10/24/2025
Click on "Statement Details" to expand or collapse a tax statement.
* Please enter a valid date ** Please enter a valid date *
Statement Details |
| | TOTAL: | $0.00 | $0.00 | $0.00 | $0.00 | $0.00 | $0.00 |
|
| | $0.00 | $0.00 | $0.00 | $0.00 | $0.00 | $0.00 |
Values
| (+) Improvement Homesite Value: | + | $0 | |
| (+) Improvement Non-Homesite Value: | + | $333,187 | |
| (+) Land Homesite Value: | + | $0 | |
| (+) Land Non-Homesite Value: | + | $120,000 | |
| (+) Curr Use (HS): | + | $0 | $0 |
| (+) Curr Use (NHS): | + | $0 | $0 |
| | | -------------------------- | |
| (=) Market Value: | = | $453,187 | |
| (–) Productivity Loss: | – | $0 | |
| | | -------------------------- | |
| (=) Subtotal: | = | $453,187 | |
| (+) Senior Appraised Value: | + | $0 | |
| (+) Non-Senior Appraised Value: | + | $453,187 | |
| | | -------------------------- | |
| (=) Total Appraised Value: | = | $453,187 | |
| (–) Senior Exemption Loss: | – | $0 | |
| (–) Exemption Loss: | – | $0 | |
| | | -------------------------- | |
| (=) Taxable Value: | = | $453,187 | |
Taxing Jurisdiction
| Owner: | CAROLINE L SEIBERT | | |
| % Ownership: | 100.0000000000% | | |
| Total Value: | N/A | | |
| Tax Area: | 0110 - C-50F1E1H2 |
| CE | COUNTY CURRENT EXPENSE | N/A | N/A | N/A | N/A | | |
| CNTYDD | DEVELOPMENTAL DISABILITIES | N/A | N/A | N/A | N/A | | |
| CNTYVET | VETERANS RELIEF | N/A | N/A | N/A | N/A | | |
| MENTAL | MENTAL HEALTH | N/A | N/A | N/A | N/A | | |
| PTGEN | CITY OF PT GENERAL | N/A | N/A | N/A | N/A | | |
| PTLLL | CITY OF PT - LIBRARY LID LIFT | N/A | N/A | N/A | N/A | | |
| PTMVBOND | CITY OF PT MV BOND | N/A | N/A | N/A | N/A | | |
| HOSP2CASH | HOSP DIST #2 GENERAL | N/A | N/A | N/A | N/A | | |
| SCH50BOND | SCHOOL DIST #50 BOND 2016 | N/A | N/A | N/A | N/A | | |
| SCH50CP | SCHOOL DIST #50 CAP PROJ | N/A | N/A | N/A | N/A | | |
| SCH50MO | SCHOOL DIST #50 EP & O | N/A | N/A | N/A | N/A | | |
| CONSERVE | CONSERVATION FUTURES | N/A | N/A | N/A | N/A | | |
| EMS1 | FIRE DIST #1 EMS | N/A | N/A | N/A | N/A | | |
| FD1 | FIRE DIST #1 GENERAL | N/A | N/A | N/A | N/A | | |
| PORTPT | PORT OF PT GENERAL | N/A | N/A | N/A | N/A | | |
| PORTPTIDD | PORT OF PT IDD 2019 | N/A | N/A | N/A | N/A | | |
| PUD1 | PUD #1 GENERAL | N/A | N/A | N/A | N/A | | |
| STATE | STATE SCHOOL PART 1 | N/A | N/A | N/A | N/A | | |
| STATE2 | STATE SCHOOL PART 2 | N/A | N/A | N/A | N/A | | |
| | Total Tax Rate: | N/A | | | | | |
| | | | | Taxes w/Current Exemptions: | N/A | | |
| | | | | Taxes w/o Exemptions: | N/A | | |
Improvement / Building
| Improvement #1: | Residential Bldg | State Code: | 11 | 912.0 sqft | Value: | $333,187 |
| Bathrooms (#): | 2 (FULL) | Bedrooms (#): | 3 | | Exterior Wall: | SI/ST | Floor Construction: | CONCR | | Foundation: | CONPR | Heating/Cooling: | ELBB | | Roof Cover: | COMP |   |   |
|
| | Type | Description | Class CD | Sub Class CD | Year Built | Area |
| | MA | Main Area | 4+ | 1S | 2002 | 912.0 |
| | PATIO | House Patio | 4 | * | 2002 | 160.0 |
| | HCPOR | House Concrete Porch | 4 | * | 2002 | 80.0 |
| | GATT | House Attached Garage | 4 | * | 2002 | 384.0 |
| | CONCD | Concrete Drive | 4 | * | 2002 | 420.0 |
| | ADDN-D | Addition (Table Depreciated) | 5 | 1S | 2015 | 272.0 |
Sketch
Property Image
Land
| 1 | 6050-1275S | Standard 100x100 Sites w/Access/Utilities | 0.0000 | 0.00 | 0.00 | 0.00 | 1.00 | $120,000 | $0 |
Roll Value History
| 2025 | N/A | N/A | N/A | N/A | N/A |
| 2024 | $316,859 | $121,000 | $0 | $437,859 | $437,859 |
| 2023 | $290,454 | $105,000 | $0 | $395,454 | $395,454 |
| 2022 | $290,454 | $95,000 | $0 | $385,454 | $385,454 |
| 2021 | $242,854 | $88,090 | $0 | $330,944 | $330,944 |
Deed and Sales History
| 1 | 04/02/2012 | SWD | Statutory Warranty Deed | LAWN, GARY WILLIAM/NIEMIN | SEIBERT, CAROLINE L | 0 | 0 | $199,000.00 | 117367 | 0 |
| 2 | 11/05/2002 | SWD | Statutory Warranty Deed | BISHOP LOGGING CO | LAWN, GARY & NIEMINEN, GARY | 0 | 0 | $109,500.00 | 95923 | 0 |
Payout Agreement
| No payout information available.. |