Property
Account |
| Property ID: | 29989 | Abbreviated Legal Description: | HARRISBURG BLK 5 LOTS 5(LESS E16')& 6(ALL) SUBJ/NTC TO TITLE V628P132 |
| Parcel # / Geo ID: | 956700503 | Agent Code: | |
| Type: | Real | | |
| Tax Area: | 0211 - 1-49F1E1H2L1 | Land Use Code | 11 |
| Open Space: | N | DFL | N |
| Historic Property: | N | Remodel Property: | N |
| Multi-Family Redevelopment: | N | | |
| Township: | 29N | Section: | 2 |
| Range: | 1W |
Location |
| Address: | 85 W MARKET ST PORT HADLOCK, WA 98339 | Mapsco: | 030/018 |
| Neighborhood: | CLEARVIEW; CORREIA; GARFIELD; HARRISBURG/HAR. CAL; HILLCREST | Map ID: | |
| Neighborhood CD: | 4211 |
Owner |
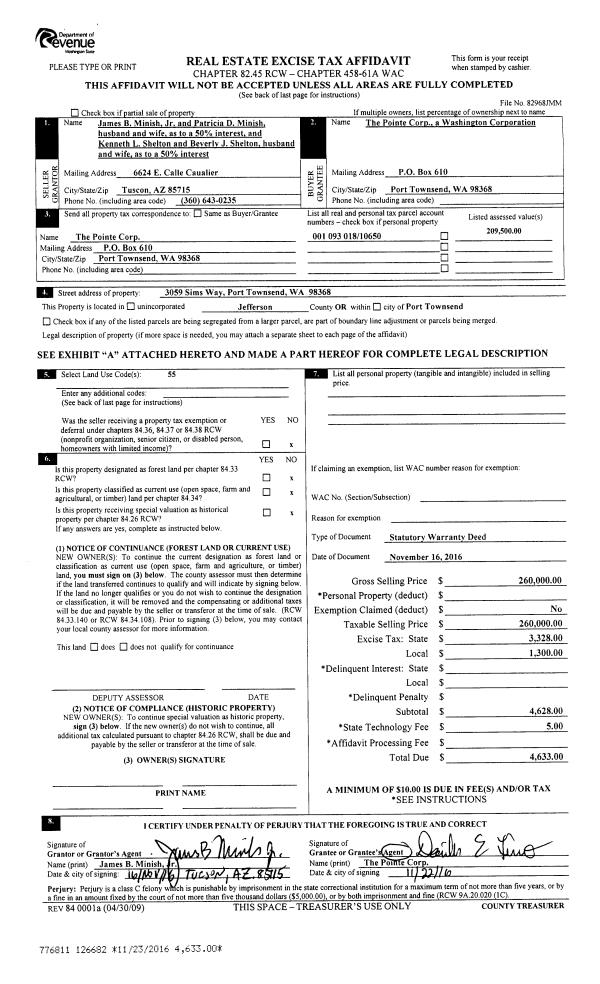
| Name: | THE POINTE CORP | Owner ID: | 24953 |
| Mailing Address: | PO BOX 610 PORT TOWNSEND, WA 98368-0610 | % Ownership: | 100.0000000000% |
| | | Exemptions: | |
Pay Tax Due
There is currently No Amount Due on this property.
Taxes and Assessment Details
Property Tax Information as of
10/24/2025
Click on "Statement Details" to expand or collapse a tax statement.
* Please enter a valid date ** Please enter a valid date *
Statement Details |
| | TOTAL: | $0.00 | $0.00 | $0.00 | $0.00 | $0.00 | $0.00 |
|
| | $0.00 | $0.00 | $0.00 | $0.00 | $0.00 | $0.00 |
Values
| (+) Improvement Homesite Value: | + | $0 | |
| (+) Improvement Non-Homesite Value: | + | $52,031 | |
| (+) Land Homesite Value: | + | $0 | |
| (+) Land Non-Homesite Value: | + | $98,032 | |
| (+) Curr Use (HS): | + | $0 | $0 |
| (+) Curr Use (NHS): | + | $0 | $0 |
| | | -------------------------- | |
| (=) Market Value: | = | $150,063 | |
| (–) Productivity Loss: | – | $0 | |
| | | -------------------------- | |
| (=) Subtotal: | = | $150,063 | |
| (+) Senior Appraised Value: | + | $0 | |
| (+) Non-Senior Appraised Value: | + | $150,063 | |
| | | -------------------------- | |
| (=) Total Appraised Value: | = | $150,063 | |
| (–) Senior Exemption Loss: | – | $0 | |
| (–) Exemption Loss: | – | $0 | |
| | | -------------------------- | |
| (=) Taxable Value: | = | $150,063 | |
Taxing Jurisdiction
| Owner: | THE POINTE CORP | | |
| % Ownership: | 100.0000000000% | | |
| Total Value: | N/A | | |
| Tax Area: | 0211 - 1-49F1E1H2L1 |
| CE | COUNTY CURRENT EXPENSE | N/A | N/A | N/A | N/A | | |
| CNTYDD | DEVELOPMENTAL DISABILITIES | N/A | N/A | N/A | N/A | | |
| CNTYVET | VETERANS RELIEF | N/A | N/A | N/A | N/A | | |
| MENTAL | MENTAL HEALTH | N/A | N/A | N/A | N/A | | |
| ROADS | COUNTY ROADS | N/A | N/A | N/A | N/A | | |
| ROADSCU | COUNTY ROADS TO CUR EXP | N/A | N/A | N/A | N/A | | |
| HOSP2CASH | HOSP DIST #2 GENERAL | N/A | N/A | N/A | N/A | | |
| SCH49CP | SCHOOL DIST #49 CAP PROJ | N/A | N/A | N/A | N/A | | |
| SCH49MO | SCHOOL DIST #49 EP & O | N/A | N/A | N/A | N/A | | |
| CONSERVE | CONSERVATION FUTURES | N/A | N/A | N/A | N/A | | |
| EMS1 | FIRE DIST #1 EMS | N/A | N/A | N/A | N/A | | |
| FD1 | FIRE DIST #1 GENERAL | N/A | N/A | N/A | N/A | | |
| LIB1 | LIBRARY DIST #1 GENERAL | N/A | N/A | N/A | N/A | | |
| PORTPT | PORT OF PT GENERAL | N/A | N/A | N/A | N/A | | |
| PORTPTIDD | PORT OF PT IDD 2019 | N/A | N/A | N/A | N/A | | |
| PUD1 | PUD #1 GENERAL | N/A | N/A | N/A | N/A | | |
| STATE | STATE SCHOOL PART 1 | N/A | N/A | N/A | N/A | | |
| STATE2 | STATE SCHOOL PART 2 | N/A | N/A | N/A | N/A | | |
| | Total Tax Rate: | N/A | | | | | |
| | | | | Taxes w/Current Exemptions: | N/A | | |
| | | | | Taxes w/o Exemptions: | N/A | | |
Improvement / Building
| Improvement #1: | Manufactured Home | State Code: | 11 | 924.0 sqft | Value: | $52,031 |
| Bathrooms (#): | 1 (FULL) | Bedrooms (#): | 2 | | Exterior Wall: | METAL | Fireplace: | WD ST-GOOD | | Foundation: | PO&BL | Heating/Cooling: | F/A | | Roof Cover: | METAL |   |   |
|
| | Type | Description | Class CD | Sub Class CD | Year Built | Area |
| | MA | Main Area | 3 | MSG | 1976 | 924.0 |
| | MDECK | MH Deck | 3 | * | 1976 | 175.0 |
| | MENCL | MH Enclosure | 3 | * | 1976 | 120.0 |
Sketch
| No sketches available for this property. |
Property Image
Land
| 1 | 4211-1285S | Standard Non-View 2 Lot Sites | 0.0000 | 0.00 | 0.00 | 0.00 | 1.00 | $88,000 | $0 |
| 2 | 4211-1187L | Additional Lots for 2 Lot Sites | 0.0000 | 0.00 | 0.00 | 0.00 | 1.00 | $10,032 | $0 |
Roll Value History
| 2025 | N/A | N/A | N/A | N/A | N/A |
| 2024 | $49,768 | $93,576 | $0 | $143,344 | $143,344 |
| 2023 | $47,506 | $84,120 | $0 | $131,626 | $131,626 |
| 2022 | $43,883 | $69,120 | $0 | $113,003 | $113,003 |
| 2021 | $36,569 | $64,610 | $0 | $101,179 | $101,179 |
Deed and Sales History
| 1 | 06/10/2009 | SWD | Statutory Warranty Deed | LAMMERS, RYAN E | THE POINTE CORP | | | $125,000.00 | 112952 | 0 |
| 2 | 10/25/2005 | SWD | Statutory Warranty Deed | JAMISON, JOHN A/CHRISTINE | LAMMERS, RYAN E | 0 | 0 | $95,000.00 | 105191 | 0 |
| 3 | 07/14/2005 | SWD | Statutory Warranty Deed | SHERWOOD, CHARLENE J | JAMISON, JOHN/CHRISTINE | | | $69,500.00 | 104225 | 0 |
| 4 | 09/10/2001 | QCD | Quit Claim Deed | CHOHRACH, ADAM | SHERWOOD, CHARLENE J | 0 | 0 | $0.00 | 93324 | 0 |
| 5 | 02/17/1999 | QCD | Quit Claim Deed | CHOHRACH, ADAM | CHOHRACH, ADAM/SHERWOOD, C | 0 | 0 | $0.00 | 86358 | 0 |
| 6 | 01/29/1999 | QCD | Quit Claim Deed | CHOHRACH, ADAM | SHERWOOD, C/CHOHRACH, A | 0 | 0 | $6,500.00 | 86210 | 0 |
| 7 | 10/12/1998 | SWD | Statutory Warranty Deed | TROIA, FLORENCE B | CHOHRACH, ADAM G | 0 | 0 | $18,000.00 | 85559 | 0 |
|   | |
Payout Agreement
| No payout information available.. |