Property
Account |
| Property ID: | 30118 | Abbreviated Legal Description: | HASTINGS 1ST ADDITION BLK 127 LOTS 2 & 4(S58' OF EA) BND BY LLA#140049 |
| Parcel # / Geo ID: | 957312703 | Agent Code: | |
| Type: | Real | | |
| Tax Area: | 0110 - C-50F1E1H2 | Land Use Code | 11 |
| Open Space: | N | DFL | N |
| Historic Property: | N | Remodel Property: | N |
| Multi-Family Redevelopment: | N | | |
| Township: | 30N | Section: | 11 |
| Range: | 1W |
Location |
| Address: | 631 CASS ST PORT TOWNSEND, WA 98368 | Mapsco: | 059/035A |
| Neighborhood: | HASTINGS 1ST | Map ID: | |
| Neighborhood CD: | 6275 |
Owner |
| Name: | MARY A MINISH | Owner ID: | 97389 |
| Mailing Address: | 631 CASS ST PORT TOWNSEND, WA 98368-8017 | % Ownership: | 100.0000000000% |
| | | Exemptions: | |
Pay Tax Due
There is currently No Amount Due on this property.
Taxes and Assessment Details
Property Tax Information as of
10/24/2025
Click on "Statement Details" to expand or collapse a tax statement.
* Please enter a valid date ** Please enter a valid date *
Statement Details |
| | TOTAL: | $0.00 | $0.00 | $0.00 | $0.00 | $0.00 | $0.00 |
|
| | $0.00 | $0.00 | $0.00 | $0.00 | $0.00 | $0.00 |
Values
| (+) Improvement Homesite Value: | + | $369,155 | |
| (+) Improvement Non-Homesite Value: | + | $0 | |
| (+) Land Homesite Value: | + | $230,000 | |
| (+) Land Non-Homesite Value: | + | $5,000 | |
| (+) Curr Use (HS): | + | $0 | $0 |
| (+) Curr Use (NHS): | + | $0 | $0 |
| | | -------------------------- | |
| (=) Market Value: | = | $604,155 | |
| (–) Productivity Loss: | – | $0 | |
| | | -------------------------- | |
| (=) Subtotal: | = | $604,155 | |
| (+) Senior Appraised Value: | + | $0 | |
| (+) Non-Senior Appraised Value: | + | $604,155 | |
| | | -------------------------- | |
| (=) Total Appraised Value: | = | $604,155 | |
| (–) Senior Exemption Loss: | – | $0 | |
| (–) Exemption Loss: | – | $0 | |
| | | -------------------------- | |
| (=) Taxable Value: | = | $604,155 | |
Taxing Jurisdiction
| Owner: | MARY A MINISH | | |
| % Ownership: | 100.0000000000% | | |
| Total Value: | N/A | | |
| Tax Area: | 0110 - C-50F1E1H2 |
| CE | COUNTY CURRENT EXPENSE | N/A | N/A | N/A | N/A | | |
| CNTYDD | DEVELOPMENTAL DISABILITIES | N/A | N/A | N/A | N/A | | |
| CNTYVET | VETERANS RELIEF | N/A | N/A | N/A | N/A | | |
| MENTAL | MENTAL HEALTH | N/A | N/A | N/A | N/A | | |
| PTGEN | CITY OF PT GENERAL | N/A | N/A | N/A | N/A | | |
| PTLLL | CITY OF PT - LIBRARY LID LIFT | N/A | N/A | N/A | N/A | | |
| PTMVBOND | CITY OF PT MV BOND | N/A | N/A | N/A | N/A | | |
| HOSP2CASH | HOSP DIST #2 GENERAL | N/A | N/A | N/A | N/A | | |
| SCH50BOND | SCHOOL DIST #50 BOND 2016 | N/A | N/A | N/A | N/A | | |
| SCH50CP | SCHOOL DIST #50 CAP PROJ | N/A | N/A | N/A | N/A | | |
| SCH50MO | SCHOOL DIST #50 EP & O | N/A | N/A | N/A | N/A | | |
| CONSERVE | CONSERVATION FUTURES | N/A | N/A | N/A | N/A | | |
| EMS1 | FIRE DIST #1 EMS | N/A | N/A | N/A | N/A | | |
| FD1 | FIRE DIST #1 GENERAL | N/A | N/A | N/A | N/A | | |
| PORTPT | PORT OF PT GENERAL | N/A | N/A | N/A | N/A | | |
| PORTPTIDD | PORT OF PT IDD 2019 | N/A | N/A | N/A | N/A | | |
| PUD1 | PUD #1 GENERAL | N/A | N/A | N/A | N/A | | |
| STATE | STATE SCHOOL PART 1 | N/A | N/A | N/A | N/A | | |
| STATE2 | STATE SCHOOL PART 2 | N/A | N/A | N/A | N/A | | |
| | Total Tax Rate: | N/A | | | | | |
| | | | | Taxes w/Current Exemptions: | N/A | | |
| | | | | Taxes w/o Exemptions: | N/A | | |
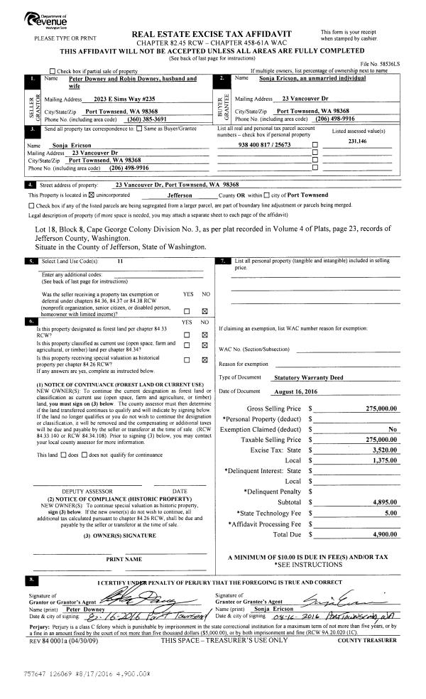
Improvement / Building
| Improvement #1: | Residential Bldg | State Code: | 11 | 1810.0 sqft | Value: | $369,155 |
| Bathrooms (#): | 1 (FULL) | Bathrooms (#): | 1 (HALF) | | Bedrooms (#): | 4 | Exterior Wall: | SI/ST | | Fireplace: | WD ST-GOOD | Floor Construction: | FRAME | | Foundation: | CONBL | Heating/Cooling: | F/A | | Roof Cover: | COMP |   |   |
|
| | Type | Description | Class CD | Sub Class CD | Year Built | Area |
| | MA | Main Area | 4- | 2S | 1900 | 957.0 |
| | MA2 | Second Floor Main Area | 4- | 2S | 1900 | 853.0 |
| | PATIO | House Patio | 4 | * | 1900 | 236.0 |
| | HCPOR | House Concrete Porch | 4 | * | 1900 | 35.0 |
| | HDECK | House Deck | 4 | * | 1900 | 130.0 |
| | GDET | Detached Garage | 3 | 2S | 1900 | 198.0 |
| | BSMTU | House basement unfinished | 3 | * | 1900 | 957.0 |
Sketch
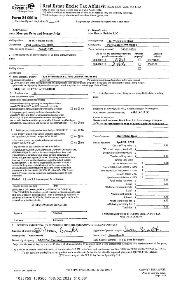
Property Image
Land
| 1 | 6275-1165L | Uptown Std Lot (Avg) | 0.0000 | 0.00 | 0.00 | 0.00 | 1.00 | $230,000 | $0 |
| 2 | 6275-1165L | Uptown Std Lot (Avg) | 0.0000 | 0.00 | 0.00 | 0.00 | 1.00 | $5,000 | $0 |
Roll Value History
| 2025 | N/A | N/A | N/A | N/A | N/A |
| 2024 | $358,038 | $235,988 | $0 | $594,026 | $594,026 |
| 2023 | $342,471 | $219,750 | $0 | $562,221 | $562,221 |
| 2022 | $342,471 | $214,750 | $0 | $557,221 | $557,221 |
| 2021 | $286,347 | $295,156 | $0 | $581,503 | $581,503 |
Deed and Sales History
| 1 | 10/11/2022 | BLA | Boundary Line Adjustment | MARY A MINISH | | | | | 140049 | |
| 2 | 06/16/2017 | LOP | Lack of Probate | | | | | | 128180 | |
| 3 | 06/16/2017 | LOP | Lack of Probate | JAMES B MINISH | MARY A MINISH | | | | 127891 | |
Payout Agreement
| No payout information available.. |