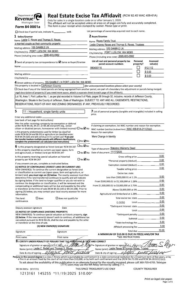
Property
Account |
| Property ID: | 30350 | Abbreviated Legal Description: | HASTINGS O.C. ADDITION BLK 9 LOTS 3 & 4 |
| Parcel # / Geo ID: | 958200902 | Agent Code: | |
| Type: | Real | | |
| Tax Area: | 0110 - C-50F1E1H2 | Land Use Code | 11 |
| Open Space: | N | DFL | N |
| Historic Property: | N | Remodel Property: | N |
| Multi-Family Redevelopment: | N | | |
| Township: | 30N | Section: | 3 |
| Range: | 1W |
Location |
| Address: | 409 22ND ST PORT TOWNSEND, WA 98368 | Mapsco: | 064/020 |
| Neighborhood: | EISENBEIS, OC HASTINGS & SUPP, PINKS LESS VICTORIAN VILLAGE | Map ID: | |
| Neighborhood CD: | 6210 |
Owner |
| Name: | BETH JOHNSON | Owner ID: | 95225 |
| Mailing Address: | 710 EUCLID AVE CARBONDALE, CO 81623 | % Ownership: | 100.0000000000% |
| | | Exemptions: | |
Pay Tax Due
There is currently No Amount Due on this property.
Taxes and Assessment Details
Property Tax Information as of
10/24/2025
Click on "Statement Details" to expand or collapse a tax statement.
* Please enter a valid date ** Please enter a valid date *
Statement Details |
| | TOTAL: | $0.00 | $0.00 | $0.00 | $0.00 | $0.00 | $0.00 |
|
| | $0.00 | $0.00 | $0.00 | $0.00 | $0.00 | $0.00 |
Values
| (+) Improvement Homesite Value: | + | $0 | |
| (+) Improvement Non-Homesite Value: | + | $366,236 | |
| (+) Land Homesite Value: | + | $0 | |
| (+) Land Non-Homesite Value: | + | $187,500 | |
| (+) Curr Use (HS): | + | $0 | $0 |
| (+) Curr Use (NHS): | + | $0 | $0 |
| | | -------------------------- | |
| (=) Market Value: | = | $553,736 | |
| (–) Productivity Loss: | – | $0 | |
| | | -------------------------- | |
| (=) Subtotal: | = | $553,736 | |
| (+) Senior Appraised Value: | + | $0 | |
| (+) Non-Senior Appraised Value: | + | $553,736 | |
| | | -------------------------- | |
| (=) Total Appraised Value: | = | $553,736 | |
| (–) Senior Exemption Loss: | – | $0 | |
| (–) Exemption Loss: | – | $0 | |
| | | -------------------------- | |
| (=) Taxable Value: | = | $553,736 | |
Taxing Jurisdiction
| Owner: | BETH JOHNSON | | |
| % Ownership: | 100.0000000000% | | |
| Total Value: | N/A | | |
| Tax Area: | 0110 - C-50F1E1H2 |
| CE | COUNTY CURRENT EXPENSE | N/A | N/A | N/A | N/A | | |
| CNTYDD | DEVELOPMENTAL DISABILITIES | N/A | N/A | N/A | N/A | | |
| CNTYVET | VETERANS RELIEF | N/A | N/A | N/A | N/A | | |
| MENTAL | MENTAL HEALTH | N/A | N/A | N/A | N/A | | |
| PTGEN | CITY OF PT GENERAL | N/A | N/A | N/A | N/A | | |
| PTLLL | CITY OF PT - LIBRARY LID LIFT | N/A | N/A | N/A | N/A | | |
| PTMVBOND | CITY OF PT MV BOND | N/A | N/A | N/A | N/A | | |
| HOSP2CASH | HOSP DIST #2 GENERAL | N/A | N/A | N/A | N/A | | |
| SCH50BOND | SCHOOL DIST #50 BOND 2016 | N/A | N/A | N/A | N/A | | |
| SCH50CP | SCHOOL DIST #50 CAP PROJ | N/A | N/A | N/A | N/A | | |
| SCH50MO | SCHOOL DIST #50 EP & O | N/A | N/A | N/A | N/A | | |
| CONSERVE | CONSERVATION FUTURES | N/A | N/A | N/A | N/A | | |
| EMS1 | FIRE DIST #1 EMS | N/A | N/A | N/A | N/A | | |
| FD1 | FIRE DIST #1 GENERAL | N/A | N/A | N/A | N/A | | |
| PORTPT | PORT OF PT GENERAL | N/A | N/A | N/A | N/A | | |
| PORTPTIDD | PORT OF PT IDD 2019 | N/A | N/A | N/A | N/A | | |
| PUD1 | PUD #1 GENERAL | N/A | N/A | N/A | N/A | | |
| STATE | STATE SCHOOL PART 1 | N/A | N/A | N/A | N/A | | |
| STATE2 | STATE SCHOOL PART 2 | N/A | N/A | N/A | N/A | | |
| | Total Tax Rate: | N/A | | | | | |
| | | | | Taxes w/Current Exemptions: | N/A | | |
| | | | | Taxes w/o Exemptions: | N/A | | |
Improvement / Building
| Improvement #1: | Residential Bldg | State Code: | 11 | 978.0 sqft | Value: | $212,575 |
| Bathrooms (#): | 1 (FULL) | Bedrooms (#): | 2 | | Exterior Wall: | SI/ST | Floor Construction: | CONCR | | Foundation: | CONPR | Heating/Cooling: | ELBB | | Inside Verify: | NO | Roof Cover: | METAL |
|
| | Type | Description | Class CD | Sub Class CD | Year Built | Area |
| | MA | Main Area | 4- | 1S | 1995 | 978.0 |
| | HDECK | House Deck | 3 | 1S | 1995 | 138.0 |
| | SHED | Shed (Table Not Dep) | 4 | 1S | 1995 | 192.0 |
| Improvement #2: | Residential Bldg | State Code: | 11 | 803.5 sqft | Value: | $153,661 |
| Bathrooms (#): | 1 (FULL) | Bedrooms (#): | 1 | | Exterior Wall: | SI/ST | Foundation: | CONPR | | Heating/Cooling: | OTHER | Roof Cover: | METAL |
|
| | Type | Description | Class CD | Sub Class CD | Year Built | Area |
| | MA | Main Area | 3 | ADU | 1995 | 803.5 |
| | GBLTIN | Builtin Garage | 3 | ADU | 1995 | 748.0 |
| | SHED | Shed (Table Not Dep) | 3 | ADU | 1995 | 192.0 |
| | HBAL | House Balcony | 3 | ADU | 1995 | 48.0 |
| | HWPOR | House Wood Porch | 3 | ADU | 1995 | 24.0 |
Sketch
Property Image
Land
| 1 | 6210-1185L | Standard Lot (No View) | 0.0000 | 0.00 | 0.00 | 0.00 | 1.00 | $135,000 | $0 |
| 2 | 6210-1185L | Standard Lot (No View) | 0.0000 | 0.00 | 0.00 | 0.00 | 1.00 | $52,500 | $0 |
Roll Value History
| 2025 | N/A | N/A | N/A | N/A | N/A |
| 2024 | $354,567 | $173,250 | $0 | $527,817 | $527,817 |
| 2023 | $339,151 | $160,000 | $0 | $499,151 | $499,151 |
| 2022 | $339,151 | $140,000 | $0 | $479,151 | $479,151 |
| 2021 | $289,872 | $113,250 | $0 | $403,122 | $403,122 |
Deed and Sales History
| 1 | 04/11/2016 | SWD | Statutory Warranty Deed | KEVIN AMES | BETH JOHNSON | | | $250,000.00 | 125181 | |
| 2 | 09/01/2011 | SWD | Statutory Warranty Deed | FAIRBANKS, KIMBERLY | AMES, KEVIN | 0 | 0 | $250,000.00 | 116495 | 0 |
| 3 | 12/16/1999 | SWD | Statutory Warranty Deed | HARBIN, DAN | WHEELER, KIMBERLY | 0 | 0 | $250,000.00 | 88639 | 0 |
| 4 | 05/18/1995 | SWD | Statutory Warranty Deed | WEIR, JAMES W/EST | HARBIN, DAN | 0 | 0 | $40,000.00 | 76944 | 0 |
Payout Agreement
| No payout information available.. |