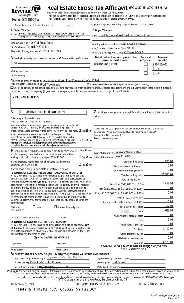
Property
Account |
| Property ID: | 30500 | Abbreviated Legal Description: | HENSEL SUBDIVISION LOT 11 |
| Parcel # / Geo ID: | 958900011 | Agent Code: | |
| Type: | Real | | |
| Tax Area: | 0110 - C-50F1E1H2 | Land Use Code | 11 |
| Open Space: | N | DFL | N |
| Historic Property: | N | Remodel Property: | N |
| Multi-Family Redevelopment: | N | | |
| Township: | 31N | Section: | 33 |
| Range: | 1W |
Location |
| Address: | 4906 MASON ST PORT TOWNSEND, WA 98368 | Mapsco: | 066/032 |
| Neighborhood: | FOWLERS PARK, DAVID'S, WILDWOOD AND ACREAGE IN 33-31-1W | Map ID: | |
| Neighborhood CD: | 6010 |
Owner |
| Name: | SCHWARTZ FAMILY LIVING TRUST | Owner ID: | 102200 |
| Mailing Address: | JOHN C SCHWARTZ TRUSTEE KATHLEEN B SCHWARTZ TRUSTEE 4906 MASON ST PORT TOWNSEND, WA 98368 | % Ownership: | 100.0000000000% |
| | | Exemptions: | |
Pay Tax Due
There is currently No Amount Due on this property.
Taxes and Assessment Details
Property Tax Information as of
10/24/2025
Click on "Statement Details" to expand or collapse a tax statement.
* Please enter a valid date ** Please enter a valid date *
Statement Details |
| | TOTAL: | $0.00 | $0.00 | $0.00 | $0.00 | $0.00 | $0.00 |
|
| | $0.00 | $0.00 | $0.00 | $0.00 | $0.00 | $0.00 |
Values
| (+) Improvement Homesite Value: | + | $0 | |
| (+) Improvement Non-Homesite Value: | + | $799,460 | |
| (+) Land Homesite Value: | + | $0 | |
| (+) Land Non-Homesite Value: | + | $230,000 | |
| (+) Curr Use (HS): | + | $0 | $0 |
| (+) Curr Use (NHS): | + | $0 | $0 |
| | | -------------------------- | |
| (=) Market Value: | = | $1,029,460 | |
| (–) Productivity Loss: | – | $0 | |
| | | -------------------------- | |
| (=) Subtotal: | = | $1,029,460 | |
| (+) Senior Appraised Value: | + | $0 | |
| (+) Non-Senior Appraised Value: | + | $1,029,460 | |
| | | -------------------------- | |
| (=) Total Appraised Value: | = | $1,029,460 | |
| (–) Senior Exemption Loss: | – | $0 | |
| (–) Exemption Loss: | – | $0 | |
| | | -------------------------- | |
| (=) Taxable Value: | = | $1,029,460 | |
Taxing Jurisdiction
| Owner: | SCHWARTZ FAMILY LIVING TRUST | | |
| % Ownership: | 100.0000000000% | | |
| Total Value: | N/A | | |
| Tax Area: | 0110 - C-50F1E1H2 |
| CE | COUNTY CURRENT EXPENSE | N/A | N/A | N/A | N/A | | |
| CNTYDD | DEVELOPMENTAL DISABILITIES | N/A | N/A | N/A | N/A | | |
| CNTYVET | VETERANS RELIEF | N/A | N/A | N/A | N/A | | |
| MENTAL | MENTAL HEALTH | N/A | N/A | N/A | N/A | | |
| PTGEN | CITY OF PT GENERAL | N/A | N/A | N/A | N/A | | |
| PTLLL | CITY OF PT - LIBRARY LID LIFT | N/A | N/A | N/A | N/A | | |
| PTMVBOND | CITY OF PT MV BOND | N/A | N/A | N/A | N/A | | |
| HOSP2CASH | HOSP DIST #2 GENERAL | N/A | N/A | N/A | N/A | | |
| SCH50BOND | SCHOOL DIST #50 BOND 2016 | N/A | N/A | N/A | N/A | | |
| SCH50CP | SCHOOL DIST #50 CAP PROJ | N/A | N/A | N/A | N/A | | |
| SCH50MO | SCHOOL DIST #50 EP & O | N/A | N/A | N/A | N/A | | |
| CONSERVE | CONSERVATION FUTURES | N/A | N/A | N/A | N/A | | |
| EMS1 | FIRE DIST #1 EMS | N/A | N/A | N/A | N/A | | |
| FD1 | FIRE DIST #1 GENERAL | N/A | N/A | N/A | N/A | | |
| PORTPT | PORT OF PT GENERAL | N/A | N/A | N/A | N/A | | |
| PORTPTIDD | PORT OF PT IDD 2019 | N/A | N/A | N/A | N/A | | |
| PUD1 | PUD #1 GENERAL | N/A | N/A | N/A | N/A | | |
| STATE | STATE SCHOOL PART 1 | N/A | N/A | N/A | N/A | | |
| STATE2 | STATE SCHOOL PART 2 | N/A | N/A | N/A | N/A | | |
| | Total Tax Rate: | N/A | | | | | |
| | | | | Taxes w/Current Exemptions: | N/A | | |
| | | | | Taxes w/o Exemptions: | N/A | | |
Improvement / Building
| Improvement #1: | Residential Bldg | State Code: | 11 | 2266.0 sqft | Value: | $799,460 |
| Bathrooms (#): | 2 (FULL) | Bathrooms (#): | 1 (HALF) | | Bedrooms (#): | 3 | Exterior Wall: | SI/ST | | Fireplace: | PROPS-GOOD | Floor Construction: | FRAME | | Foundation: | CONPR | Heating/Cooling: | HPUMP | | Roof Cover: | COMP |   |   |
|
| | Type | Description | Class CD | Sub Class CD | Year Built | Area |
| | MA | Main Area | 5+ | 1S | 2004 | 2266.0 |
| | HCPOR | House Concrete Porch | 5 | * | 2004 | 109.0 |
| | HDECK | House Deck | 5 | * | 2004 | 380.0 |
| | GATT | House Attached Garage | 5 | * | 2004 | 792.0 |
| | CONCD | Concrete Drive | 5 | * | 2004 | 1250.0 |
| | SHED | Shed (Table Not Dep) | 4 | * | 2004 | 80.0 |
| | ADDN-D | Addition (Table Depreciated) | 5 | 1S | 2016 | 204.0 |
Sketch
Property Image
Land
| 1 | 6010-1175L | Area of Terr/Wtr Views W/Utilities 1st Lot | 0.0000 | 0.00 | 0.00 | 0.00 | 1.00 | $110,000 | $0 |
| 2 | 6010-1177L | 2nd Lot of 2 Lot Site in Fowlers Park | 0.0000 | 0.00 | 0.00 | 0.00 | 3.00 | $120,000 | $0 |
Roll Value History
| 2025 | N/A | N/A | N/A | N/A | N/A |
| 2024 | $725,764 | $230,000 | $0 | $955,764 | $955,764 |
| 2023 | $725,764 | $225,000 | $0 | $950,764 | $950,764 |
| 2022 | $725,764 | $220,000 | $0 | $945,764 | $945,764 |
| 2021 | $620,311 | $175,375 | $0 | $795,686 | $795,686 |
Deed and Sales History
| 1 | 07/25/2022 | SWD | Statutory Warranty Deed | THOMAS E OWENS TRUSTEE | SCHWARTZ FAMILY LIVING TRUST | | | $1,100,000.00 | 139513 | |
| 2 | 06/03/2010 | SWD | Statutory Warranty Deed | MILLER, RICHARD/WHITNEY | OWENS, THOMAS/LEE MERRILL | | | $535,000.00 | 114494 | 0 |
| 3 | 04/18/2007 | SWD | Statutory Warranty Deed | CAIRO, CAROL L, MACPHERSO | MILLER, RICHARD J/WHITNEY | | | $569,000.00 | 109011 | 0 |
| 4 | 07/26/2004 | SWD | Statutory Warranty Deed | HENSEL, JACK L & MARSHA A | CAIRO, CAROL/MACPHERSON, | 0 | 0 | $391,400.00 | 101104 | 0 |
Payout Agreement
| No payout information available.. |