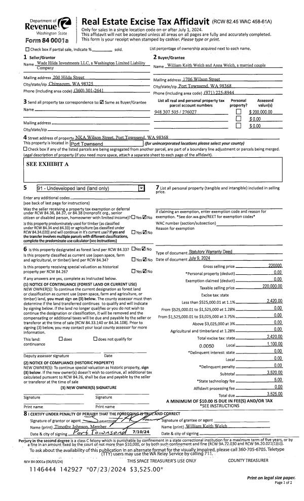
Property
Account |
| Property ID: | 30503 | Abbreviated Legal Description: | HERON POND RANCH TRACT 1 SUBJ/CONSRV RES & EASE SUBJ TO EASE AFN#463142 |
| Parcel # / Geo ID: | 959000001 | Agent Code: | |
| Type: | Real | | |
| Tax Area: | 0111 - 1-50F1E1H2L1 | Land Use Code | 94 |
| Open Space: | Y | DFL | N |
| Historic Property: | N | Remodel Property: | N |
| Multi-Family Redevelopment: | N | | |
| Township: | 30N | Section: | 20 |
| Range: | 1W |
Location |
| Address: | 344 GREEN WAY PORT TOWNSEND, WA 98368 | Mapsco: | 033/032 |
| Neighborhood: | S29 T30 R1W DEER RIDGE, DOE RUN, SNAGSTEAD WAY | Map ID: | |
| Neighborhood CD: | 5370 |
Owner |
| Name: | ANDREW BIEL & EVELYN GREGORY | Owner ID: | 94286 |
| Mailing Address: | 480 ADELMA BEACH RD PORT TOWNSEND, WA 98368 | % Ownership: | 100.0000000000% |
| | | Exemptions: | |
Pay Tax Due
There is currently No Amount Due on this property.
Taxes and Assessment Details
Property Tax Information as of
10/24/2025
Click on "Statement Details" to expand or collapse a tax statement.
* Please enter a valid date ** Please enter a valid date *
Statement Details |
| | TOTAL: | $0.00 | $0.00 | $0.00 | $0.00 | $0.00 | $0.00 |
|
| | $0.00 | $0.00 | $0.00 | $0.00 | $0.00 | $0.00 |
Values
| (+) Improvement Homesite Value: | + | $0 | |
| (+) Improvement Non-Homesite Value: | + | $790,211 | |
| (+) Land Homesite Value: | + | $0 | |
| (+) Land Non-Homesite Value: | + | $254,980 | |
| (+) Curr Use (HS): | + | $0 | $0 |
| (+) Curr Use (NHS): | + | $66,000 | $33,000 |
| | | -------------------------- | |
| (=) Market Value: | = | $1,111,191 | |
| (–) Productivity Loss: | – | $33,000 | |
| | | -------------------------- | |
| (=) Subtotal: | = | $1,078,191 | |
| (+) Senior Appraised Value: | + | $0 | |
| (+) Non-Senior Appraised Value: | + | $1,078,191 | |
| | | -------------------------- | |
| (=) Total Appraised Value: | = | $1,078,191 | |
| (–) Senior Exemption Loss: | – | $0 | |
| (–) Exemption Loss: | – | $0 | |
| | | -------------------------- | |
| (=) Taxable Value: | = | $1,078,191 | |
Taxing Jurisdiction
| Owner: | ANDREW BIEL & EVELYN GREGORY | | |
| % Ownership: | 100.0000000000% | | |
| Total Value: | N/A | | |
| Tax Area: | 0111 - 1-50F1E1H2L1 |
| CE | COUNTY CURRENT EXPENSE | N/A | N/A | N/A | N/A | | |
| CNTYDD | DEVELOPMENTAL DISABILITIES | N/A | N/A | N/A | N/A | | |
| CNTYVET | VETERANS RELIEF | N/A | N/A | N/A | N/A | | |
| MENTAL | MENTAL HEALTH | N/A | N/A | N/A | N/A | | |
| ROADS | COUNTY ROADS | N/A | N/A | N/A | N/A | | |
| ROADSCU | COUNTY ROADS TO CUR EXP | N/A | N/A | N/A | N/A | | |
| HOSP2CASH | HOSP DIST #2 GENERAL | N/A | N/A | N/A | N/A | | |
| SCH50BOND | SCHOOL DIST #50 BOND 2016 | N/A | N/A | N/A | N/A | | |
| SCH50CP | SCHOOL DIST #50 CAP PROJ | N/A | N/A | N/A | N/A | | |
| SCH50MO | SCHOOL DIST #50 EP & O | N/A | N/A | N/A | N/A | | |
| CONSERVE | CONSERVATION FUTURES | N/A | N/A | N/A | N/A | | |
| EMS1 | FIRE DIST #1 EMS | N/A | N/A | N/A | N/A | | |
| FD1 | FIRE DIST #1 GENERAL | N/A | N/A | N/A | N/A | | |
| LIB1 | LIBRARY DIST #1 GENERAL | N/A | N/A | N/A | N/A | | |
| PORTPT | PORT OF PT GENERAL | N/A | N/A | N/A | N/A | | |
| PORTPTIDD | PORT OF PT IDD 2019 | N/A | N/A | N/A | N/A | | |
| PUD1 | PUD #1 GENERAL | N/A | N/A | N/A | N/A | | |
| STATE | STATE SCHOOL PART 1 | N/A | N/A | N/A | N/A | | |
| STATE2 | STATE SCHOOL PART 2 | N/A | N/A | N/A | N/A | | |
| | Total Tax Rate: | N/A | | | | | |
| | | | | Taxes w/Current Exemptions: | N/A | | |
| | | | | Taxes w/o Exemptions: | N/A | | |
Improvement / Building
| Improvement #1: | Residential Bldg | State Code: | 81 | 1854.0 sqft | Value: | $557,599 |
| Bathrooms (#): | 2 (FULL) | Bedrooms (#): | 2 | | Exterior Wall: | SI/ST | Fireplace: | WD ST-GOOD | | Floor Construction: | FRAME | Foundation: | CONPR | | Heating/Cooling: | F/A | Roof Cover: | COMP |
|
| | Type | Description | Class CD | Sub Class CD | Year Built | Area |
| | MA | Main Area | 5 | 1S | 2002 | 1854.0 |
| | HWPOR | House Wood Porch | 4 | 1S | 2002 | 156.0 |
| | HCPOR | House Concrete Porch | 4 | 1S | 2002 | 32.0 |
| | HDECK | House Deck | 4 | 1S | 2002 | 600.0 |
| | GATT | House Attached Garage | 4 | 1S | 2002 | 490.0 |
| | SHED | Shed (Table Not Dep) | 4 | 1S | 2002 | 171.0 |
| Improvement #2: | Residential Bldg | State Code: | 81 | 775.0 sqft | Value: | $232,612 |
| Bathrooms (#): | 1 (FULL) | Bathrooms (#): | 1 (HALF) | | Bedrooms (#): | 1 | Exterior Wall: | SI/ST | | Floor Construction: | FRAME | Foundation: | CONPR | | Heating/Cooling: | F/A | Roof Cover: | COMP |
|
| | Type | Description | Class CD | Sub Class CD | Year Built | Area |
| | MA | Main Area | 4 | 2S | 2001 | 775.0 |
| | HWPOR | House Wood Porch | 4 | 2S | 2001 | 24.0 |
| | GBLTIN | Builtin Garage | 4 | 2S | 2001 | 1344.0 |
Sketch
| No sketches available for this property. |
Property Image
Land
| 1 | 5370-1371S | Valley View Sites by Heon Pond 1+/- Acre | 1.0000 | 43560.00 | 0.00 | 0.00 | 1.00 | $214,500 | $0 |
| 2 | 1572A | Terr/Mtn/No View <6 Acres | 1.8400 | 80150.40 | 0.00 | 0.00 | 0.00 | $40,480 | $0 |
| 3 | 1572A | Terr/Mtn/No View <6 Acres | 3.0000 | 130680.00 | 0.00 | 0.00 | 0.00 | $66,000 | $33,000 |
Roll Value History
| 2025 | N/A | N/A | N/A | N/A | N/A |
| 2024 | $546,896 | $251,024 | $16,538 | $781,383 | $781,383 |
| 2023 | $522,235 | $226,650 | $15,000 | $733,885 | $733,885 |
| 2022 | $522,235 | $213,020 | $13,875 | $721,380 | $721,380 |
| 2021 | $395,633 | $194,436 | $12,788 | $577,282 | $577,282 |
Deed and Sales History
| 1 | 02/07/2025 | SWD | Statutory Warranty Deed | VICTORIA DAVIS | ANDREW BIEL & EVELYN GREGORY | | | $1,155,000.00 | 143876 | |
| 2 | 09/08/2023 | DTH CERT | Death Certificate | JAMES H CHRISTENSON | | | | | 0 | 663180 |
| 3 | 07/06/2021 | QCD | Quit Claim Deed | VICTORIA A DAVIS TRTEE | JAMES H & VICTORIA CHRISTENSON | | | | 137130 | |
| 4 | 05/17/2004 | QCD | Quit Claim Deed | CHRISTENSON, JAMES/V A DA | DAVIS, VICTORIA & CHRISTENSON, | 0 | 0 | $0.00 | 100244 | 0 |
| 5 | 11/22/1999 | SWD | Statutory Warranty Deed | POLLACK, JOSEPH & LARISSA | CHRISTENSON, JAMES H & VICTORI | 0 | 0 | $95,000.00 | 88476 | 0 |
| 6 | 07/02/1999 | QCD | Quit Claim Deed | ERWIN, JENNIFER | ERWIN, WILLIAM D/TRUST | 0 | 0 | $0.00 | 87286 | 0 |
| 7 | 06/03/1999 | EASE | Assignment of Easement | POLLACK, JOSEPH/LARISSA | ERWIN, JENNIFER | 0 | 0 | $30,000.00 | 87110 | 0 |
Payout Agreement
| No payout information available.. |