Property
Account |
| Property ID: | 30618 | Abbreviated Legal Description: | HIGHLAND GREENS CONDOMINIUMS BLDG #4 UNIT 403 |
| Parcel # / Geo ID: | 959500019 | Agent Code: | |
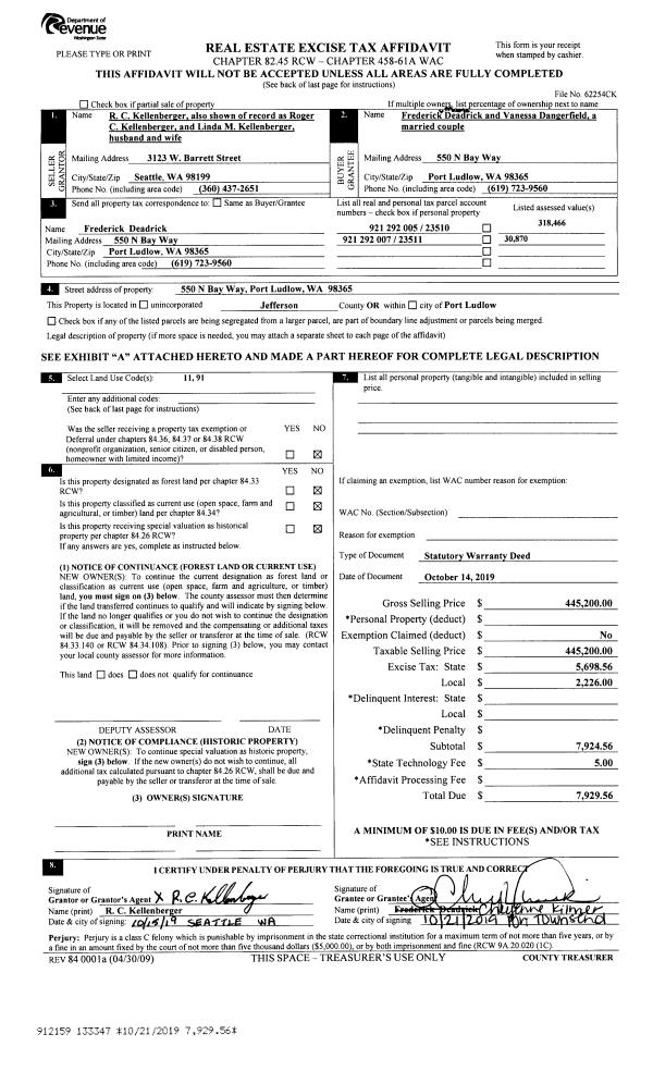
| Type: | Real | | |
| Tax Area: | 0213 - 1-49F1E1H2L1 | Land Use Code | 14 |
| Open Space: | N | DFL | N |
| Historic Property: | N | Remodel Property: | N |
| Multi-Family Redevelopment: | N | | |
| Township: | 28N | Section: | 21 |
| Range: | 1E |
Location |
| Address: | 131 HIGHLAND GREENS DR #2 PORT LUDLOW, WA 98365 | Mapsco: | 029/048 |
| Neighborhood: | CYCLE 3 CONDOMINIUMS - PORT LUDLOW | Map ID: | |
| Neighborhood CD: | 3900 |
Owner |
| Name: | RILEY VAN HORN TRUST | Owner ID: | 111876 |
| Mailing Address: | CATHERINE RILEY TRUSTEE 131 HIGHLAND GRNS UNIT 2 PORT LUDLOW, WA 98365-8202 | % Ownership: | 100.0000000000% |
| | | Exemptions: | |
Pay Tax Due
There is currently No Amount Due on this property.
Taxes and Assessment Details
Property Tax Information as of
10/24/2025
Click on "Statement Details" to expand or collapse a tax statement.
* Please enter a valid date ** Please enter a valid date *
Statement Details |
| | TOTAL: | $0.00 | $0.00 | $0.00 | $0.00 | $0.00 | $0.00 |
|
| | $0.00 | $0.00 | $0.00 | $0.00 | $0.00 | $0.00 |
Values
| (+) Improvement Homesite Value: | + | $0 | |
| (+) Improvement Non-Homesite Value: | + | $235,368 | |
| (+) Land Homesite Value: | + | $0 | |
| (+) Land Non-Homesite Value: | + | $94,500 | |
| (+) Curr Use (HS): | + | $0 | $0 |
| (+) Curr Use (NHS): | + | $0 | $0 |
| | | -------------------------- | |
| (=) Market Value: | = | $329,868 | |
| (–) Productivity Loss: | – | $0 | |
| | | -------------------------- | |
| (=) Subtotal: | = | $329,868 | |
| (+) Senior Appraised Value: | + | $0 | |
| (+) Non-Senior Appraised Value: | + | $329,868 | |
| | | -------------------------- | |
| (=) Total Appraised Value: | = | $329,868 | |
| (–) Senior Exemption Loss: | – | $0 | |
| (–) Exemption Loss: | – | $0 | |
| | | -------------------------- | |
| (=) Taxable Value: | = | $329,868 | |
Taxing Jurisdiction
| Owner: | RILEY VAN HORN TRUST | | |
| % Ownership: | 100.0000000000% | | |
| Total Value: | N/A | | |
| Tax Area: | 0213 - 1-49F1E1H2L1 |
| CE | COUNTY CURRENT EXPENSE | N/A | N/A | N/A | N/A | | |
| CNTYDD | DEVELOPMENTAL DISABILITIES | N/A | N/A | N/A | N/A | | |
| CNTYVET | VETERANS RELIEF | N/A | N/A | N/A | N/A | | |
| MENTAL | MENTAL HEALTH | N/A | N/A | N/A | N/A | | |
| ROADS | COUNTY ROADS | N/A | N/A | N/A | N/A | | |
| ROADSCU | COUNTY ROADS TO CUR EXP | N/A | N/A | N/A | N/A | | |
| HOSP2CASH | HOSP DIST #2 GENERAL | N/A | N/A | N/A | N/A | | |
| SCH49CP | SCHOOL DIST #49 CAP PROJ | N/A | N/A | N/A | N/A | | |
| SCH49MO | SCHOOL DIST #49 EP & O | N/A | N/A | N/A | N/A | | |
| CONSERVE | CONSERVATION FUTURES | N/A | N/A | N/A | N/A | | |
| EMS1 | FIRE DIST #1 EMS | N/A | N/A | N/A | N/A | | |
| FD1 | FIRE DIST #1 GENERAL | N/A | N/A | N/A | N/A | | |
| LIB1 | LIBRARY DIST #1 GENERAL | N/A | N/A | N/A | N/A | | |
| PORTPT | PORT OF PT GENERAL | N/A | N/A | N/A | N/A | | |
| PORTPTIDD | PORT OF PT IDD 2019 | N/A | N/A | N/A | N/A | | |
| PUD1 | PUD #1 GENERAL | N/A | N/A | N/A | N/A | | |
| STATE | STATE SCHOOL PART 1 | N/A | N/A | N/A | N/A | | |
| STATE2 | STATE SCHOOL PART 2 | N/A | N/A | N/A | N/A | | |
| | Total Tax Rate: | N/A | | | | | |
| | | | | Taxes w/Current Exemptions: | N/A | | |
| | | | | Taxes w/o Exemptions: | N/A | | |
Improvement / Building
| Improvement #1: | Residential Bldg | State Code: | 14 | 1401.0 sqft | Value: | $235,368 |
Sketch
| No sketches available for this property. |
Property Image
Land
| 1 | 9595-4175S | Highland Greens Condos Adj for Location/View | 0.0000 | 0.00 | 0.00 | 0.00 | 1.00 | $94,500 | $0 |
Roll Value History
| 2025 | N/A | N/A | N/A | N/A | N/A |
| 2024 | $246,576 | $94,500 | $0 | $341,076 | $341,076 |
| 2023 | $235,368 | $90,000 | $0 | $325,368 | $325,368 |
| 2022 | $227,663 | $85,000 | $0 | $312,663 | $312,663 |
| 2021 | $203,145 | $72,500 | $0 | $275,645 | $275,645 |
Deed and Sales History
| 1 | 11/13/2024 | SWD | Statutory Warranty Deed | CATHERINE V RILEY | RILEY VAN HORN TRUST | | | | 143610 | |
| 2 | 08/16/2023 | SWD | Statutory Warranty Deed | DAWN HINCHMAN SURVIVORS TRUST | CATHERINE V RILEY | | | $372,500.00 | 141458 | |
| 3 | 10/12/2021 | SWD | Statutory Warranty Deed | BRET PETERSON & EVA M SABO | DAWN HINCHMAN SURVIVORS TRUST | | | $374,900.00 | 137909 | |
| 4 | 04/21/2021 | SWD | Statutory Warranty Deed | MILA N HEWSTON | BRET PETERSON & EVA M SABO | | | $338,000.00 | 136601 | |
| 5 | 08/20/2020 | SWD | Statutory Warranty Deed | JAMES & LAGRIMAS FEENEY | MILA N HEWSTON | | | $285,000.00 | 134977 | |
| 6 | 04/08/2019 | SWD | Statutory Warranty Deed | JILL H BRYSON | JAMES & LAGRIMAS FEENEY | | | $229,000.00 | 132164 | |
| 7 | 07/10/2006 | SWD | Statutory Warranty Deed | MORSE, WARD M/JUDITH A | BRYSON, JILL H | | | $267,500.00 | 107162 | 0 |
| 8 | 11/26/2001 | SWD | Statutory Warranty Deed | MCCLEARY, RICHARD T | MORSE, WARD M/JUDITH A | 0 | 0 | $120,000.00 | 93590 | 0 |
| 9 | 02/03/1994 | SWD | Statutory Warranty Deed | DAVIS, GLENN L/MCDANIEL, | MCCLEARY, RICHARD T | 0 | 0 | $98,000.00 | 73347 | 0 |
Payout Agreement
| No payout information available.. |