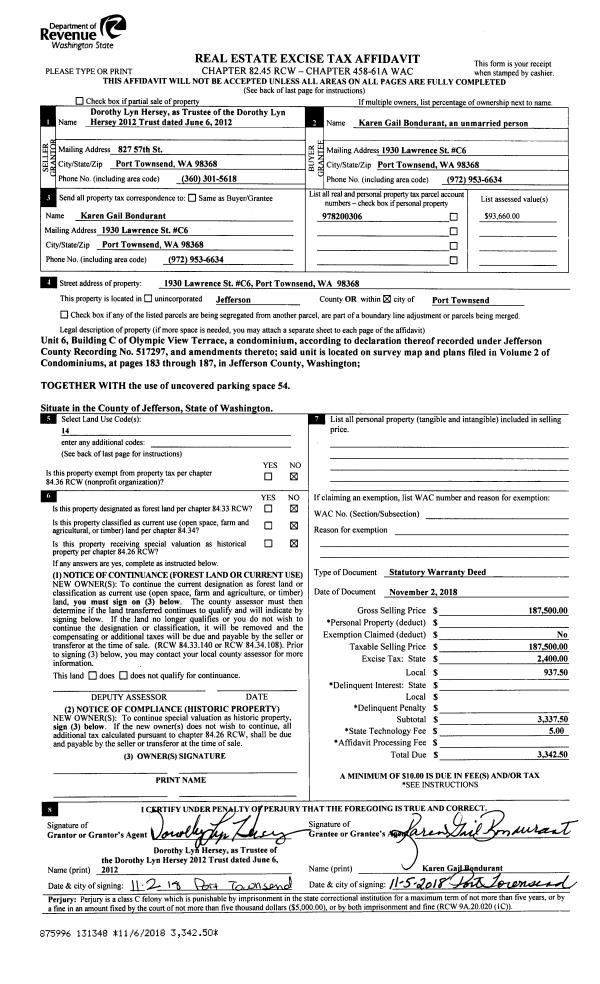
Property
Account |
| Property ID: | 30639 | Abbreviated Legal Description: | HILL'S ADDITION BLK 1 LOTS 1 & 2 |
| Parcel # / Geo ID: | 959700101 | Agent Code: | |
| Type: | Real | | |
| Tax Area: | 0110 - C-50F1E1H2 | Land Use Code | 11 |
| Open Space: | N | DFL | N |
| Historic Property: | N | Remodel Property: | N |
| Multi-Family Redevelopment: | N | | |
| Township: | 30N | Section: | 4 |
| Range: | 1W |
Location |
| Address: | 3424 HOWARD ST PORT TOWNSEND, WA 98368 | Mapsco: | 067/001 |
| Neighborhood: | HILLS ADDITION | Map ID: | |
| Neighborhood CD: | 6065 |
Owner |
| Name: | MATTHEW & CHARLOTTE COOPER | Owner ID: | 101078 |
| Mailing Address: | 3424 HOWARD ST PORT TOWNSEND, WA 98368-4712 | % Ownership: | 100.0000000000% |
| | | Exemptions: | |
Pay Tax Due
There is currently No Amount Due on this property.
Taxes and Assessment Details
Property Tax Information as of
10/24/2025
Click on "Statement Details" to expand or collapse a tax statement.
* Please enter a valid date ** Please enter a valid date *
Statement Details |
| | TOTAL: | $0.00 | $0.00 | $0.00 | $0.00 | $0.00 | $0.00 |
|
| | $0.00 | $0.00 | $0.00 | $0.00 | $0.00 | $0.00 |
Values
| (+) Improvement Homesite Value: | + | $0 | |
| (+) Improvement Non-Homesite Value: | + | $609,791 | |
| (+) Land Homesite Value: | + | $0 | |
| (+) Land Non-Homesite Value: | + | $134,500 | |
| (+) Curr Use (HS): | + | $0 | $0 |
| (+) Curr Use (NHS): | + | $0 | $0 |
| | | -------------------------- | |
| (=) Market Value: | = | $744,291 | |
| (–) Productivity Loss: | – | $0 | |
| | | -------------------------- | |
| (=) Subtotal: | = | $744,291 | |
| (+) Senior Appraised Value: | + | $0 | |
| (+) Non-Senior Appraised Value: | + | $744,291 | |
| | | -------------------------- | |
| (=) Total Appraised Value: | = | $744,291 | |
| (–) Senior Exemption Loss: | – | $0 | |
| (–) Exemption Loss: | – | $0 | |
| | | -------------------------- | |
| (=) Taxable Value: | = | $744,291 | |
Taxing Jurisdiction
| Owner: | MATTHEW & CHARLOTTE COOPER | | |
| % Ownership: | 100.0000000000% | | |
| Total Value: | N/A | | |
| Tax Area: | 0110 - C-50F1E1H2 |
| CE | COUNTY CURRENT EXPENSE | N/A | N/A | N/A | N/A | | |
| CNTYDD | DEVELOPMENTAL DISABILITIES | N/A | N/A | N/A | N/A | | |
| CNTYVET | VETERANS RELIEF | N/A | N/A | N/A | N/A | | |
| MENTAL | MENTAL HEALTH | N/A | N/A | N/A | N/A | | |
| PTGEN | CITY OF PT GENERAL | N/A | N/A | N/A | N/A | | |
| PTLLL | CITY OF PT - LIBRARY LID LIFT | N/A | N/A | N/A | N/A | | |
| PTMVBOND | CITY OF PT MV BOND | N/A | N/A | N/A | N/A | | |
| HOSP2CASH | HOSP DIST #2 GENERAL | N/A | N/A | N/A | N/A | | |
| SCH50BOND | SCHOOL DIST #50 BOND 2016 | N/A | N/A | N/A | N/A | | |
| SCH50CP | SCHOOL DIST #50 CAP PROJ | N/A | N/A | N/A | N/A | | |
| SCH50MO | SCHOOL DIST #50 EP & O | N/A | N/A | N/A | N/A | | |
| CONSERVE | CONSERVATION FUTURES | N/A | N/A | N/A | N/A | | |
| EMS1 | FIRE DIST #1 EMS | N/A | N/A | N/A | N/A | | |
| FD1 | FIRE DIST #1 GENERAL | N/A | N/A | N/A | N/A | | |
| PORTPT | PORT OF PT GENERAL | N/A | N/A | N/A | N/A | | |
| PORTPTIDD | PORT OF PT IDD 2019 | N/A | N/A | N/A | N/A | | |
| PUD1 | PUD #1 GENERAL | N/A | N/A | N/A | N/A | | |
| STATE | STATE SCHOOL PART 1 | N/A | N/A | N/A | N/A | | |
| STATE2 | STATE SCHOOL PART 2 | N/A | N/A | N/A | N/A | | |
| | Total Tax Rate: | N/A | | | | | |
| | | | | Taxes w/Current Exemptions: | N/A | | |
| | | | | Taxes w/o Exemptions: | N/A | | |
Improvement / Building
| Improvement #1: | Residential Bldg | State Code: | 11 | 2153.0 sqft | Value: | $609,791 |
| Bathrooms (#): | 3 (FULL) | Bedrooms (#): | 3 | | Exterior Wall: | SI/ST | Fireplace: | WD ST-GOOD | | Floor Construction: | FRAME | Foundation: | CONPR | | Heating/Cooling: | ELBB | Roof Cover: | COMP |
|
| | Type | Description | Class CD | Sub Class CD | Year Built | Area |
| | MA | Main Area | 4 | 2S | 1990 | 1409.0 |
| | MA2 | Second Floor Main Area | 4 | 2S | 1990 | 744.0 |
| | HDECK | House Deck | 4 | * | 1990 | 438.0 |
| | GATT | House Attached Garage | 4 | 2S | 1990 | 440.0 |
| | SHED | Shed (Table Not Dep) | 4 | * | 1990 | 108.0 |
| | BSMTF | House basement finished | 4 | * | 1990 | 1086.0 |
Sketch
Property Image
Land
| 1 | 6065-1185L | Standard Lot (No View) | 0.0000 | 0.00 | 0.00 | 0.00 | 1.00 | $27,500 | $0 |
| 2 | 6065-1175L | Standard Lot (Fair) | 0.0000 | 0.00 | 0.00 | 0.00 | 1.00 | $107,000 | $0 |
Roll Value History
| 2025 | N/A | N/A | N/A | N/A | N/A |
| 2024 | $573,546 | $137,500 | $0 | $711,046 | $711,046 |
| 2023 | $548,610 | $120,000 | $0 | $668,610 | $668,610 |
| 2022 | $548,610 | $90,000 | $0 | $638,610 | $638,610 |
| 2021 | $458,704 | $75,210 | $0 | $533,914 | $533,914 |
Deed and Sales History
| 1 | 05/22/2019 | SWD | Statutory Warranty Deed | SUSAN G FORD | MATTHEW & CHARLOTTE COOPER | | | $495,000.00 | 132432 | |
| 2 | 09/08/1998 | SWD | Statutory Warranty Deed | WODASKI, RON/BROWN, DONNA | FORD, SUSAN G | 0 | 0 | $209,000.00 | 85267 | 0 |
| 3 | 08/12/1994 | SWD | Statutory Warranty Deed | CAVETTE, NEIL M/JR & KATH | WODASKI, RON/BROWN, DONNA R | 0 | 0 | $203,000.00 | 74942 | 0 |
Payout Agreement
| No payout information available.. |