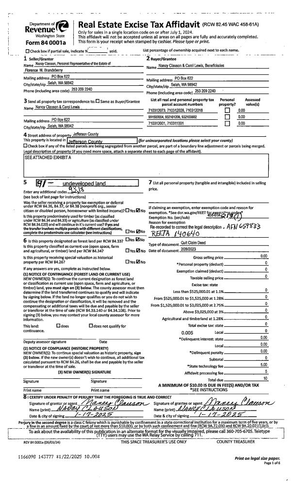
Property
Account |
| Property ID: | 30658 | Abbreviated Legal Description: | HILL'S ADDITION BLK 10 LOTS 3 & 4 |
| Parcel # / Geo ID: | 959701002 | Agent Code: | |
| Type: | Real | | |
| Tax Area: | 0110 - C-50F1E1H2 | Land Use Code | 11 |
| Open Space: | N | DFL | N |
| Historic Property: | N | Remodel Property: | N |
| Multi-Family Redevelopment: | N | | |
| Township: | 30N | Section: | 4 |
| Range: | 1W |
Location |
| Address: | 3310 HOWARD ST PORT TOWNSEND, WA 98368 | Mapsco: | 067/060 |
| Neighborhood: | HILLS ADDITION | Map ID: | |
| Neighborhood CD: | 6065 |
Owner |
| Name: | MARIAH BLANCHARD OCEANID TRUST | Owner ID: | 112689 |
| Mailing Address: | MARY JANE BLANCHARD TRUSTEE 3310 HOWARD ST PORT TOWNSEND, WA 98368-4755 | % Ownership: | 100.0000000000% |
| | | Exemptions: | |
Pay Tax Due
There is currently No Amount Due on this property.
Taxes and Assessment Details
Property Tax Information as of
10/24/2025
Click on "Statement Details" to expand or collapse a tax statement.
* Please enter a valid date ** Please enter a valid date *
Statement Details |
| | TOTAL: | $0.00 | $0.00 | $0.00 | $0.00 | $0.00 | $0.00 |
|
| | $0.00 | $0.00 | $0.00 | $0.00 | $0.00 | $0.00 |
Values
| (+) Improvement Homesite Value: | + | $0 | |
| (+) Improvement Non-Homesite Value: | + | $298,645 | |
| (+) Land Homesite Value: | + | $0 | |
| (+) Land Non-Homesite Value: | + | $134,500 | |
| (+) Curr Use (HS): | + | $0 | $0 |
| (+) Curr Use (NHS): | + | $0 | $0 |
| | | -------------------------- | |
| (=) Market Value: | = | $433,145 | |
| (–) Productivity Loss: | – | $0 | |
| | | -------------------------- | |
| (=) Subtotal: | = | $433,145 | |
| (+) Senior Appraised Value: | + | $0 | |
| (+) Non-Senior Appraised Value: | + | $433,145 | |
| | | -------------------------- | |
| (=) Total Appraised Value: | = | $433,145 | |
| (–) Senior Exemption Loss: | – | $0 | |
| (–) Exemption Loss: | – | $0 | |
| | | -------------------------- | |
| (=) Taxable Value: | = | $433,145 | |
Taxing Jurisdiction
| Owner: | MARIAH BLANCHARD OCEANID TRUST | | |
| % Ownership: | 100.0000000000% | | |
| Total Value: | N/A | | |
| Tax Area: | 0110 - C-50F1E1H2 |
| CE | COUNTY CURRENT EXPENSE | N/A | N/A | N/A | N/A | | |
| CNTYDD | DEVELOPMENTAL DISABILITIES | N/A | N/A | N/A | N/A | | |
| CNTYVET | VETERANS RELIEF | N/A | N/A | N/A | N/A | | |
| MENTAL | MENTAL HEALTH | N/A | N/A | N/A | N/A | | |
| PTGEN | CITY OF PT GENERAL | N/A | N/A | N/A | N/A | | |
| PTLLL | CITY OF PT - LIBRARY LID LIFT | N/A | N/A | N/A | N/A | | |
| PTMVBOND | CITY OF PT MV BOND | N/A | N/A | N/A | N/A | | |
| HOSP2CASH | HOSP DIST #2 GENERAL | N/A | N/A | N/A | N/A | | |
| SCH50BOND | SCHOOL DIST #50 BOND 2016 | N/A | N/A | N/A | N/A | | |
| SCH50CP | SCHOOL DIST #50 CAP PROJ | N/A | N/A | N/A | N/A | | |
| SCH50MO | SCHOOL DIST #50 EP & O | N/A | N/A | N/A | N/A | | |
| CONSERVE | CONSERVATION FUTURES | N/A | N/A | N/A | N/A | | |
| EMS1 | FIRE DIST #1 EMS | N/A | N/A | N/A | N/A | | |
| FD1 | FIRE DIST #1 GENERAL | N/A | N/A | N/A | N/A | | |
| PORTPT | PORT OF PT GENERAL | N/A | N/A | N/A | N/A | | |
| PORTPTIDD | PORT OF PT IDD 2019 | N/A | N/A | N/A | N/A | | |
| PUD1 | PUD #1 GENERAL | N/A | N/A | N/A | N/A | | |
| STATE | STATE SCHOOL PART 1 | N/A | N/A | N/A | N/A | | |
| STATE2 | STATE SCHOOL PART 2 | N/A | N/A | N/A | N/A | | |
| | Total Tax Rate: | N/A | | | | | |
| | | | | Taxes w/Current Exemptions: | N/A | | |
| | | | | Taxes w/o Exemptions: | N/A | | |
Improvement / Building
| Improvement #1: | Residential Bldg | State Code: | 11 | 1546.0 sqft | Value: | $298,645 |
| Bathrooms (#): | 2 (FULL) | Bedrooms (#): | 2 | | Exterior Wall: | SI/ST | Fireplace: | PROPS-GOOD | | Floor Construction: | FRAME | Foundation: | CONPR | | Heating/Cooling: | F/A | Roof Cover: | METAL |
|
| | Type | Description | Class CD | Sub Class CD | Year Built | Area |
| | MA | Main Area | 3+ | 2S | 1996 | 677.0 |
| | MA2 | Second Floor Main Area | 3+ | 2S | 1996 | 677.0 |
| | MA3 | Third Floor Main Area | 3+ | 2S | 1996 | 192.0 |
| | HENCL | House Enclosure | 3 | * | 1996 | 120.0 |
| | HWPOR | House Wood Porch | 3 | * | 1996 | 160.0 |
| | HBAL | House Balcony | 3 | * | 1996 | 84.0 |
| | HCPOR | House Concrete Porch | 3 | * | 1996 | 26.0 |
| | HDECK | House Deck | 3 | * | 1996 | 168.0 |
| | SHED | Shed (Table Not Dep) | 5 | * | 1996 | 63.0 |
| | HWPOR | House Wood Porch | 3 | * | 1996 | 160.0 |
| | SHED | Shed (Table Not Dep) | 5 | * | 1996 | 312.0 |
| | HWPOR | House Wood Porch | 3 | * | 1996 | 160.0 |
| | OTHER | Other | 3 | * | 1996 | 360.0 |
Sketch
Property Image
Land
| 1 | 6065-1175L | Standard Lot (Fair) | 0.0000 | 0.00 | 0.00 | 0.00 | 1.00 | $107,000 | $0 |
| 2 | 6065-1185L | Standard Lot (No View) | 0.0000 | 0.00 | 0.00 | 0.00 | 1.00 | $27,500 | $0 |
Roll Value History
| 2025 | N/A | N/A | N/A | N/A | N/A |
| 2024 | $299,021 | $137,500 | $0 | $436,521 | $436,521 |
| 2023 | $286,020 | $120,000 | $0 | $406,020 | $406,020 |
| 2022 | $286,020 | $90,000 | $0 | $376,020 | $376,020 |
| 2021 | $239,147 | $75,210 | $0 | $314,357 | $314,357 |
Deed and Sales History
| 1 | 05/28/2025 | QCD | Quit Claim Deed | MARY JANE BLANCHARD | MARIAH BLANCHARD OCEANID TRUST | | | | 144365 | |
| 2 | 01/17/1995 | SWD | Statutory Warranty Deed | NELSON, STUART G | BLANCHARD, MARYJANE | 0 | 0 | $20,000.00 | 76101 | 0 |
Payout Agreement
| No payout information available.. |