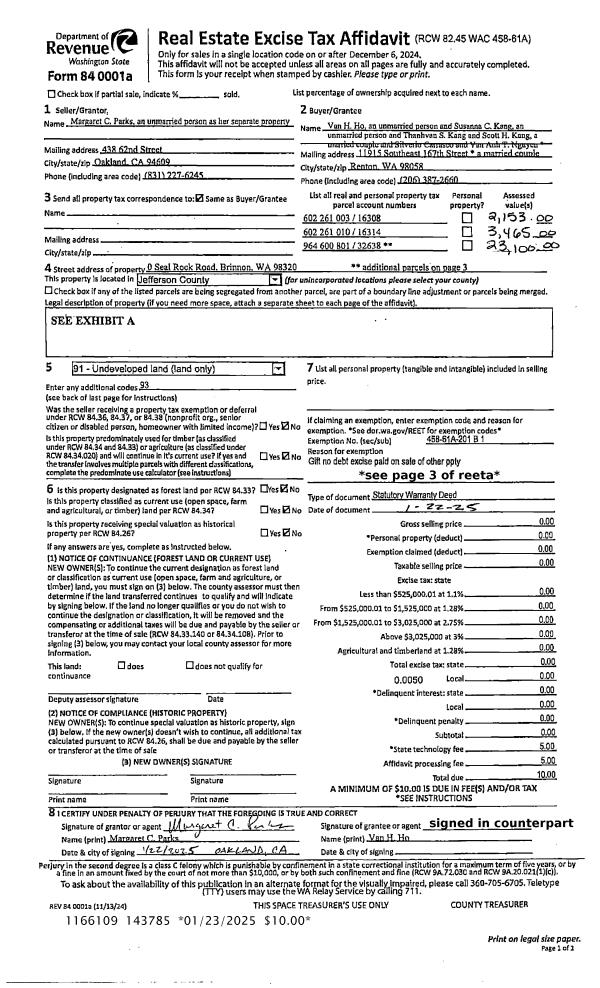
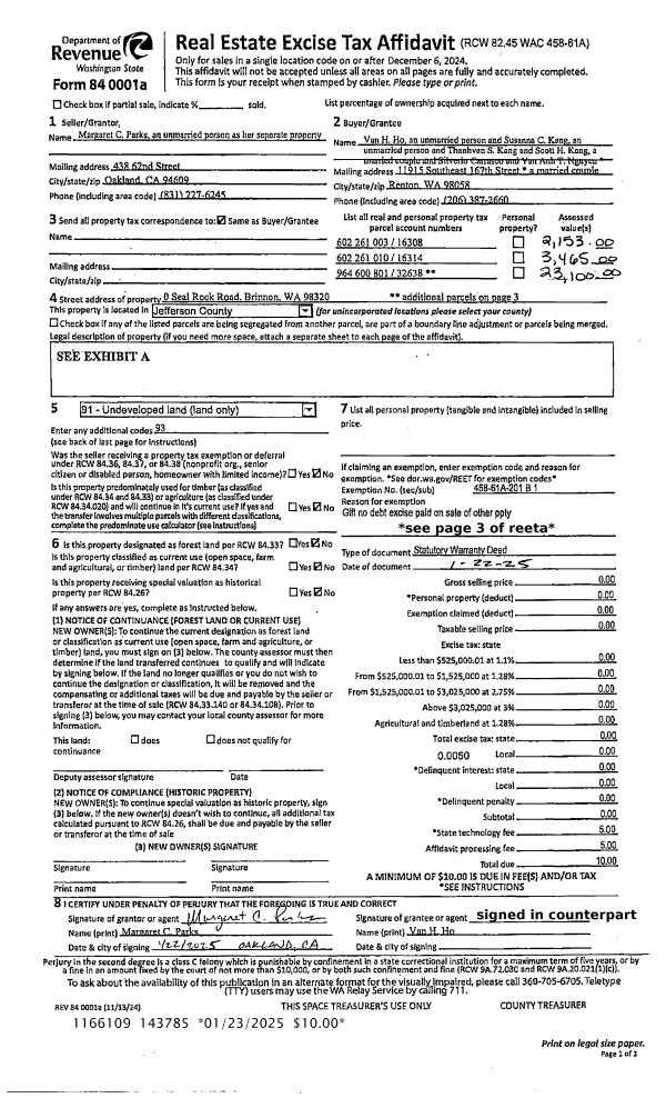
Property
Account |
| Property ID: | 30669 | Abbreviated Legal Description: | HILL'S ADDITION BLK 14 LOTS 3,4,5 & 6 |
| Parcel # / Geo ID: | 959701403 | Agent Code: | |
| Type: | Real | | |
| Tax Area: | 0110 - C-50F1E1H2 | Land Use Code | 11 |
| Open Space: | N | DFL | N |
| Historic Property: | N | Remodel Property: | N |
| Multi-Family Redevelopment: | N | | |
| Township: | 30N | Section: | 4 |
| Range: | 1W |
Location |
| Address: | 3209 KATHERINE ST PORT TOWNSEND, WA 98368 | Mapsco: | 067/089 |
| Neighborhood: | HILLS ADDITION | Map ID: | |
| Neighborhood CD: | 6065 |
Owner |
| Name: | MARIAH L KIMMEL | Owner ID: | 107505 |
| Mailing Address: | 3209 KATHERINE ST PORT TOWNEND, WA 98368-4744 | % Ownership: | 100.0000000000% |
| | | Exemptions: | |
Pay Tax Due
There is currently No Amount Due on this property.
Taxes and Assessment Details
Property Tax Information as of
10/24/2025
Click on "Statement Details" to expand or collapse a tax statement.
* Please enter a valid date ** Please enter a valid date *
Statement Details |
| | TOTAL: | $0.00 | $0.00 | $0.00 | $0.00 | $0.00 | $0.00 |
|
| | $0.00 | $0.00 | $0.00 | $0.00 | $0.00 | $0.00 |
Values
| (+) Improvement Homesite Value: | + | $0 | |
| (+) Improvement Non-Homesite Value: | + | $782,768 | |
| (+) Land Homesite Value: | + | $0 | |
| (+) Land Non-Homesite Value: | + | $133,125 | |
| (+) Curr Use (HS): | + | $0 | $0 |
| (+) Curr Use (NHS): | + | $0 | $0 |
| | | -------------------------- | |
| (=) Market Value: | = | $915,893 | |
| (–) Productivity Loss: | – | $0 | |
| | | -------------------------- | |
| (=) Subtotal: | = | $915,893 | |
| (+) Senior Appraised Value: | + | $0 | |
| (+) Non-Senior Appraised Value: | + | $915,893 | |
| | | -------------------------- | |
| (=) Total Appraised Value: | = | $915,893 | |
| (–) Senior Exemption Loss: | – | $0 | |
| (–) Exemption Loss: | – | $0 | |
| | | -------------------------- | |
| (=) Taxable Value: | = | $915,893 | |
Taxing Jurisdiction
| Owner: | MARIAH L KIMMEL | | |
| % Ownership: | 100.0000000000% | | |
| Total Value: | N/A | | |
| Tax Area: | 0110 - C-50F1E1H2 |
| CE | COUNTY CURRENT EXPENSE | N/A | N/A | N/A | N/A | | |
| CNTYDD | DEVELOPMENTAL DISABILITIES | N/A | N/A | N/A | N/A | | |
| CNTYVET | VETERANS RELIEF | N/A | N/A | N/A | N/A | | |
| MENTAL | MENTAL HEALTH | N/A | N/A | N/A | N/A | | |
| PTGEN | CITY OF PT GENERAL | N/A | N/A | N/A | N/A | | |
| PTLLL | CITY OF PT - LIBRARY LID LIFT | N/A | N/A | N/A | N/A | | |
| PTMVBOND | CITY OF PT MV BOND | N/A | N/A | N/A | N/A | | |
| HOSP2CASH | HOSP DIST #2 GENERAL | N/A | N/A | N/A | N/A | | |
| SCH50BOND | SCHOOL DIST #50 BOND 2016 | N/A | N/A | N/A | N/A | | |
| SCH50CP | SCHOOL DIST #50 CAP PROJ | N/A | N/A | N/A | N/A | | |
| SCH50MO | SCHOOL DIST #50 EP & O | N/A | N/A | N/A | N/A | | |
| CONSERVE | CONSERVATION FUTURES | N/A | N/A | N/A | N/A | | |
| EMS1 | FIRE DIST #1 EMS | N/A | N/A | N/A | N/A | | |
| FD1 | FIRE DIST #1 GENERAL | N/A | N/A | N/A | N/A | | |
| PORTPT | PORT OF PT GENERAL | N/A | N/A | N/A | N/A | | |
| PORTPTIDD | PORT OF PT IDD 2019 | N/A | N/A | N/A | N/A | | |
| PUD1 | PUD #1 GENERAL | N/A | N/A | N/A | N/A | | |
| STATE | STATE SCHOOL PART 1 | N/A | N/A | N/A | N/A | | |
| STATE2 | STATE SCHOOL PART 2 | N/A | N/A | N/A | N/A | | |
| | Total Tax Rate: | N/A | | | | | |
| | | | | Taxes w/Current Exemptions: | N/A | | |
| | | | | Taxes w/o Exemptions: | N/A | | |
Improvement / Building
| Improvement #1: | Residential Bldg | State Code: | 11 | 2459.0 sqft | Value: | $782,768 |
| Bathrooms (#): | 2 (FULL) | Bedrooms (#): | 3 | | Exterior Wall: | SI/ST | Fireplace: | DBL 1-GOOD | | Floor Construction: | FRAME | Foundation: | CONPR | | Heating/Cooling: | HPUMP | Interior Finish: | FIN | | Roof Cover: | COMP |   |   |
|
| | Type | Description | Class CD | Sub Class CD | Year Built | Area |
| | MA | Main Area | 5- | 1S | 2023 | 2459.0 |
| | GATT | House Attached Garage | 4 | 1S | 2023 | 1286.0 |
| | HCPOR | House Concrete Porch | 4 | 1S | 2023 | 296.0 |
| | HCPOR | House Concrete Porch | 4 | 1S | 2023 | 416.0 |
| | PATIO | House Patio | 4 | 1S | 2023 | 312.0 |
Sketch
Property Image
Land
| 1 | 6065-1185L | Standard Lot (No View) | 0.0000 | 0.00 | 0.00 | 0.00 | 3.00 | $91,875 | $0 |
| 2 | 6065-1185L | Standard Lot (No View) | 0.0000 | 0.00 | 0.00 | 0.00 | 1.00 | $41,250 | $0 |
Roll Value History
| 2025 | N/A | N/A | N/A | N/A | N/A |
| 2024 | $768,336 | $136,125 | $0 | $904,461 | $904,461 |
| 2023 | $601,983 | $118,750 | $0 | $720,733 | $720,733 |
| 2022 | $0 | $30,000 | $0 | $30,000 | $30,000 |
| 2021 | $0 | $29,325 | $0 | $29,325 | $29,325 |
Deed and Sales History
| 1 | 08/17/2022 | QCD | Quit Claim Deed | MARIAH L KIMMEL | MARIAH L KIMMEL | | | | 139649 | |
| 2 | 03/25/2019 | QCD | Quit Claim Deed | EVERETT A SORENSEN & ANGELA LYNN DIDEUM | MARIAH L KIMMEL | | | | 131994 | |
| 3 | 10/12/2016 | SWD | Statutory Warranty Deed | PETER E MARTIN | EVERETT A SORENSEN & ANGELA LYNN DIDEUM | | | $30,000.00 | 126480 | |
Payout Agreement
| No payout information available.. |